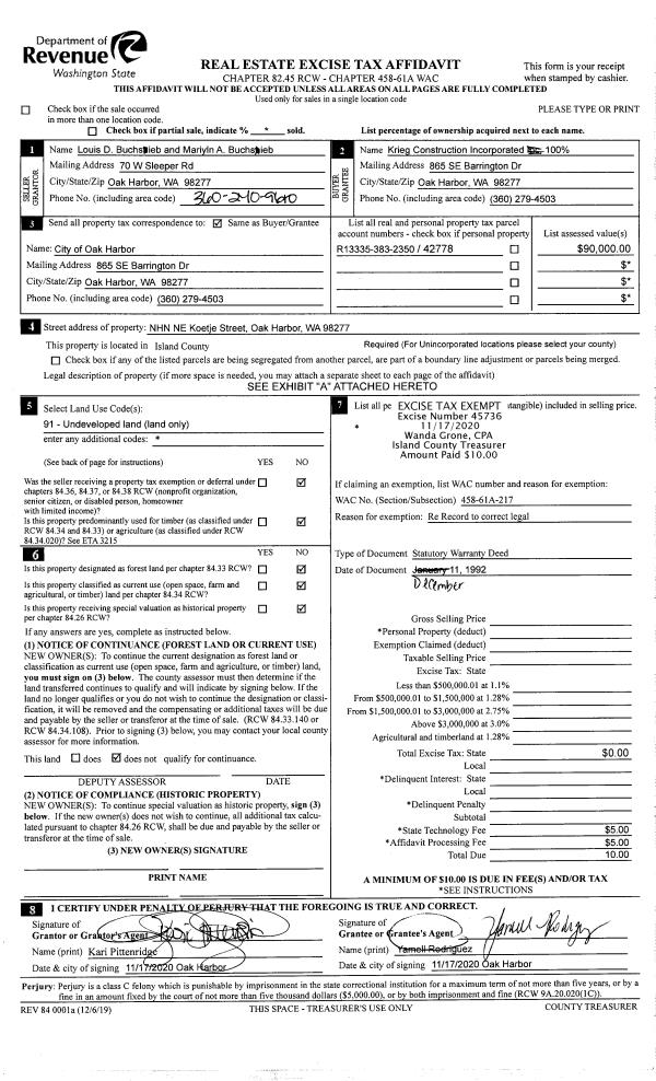
Property
Account |
| Property ID: | 42778 | Abbreviated Legal Description: | 49 ALLEN DC - BG 30'W NW CR TAFTZ DLC N1*E1605.87' N88* W1093.78' S1*W216.86' TPB S1*W200' S88*E1093.78' N1* E200' N88*W1093.78' KRIEG CONST INC - UNDIV 1/2 INT |
| Geographic ID: | R13335-383-2350 | Agent Code: | |
| Type: | Real | | |
| Tax Area: | 119 - APPRAISER-OH Schl Dist, outside OH, vacant & 50 acres or less | Land Use Code | 91 |
| Open Space: | N | DFL | N |
| Historic Property: | N | Remodel Property: | N |
| Multi-Family Redevelopment: | N | | |
| Township: | 33 | Section: | 35 |
| Range: | R1 |
Location |
| Address: | | Mapsco: | |
| Neighborhood: | Cycle 1 | Map ID: | 258 |
| Neighborhood CD: | 1 |
Owner |
| Name: | CITY OF OAK HARBOR | Owner ID: | 185966 |
| Mailing Address: | 865 SE BARRINGTON DR OAK HARBOR, WA 98277-3280 | % Ownership: | 100.0000000000% |
| | | Exemptions: | EX |
Taxes and Assessment Details
Values
| (+) Improvement Homesite Value: | + | $0 | |
| (+) Improvement Non-Homesite Value: | + | $0 | |
| (+) Land Homesite Value: | + | $0 | |
| (+) Land Non-Homesite Value: | + | $150,000 | |
| (+) Curr Use (HS): | + | $0 | $0 |
| (+) Curr Use (NHS): | + | $0 | $0 |
| | | -------------------------- | |
| (=) Market Value: | = | $150,000 | |
| (–) Productivity Loss: | – | $0 | |
| | | -------------------------- | |
| (=) Subtotal: | = | $150,000 | |
| (+) Senior Appraised Value: | + | $0 | |
| (+) Non-Senior Appraised Value: | + | $150,000 | |
| | | -------------------------- | |
| (=) Total Appraised Value: | = | $150,000 | |
| (–) Senior Exemption Loss: | – | $0 | |
| (–) Exemption Loss: | – | $150,000 | |
| | | -------------------------- | |
| (=) Taxable Value: | = | $0 | |
Taxing Jurisdiction
| Owner: | CITY OF OAK HARBOR | | |
| % Ownership: | 100.0000000000% | | |
| Total Value: | $150,000 | | |
| Tax Area: | 119 - APPRAISER-OH Schl Dist, outside OH, vacant & 50 acres or less |
| CF | Conservation Futures | 0.0313996660 | $150,000 | $0 | $0.00 | | |
| CEM1 | Cemetery #1 | 0.0040018856 | $150,000 | $0 | $0.00 | | |
| HOBOND | Hospital BOND | 0.1893405597 | $150,000 | $0 | $0.00 | | |
| HOGEN | Hospital GEN | 0.3848777722 | $150,000 | $0 | $0.00 | | |
| CE | County Current Expense | 0.3674210519 | $150,000 | $0 | $0.00 | | |
| CR | County Roads | 0.4614296361 | $150,000 | $0 | $0.00 | | |
| ISLANDEMS | Hospital GEN (EMS) | 0.4952018576 | $150,000 | $0 | $0.00 | | |
| LIB | Library Sno-Isle GEN | 0.3039084203 | $150,000 | $0 | $0.00 | | |
| NWHIDPRMT | P & R N Whidbey GEN | 0.1990272349 | $150,000 | $0 | $0.00 | | |
| SCH201MO | School 201 Enrichment | 2.3851112745 | $150,000 | $0 | $0.00 | | |
| ST | State School | 1.4761226122 | $150,000 | $0 | $0.00 | | |
| ST2 | State School Part 2 | 0.7953803475 | $150,000 | $0 | $0.00 | | |
| | Total Tax Rate: | 7.0932223185 | | | | | |
| | | | | Taxes w/Current Exemptions: | $0.00 | | |
| | | | | Taxes w/o Exemptions: | $1,063.98 | | |
Improvement / Building
Sketch
| No sketches available for this property. |
Property Image
Land
| 1 | 32 | AC (03.01-09.99) | 5.0000 | 217800.00 | 0.00 | 0.00 | 1.00 | $150,000 | $0 |
Roll Value History
| 2026 | N/A | N/A | N/A | N/A | N/A |
| 2025 | $0 | $150,000 | $0 | $150,000 | $0 |
| 2024 | $0 | $150,000 | $0 | $150,000 | $0 |
| 2023 | $0 | $150,000 | $0 | $150,000 | $0 |
| 2022 | $0 | $150,000 | $0 | $150,000 | $0 |
| 2021 | $0 | $120,000 | $0 | $120,000 | $0 |
| 2020 | $0 | $90,000 | $0 | $90,000 | $0 |
| 2019 | $0 | $120,000 | $0 | $120,000 | $120,000 |
| 2018 | $0 | $105,000 | $0 | $105,000 | $105,000 |
| 2017 | $0 | $105,000 | $0 | $105,000 | $105,000 |
| 2016 | $0 | $85,000 | $0 | $85,000 | $85,000 |
| 2015 | $0 | $33,400 | $0 | $33,400 | $33,400 |
| 2014 | $0 | $33,400 | $0 | $33,400 | $33,400 |
| 2013 | $0 | $33,400 | $0 | $33,400 | $33,400 |
| 2012 | $0 | $33,400 | $0 | $33,400 | $33,400 |
| 2011 | $0 | $33,400 | $0 | $33,400 | $33,400 |
| 2010 | $0 | $33,400 | $0 | $33,400 | $33,400 |
| 2009 | $0 | $35,800 | $0 | $35,800 | $35,800 |
| 2008 | $0 | $35,800 | $0 | $35,800 | $35,800 |
| 2007 | $0 | $35,800 | $0 | $35,800 | $35,800 |
Deed and Sales History
| 1 | 11/17/2020 | WD | Warranty Deed | CITY OF OAK HARBOR | CITY OF OAK HARBOR | | | $0.00 | 45736 | 4502612 |
| 2 | 11/12/2020 | WD | Warranty Deed | BUCHSIEB, LOUIS D | CITY OF OAK HARBOR | | | $40,000.00 | 45721 | 4502496 |
| 3 | 01/01/1993 | WD | Warranty Deed | BUCHSIEB, LOUIS D | BUCHSIEB, LOUIS D | | | $5,200.00 | 30355 | 93001889 |
| 4 | 09/01/1981 | TRUSTEED | Trustee's Deed | DANARD, CUSTOM H | BUCHSIEB, LOUIS D | | | $1.00 | 13024 | 388440 |
| 5 | 01/01/1900 | OTHER | Other - Misc. Documents | Unknown | DANARD, CUSTOM H | | | $0.00 | 0 | 0 |
Payout Agreement
| No payout information available.. |