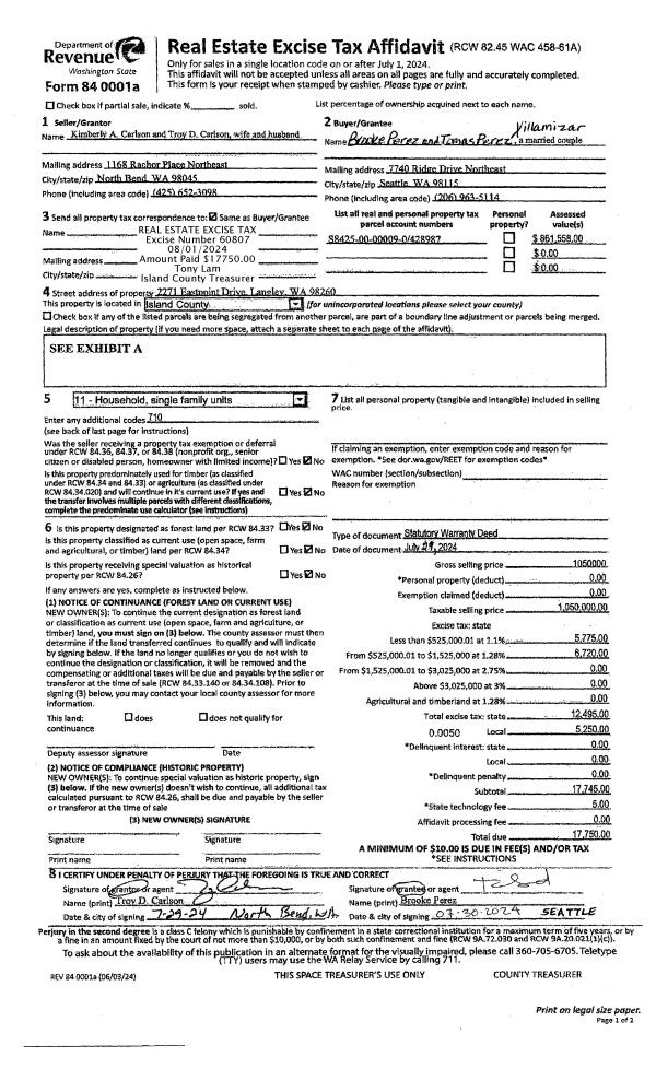
Property
Account |
| Property ID: | 428987 | Abbreviated Legal Description: | WHID SH LOT 9 INCL ADJ TIDES |
| Geographic ID: | S8425-00-00009-0 | Agent Code: | |
| Type: | Real | | |
| Tax Area: | 710 - APPRAISER-S Whid Schl Dist, outside Langley, improved & 1 acre or less | Land Use Code | 11 |
| Open Space: | N | DFL | N |
| Historic Property: | N | Remodel Property: | N |
| Multi-Family Redevelopment: | N | | |
| Township: | | Section: | |
| Range: | |
Location |
| Address: | 2271 EASTPOINT DR LANGLEY, WA 98260 | Mapsco: | |
| Neighborhood: | Cycle 3 | Map ID: | 372 |
| Neighborhood CD: | 3 |
Owner |
| Name: | PEREZ, BROOKE | Owner ID: | 313352 |
| Mailing Address: | TOMAS PEREZ XILLAMIZAR 7740 RIDGE DR NORTHEAST SEATTLE, WA 98115 | % Ownership: | 100.0000000000% |
| | | Exemptions: | |
Taxes and Assessment Details
Values
| (+) Improvement Homesite Value: | + | $0 | |
| (+) Improvement Non-Homesite Value: | + | $306,695 | |
| (+) Land Homesite Value: | + | $0 | |
| (+) Land Non-Homesite Value: | + | $650,500 | |
| (+) Curr Use (HS): | + | $0 | $0 |
| (+) Curr Use (NHS): | + | $0 | $0 |
| | | -------------------------- | |
| (=) Market Value: | = | $957,195 | |
| (–) Productivity Loss: | – | $0 | |
| | | -------------------------- | |
| (=) Subtotal: | = | $957,195 | |
| (+) Senior Appraised Value: | + | $0 | |
| (+) Non-Senior Appraised Value: | + | $957,195 | |
| | | -------------------------- | |
| (=) Total Appraised Value: | = | $957,195 | |
| (–) Senior Exemption Loss: | – | $0 | |
| (–) Exemption Loss: | – | $0 | |
| | | -------------------------- | |
| (=) Taxable Value: | = | $957,195 | |
Taxing Jurisdiction
| Owner: | PEREZ, BROOKE | | |
| % Ownership: | 100.0000000000% | | |
| Total Value: | $957,195 | | |
| Tax Area: | 710 - APPRAISER-S Whid Schl Dist, outside Langley, improved & 1 acre or less |
| CF | Conservation Futures | 0.0313996660 | $957,195 | $957,195 | $30.06 | | |
| FIRE3 | Fire & Rescue Dist #3 S Whidbey GEN | 1.2130821753 | $957,195 | $957,195 | $1,161.16 | | |
| HOBOND | Hospital BOND | 0.1893405597 | $957,195 | $957,195 | $181.24 | | |
| HOGEN | Hospital GEN | 0.3848777722 | $957,195 | $957,195 | $368.40 | | |
| CE | County Current Expense | 0.3674210519 | $957,195 | $957,195 | $351.69 | | |
| CR | County Roads | 0.4614296361 | $957,195 | $957,195 | $441.68 | | |
| ISLANDEMS | Hospital GEN (EMS) | 0.4952018576 | $957,195 | $957,195 | $474.00 | | |
| LIB | Library Sno-Isle GEN | 0.3039084203 | $957,195 | $957,195 | $290.90 | | |
| PORTWHID | Port of S Whidbey GEN | 0.1086004714 | $957,195 | $957,195 | $103.95 | | |
| SCH206BOND | School 206 BOND | 0.5960237832 | $957,195 | $957,195 | $570.51 | | |
| SCH206CAP | School 206 CP | 0.3066144020 | $957,195 | $957,195 | $293.49 | | |
| SCH206MO | School 206 Enrichment | 0.4808755445 | $957,195 | $957,195 | $460.29 | | |
| ST | State School | 1.4761226122 | $957,195 | $957,195 | $1,412.94 | | |
| ST2 | State School Part 2 | 0.7953803475 | $957,195 | $957,195 | $761.33 | | |
| SWHIDPRBD | P & R S Whidbey BOND | 0.0144185398 | $957,195 | $957,195 | $13.80 | | |
| SWHIDPRBD3 | P & R S Whidbey BOND3 | 0.1483535547 | $957,195 | $957,195 | $142.00 | | |
| SWHIDPRMT | P & R S Whidbey GEN | 0.4600000000 | $957,195 | $957,195 | $440.31 | | |
| | Total Tax Rate: | 7.8330503944 | | | | | |
| | | | | Taxes w/Current Exemptions: | $7,497.75 | | |
| | | | | Taxes w/o Exemptions: | $7,497.75 | | |
Improvement / Building
| Improvement #1: | RESIDENTIAL | State Code: | Y | 1127.7 sqft | Value: | $306,695 |
| Bathrooms: | 1.5 | Bedrooms: | 2 | | Ceiling: | BEAM PAINTED | Cooling: | HEAT PUMP/CONV/V | | Exterior Wall/Cover: | CEMENT FIBER | Floor Covering: | TILE CERAMIC | | Floor Structure: | WOOD W/SUBFLOOR | Foundation: | CONCRETE | | Interior Finish: | DRYWALL PAINT | Plumbing Fixture Cnt: | 9 | | Roof Slope: | 12" IN 12" | Roof Structure/Cover: | BEAM ASPHALT |
|
| | Type | Description | Class CD | Sub Class CD | Year Built | Area |
| | BAS | BASE/MAIN FLOOR | 4 | 0 | 1961 | 676.0 |
| | OWP | OPEN WOOD PORCH W/STEPS | 4 | 0 | 1961 | 636.0 |
| | OP4 | OPEN PORCH W/CEILING-ROOF | 4 | 0 | 1961 | 24.0 |
| | UPH | HALF STORY | 4 | 0 | 1961 | 451.7 |
| | UTY | STORAGE/UTILITY | 4 | 0 | 1961 | 40.0 |
| | OP1 | OPEN PORCH SLAB | 4 | 0 | 1961 | 183.0 |
Sketch
| No sketches available for this property. |
Property Image
Land
| 1 | LB | LOW BANK | 0.0000 | 0.00 | 50.00 | 0.00 | 1.00 | $650,000 | $0 |
| 2 | 55 | TIDES | 0.0000 | 0.00 | 50.00 | 0.00 | 1.00 | $500 | $0 |
Roll Value History
| 2026 | N/A | N/A | N/A | N/A | N/A |
| 2025 | $306,695 | $650,500 | $0 | $957,195 | $957,195 |
| 2024 | $211,058 | $650,500 | $0 | $861,558 | $861,558 |
| 2023 | $213,827 | $650,500 | $0 | $864,327 | $864,327 |
| 2022 | $196,129 | $650,500 | $0 | $846,629 | $846,629 |
| 2021 | $172,733 | $500,500 | $0 | $673,233 | $673,233 |
| 2020 | $168,184 | $500,500 | $0 | $668,684 | $668,684 |
| 2019 | $112,463 | $375,500 | $0 | $487,963 | $487,963 |
| 2018 | $112,832 | $375,500 | $0 | $488,332 | $488,332 |
| 2017 | $113,527 | $350,500 | $0 | $464,027 | $464,027 |
| 2016 | $115,000 | $350,500 | $0 | $465,500 | $465,500 |
| 2015 | $116,475 | $350,500 | $0 | $466,975 | $466,975 |
| 2014 | $117,950 | $350,500 | $0 | $468,450 | $468,450 |
| 2013 | $105,475 | $315,540 | $0 | $421,015 | $421,015 |
| 2012 | $77,606 | $315,540 | $0 | $393,146 | $393,146 |
| 2011 | $78,791 | $315,540 | $0 | $394,331 | $394,331 |
| 2010 | $87,350 | $350,597 | $0 | $437,947 | $437,947 |
| 2009 | $91,305 | $430,165 | $0 | $521,470 | $521,470 |
| 2008 | $92,600 | $509,732 | $0 | $602,332 | $602,332 |
| 2007 | $94,501 | $359,795 | $0 | $454,296 | $454,296 |
Deed and Sales History
| 1 | 07/29/2024 | WD | Warranty Deed | CARLSON, TROY D | PEREZ, BROOKE | | | $1,050,000.00 | 60807 | 4575314 |
| 2 | 11/28/2012 | WD | Warranty Deed | SORENSON, ORLIN G | CARLSON, TROY D | | | $599,000.00 | 9622 | 4328237 |
| 3 | 05/15/2007 | WD | Warranty Deed | SORENSON, ORLIN G | SORENSON, ORLIN G | | | $0.00 | 73416 | 4213896 |
| 4 | 05/15/2007 | WD | Warranty Deed | KAMM, RALPH F | SORENSON, ORLIN G | | | $612,000.00 | 71694 | 4202733 |
| 5 | 05/01/1997 | WD | Warranty Deed | GADBERRY, ERNEST L | KAMM, RALPH F | | | $264,000.00 | 71656 | 97009365 |
| 6 | 04/01/1986 | WD | Warranty Deed | ROBERTSON, JACK B | GADBERRY, ERNEST L | | | $102,000.00 | 60743 | 86003512 |
| 7 | 01/01/1900 | OTHER | Other - Misc. Documents | Unknown | ROBERTSON, JACK B | | | $0.00 | 0 | 0 |
Payout Agreement
| No payout information available.. |