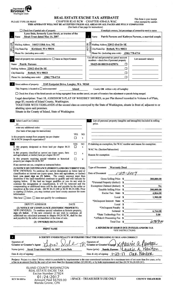
Property
Account |
| Property ID: | 429076 | Abbreviated Legal Description: | WHID SH LOT 18 INCL ADJ TIDES |
| Geographic ID: | S8425-00-00018-0 | Agent Code: | |
| Type: | Real | | |
| Tax Area: | 710 - APPRAISER-S Whid Schl Dist, outside Langley, improved & 1 acre or less | Land Use Code | 11 |
| Open Space: | N | DFL | N |
| Historic Property: | N | Remodel Property: | N |
| Multi-Family Redevelopment: | N | | |
| Township: | | Section: | |
| Range: | |
Location |
| Address: | 2245 EASTPOINT DR LANGLEY, WA 98260 | Mapsco: | |
| Neighborhood: | Cycle 3 | Map ID: | 372 |
| Neighborhood CD: | 3 |
Owner |
| Name: | PARSONS, PATRIK | Owner ID: | 278318 |
| Mailing Address: | KATHRYN PARSONS 18711 55TH AVE NE LK FOREST PK, WA 98155 | % Ownership: | 100.0000000000% |
| | | Exemptions: | |
Taxes and Assessment Details
Values
| (+) Improvement Homesite Value: | + | $0 | |
| (+) Improvement Non-Homesite Value: | + | $327,246 | |
| (+) Land Homesite Value: | + | $0 | |
| (+) Land Non-Homesite Value: | + | $650,500 | |
| (+) Curr Use (HS): | + | $0 | $0 |
| (+) Curr Use (NHS): | + | $0 | $0 |
| | | -------------------------- | |
| (=) Market Value: | = | $977,746 | |
| (–) Productivity Loss: | – | $0 | |
| | | -------------------------- | |
| (=) Subtotal: | = | $977,746 | |
| (+) Senior Appraised Value: | + | $0 | |
| (+) Non-Senior Appraised Value: | + | $977,746 | |
| | | -------------------------- | |
| (=) Total Appraised Value: | = | $977,746 | |
| (–) Senior Exemption Loss: | – | $0 | |
| (–) Exemption Loss: | – | $0 | |
| | | -------------------------- | |
| (=) Taxable Value: | = | $977,746 | |
Taxing Jurisdiction
| Owner: | PARSONS, PATRIK | | |
| % Ownership: | 100.0000000000% | | |
| Total Value: | $977,746 | | |
| Tax Area: | 710 - APPRAISER-S Whid Schl Dist, outside Langley, improved & 1 acre or less |
| CF | Conservation Futures | 0.0313996660 | $977,746 | $977,746 | $30.70 | | |
| FIRE3 | Fire & Rescue Dist #3 S Whidbey GEN | 1.2130821753 | $977,746 | $977,746 | $1,186.09 | | |
| HOBOND | Hospital BOND | 0.1893405597 | $977,746 | $977,746 | $185.13 | | |
| HOGEN | Hospital GEN | 0.3848777722 | $977,746 | $977,746 | $376.31 | | |
| CE | County Current Expense | 0.3674210519 | $977,746 | $977,746 | $359.24 | | |
| CR | County Roads | 0.4614296361 | $977,746 | $977,746 | $451.16 | | |
| ISLANDEMS | Hospital GEN (EMS) | 0.4952018576 | $977,746 | $977,746 | $484.18 | | |
| LIB | Library Sno-Isle GEN | 0.3039084203 | $977,746 | $977,746 | $297.15 | | |
| PORTWHID | Port of S Whidbey GEN | 0.1086004714 | $977,746 | $977,746 | $106.18 | | |
| SCH206BOND | School 206 BOND | 0.5960237832 | $977,746 | $977,746 | $582.76 | | |
| SCH206CAP | School 206 CP | 0.3066144020 | $977,746 | $977,746 | $299.79 | | |
| SCH206MO | School 206 Enrichment | 0.4808755445 | $977,746 | $977,746 | $470.17 | | |
| ST | State School | 1.4761226122 | $977,746 | $977,746 | $1,443.27 | | |
| ST2 | State School Part 2 | 0.7953803475 | $977,746 | $977,746 | $777.68 | | |
| SWHIDPRBD | P & R S Whidbey BOND | 0.0144185398 | $977,746 | $977,746 | $14.10 | | |
| SWHIDPRBD3 | P & R S Whidbey BOND3 | 0.1483535547 | $977,746 | $977,746 | $145.05 | | |
| SWHIDPRMT | P & R S Whidbey GEN | 0.4600000000 | $977,746 | $977,746 | $449.76 | | |
| | Total Tax Rate: | 7.8330503944 | | | | | |
| | | | | Taxes w/Current Exemptions: | $7,658.72 | | |
| | | | | Taxes w/o Exemptions: | $7,658.72 | | |
Improvement / Building
| Improvement #1: | RESIDENTIAL | State Code: | Y | 1416.0 sqft | Value: | $327,246 |
| Bathrooms: | 2 | Bedrooms: | 2 | | Ceiling: | BEAM PAINTED | Cooling: | HEAT PUMP/CONV/V | | Exterior Wall/Cover: | CEMENT FIBER | Floor Covering: | CARPET/VINYL 60-40 | | Floor Structure: | WOOD W/SUBFLOOR | Foundation: | CONCRETE | | Interior Finish: | DRYWALL PAINT | Plumbing Fixture Cnt: | 9 | | Roof Slope: | 5" IN 12" | Roof Structure/Cover: | CJ ALUMINIUM HEAVY |
|
| | Type | Description | Class CD | Sub Class CD | Year Built | Area |
| | BAS | BASE/MAIN FLOOR | 4 | 0 | 1968 | 1116.0 |
| | OWP | OPEN WOOD PORCH W/STEPS | 4 | 0 | 1968 | 365.8 |
| | UPS | UPPER STORY | 4 | 0 | 1968 | 300.0 |
| | OWP | OPEN WOOD PORCH W/STEPS | 4 | 0 | 1968 | 154.0 |
Sketch
Property Image
Land
| 1 | LB | LOW BANK | 0.0000 | 0.00 | 50.00 | 0.00 | 1.00 | $650,000 | $0 |
| 2 | 55 | TIDES | 0.0000 | 0.00 | 50.00 | 0.00 | 1.00 | $500 | $0 |
Roll Value History
| 2026 | N/A | N/A | N/A | N/A | N/A |
| 2025 | $327,246 | $650,500 | $0 | $977,746 | $977,746 |
| 2024 | $326,155 | $650,500 | $0 | $976,655 | $976,655 |
| 2023 | $330,026 | $650,500 | $0 | $980,526 | $980,526 |
| 2022 | $165,016 | $650,500 | $0 | $815,516 | $815,516 |
| 2021 | $104,006 | $500,500 | $0 | $604,506 | $604,506 |
| 2020 | $101,647 | $500,500 | $0 | $602,147 | $602,147 |
| 2019 | $67,474 | $375,500 | $0 | $442,974 | $442,974 |
| 2018 | $67,749 | $375,500 | $0 | $443,249 | $443,249 |
| 2017 | $68,301 | $350,500 | $0 | $418,801 | $418,801 |
| 2016 | $69,402 | $350,500 | $0 | $419,902 | $419,902 |
| 2015 | $70,504 | $350,500 | $0 | $421,004 | $421,004 |
| 2014 | $71,605 | $350,500 | $0 | $422,105 | $422,105 |
| 2013 | $67,942 | $315,540 | $0 | $383,482 | $383,482 |
| 2012 | $69,045 | $315,540 | $0 | $384,585 | $384,585 |
| 2011 | $70,146 | $315,540 | $0 | $385,686 | $385,686 |
| 2010 | $75,786 | $350,597 | $0 | $426,383 | $426,383 |
| 2009 | $78,025 | $430,165 | $0 | $508,190 | $508,190 |
| 2008 | $79,108 | $509,732 | $0 | $588,840 | $588,840 |
| 2007 | $80,191 | $359,795 | $0 | $439,986 | $439,986 |
Deed and Sales History
| 1 | 01/23/2017 | WD | Warranty Deed | STRAIT TTEE, LYNN M | PARSONS, PATRIK | | | $380,000.00 | 27824 | 4415690 |
| 2 | 05/16/2007 | QCD | Quit Claim Deed | STRAIT, LYNN M | STRAIT TTEE, LYNN M | | | $0.00 | 71758 | 4203008 |
| 3 | 12/01/1993 | EXECUTORD | Executor Deed | STORDAHL, FLORENCE M | STRAIT, LYNN M | | | $0.00 | 34748 | 93024796 |
| 4 | 12/01/1985 | EXECUTORD | Executor Deed | STORDAHL, HAROLD B | STORDAHL, FLORENCE M | | | $0.00 | 53505 | 85013885 |
Payout Agreement
| No payout information available.. |