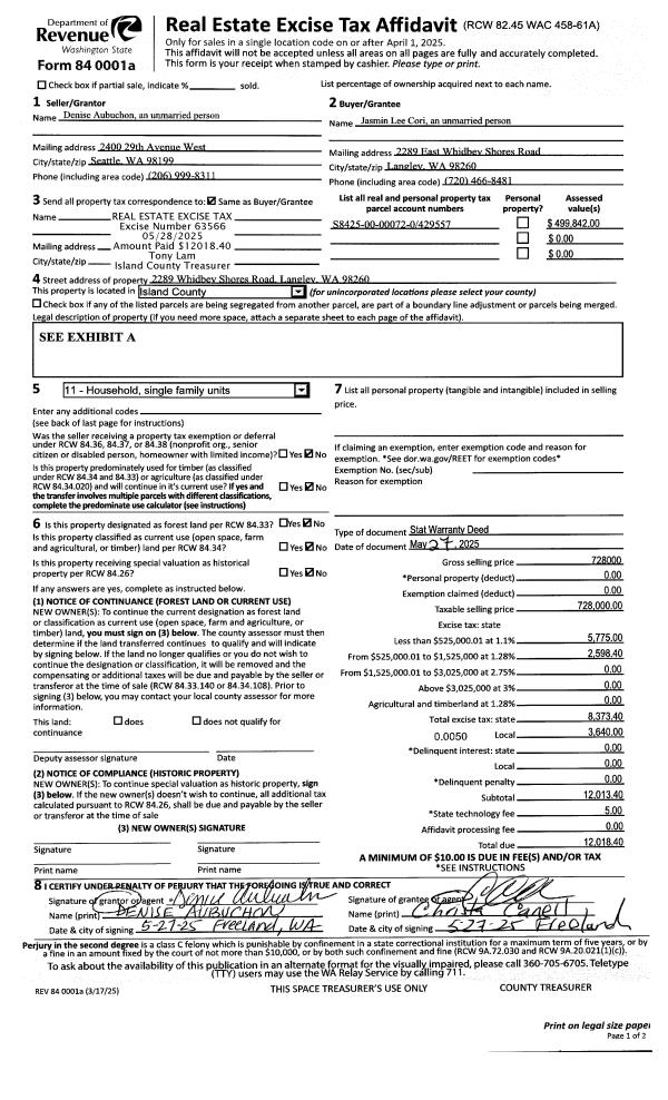
| 1 | 05/27/2025 | WD | Warranty Deed | AUBUCHON, DENISE | CORI, JASMIN LEE | | | $728,000.00 | 63566 | 4586255 |
| 2 | 06/08/2021 | WD | Warranty Deed | KETTLER, BRYAN THOMAS | AUBUCHON, DENISE | | | $655,000.00 | 48619 | 4521518 |
| 3 | 08/11/2020 | WD | Warranty Deed | HURLEY, EVAN DOUGLAS TAYLOR | KETTLER, BRYAN THOMAS | | | $560,000.00 | 44262 | 4493944 |
| 4 | 09/20/2017 | WD | Warranty Deed | STREHLAU, STEVEN B | HURLEY, EVAN DOUGLAS TAYLOR | | | $375,000.00 | 31340 | 4431271 |
| 5 | 04/15/2014 | SPWARDEED | Special Warranty Deed | FEDERAL NATIONAL MORTGAGE ASSOCIATION | STREHLAU, STEVEN B | | | $212,000.00 | 14990 | 4358219 |
| 6 | 12/12/2013 | WD | Warranty Deed | JOHN, CAROL A | FEDERAL NATIONAL MORTGAGE ASSOCIATION | | | $0.00 | 14320 | 4355425 |
| 7 | 03/30/2005 | WD | Warranty Deed | BEARDEMPHL, LORRAINE H | JOHN, CAROL A | | | $289,000.00 | 51410 | 4130360 |
| 8 | 02/06/2006 | BLA | DNU - Boundary Line Adjustment | BEARDEMPHL, ROBERT L | BEARDEMPHL, LORRAINE H | | | $0.00 | 70816 | 4107398 |
| 9 | 10/06/2004 | 5 | DNU - Marriage License/Name Change | BEARDEMPHL, LORRAINE H | BEARDEMPHL, LORRAINE H | | | $0.00 | 70375 | 0 |
| 10 | 07/17/2003 | BLA | DNU - Boundary Line Adjustment | BEARDEMPHL, ROBERT L | BEARDEMPHL, ROBERT L | | | $0.00 | 69946 | 20042615 |
| 11 | 05/01/1979 | TRUSTEED | Trustee's Deed | Unknown | BEARDEMPHL, ROBERT L | | | $48,500.00 | 92301 | 352342 |