Property
Account |
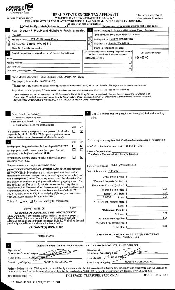
| Property ID: | 430046 | Abbreviated Legal Description: | WHID SH LOT 123 & W/2 OF LOT 122 |
| Geographic ID: | S8425-00-00123-0 | Agent Code: | |
| Type: | Real | | |
| Tax Area: | 710 - APPRAISER-S Whid Schl Dist, outside Langley, improved & 1 acre or less | Land Use Code | 11 |
| Open Space: | N | DFL | N |
| Historic Property: | N | Remodel Property: | N |
| Multi-Family Redevelopment: | N | | |
| Township: | | Section: | |
| Range: | |
Location |
| Address: | 2056 EASTPOINT DR LANGLEY, WA 98260 | Mapsco: | |
| Neighborhood: | Cycle 3 | Map ID: | 371 |
| Neighborhood CD: | 3 |
Owner |
| Name: | PROULX TTEE, GREGORY P | Owner ID: | 292989 |
| Mailing Address: | MICHELLE A PROULX PMB 90265 113 CHERRY ST SEATTLE, WA 98104 | % Ownership: | 100.0000000000% |
| | | Exemptions: | |
Taxes and Assessment Details
Values
| (+) Improvement Homesite Value: | + | $0 | |
| (+) Improvement Non-Homesite Value: | + | $675,258 | |
| (+) Land Homesite Value: | + | $0 | |
| (+) Land Non-Homesite Value: | + | $650,000 | |
| (+) Curr Use (HS): | + | $0 | $0 |
| (+) Curr Use (NHS): | + | $0 | $0 |
| | | -------------------------- | |
| (=) Market Value: | = | $1,325,258 | |
| (–) Productivity Loss: | – | $0 | |
| | | -------------------------- | |
| (=) Subtotal: | = | $1,325,258 | |
| (+) Senior Appraised Value: | + | $0 | |
| (+) Non-Senior Appraised Value: | + | $1,325,258 | |
| | | -------------------------- | |
| (=) Total Appraised Value: | = | $1,325,258 | |
| (–) Senior Exemption Loss: | – | $0 | |
| (–) Exemption Loss: | – | $0 | |
| | | -------------------------- | |
| (=) Taxable Value: | = | $1,325,258 | |
Taxing Jurisdiction
| Owner: | PROULX TTEE, GREGORY P | | |
| % Ownership: | 100.0000000000% | | |
| Total Value: | $1,325,258 | | |
| Tax Area: | 710 - APPRAISER-S Whid Schl Dist, outside Langley, improved & 1 acre or less |
| CF | Conservation Futures | 0.0313996660 | $1,325,258 | $1,325,258 | $41.61 | | |
| FIRE3 | Fire & Rescue Dist #3 S Whidbey GEN | 1.2130821753 | $1,325,258 | $1,325,258 | $1,607.65 | | |
| HOBOND | Hospital BOND | 0.1893405597 | $1,325,258 | $1,325,258 | $250.93 | | |
| HOGEN | Hospital GEN | 0.3848777722 | $1,325,258 | $1,325,258 | $510.06 | | |
| CE | County Current Expense | 0.3674210519 | $1,325,258 | $1,325,258 | $486.93 | | |
| CR | County Roads | 0.4614296361 | $1,325,258 | $1,325,258 | $611.51 | | |
| ISLANDEMS | Hospital GEN (EMS) | 0.4952018576 | $1,325,258 | $1,325,258 | $656.27 | | |
| LIB | Library Sno-Isle GEN | 0.3039084203 | $1,325,258 | $1,325,258 | $402.76 | | |
| PORTWHID | Port of S Whidbey GEN | 0.1086004714 | $1,325,258 | $1,325,258 | $143.92 | | |
| SCH206BOND | School 206 BOND | 0.5960237832 | $1,325,258 | $1,325,258 | $789.89 | | |
| SCH206CAP | School 206 CP | 0.3066144020 | $1,325,258 | $1,325,258 | $406.34 | | |
| SCH206MO | School 206 Enrichment | 0.4808755445 | $1,325,258 | $1,325,258 | $637.28 | | |
| ST | State School | 1.4761226122 | $1,325,258 | $1,325,258 | $1,956.24 | | |
| ST2 | State School Part 2 | 0.7953803475 | $1,325,258 | $1,325,258 | $1,054.08 | | |
| SWHIDPRBD | P & R S Whidbey BOND | 0.0144185398 | $1,325,258 | $1,325,258 | $19.11 | | |
| SWHIDPRBD3 | P & R S Whidbey BOND3 | 0.1483535547 | $1,325,258 | $1,325,258 | $196.61 | | |
| SWHIDPRMT | P & R S Whidbey GEN | 0.4600000000 | $1,325,258 | $1,325,258 | $609.62 | | |
| | Total Tax Rate: | 7.8330503944 | | | | | |
| | | | | Taxes w/Current Exemptions: | $10,380.81 | | |
| | | | | Taxes w/o Exemptions: | $10,380.81 | | |
Improvement / Building
| Improvement #1: | RESIDENTIAL | State Code: | Y | 2348.0 sqft | Value: | $675,258 |
| Bathrooms: | 2.5 | Bedrooms: | 2 | | Ceiling: | TONGUE & GROOVE | Cooling: | HEAT PUMP/CONV/V | | Exterior Wall/Cover: | SHINGLE | Floor Covering: | HARDWOOD/CARP 60-40 | | Floor Structure: | WOOD W/SUBFLOOR | Foundation: | CONCRETE | | Interior Finish: | DRYWALL PAINT | Plumbing Fixture Cnt: | 14 | | Roof Slope: | 6" IN 12" | Roof Structure/Cover: | CJ ALUMINIUM HEAVY |
|
| | Type | Description | Class CD | Sub Class CD | Year Built | Area |
| | BAS | BASE/MAIN FLOOR | 5 | 0 | 1993 | 1468.0 |
| | OP2 | OPEN PORCH W/STEPS | 5 | 0 | 1993 | 572.0 |
| | UPS | UPPER STORY | 5 | 0 | 1993 | 880.0 |
| | BAW | BALCONY WOOD RAIL | 5 | 0 | 1993 | 40.0 |
| | OWP | OPEN WOOD PORCH W/STEPS | 5 | 0 | 1993 | 244.0 |
| | OWP | OPEN WOOD PORCH W/STEPS | 5 | 0 | 1993 | 480.0 |
Sketch
| No sketches available for this property. |
Property Image
Land
| 1 | LB | LOW BANK | 0.0000 | 0.00 | 75.00 | 0.00 | 1.00 | $650,000 | $0 |
Roll Value History
| 2026 | N/A | N/A | N/A | N/A | N/A |
| 2025 | $675,258 | $650,000 | $0 | $1,325,258 | $1,325,258 |
| 2024 | $596,050 | $650,000 | $0 | $1,246,050 | $1,246,050 |
| 2023 | $603,477 | $650,000 | $0 | $1,253,477 | $1,253,477 |
| 2022 | $553,176 | $650,000 | $0 | $1,203,176 | $1,203,176 |
| 2021 | $486,868 | $500,000 | $0 | $986,868 | $986,868 |
| 2020 | $474,028 | $500,000 | $0 | $974,028 | $974,028 |
| 2019 | $366,083 | $500,000 | $0 | $866,083 | $866,083 |
| 2018 | $367,183 | $375,000 | $0 | $742,183 | $742,183 |
| 2017 | $369,381 | $350,000 | $0 | $719,381 | $719,381 |
| 2016 | $373,779 | $350,000 | $0 | $723,779 | $723,779 |
| 2015 | $337,111 | $350,000 | $0 | $687,111 | $687,111 |
| 2014 | $341,301 | $350,000 | $0 | $691,301 | $691,301 |
| 2013 | $404,774 | $445,100 | $0 | $849,874 | $849,874 |
| 2012 | $409,875 | $445,100 | $0 | $854,975 | $854,975 |
| 2011 | $414,973 | $445,100 | $0 | $860,073 | $860,073 |
| 2010 | $433,707 | $494,555 | $0 | $928,262 | $928,262 |
| 2009 | $452,537 | $606,953 | $0 | $1,059,490 | $1,059,490 |
| 2008 | $458,198 | $719,352 | $0 | $1,177,550 | $1,177,550 |
| 2007 | $462,887 | $508,043 | $0 | $970,930 | $970,930 |
Deed and Sales History
| 1 | 12/12/2019 | WD | Warranty Deed | PROULX, GREGORY P | PROULX TTEE, GREGORY P | | | $0.00 | 41581 | 4478055 |
| 2 | 06/09/2015 | WD | Warranty Deed | CLARK, ROGER F | PROULX, GREGORY P | | | $731,000.00 | 20002 | 4380237 |
| 3 | 10/11/2000 | WD | Warranty Deed | ADAMS, BENJAMIN H | CLARK, ROGER F | | | $510,000.00 | 3941 | 20018063 |
| 4 | 10/01/1991 | WD | Warranty Deed | MILLER, JOHN F | ADAMS, BENJAMIN H | | | $120,000.00 | 13893 | 91016669 |
| 5 | 08/01/1990 | OTHER | Other - Misc. Documents | MILLER, JOHN F | MILLER, JOHN F | | | $0.00 | 63778 | 90014445 |
| 6 | 10/01/1978 | OTHER | Other - Misc. Documents | Unknown | MILLER, JOHN F | | | $41,250.00 | 84832 | 340578 |
Payout Agreement
| No payout information available.. |