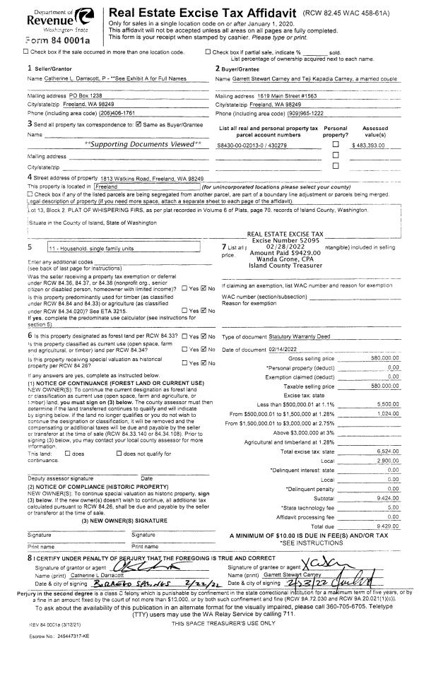
Property
Account |
| Property ID: | 430279 | Abbreviated Legal Description: | WHISP FIRS LOT 13 BLK 2 |
| Geographic ID: | S8430-00-02013-0 | Agent Code: | |
| Type: | Real | | |
| Tax Area: | 760 - APPRAISER-S Whid Schl Dist, Special District, improved & less than 1 acre | Land Use Code | 11 |
| Open Space: | N | DFL | N |
| Historic Property: | N | Remodel Property: | N |
| Multi-Family Redevelopment: | N | | |
| Township: | | Section: | |
| Range: | |
Location |
| Address: | 1813 WATKINS RD FREELAND, WA 98249 | Mapsco: | |
| Neighborhood: | Cycle 3 | Map ID: | 316 |
| Neighborhood CD: | 3 |
Owner |
| Name: | CARNEY, GARRETT STEWART | Owner ID: | 303323 |
| Mailing Address: | TEJI KAPADIA CARNEY 1813 WATKINS RD FREELAND, WA 98249 | % Ownership: | 100.0000000000% |
| | | Exemptions: | |
Taxes and Assessment Details
Values
| (+) Improvement Homesite Value: | + | $0 | |
| (+) Improvement Non-Homesite Value: | + | $373,350 | |
| (+) Land Homesite Value: | + | $0 | |
| (+) Land Non-Homesite Value: | + | $250,000 | |
| (+) Curr Use (HS): | + | $0 | $0 |
| (+) Curr Use (NHS): | + | $0 | $0 |
| | | -------------------------- | |
| (=) Market Value: | = | $623,350 | |
| (–) Productivity Loss: | – | $0 | |
| | | -------------------------- | |
| (=) Subtotal: | = | $623,350 | |
| (+) Senior Appraised Value: | + | $0 | |
| (+) Non-Senior Appraised Value: | + | $623,350 | |
| | | -------------------------- | |
| (=) Total Appraised Value: | = | $623,350 | |
| (–) Senior Exemption Loss: | – | $0 | |
| (–) Exemption Loss: | – | $0 | |
| | | -------------------------- | |
| (=) Taxable Value: | = | $623,350 | |
Taxing Jurisdiction
| Owner: | CARNEY, GARRETT STEWART | | |
| % Ownership: | 100.0000000000% | | |
| Total Value: | $623,350 | | |
| Tax Area: | 760 - APPRAISER-S Whid Schl Dist, Special District, improved & less than 1 acre |
| CF | Conservation Futures | 0.0313996660 | $623,350 | $623,350 | $19.57 | | |
| FIRE3 | Fire & Rescue Dist #3 S Whidbey GEN | 1.2130821753 | $623,350 | $623,350 | $756.17 | | |
| HOBOND | Hospital BOND | 0.1893405597 | $623,350 | $623,350 | $118.03 | | |
| HOGEN | Hospital GEN | 0.3848777722 | $623,350 | $623,350 | $239.91 | | |
| CE | County Current Expense | 0.3674210519 | $623,350 | $623,350 | $229.03 | | |
| CR | County Roads | 0.4614296361 | $623,350 | $623,350 | $287.63 | | |
| ISLANDEMS | Hospital GEN (EMS) | 0.4952018576 | $623,350 | $623,350 | $308.68 | | |
| LIB | Library Sno-Isle GEN | 0.3039084203 | $623,350 | $623,350 | $189.44 | | |
| PORTWHID | Port of S Whidbey GEN | 0.1086004714 | $623,350 | $623,350 | $67.70 | | |
| SCH206BOND | School 206 BOND | 0.5960237832 | $623,350 | $623,350 | $371.53 | | |
| SCH206CAP | School 206 CP | 0.3066144020 | $623,350 | $623,350 | $191.13 | | |
| SCH206MO | School 206 Enrichment | 0.4808755445 | $623,350 | $623,350 | $299.75 | | |
| ST | State School | 1.4761226122 | $623,350 | $623,350 | $920.14 | | |
| ST2 | State School Part 2 | 0.7953803475 | $623,350 | $623,350 | $495.80 | | |
| SWHIDPRBD | P & R S Whidbey BOND | 0.0144185398 | $623,350 | $623,350 | $8.99 | | |
| SWHIDPRBD3 | P & R S Whidbey BOND3 | 0.1483535547 | $623,350 | $623,350 | $92.48 | | |
| SWHIDPRMT | P & R S Whidbey GEN | 0.4600000000 | $623,350 | $623,350 | $286.74 | | |
| | Total Tax Rate: | 7.8330503944 | | | | | |
| | | | | Taxes w/Current Exemptions: | $4,882.72 | | |
| | | | | Taxes w/o Exemptions: | $4,882.72 | | |
Improvement / Building
| Improvement #1: | RESIDENTIAL | State Code: | Y | 1823.7 sqft | Value: | $373,350 |
| Bathrooms: | 2 | Bedrooms: | 3 | | Ceiling: | DRYWALL PAINTED | Cooling: | HEAT PUMP/CONV/V | | Exterior Wall/Cover: | CEMENT FIBER | Floor Covering: | HARDWOOD 100% | | Floor Structure: | WOOD W/SUBFLOOR | Foundation: | CONCRETE | | Interior Finish: | DRYWALL PAINT | Plumbing Fixture Cnt: | 12 | | Roof Slope: | 6" IN 12" | Roof Structure/Cover: | CJ ASPHALT |
|
| | Type | Description | Class CD | Sub Class CD | Year Built | Area |
| | BAS | BASE/MAIN FLOOR | 3 | 0 | 2006 | 1823.7 |
| | OWC | OPEN WOOD PORCH W/STEPS/ROOF/C | 3 | 0 | 2006 | 82.0 |
| | AGR | ATTACHED GARAGE | 3 | 0 | 2006 | 235.0 |
| | UTY | STORAGE/UTILITY | 3 | 0 | 2006 | 148.0 |
| | OWP | OPEN WOOD PORCH W/STEPS | 3 | 0 | 2006 | 81.2 |
| | OWC | OPEN WOOD PORCH W/STEPS/ROOF/C | 3 | 0 | 2006 | 372.6 |
Sketch
Property Image
Land
| 1 | 13 | SQ (06001-08000) | 0.1700 | 7405.20 | 0.00 | 0.00 | 1.00 | $250,000 | $0 |
Roll Value History
| 2026 | N/A | N/A | N/A | N/A | N/A |
| 2025 | $373,350 | $250,000 | $0 | $623,350 | $623,350 |
| 2024 | $377,730 | $230,000 | $0 | $607,730 | $607,730 |
| 2023 | $382,109 | $200,000 | $0 | $582,109 | $582,109 |
| 2022 | $390,488 | $210,000 | $0 | $600,488 | $600,488 |
| 2021 | $343,393 | $140,000 | $0 | $483,393 | $483,393 |
| 2020 | $333,160 | $115,000 | $0 | $448,160 | $448,160 |
| 2019 | $241,157 | $170,000 | $0 | $411,157 | $411,157 |
| 2018 | $241,841 | $130,000 | $0 | $371,841 | $371,841 |
| 2017 | $243,146 | $120,000 | $0 | $363,146 | $363,146 |
| 2016 | $245,881 | $90,000 | $0 | $335,881 | $335,881 |
| 2015 | $248,610 | $85,000 | $0 | $333,610 | $333,610 |
| 2014 | $251,343 | $70,000 | $0 | $321,343 | $321,343 |
| 2013 | $264,803 | $52,000 | $0 | $316,803 | $316,803 |
| 2012 | $267,562 | $53,550 | $0 | $321,112 | $321,112 |
| 2011 | $270,320 | $63,000 | $0 | $333,320 | $333,320 |
| 2010 | $280,312 | $63,000 | $0 | $343,312 | $343,312 |
| 2009 | $291,931 | $89,661 | $0 | $381,592 | $381,592 |
| 2008 | $292,525 | $89,661 | $0 | $382,186 | $382,186 |
| 2007 | $291,416 | $89,661 | $0 | $381,077 | $381,077 |
Deed and Sales History
| 1 | 02/14/2022 | WD | Warranty Deed | BONNAR-DAVIS, SUSAN | CARNEY, GARRETT STEWART | | | $580,000.00 | 52095 | 4540516 |
| 2 | 01/16/2014 | ESTSEPPROP | Establish Separate Property | BONNAR-DAVIS, SUSAN | BONNAR-DAVIS, SUSAN | | | $0.00 | 14033 | 4354006 |
| 3 | 03/07/2007 | WD | Warranty Deed | CULTUS BAY INC, | BONNAR-DAVIS, SUSAN | | | $399,000.00 | 70798 | 4196060 |
| 4 | 04/09/2005 | ESTSEPPROP | Establish Separate Property | CULTUS BAY INC, | CULTUS BAY INC, | | | $10.00 | 51927 | 4133162 |
| 5 | 11/30/2004 | WD | Warranty Deed | NDDS, LLC, | CULTUS BAY INC, | | | $5,498.00 | 45711 | 4120085 |
| 6 | 11/05/2004 | 5 | DNU - Marriage License/Name Change | WATKINS, H J | NDDS, LLC, | | | $0.00 | 45260 | 4117543 |
| 7 | 07/01/1995 | OTHER | Other - Misc. Documents | WATKINS, H J | WATKINS, H J | | | $0.00 | 66538 | 0 |
| 8 | 02/01/1995 | QCD | Quit Claim Deed | WATKINS, H J | WATKINS, H J | | | $0.00 | 50747 | 95003459 |
| 9 | 02/01/1984 | QCD | Quit Claim Deed | WATKINS, H J | WATKINS, H J | | | $0.00 | 42909 | 84004007 |
| 10 | 01/01/1900 | OTHER | Other - Misc. Documents | Unknown | WATKINS, H J | | | $0.00 | 0 | 0 |
Payout Agreement
| No payout information available.. |