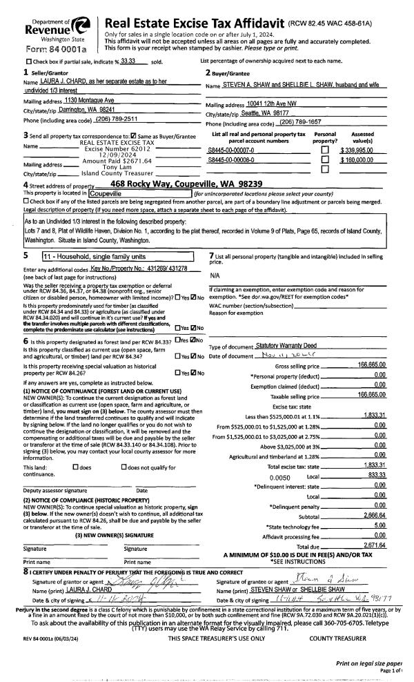
Property
Account |
| Property ID: | 431269 | Abbreviated Legal Description: | WILDLIFE HAVEN LOT 7 |
| Geographic ID: | S8445-00-00007-0 | Agent Code: | |
| Type: | Real | | |
| Tax Area: | 312 - APPRAISER-Cpvl Schl Dist, outside Cpvl, improved, greater than 1 acre | Land Use Code | 11 |
| Open Space: | N | DFL | N |
| Historic Property: | N | Remodel Property: | N |
| Multi-Family Redevelopment: | N | | |
| Township: | | Section: | |
| Range: | |
Location |
| Address: | 468 ROCKY WAY COUPEVILLE, WA 98239 | Mapsco: | |
| Neighborhood: | Cycle 3 | Map ID: | 357 |
| Neighborhood CD: | 3 |
Owner |
| Name: | SHAW, STEVEN A | Owner ID: | 314769 |
| Mailing Address: | SHELLBIE L SHAW DARLEEN C SHAW 10041 12TH AVE NW SEATTLE, WA 98177 | % Ownership: | 100.0000000000% |
| | | Exemptions: | |
Taxes and Assessment Details
Values
| (+) Improvement Homesite Value: | + | $0 | |
| (+) Improvement Non-Homesite Value: | + | $66,165 | |
| (+) Land Homesite Value: | + | $0 | |
| (+) Land Non-Homesite Value: | + | $310,000 | |
| (+) Curr Use (HS): | + | $0 | $0 |
| (+) Curr Use (NHS): | + | $0 | $0 |
| | | -------------------------- | |
| (=) Market Value: | = | $376,165 | |
| (–) Productivity Loss: | – | $0 | |
| | | -------------------------- | |
| (=) Subtotal: | = | $376,165 | |
| (+) Senior Appraised Value: | + | $0 | |
| (+) Non-Senior Appraised Value: | + | $376,165 | |
| | | -------------------------- | |
| (=) Total Appraised Value: | = | $376,165 | |
| (–) Senior Exemption Loss: | – | $0 | |
| (–) Exemption Loss: | – | $0 | |
| | | -------------------------- | |
| (=) Taxable Value: | = | $376,165 | |
Taxing Jurisdiction
| Owner: | SHAW, STEVEN A | | |
| % Ownership: | 100.0000000000% | | |
| Total Value: | $376,165 | | |
| Tax Area: | 312 - APPRAISER-Cpvl Schl Dist, outside Cpvl, improved, greater than 1 acre |
| CF | Conservation Futures | 0.0313996660 | $376,165 | $376,165 | $11.81 | | |
| CEM2 | Cemetery #2 | 0.0092609791 | $376,165 | $376,165 | $3.48 | | |
| FIRE5 | Fire & Rescue Dist #5 C Whidbey GEN | 1.1892169230 | $376,165 | $376,165 | $447.34 | | |
| FIRE5BOND | Fire & Rescue Dist #5 C Whidbey BOND | 0.1394359503 | $376,165 | $376,165 | $52.45 | | |
| HOBOND | Hospital BOND | 0.1893405597 | $376,165 | $376,165 | $71.22 | | |
| HOGEN | Hospital GEN | 0.3848777722 | $376,165 | $376,165 | $144.78 | | |
| CE | County Current Expense | 0.3674210519 | $376,165 | $376,165 | $138.21 | | |
| CR | County Roads | 0.4614296361 | $376,165 | $376,165 | $173.57 | | |
| ISLANDEMS | Hospital GEN (EMS) | 0.4952018576 | $376,165 | $376,165 | $186.28 | | |
| LIB | Library Sno-Isle GEN | 0.3039084203 | $376,165 | $376,165 | $114.32 | | |
| LIBCAP | Library Sno-Isle BOND (Cap Fac Imp Area) | 0.0528562629 | $376,165 | $376,165 | $19.88 | | |
| POCOUP | Port of Coupeville GEN | 0.1065226063 | $376,165 | $376,165 | $40.07 | | |
| POCOUPIDD | Port of Coupeville IDD | 0.3353038577 | $376,165 | $376,165 | $126.13 | | |
| COUPSDTECH | School 204 CP (TECH) | 0.1215123397 | $376,165 | $376,165 | $45.71 | | |
| SCH204MO | School 204 Enrichment | 0.6416662518 | $376,165 | $376,165 | $241.37 | | |
| ST | State School | 1.4761226122 | $376,165 | $376,165 | $555.27 | | |
| ST2 | State School Part 2 | 0.7953803475 | $376,165 | $376,165 | $299.19 | | |
| | Total Tax Rate: | 7.1008570943 | | | | | |
| | | | | Taxes w/Current Exemptions: | $2,671.08 | | |
| | | | | Taxes w/o Exemptions: | $2,671.08 | | |
Improvement / Building
| Improvement #1: | RESIDENTIAL | State Code: | Y | 546.0 sqft | Value: | $66,165 |
| Bathrooms: | 1 | Bedrooms: | 1 | | Ceiling: | TONGUE & GROOVE | Exterior Wall/Cover: | WOOD SIDING | | Floor Covering: | VINYL 100% | Floor Structure: | WOOD W/SUBFLOOR | | Foundation: | SLAB | Heating: | (NONE) | | Interior Finish: | DRYWALL PAINT | Plumbing Fixture Cnt: | 1 | | Roof Slope: | 4" IN 12" | Roof Structure/Cover: | CJ ASPHALT |
|
| | Type | Description | Class CD | Sub Class CD | Year Built | Area |
| | BAS | BASE/MAIN FLOOR | 2 | 0 | 1998 | 546.0 |
| | UTY | STORAGE/UTILITY | 2 | 0 | 1998 | 192.0 |
Sketch
Property Image
Land
| 1 | 18 | AC (02.01-03.00) | 2.3700 | 103237.20 | 0.00 | 0.00 | 1.00 | $310,000 | $0 |
Roll Value History
| 2026 | N/A | N/A | N/A | N/A | N/A |
| 2025 | $66,165 | $310,000 | $0 | $376,165 | $376,165 |
| 2024 | $69,995 | $270,000 | $0 | $339,995 | $339,995 |
| 2023 | $70,938 | $250,000 | $0 | $320,938 | $320,938 |
| 2022 | $65,091 | $240,000 | $0 | $305,091 | $305,091 |
| 2021 | $57,342 | $170,000 | $0 | $227,342 | $227,342 |
| 2020 | $56,245 | $130,000 | $0 | $186,245 | $186,245 |
| 2019 | $22,883 | $200,000 | $0 | $222,883 | $222,883 |
| 2018 | $22,883 | $155,000 | $0 | $177,883 | $177,883 |
| 2017 | $22,883 | $115,000 | $0 | $137,883 | $137,883 |
| 2016 | $22,883 | $120,000 | $0 | $142,883 | $142,883 |
| 2015 | $22,883 | $100,000 | $0 | $122,883 | $122,883 |
| 2014 | $22,883 | $95,000 | $0 | $117,883 | $117,883 |
| 2013 | $26,883 | $100,000 | $0 | $126,883 | $126,883 |
| 2012 | $26,883 | $103,700 | $0 | $130,583 | $130,583 |
| 2011 | $26,883 | $122,000 | $0 | $148,883 | $148,883 |
| 2010 | $26,883 | $122,000 | $0 | $148,883 | $148,883 |
| 2009 | $27,392 | $124,000 | $0 | $151,392 | $151,392 |
| 2008 | $27,898 | $96,520 | $0 | $124,418 | $124,418 |
| 2007 | $28,408 | $88,000 | $0 | $116,408 | $116,408 |
Deed and Sales History
| 1 | 11/11/2024 | WD | Warranty Deed | CHARD, LAURA J | SHAW, STEVEN A | | | $166,665.00 | 62012 | 4580167 |
|   | |
| 2 | 04/03/2023 | LACPROBATE | Lack of Probate | SHAW, ROBERT A | SHAW, DARLEEN C | | | $0.00 | 62007 | 4559575 |
| 3 | 02/08/2023 | LACPROBATE | Lack of Probate | SHAW, JEANNE E | SHAW, ROBERT A | | | $0.00 | 62006 | 4559574 |
| 4 | 12/06/2024 | LACPROBATE | Lack of Probate | SHAW, MALCOLM ROBERT | SHAW, JEANNE E | | | $0.00 | 62002 | 4559573 |
| 5 | 08/01/1981 | REC | Real Estate Contract | TOURTELLOT, PAUL C | SHAW, MALCOLM R | | | $31,720.00 | 12671 | 387278 |
| 6 | 01/01/1900 | OTHER | Other - Misc. Documents | Unknown | TOURTELLOT, PAUL C | | | $0.00 | 0 | 0 |
Payout Agreement
| No payout information available.. |