Property
Account |
| Property ID: | 431278 | Abbreviated Legal Description: | WILDLIFE HAVEN LOT 8 |
| Geographic ID: | S8445-00-00008-0 | Agent Code: | |
| Type: | Real | | |
| Tax Area: | 319 - APPRAISER-Cpvl Schl Dist, outside Cpvl, vacant & 50 acres or less | Land Use Code | 99 |
| Open Space: | N | DFL | N |
| Historic Property: | N | Remodel Property: | N |
| Multi-Family Redevelopment: | N | | |
| Township: | | Section: | |
| Range: | |
Location |
| Address: | | Mapsco: | |
| Neighborhood: | Cycle 3 | Map ID: | 357 |
| Neighborhood CD: | 3 |
Owner |
| Name: | SHAW, STEVEN A | Owner ID: | 314769 |
| Mailing Address: | SHELLBIE L SHAW DARLEEN C SHAW 10041 12TH AVE NW SEATTLE, WA 98177 | % Ownership: | 100.0000000000% |
| | | Exemptions: | |
Taxes and Assessment Details
Values
| (+) Improvement Homesite Value: | + | $0 | |
| (+) Improvement Non-Homesite Value: | + | $0 | |
| (+) Land Homesite Value: | + | $0 | |
| (+) Land Non-Homesite Value: | + | $160,000 | |
| (+) Curr Use (HS): | + | $0 | $0 |
| (+) Curr Use (NHS): | + | $0 | $0 |
| | | -------------------------- | |
| (=) Market Value: | = | $160,000 | |
| (–) Productivity Loss: | – | $0 | |
| | | -------------------------- | |
| (=) Subtotal: | = | $160,000 | |
| (+) Senior Appraised Value: | + | $0 | |
| (+) Non-Senior Appraised Value: | + | $160,000 | |
| | | -------------------------- | |
| (=) Total Appraised Value: | = | $160,000 | |
| (–) Senior Exemption Loss: | – | $0 | |
| (–) Exemption Loss: | – | $0 | |
| | | -------------------------- | |
| (=) Taxable Value: | = | $160,000 | |
Taxing Jurisdiction
| Owner: | SHAW, STEVEN A | | |
| % Ownership: | 100.0000000000% | | |
| Total Value: | $160,000 | | |
| Tax Area: | 319 - APPRAISER-Cpvl Schl Dist, outside Cpvl, vacant & 50 acres or less |
| CF | Conservation Futures | 0.0313996660 | $160,000 | $160,000 | $5.02 | | |
| CEM2 | Cemetery #2 | 0.0092609791 | $160,000 | $160,000 | $1.48 | | |
| HOBOND | Hospital BOND | 0.1893405597 | $160,000 | $160,000 | $30.29 | | |
| HOGEN | Hospital GEN | 0.3848777722 | $160,000 | $160,000 | $61.58 | | |
| CE | County Current Expense | 0.3674210519 | $160,000 | $160,000 | $58.79 | | |
| CR | County Roads | 0.4614296361 | $160,000 | $160,000 | $73.83 | | |
| ISLANDEMS | Hospital GEN (EMS) | 0.4952018576 | $160,000 | $160,000 | $79.23 | | |
| LIB | Library Sno-Isle GEN | 0.3039084203 | $160,000 | $160,000 | $48.63 | | |
| LIBCAP | Library Sno-Isle BOND (Cap Fac Imp Area) | 0.0528562629 | $160,000 | $160,000 | $8.46 | | |
| POCOUP | Port of Coupeville GEN | 0.1065226063 | $160,000 | $160,000 | $17.04 | | |
| POCOUPIDD | Port of Coupeville IDD | 0.3353038577 | $160,000 | $160,000 | $53.65 | | |
| COUPSDTECH | School 204 CP (TECH) | 0.1215123397 | $160,000 | $160,000 | $19.44 | | |
| SCH204MO | School 204 Enrichment | 0.6416662518 | $160,000 | $160,000 | $102.67 | | |
| ST | State School | 1.4761226122 | $160,000 | $160,000 | $236.18 | | |
| ST2 | State School Part 2 | 0.7953803475 | $160,000 | $160,000 | $127.26 | | |
| | Total Tax Rate: | 5.7722042210 | | | | | |
| | | | | Taxes w/Current Exemptions: | $923.55 | | |
| | | | | Taxes w/o Exemptions: | $923.55 | | |
Improvement / Building
Sketch
| No sketches available for this property. |
Property Image
Land
| 1 | 18 | AC (02.01-03.00) | 2.0500 | 89298.00 | 0.00 | 0.00 | 1.00 | $160,000 | $0 |
Roll Value History
| 2026 | N/A | N/A | N/A | N/A | N/A |
| 2025 | $0 | $160,000 | $0 | $160,000 | $160,000 |
| 2024 | $0 | $160,000 | $0 | $160,000 | $160,000 |
| 2023 | $0 | $150,000 | $0 | $150,000 | $150,000 |
| 2022 | $0 | $150,000 | $0 | $150,000 | $150,000 |
| 2021 | $0 | $115,000 | $0 | $115,000 | $115,000 |
| 2020 | $0 | $90,000 | $0 | $90,000 | $90,000 |
| 2019 | $0 | $110,000 | $0 | $110,000 | $110,000 |
| 2018 | $0 | $85,000 | $0 | $85,000 | $85,000 |
| 2017 | $0 | $75,000 | $0 | $75,000 | $75,000 |
| 2016 | $0 | $100,000 | $0 | $100,000 | $100,000 |
| 2015 | $0 | $80,000 | $0 | $80,000 | $80,000 |
| 2014 | $0 | $80,000 | $0 | $80,000 | $80,000 |
| 2013 | $0 | $55,000 | $0 | $55,000 | $55,000 |
| 2012 | $0 | $42,700 | $0 | $42,700 | $42,700 |
| 2011 | $0 | $42,700 | $0 | $42,700 | $42,700 |
| 2010 | $0 | $42,700 | $0 | $42,700 | $42,700 |
| 2009 | $0 | $54,250 | $0 | $54,250 | $54,250 |
| 2008 | $0 | $66,040 | $0 | $66,040 | $66,040 |
| 2007 | $0 | $50,000 | $0 | $50,000 | $50,000 |
Deed and Sales History
| 1 | 11/11/2024 | WD | Warranty Deed | CHARD, LAURA J | SHAW, STEVEN A | | | $166,665.00 | 62012 | 4580167 |
|   | |
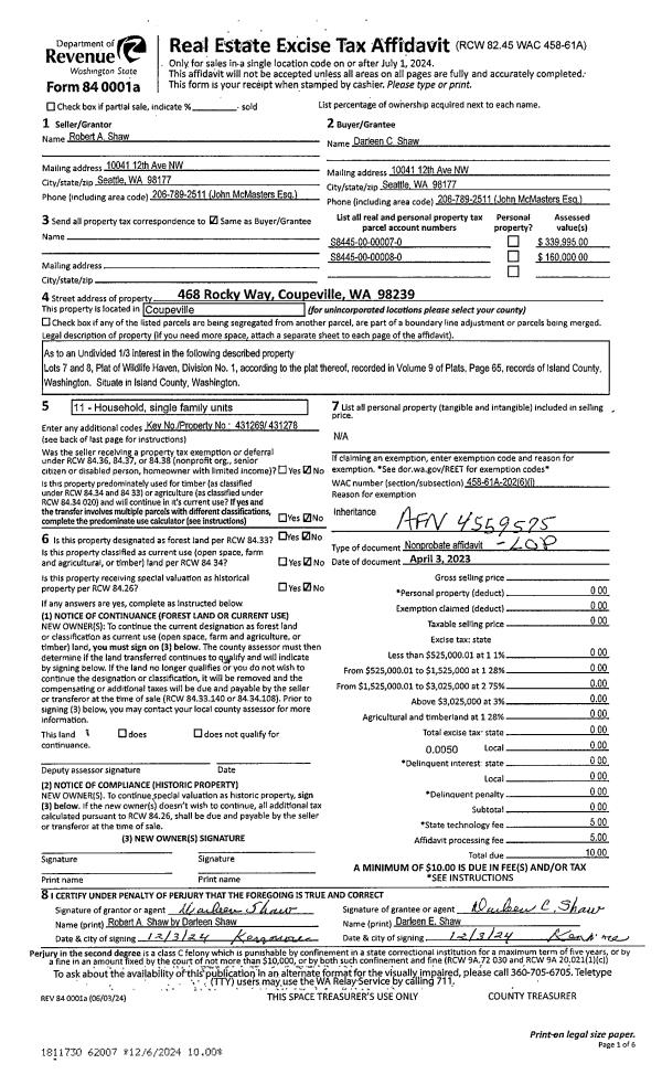
| 2 | 04/03/2023 | LACPROBATE | Lack of Probate | SHAW, ROBERT A | SHAW, DARLEEN C | | | $0.00 | 62007 | 4559575 |
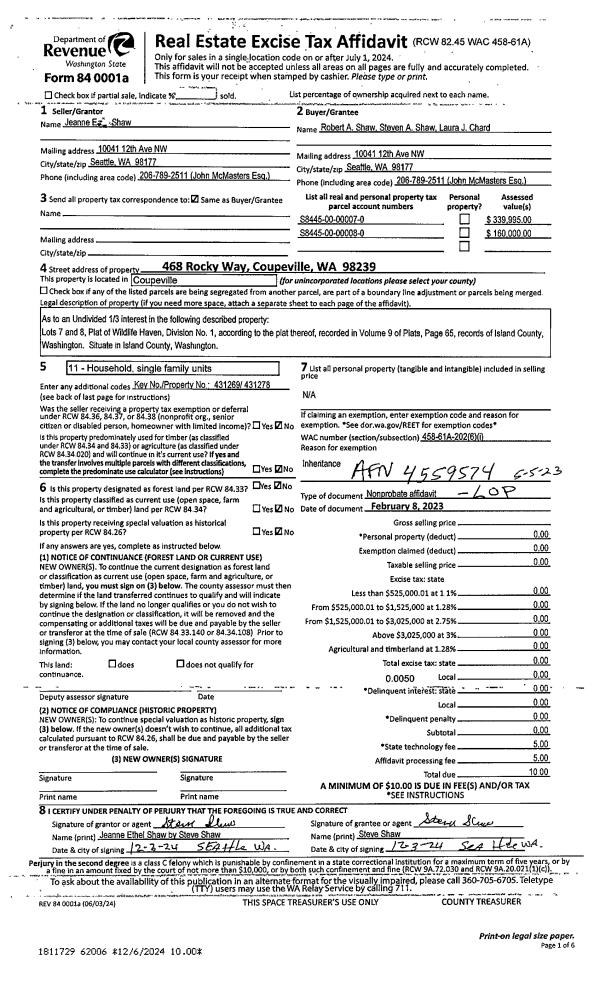
| 3 | 02/08/2023 | LACPROBATE | Lack of Probate | SHAW, JEANNE E | SHAW, ROBERT A | | | $0.00 | 62006 | 4559574 |
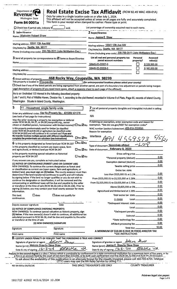
| 4 | 12/06/2024 | LACPROBATE | Lack of Probate | SHAW, MALCOLM ROBERT | SHAW, JEANNE E | | | $0.00 | 62002 | 4559573 |
| 5 | 02/09/2001 | WD | Warranty Deed | SHAW LLC, JEANNE E | SHAW ETAL, ROBERT A | | | $0.00 | 10517 | 20025763 |
| 6 | 10/12/1999 | QCD | Quit Claim Deed | SHAW, MALCOLM R | SHAW LLC, JEANNE E | | | $0.00 | 94469 | 99024344 |
| 7 | 08/01/1981 | REC | Real Estate Contract | TOURTELLOT, PAUL C | SHAW, MALCOLM R | | | $20,280.00 | 12671 | 387278 |
| 8 | 01/01/1900 | OTHER | Other - Misc. Documents | Unknown | TOURTELLOT, PAUL C | | | $0.00 | 0 | 0 |
Payout Agreement
| No payout information available.. |