Property
Account |
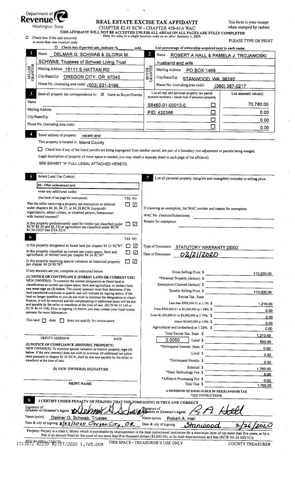
| Property ID: | 432366 | Abbreviated Legal Description: | WILKES GARY 1ST LOT 13 INCL ADJ TIDES |
| Geographic ID: | S8460-01-00013-0 | Agent Code: | |
| Type: | Real | | |
| Tax Area: | 549 - APPRAISER-Stan/Cam Schl Dist, Special Dist, vacant & 50 acres or less | Land Use Code | 99 |
| Open Space: | N | DFL | N |
| Historic Property: | N | Remodel Property: | N |
| Multi-Family Redevelopment: | N | | |
| Township: | | Section: | |
| Range: | |
Location |
| Address: | 4812 SOUTH CAMANO DR CAMANO ISLAND, WA 98282 | Mapsco: | |
| Neighborhood: | 58RscamWF-South Cam | Map ID: | 892 |
| Neighborhood CD: | 58RscamWF |
Owner |
| Name: | HALL, ROBERT | Owner ID: | 304302 |
| Mailing Address: | PO BOX 1469 STANWOOD, WA 98292 | % Ownership: | 100.0000000000% |
| | | Exemptions: | |
Taxes and Assessment Details
Values
| (+) Improvement Homesite Value: | + | $0 | |
| (+) Improvement Non-Homesite Value: | + | $0 | |
| (+) Land Homesite Value: | + | $0 | |
| (+) Land Non-Homesite Value: | + | $225,780 | |
| (+) Curr Use (HS): | + | $0 | $0 |
| (+) Curr Use (NHS): | + | $0 | $0 |
| | | -------------------------- | |
| (=) Market Value: | = | $225,780 | |
| (–) Productivity Loss: | – | $0 | |
| | | -------------------------- | |
| (=) Subtotal: | = | $225,780 | |
| (+) Senior Appraised Value: | + | $0 | |
| (+) Non-Senior Appraised Value: | + | $225,780 | |
| | | -------------------------- | |
| (=) Total Appraised Value: | = | $225,780 | |
| (–) Senior Exemption Loss: | – | $0 | |
| (–) Exemption Loss: | – | $0 | |
| | | -------------------------- | |
| (=) Taxable Value: | = | $225,780 | |
Taxing Jurisdiction
| Owner: | HALL, ROBERT | | |
| % Ownership: | 100.0000000000% | | |
| Total Value: | $225,780 | | |
| Tax Area: | 549 - APPRAISER-Stan/Cam Schl Dist, Special Dist, vacant & 50 acres or less |
| CF | Conservation Futures | 0.0313996660 | $225,780 | $225,780 | $7.09 | | |
| EMS1 | Fire & Rescue Dist #1 Camano GEN (EMS) | 0.4998471806 | $225,780 | $225,780 | $112.86 | | |
| CE | County Current Expense | 0.3674210519 | $225,780 | $225,780 | $82.96 | | |
| CR | County Roads | 0.4614296361 | $225,780 | $225,780 | $104.18 | | |
| LIB | Library Sno-Isle GEN | 0.3039084203 | $225,780 | $225,780 | $68.62 | | |
| SCH205_401 | School 205-401 Enrichment | 1.3697998934 | $225,780 | $225,780 | $309.27 | | |
| SCH205BOND | School 205-401 BOND | 0.9354199323 | $225,780 | $225,780 | $211.20 | | |
| ST | State School | 1.4761226122 | $225,780 | $225,780 | $333.28 | | |
| ST2 | State School Part 2 | 0.7953803475 | $225,780 | $225,780 | $179.58 | | |
| | Total Tax Rate: | 6.2407287403 | | | | | |
| | | | | Taxes w/Current Exemptions: | $1,409.04 | | |
| | | | | Taxes w/o Exemptions: | $1,409.04 | | |
Improvement / Building
Sketch
| No sketches available for this property. |
Property Image
Land
| 1 | LB | LOW BANK | 0.6700 | 29185.20 | 78.00 | 0.00 | 1.00 | $225,000 | $0 |
| 2 | 55 | TIDES | 0.0000 | 0.00 | 78.00 | 0.00 | 1.00 | $780 | $0 |
Roll Value History
| 2026 | N/A | N/A | N/A | N/A | N/A |
| 2025 | $0 | $225,780 | $0 | $225,780 | $225,780 |
| 2024 | $0 | $225,780 | $0 | $225,780 | $225,780 |
| 2023 | $0 | $225,780 | $0 | $225,780 | $225,780 |
| 2022 | $0 | $225,780 | $0 | $225,780 | $225,780 |
| 2021 | $0 | $150,780 | $0 | $150,780 | $150,780 |
| 2020 | $0 | $70,780 | $0 | $70,780 | $70,780 |
| 2019 | $0 | $70,780 | $0 | $70,780 | $70,780 |
| 2018 | $0 | $70,780 | $0 | $70,780 | $70,780 |
| 2017 | $0 | $70,780 | $0 | $70,780 | $70,780 |
| 2016 | $0 | $70,780 | $0 | $70,780 | $70,780 |
| 2015 | $0 | $70,780 | $0 | $70,780 | $70,780 |
| 2014 | $0 | $70,780 | $0 | $70,780 | $70,780 |
| 2013 | $0 | $97,654 | $0 | $97,654 | $97,654 |
| 2012 | $0 | $97,654 | $0 | $97,654 | $97,654 |
| 2011 | $0 | $121,872 | $0 | $121,872 | $121,872 |
| 2010 | $0 | $173,769 | $0 | $173,769 | $173,769 |
| 2009 | $0 | $226,627 | $0 | $226,627 | $226,627 |
| 2008 | $0 | $228,127 | $0 | $228,127 | $228,127 |
| 2007 | $0 | $227,581 | $0 | $227,581 | $227,581 |
Deed and Sales History
| 1 | 03/23/2022 | QCD | Quit Claim Deed | HALL, ROBERT A | HALL, ROBERT | | | $0.00 | 52484 | 4542337 |
| 2 | 02/02/2020 | WD | Warranty Deed | SCHWAB TRUSTEE, DELMAR G | HALL, ROBERT A | | | $110,000.00 | 42230 | 4482047 |
| 3 | 06/26/2017 | BARGSLD | Bargain And Sale Deed | SCHWAB, DELMAR G | SCHWAB TRUSTEE, DELMAR G | | | $0.00 | 30050 | 4425573 |
Payout Agreement
| No payout information available.. |