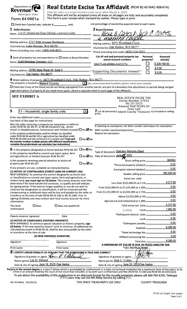
Property
Account |
| Property ID: | 433276 | Abbreviated Legal Description: | WOODLAND EST LOT 6 |
| Geographic ID: | S8475-00-00006-0 | Agent Code: | |
| Type: | Real | | |
| Tax Area: | 110 - APPRAISER-OH Schl Dist, outside OH, improved & 1 acre or less | Land Use Code | 11 |
| Open Space: | N | DFL | N |
| Historic Property: | N | Remodel Property: | N |
| Multi-Family Redevelopment: | N | | |
| Township: | | Section: | |
| Range: | |
Location |
| Address: | 4475 WOODLAND CIR OAK HARBOR, WA 98277 | Mapsco: | |
| Neighborhood: | Cycle 6 | Map ID: | 189 |
| Neighborhood CD: | 6 |
Owner |
| Name: | CORTES, ALEXA B | Owner ID: | 309019 |
| Mailing Address: | JACK C CORTES 4475 WOODLAND CIR OAK HARBOR, WA 98277 | % Ownership: | 100.0000000000% |
| | | Exemptions: | |
Taxes and Assessment Details
Values
| (+) Improvement Homesite Value: | + | $0 | |
| (+) Improvement Non-Homesite Value: | + | $187,697 | |
| (+) Land Homesite Value: | + | $0 | |
| (+) Land Non-Homesite Value: | + | $190,000 | |
| (+) Curr Use (HS): | + | $0 | $0 |
| (+) Curr Use (NHS): | + | $0 | $0 |
| | | -------------------------- | |
| (=) Market Value: | = | $377,697 | |
| (–) Productivity Loss: | – | $0 | |
| | | -------------------------- | |
| (=) Subtotal: | = | $377,697 | |
| (+) Senior Appraised Value: | + | $0 | |
| (+) Non-Senior Appraised Value: | + | $377,697 | |
| | | -------------------------- | |
| (=) Total Appraised Value: | = | $377,697 | |
| (–) Senior Exemption Loss: | – | $0 | |
| (–) Exemption Loss: | – | $0 | |
| | | -------------------------- | |
| (=) Taxable Value: | = | $377,697 | |
Taxing Jurisdiction
| Owner: | CORTES, ALEXA B | | |
| % Ownership: | 100.0000000000% | | |
| Total Value: | $377,697 | | |
| Tax Area: | 110 - APPRAISER-OH Schl Dist, outside OH, improved & 1 acre or less |
| CF | Conservation Futures | 0.0313996660 | $377,697 | $377,697 | $11.86 | | |
| CEM1 | Cemetery #1 | 0.0040018856 | $377,697 | $377,697 | $1.51 | | |
| FIRE2 | Fire & Rescue Dist #2 N Whidbey GEN | 0.5381486274 | $377,697 | $377,697 | $203.26 | | |
| HOBOND | Hospital BOND | 0.1893405597 | $377,697 | $377,697 | $71.51 | | |
| HOGEN | Hospital GEN | 0.3848777722 | $377,697 | $377,697 | $145.37 | | |
| CE | County Current Expense | 0.3674210519 | $377,697 | $377,697 | $138.77 | | |
| CR | County Roads | 0.4614296361 | $377,697 | $377,697 | $174.28 | | |
| ISLANDEMS | Hospital GEN (EMS) | 0.4952018576 | $377,697 | $377,697 | $187.04 | | |
| LIB | Library Sno-Isle GEN | 0.3039084203 | $377,697 | $377,697 | $114.79 | | |
| NWHIDPRMT | P & R N Whidbey GEN | 0.1990272349 | $377,697 | $377,697 | $75.17 | | |
| SCH201MO | School 201 Enrichment | 2.3851112745 | $377,697 | $377,697 | $900.85 | | |
| ST | State School | 1.4761226122 | $377,697 | $377,697 | $557.53 | | |
| ST2 | State School Part 2 | 0.7953803475 | $377,697 | $377,697 | $300.41 | | |
| | Total Tax Rate: | 7.6313709459 | | | | | |
| | | | | Taxes w/Current Exemptions: | $2,882.35 | | |
| | | | | Taxes w/o Exemptions: | $2,882.35 | | |
Improvement / Building
| Improvement #1: | RESIDENTIAL | State Code: | Y | 1040.0 sqft | Value: | $187,697 |
| Bathrooms: | 1 | Bedrooms: | 3 | | Ceiling: | DRYWALL PAINTED | Exterior Wall/Cover: | WOOD SIDING | | Floor Covering: | VINYL 100% | Floor Structure: | WOOD W/SUBFLOOR | | Foundation: | CONCRETE | Heating: | BASEBOARD ELECTRIC | | Interior Finish: | DRYWALL PAINT | Plumbing Fixture Cnt: | 6 | | Roof Slope: | 5" IN 12" | Roof Structure/Cover: | CJ ASPHALT |
|
| | Type | Description | Class CD | Sub Class CD | Year Built | Area |
| | BAS | BASE/MAIN FLOOR | 3 | 0 | 1978 | 1040.0 |
| | AGR | ATTACHED GARAGE | 3 | 0 | 1978 | 528.0 |
| | OWP | OPEN WOOD PORCH W/STEPS | 3 | 0 | 1978 | 162.0 |
Sketch
Property Image
Land
| 1 | 15 | SQ (12001-21780) | 0.0000 | 0.00 | 0.00 | 0.00 | 1.00 | $190,000 | $0 |
Roll Value History
| 2026 | N/A | N/A | N/A | N/A | N/A |
| 2025 | $187,697 | $190,000 | $0 | $377,697 | $377,697 |
| 2024 | $194,023 | $180,000 | $0 | $374,023 | $374,023 |
| 2023 | $179,382 | $180,000 | $0 | $359,382 | $359,382 |
| 2022 | $158,169 | $170,000 | $0 | $328,169 | $328,169 |
| 2021 | $139,392 | $120,000 | $0 | $259,392 | $259,392 |
| 2020 | $136,022 | $110,000 | $0 | $246,022 | $246,022 |
| 2019 | $96,985 | $140,000 | $0 | $236,985 | $236,985 |
| 2018 | $97,298 | $120,000 | $0 | $217,298 | $217,298 |
| 2017 | $97,927 | $110,000 | $0 | $207,927 | $207,927 |
| 2016 | $90,316 | $85,000 | $0 | $175,316 | $175,316 |
| 2015 | $91,624 | $65,000 | $0 | $156,624 | $156,624 |
| 2014 | $92,933 | $50,000 | $0 | $142,933 | $142,933 |
| 2013 | $94,241 | $63,750 | $0 | $157,991 | $157,991 |
| 2012 | $95,550 | $63,750 | $0 | $159,300 | $159,300 |
| 2011 | $96,859 | $75,000 | $0 | $171,859 | $171,859 |
| 2010 | $102,580 | $75,000 | $0 | $177,580 | $177,580 |
| 2009 | $106,966 | $85,000 | $0 | $191,966 | $191,966 |
| 2008 | $108,298 | $85,000 | $0 | $193,298 | $193,298 |
| 2007 | $109,640 | $70,000 | $0 | $179,640 | $179,640 |
Deed and Sales History
| 1 | 06/19/2023 | WD | Warranty Deed | EKLUND, LEE D | CORTES, ALEXA B | | | $392,500.00 | 57053 | 4561266 |
| 2 | 08/05/2016 | WD | Warranty Deed | KNOBLICH, KEITH A | EKLUND, LEE D | | | $215,000.00 | 25556 | 4404580 |
| 3 | 12/01/1978 | OTHER | Other - Misc. Documents | Unknown | KNOBLICH, KEITH A | | | $41,700.00 | 90133 | 345757 |
Payout Agreement
| No payout information available.. |