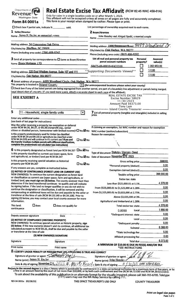
Property
Account |
| Property ID: | 433310 | Abbreviated Legal Description: | WOODLAND EST LOT 10 |
| Geographic ID: | S8475-00-00010-0 | Agent Code: | |
| Type: | Real | | |
| Tax Area: | 110 - APPRAISER-OH Schl Dist, outside OH, improved & 1 acre or less | Land Use Code | 11 |
| Open Space: | N | DFL | N |
| Historic Property: | N | Remodel Property: | N |
| Multi-Family Redevelopment: | N | | |
| Township: | | Section: | |
| Range: | |
Location |
| Address: | 4499 WOODLAND CIR OAK HARBOR, WA 98277 | Mapsco: | |
| Neighborhood: | Cycle 6 | Map ID: | 189 |
| Neighborhood CD: | 6 |
Owner |
| Name: | CARPO, JUVY MAC DUCOT | Owner ID: | 315881 |
| Mailing Address: | 4499 WOODLAND CIR OAK HARBOR, WA 98277 | % Ownership: | 100.0000000000% |
| | | Exemptions: | |
Taxes and Assessment Details
Values
| (+) Improvement Homesite Value: | + | $0 | |
| (+) Improvement Non-Homesite Value: | + | $172,351 | |
| (+) Land Homesite Value: | + | $0 | |
| (+) Land Non-Homesite Value: | + | $190,000 | |
| (+) Curr Use (HS): | + | $0 | $0 |
| (+) Curr Use (NHS): | + | $0 | $0 |
| | | -------------------------- | |
| (=) Market Value: | = | $362,351 | |
| (–) Productivity Loss: | – | $0 | |
| | | -------------------------- | |
| (=) Subtotal: | = | $362,351 | |
| (+) Senior Appraised Value: | + | $0 | |
| (+) Non-Senior Appraised Value: | + | $362,351 | |
| | | -------------------------- | |
| (=) Total Appraised Value: | = | $362,351 | |
| (–) Senior Exemption Loss: | – | $0 | |
| (–) Exemption Loss: | – | $0 | |
| | | -------------------------- | |
| (=) Taxable Value: | = | $362,351 | |
Taxing Jurisdiction
| Owner: | CARPO, JUVY MAC DUCOT | | |
| % Ownership: | 100.0000000000% | | |
| Total Value: | $362,351 | | |
| Tax Area: | 110 - APPRAISER-OH Schl Dist, outside OH, improved & 1 acre or less |
| CF | Conservation Futures | 0.0313996660 | $362,351 | $362,351 | $11.38 | | |
| CEM1 | Cemetery #1 | 0.0040018856 | $362,351 | $362,351 | $1.45 | | |
| FIRE2 | Fire & Rescue Dist #2 N Whidbey GEN | 0.5381486274 | $362,351 | $362,351 | $195.00 | | |
| HOBOND | Hospital BOND | 0.1893405597 | $362,351 | $362,351 | $68.61 | | |
| HOGEN | Hospital GEN | 0.3848777722 | $362,351 | $362,351 | $139.46 | | |
| CE | County Current Expense | 0.3674210519 | $362,351 | $362,351 | $133.14 | | |
| CR | County Roads | 0.4614296361 | $362,351 | $362,351 | $167.20 | | |
| ISLANDEMS | Hospital GEN (EMS) | 0.4952018576 | $362,351 | $362,351 | $179.44 | | |
| LIB | Library Sno-Isle GEN | 0.3039084203 | $362,351 | $362,351 | $110.12 | | |
| NWHIDPRMT | P & R N Whidbey GEN | 0.1990272349 | $362,351 | $362,351 | $72.12 | | |
| SCH201MO | School 201 Enrichment | 2.3851112745 | $362,351 | $362,351 | $864.25 | | |
| ST | State School | 1.4761226122 | $362,351 | $362,351 | $534.87 | | |
| ST2 | State School Part 2 | 0.7953803475 | $362,351 | $362,351 | $288.21 | | |
| | Total Tax Rate: | 7.6313709459 | | | | | |
| | | | | Taxes w/Current Exemptions: | $2,765.25 | | |
| | | | | Taxes w/o Exemptions: | $2,765.25 | | |
Improvement / Building
| Improvement #1: | RESIDENTIAL | State Code: | Y | 1056.0 sqft | Value: | $172,351 |
| Bathrooms: | 2 | Bedrooms: | 3 | | Ceiling: | DRYWALL PAINTED | Exterior Wall/Cover: | PLY/HARDBOARD T-111 | | Floor Covering: | CARPET/VINYL 80-20 | Floor Structure: | WOOD W/SUBFLOOR | | Foundation: | CONCRETE | Heating: | BASEBOARD ELECTRIC | | Interior Finish: | DRYWALL PAINT | Plumbing Fixture Cnt: | 9 | | Roof Slope: | 8" IN 12" | Roof Structure/Cover: | CJ ASPHALT |
|
| | Type | Description | Class CD | Sub Class CD | Year Built | Area |
| | BAS | BASE/MAIN FLOOR | 3 | 0 | 1977 | 1056.0 |
| | AGR | ATTACHED GARAGE | 3 | 0 | 1977 | 280.0 |
| | OWP | OPEN WOOD PORCH W/STEPS | 3 | 0 | 1977 | 40.0 |
Sketch
Property Image
Land
| 1 | 15 | SQ (12001-21780) | 0.0000 | 0.00 | 0.00 | 0.00 | 1.00 | $190,000 | $0 |
Roll Value History
| 2026 | N/A | N/A | N/A | N/A | N/A |
| 2025 | $172,351 | $190,000 | $0 | $362,351 | $362,351 |
| 2024 | $163,962 | $180,000 | $0 | $343,962 | $343,962 |
| 2023 | $172,653 | $180,000 | $0 | $352,653 | $352,653 |
| 2022 | $154,119 | $170,000 | $0 | $324,119 | $324,119 |
| 2021 | $135,953 | $120,000 | $0 | $255,953 | $255,953 |
| 2020 | $132,358 | $110,000 | $0 | $242,358 | $242,358 |
| 2019 | $92,460 | $140,000 | $0 | $232,460 | $232,460 |
| 2018 | $92,782 | $120,000 | $0 | $212,782 | $212,782 |
| 2017 | $93,421 | $110,000 | $0 | $203,421 | $203,421 |
| 2016 | $84,086 | $85,000 | $0 | $169,086 | $169,086 |
| 2015 | $85,323 | $65,000 | $0 | $150,323 | $150,323 |
| 2014 | $86,560 | $50,000 | $0 | $136,560 | $136,560 |
| 2013 | $87,796 | $63,750 | $0 | $151,546 | $151,546 |
| 2012 | $89,033 | $63,750 | $0 | $152,783 | $152,783 |
| 2011 | $90,269 | $75,000 | $0 | $165,269 | $165,269 |
| 2010 | $96,173 | $75,000 | $0 | $171,173 | $171,173 |
| 2009 | $99,076 | $85,000 | $0 | $184,076 | $184,076 |
| 2008 | $100,341 | $85,000 | $0 | $185,341 | $185,341 |
| 2007 | $101,596 | $70,000 | $0 | $171,596 | $171,596 |
Deed and Sales History
| 1 | 03/14/2025 | WD | Warranty Deed | HENSLEY, JOHN | CARPO, JUVY MAC DUCOT | | | $434,900.00 | 62887 | 4583508 |
| 2 | 11/24/2023 | WD | Warranty Deed | ENGLER JTWROS, JAMES H | HENSLEY, JOHN | | | $398,000.00 | 58629 | 4567124 |
| 3 | 10/10/2018 | QCD | Quit Claim Deed | ENGLER, JAMES H | ENGLER JTWROS, JAMES H | | | $0.00 | 36271 | 4453349 |
| 4 | 11/01/1992 | QCD | Quit Claim Deed | ENGLER, JAMES H | ENGLER, JAMES H | | | $0.00 | 24510 | 92022049 |
| 5 | 01/01/1981 | CD | DNU - Correction Deed | ENGLER, JAMES H | ENGLER, JAMES H | | | $0.00 | 10006 | 377882 |
| 6 | 01/01/1900 | OTHER | Other - Misc. Documents | Unknown | ENGLER, JAMES H | | | $0.00 | 0 | 0 |
Payout Agreement
| No payout information available.. |