Property
Account |
| Property ID: | 44062 | Abbreviated Legal Description: | 2 - IN GL3: BG WLN RD 5070'N OF SLN GL2 SEC 3-33- 1E N ALG RD TO NLN GL3 W TO ML S ALG ML TP W OF TPB E TPB EX E10' OF N50' INCL ADJ TIDES |
| Geographic ID: | R13434-260-4990 | Agent Code: | |
| Type: | Real | | |
| Tax Area: | 119 - APPRAISER-OH Schl Dist, outside OH, vacant & 50 acres or less | Land Use Code | 91 |
| Open Space: | N | DFL | N |
| Historic Property: | N | Remodel Property: | N |
| Multi-Family Redevelopment: | N | | |
| Township: | 34 | Section: | 34 |
| Range: | R1 |
Location |
| Address: | | Mapsco: | |
| Neighborhood: | Cycle 6 | Map ID: | 271 |
| Neighborhood CD: | 6 |
Owner |
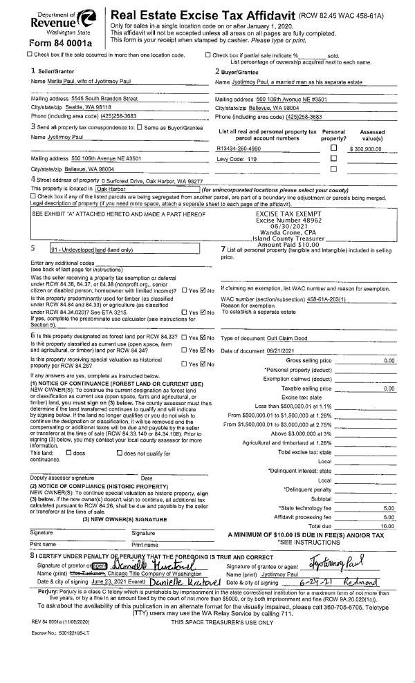
| Name: | PAUL, MARIA | Owner ID: | 300031 |
| Mailing Address: | 121 STEWART ST APT 3207 SEATTLE, WA 98101-1139 | % Ownership: | 100.0000000000% |
| | | Exemptions: | |
Taxes and Assessment Details
Values
| (+) Improvement Homesite Value: | + | $0 | |
| (+) Improvement Non-Homesite Value: | + | $0 | |
| (+) Land Homesite Value: | + | $0 | |
| (+) Land Non-Homesite Value: | + | $490,900 | |
| (+) Curr Use (HS): | + | $0 | $0 |
| (+) Curr Use (NHS): | + | $0 | $0 |
| | | -------------------------- | |
| (=) Market Value: | = | $490,900 | |
| (–) Productivity Loss: | – | $0 | |
| | | -------------------------- | |
| (=) Subtotal: | = | $490,900 | |
| (+) Senior Appraised Value: | + | $0 | |
| (+) Non-Senior Appraised Value: | + | $490,900 | |
| | | -------------------------- | |
| (=) Total Appraised Value: | = | $490,900 | |
| (–) Senior Exemption Loss: | – | $0 | |
| (–) Exemption Loss: | – | $0 | |
| | | -------------------------- | |
| (=) Taxable Value: | = | $490,900 | |
Taxing Jurisdiction
| Owner: | PAUL, MARIA | | |
| % Ownership: | 100.0000000000% | | |
| Total Value: | $490,900 | | |
| Tax Area: | 119 - APPRAISER-OH Schl Dist, outside OH, vacant & 50 acres or less |
| CF | Conservation Futures | 0.0313996660 | $490,900 | $490,900 | $15.41 | | |
| CEM1 | Cemetery #1 | 0.0040018856 | $490,900 | $490,900 | $1.96 | | |
| HOBOND | Hospital BOND | 0.1893405597 | $490,900 | $490,900 | $92.95 | | |
| HOGEN | Hospital GEN | 0.3848777722 | $490,900 | $490,900 | $188.94 | | |
| CE | County Current Expense | 0.3674210519 | $490,900 | $490,900 | $180.37 | | |
| CR | County Roads | 0.4614296361 | $490,900 | $490,900 | $226.52 | | |
| ISLANDEMS | Hospital GEN (EMS) | 0.4952018576 | $490,900 | $490,900 | $243.09 | | |
| LIB | Library Sno-Isle GEN | 0.3039084203 | $490,900 | $490,900 | $149.19 | | |
| NWHIDPRMT | P & R N Whidbey GEN | 0.1990272349 | $490,900 | $490,900 | $97.70 | | |
| SCH201MO | School 201 Enrichment | 2.3851112745 | $490,900 | $490,900 | $1,170.85 | | |
| ST | State School | 1.4761226122 | $490,900 | $490,900 | $724.63 | | |
| ST2 | State School Part 2 | 0.7953803475 | $490,900 | $490,900 | $390.45 | | |
| | Total Tax Rate: | 7.0932223185 | | | | | |
| | | | | Taxes w/Current Exemptions: | $3,482.06 | | |
| | | | | Taxes w/o Exemptions: | $3,482.06 | | |
Improvement / Building
Sketch
| No sketches available for this property. |
Property Image
Land
| 1 | LB | LOW BANK | 0.5800 | 25264.80 | 90.00 | 0.00 | 1.00 | $490,000 | $0 |
| 2 | 55 | TIDES | 0.0000 | 0.00 | 90.00 | 0.00 | 1.00 | $900 | $0 |
Roll Value History
| 2026 | N/A | N/A | N/A | N/A | N/A |
| 2025 | $0 | $490,900 | $0 | $490,900 | $490,900 |
| 2024 | $0 | $465,900 | $0 | $465,900 | $465,900 |
| 2023 | $0 | $450,900 | $0 | $450,900 | $450,900 |
| 2022 | $0 | $450,900 | $0 | $450,900 | $450,900 |
| 2021 | $0 | $300,900 | $0 | $300,900 | $300,900 |
| 2020 | $0 | $300,900 | $0 | $300,900 | $300,900 |
| 2019 | $0 | $300,900 | $0 | $300,900 | $300,900 |
| 2018 | $0 | $300,900 | $0 | $300,900 | $300,900 |
| 2017 | $0 | $300,900 | $0 | $300,900 | $300,900 |
| 2016 | $0 | $300,900 | $0 | $300,900 | $300,900 |
| 2015 | $0 | $300,900 | $0 | $300,900 | $300,900 |
| 2014 | $0 | $300,900 | $0 | $300,900 | $300,900 |
| 2013 | $0 | $294,990 | $0 | $294,990 | $294,990 |
| 2012 | $0 | $294,990 | $0 | $294,990 | $294,990 |
| 2011 | $0 | $294,990 | $0 | $294,990 | $294,990 |
| 2010 | $0 | $294,990 | $0 | $294,990 | $294,990 |
| 2009 | $0 | $294,990 | $0 | $294,990 | $294,990 |
| 2008 | $0 | $294,990 | $0 | $294,990 | $294,990 |
| 2007 | $0 | $294,360 | $0 | $294,360 | $294,360 |
Deed and Sales History
| 1 | 06/26/2021 | WD | Warranty Deed | FROHM, ROSS | PAUL, JYOTIRMOY | | | $0.00 | 48995 | 4523389 |
| 2 | 06/21/2021 | QCD | Quit Claim Deed | PAUL, JYOTIRMOY | PAUL, MARIA | | | $0.00 | 48962 | 4523230 |
| 3 | 06/26/2021 | WD | Warranty Deed | FROHM, ROSS | PAUL, JYOTIRMOY | | | $455,000.00 | 48960 | 4523229 |
| 4 | 08/03/2016 | WD | Warranty Deed | TOPIWALA, HANSA H | FROHM, ROSS | | | $325,000.00 | 25576 | 4404632 |
| 5 | 06/01/1990 | QCD | Quit Claim Deed | TOPIWALA, HANSA H | TOPIWALA, HANSA H | | | $0.00 | 4079 | 90013345 |
| 6 | 01/01/1900 | OTHER | Other - Misc. Documents | Unknown | TOPIWALA, HANSA H | | | $0.00 | 0 | 0 |
Payout Agreement
| No payout information available.. |