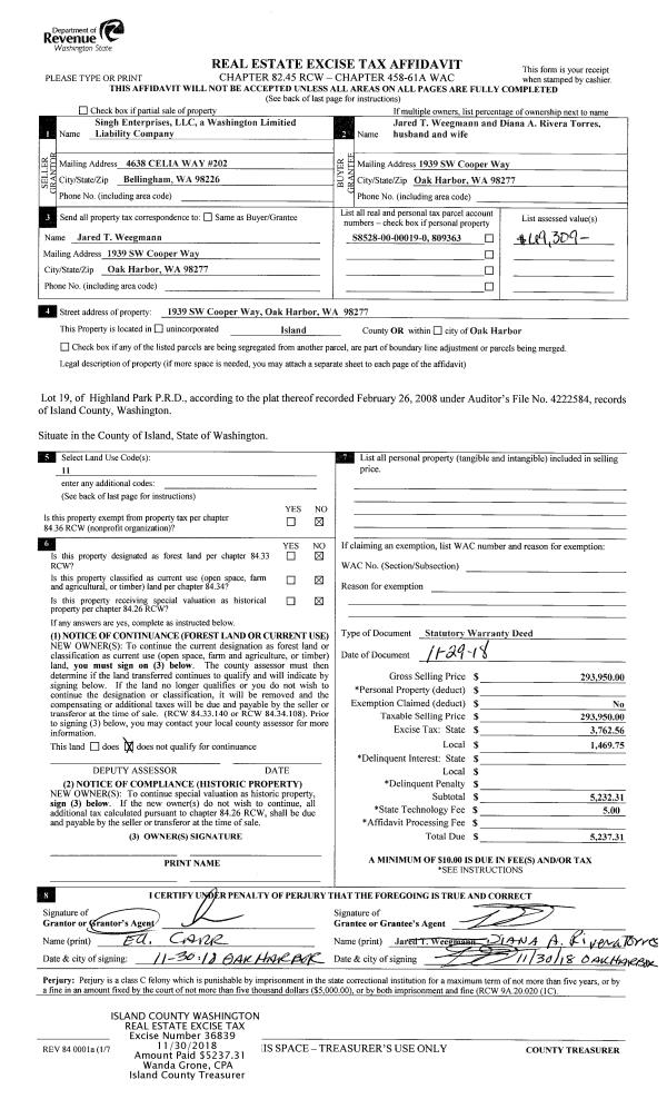
Property
Account |
| Property ID: | 460496 | Abbreviated Legal Description: | 1976 SILVERCREST HOWARD MANOR 24X56 VIN# 0S0330UX TPO @76059 TO K-519013 BACK FROM K-519013 |
| Geographic ID: | M902500000170 | Agent Code: | |
| Type: | Mobile Home | | |
| Tax Area: | 100 - APPRAISER-OH Schl Dist, in OH | Land Use Code | 11 |
| Open Space: | N | DFL | N |
| Historic Property: | N | Remodel Property: | N |
| Multi-Family Redevelopment: | N | | |
| Township: | | Section: | |
| Range: | |
Location |
| Address: | 1361 NE GOLDIE ST # 11 OAK HARBOR, WA 98277 | Mapsco: | |
| Neighborhood: | Cycle 1 | Map ID: | |
| Neighborhood CD: | 1 |
Owner |
| Name: | SCHOLLEN, JUDITH A | Owner ID: | 309587 |
| Mailing Address: | 1361 NE GOLDIE RD, TRLR 11 OAK HARBOR, WA 98277 | % Ownership: | 100.0000000000% |
| | | Exemptions: | |
Taxes and Assessment Details
Values
| (+) Improvement Homesite Value: | + | $0 | |
| (+) Improvement Non-Homesite Value: | + | $36,764 | |
| (+) Land Homesite Value: | + | $0 | |
| (+) Land Non-Homesite Value: | + | $0 | |
| (+) Curr Use (HS): | + | $0 | $0 |
| (+) Curr Use (NHS): | + | $0 | $0 |
| | | -------------------------- | |
| (=) Market Value: | = | $36,764 | |
| (–) Productivity Loss: | – | $0 | |
| | | -------------------------- | |
| (=) Subtotal: | = | $36,764 | |
| (+) Senior Appraised Value: | + | $0 | |
| (+) Non-Senior Appraised Value: | + | $36,764 | |
| | | -------------------------- | |
| (=) Total Appraised Value: | = | $36,764 | |
| (–) Senior Exemption Loss: | – | $0 | |
| (–) Exemption Loss: | – | $0 | |
| | | -------------------------- | |
| (=) Taxable Value: | = | $36,764 | |
Taxing Jurisdiction
| Owner: | SCHOLLEN, JUDITH A | | |
| % Ownership: | 100.0000000000% | | |
| Total Value: | $36,764 | | |
| Tax Area: | 100 - APPRAISER-OH Schl Dist, in OH |
| CF | Conservation Futures | 0.0313996660 | $36,764 | $36,764 | $1.15 | | |
| CEM1 | Cemetery #1 | 0.0040018856 | $36,764 | $36,764 | $0.15 | | |
| COH | City of Oak Harbor | 2.3090730572 | $36,764 | $36,764 | $84.89 | | |
| OAKBOND | City of Oak Harbor BOND | 0.1902260131 | $36,764 | $36,764 | $6.99 | | |
| HOBOND | Hospital BOND | 0.1893405597 | $36,764 | $36,764 | $6.96 | | |
| HOGEN | Hospital GEN | 0.3848777722 | $36,764 | $36,764 | $14.15 | | |
| CE | County Current Expense | 0.3674210519 | $36,764 | $36,764 | $13.51 | | |
| ISLANDEMS | Hospital GEN (EMS) | 0.4952018576 | $36,764 | $36,764 | $18.21 | | |
| LIB | Library Sno-Isle GEN | 0.3039084203 | $36,764 | $36,764 | $11.17 | | |
| NWHIDPRMT | P & R N Whidbey GEN | 0.1990272349 | $36,764 | $36,764 | $7.32 | | |
| SCH201MO | School 201 Enrichment | 2.3851112745 | $36,764 | $36,764 | $87.69 | | |
| ST | State School | 1.4761226122 | $36,764 | $36,764 | $54.27 | | |
| ST2 | State School Part 2 | 0.7953803475 | $36,764 | $36,764 | $29.24 | | |
| | Total Tax Rate: | 9.1310917527 | | | | | |
| | | | | Taxes w/Current Exemptions: | $335.70 | | |
| | | | | Taxes w/o Exemptions: | $335.70 | | |
Improvement / Building
| Improvement #1: | MANUFACTURED HOME | State Code: | Y | 1344.0 sqft | Value: | $36,764 |
| Bathrooms: | 0 | Bedrooms: | 0 | | Ceiling: | PLASTER PAINTED | Cooling: | EVAP NO DUCT | | Exterior Wall/Cover: | VINYL | Floor Covering: | CARPET 100% | | Floor Structure: | SLAB ON GRADE | Foundation: | SLAB | | Heating: | FHA ELECTRIC | Interior Finish: | PLASTER | | Plumbing Fixture Cnt: | 1 | Roof Slope: | FLAT | | Roof Structure/Cover: | CJ ALUMINIUM HEAVY |   |   |
|
Sketch
Property Image
Land
No land segments exist for this property.
Roll Value History
| 2026 | N/A | N/A | N/A | N/A | N/A |
| 2025 | $36,764 | $0 | $0 | $36,764 | $36,764 |
| 2024 | $39,136 | $0 | $0 | $39,136 | $39,136 |
| 2023 | $29,412 | $0 | $0 | $29,412 | $29,412 |
| 2022 | $28,350 | $0 | $0 | $28,350 | $28,350 |
| 2021 | $26,147 | $0 | $0 | $26,147 | $26,147 |
| 2020 | $27,559 | $0 | $0 | $27,559 | $27,559 |
| 2019 | $22,850 | $0 | $0 | $22,850 | $22,850 |
| 2018 | $23,993 | $0 | $0 | $23,993 | $23,993 |
| 2017 | $14,382 | $0 | $0 | $14,382 | $14,382 |
| 2016 | $14,916 | $0 | $0 | $14,916 | $14,916 |
| 2015 | $15,981 | $0 | $0 | $15,981 | $15,981 |
| 2014 | $16,513 | $0 | $0 | $16,513 | $16,513 |
| 2013 | $17,578 | $0 | $0 | $17,578 | $17,578 |
| 2012 | $18,645 | $0 | $0 | $18,645 | $18,645 |
| 2011 | $29,884 | $0 | $0 | $29,884 | $29,884 |
| 2010 | $33,174 | $0 | $0 | $33,174 | $33,174 |
| 2009 | $34,938 | $0 | $0 | $34,938 | $34,938 |
| 2008 | $35,740 | $0 | $0 | $35,740 | $35,740 |
| 2007 | $37,344 | $0 | $0 | $37,344 | $37,344 |
Deed and Sales History
| 1 | 08/07/2023 | MANHOME | Manufactured Home | HARPER, NORMA | SCHOLLEN, JUDITH A | | | $32,000.00 | 57558 | |
| 2 | 12/14/2018 | MANHOME | Manufactured Home | WROBLEWSKI, JOHN A | TUTTLE, MICHAEL A | | | $38,000.00 | 36980 | |
| 3 | 09/28/2010 | OTHER | Other - Misc. Documents | VOGELMAN, E JOAN | WROBLEWSKI, JOHN A | | | $21,000.00 | 2408 | |
| 4 | 07/17/2000 | OTHER | Other - Misc. Documents | ROURKE, ROGER C | VOGELMAN, E JOAN | | | $20,000.00 | 2659 | 0 |
| 5 | 10/21/1998 | OTHER | Other - Misc. Documents | VOGELMAN, E JOAN | ROURKE, MATTHEW R | | | $0.00 | 84181 | 0 |
| 6 | 07/01/1996 | OTHER | Other - Misc. Documents | ABBOTT, IRENE W | ROURKE, ROGER C | | | $30,000.00 | 62730 | 0 |
| 7 | 08/01/1991 | OTHER | Other - Misc. Documents | BISHOP, CORA L | ABBOTT, IRENE W | | | $28,000.00 | 13038 | 0 |
| 8 | 09/01/1987 | OTHER | Other - Misc. Documents | HOYT, RICHARD | BISHOP, CORA L | | | $26,500.00 | 72903 | 0 |
| 9 | 01/01/1900 | OTHER | Other - Misc. Documents | Unknown | HOYT, RICHARD | | | $0.00 | 0 | 0 |
Payout Agreement
| No payout information available.. |