Property
Account |
| Property ID: | 461379 | Abbreviated Legal Description: | 16 - IN GL5 36-32-1E & NE NE 1-31-1E: BG NECR SEC 1 S1*W58' N88*W380' N79*W101 .28' N29*W135' S88*W550' S1*W73.69' TPB SP 78-74 FR 525-4810 TGW & SUB EZ AF#95007159 TGW & SUB EZ AF#96003345 |
| Geographic ID: | R13101-530-4950 | Agent Code: | |
| Type: | Real | | |
| Tax Area: | 312 - APPRAISER-Cpvl Schl Dist, outside Cpvl, improved, greater than 1 acre | Land Use Code | 11 |
| Open Space: | N | DFL | N |
| Historic Property: | N | Remodel Property: | N |
| Multi-Family Redevelopment: | N | | |
| Township: | 31 | Section: | 01 |
| Range: | R1 |
Location |
| Address: | | Mapsco: | |
| Neighborhood: | Cycle 2 | Map ID: | 20 |
| Neighborhood CD: | 2 |
Owner |
| Name: | VRBANAC, MICHAEL | Owner ID: | 300142 |
| Mailing Address: | MELISSA LOUISE VRBANAC 6 NORTH PHEASANT RUN RD COUPEVILLE, WA 98239 | % Ownership: | 100.0000000000% |
| | | Exemptions: | |
Taxes and Assessment Details
Values
| (+) Improvement Homesite Value: | + | $0 | |
| (+) Improvement Non-Homesite Value: | + | $526,395 | |
| (+) Land Homesite Value: | + | $0 | |
| (+) Land Non-Homesite Value: | + | $215,011 | |
| (+) Curr Use (HS): | + | $0 | $0 |
| (+) Curr Use (NHS): | + | $0 | $0 |
| | | -------------------------- | |
| (=) Market Value: | = | $741,406 | |
| (–) Productivity Loss: | – | $0 | |
| | | -------------------------- | |
| (=) Subtotal: | = | $741,406 | |
| (+) Senior Appraised Value: | + | $0 | |
| (+) Non-Senior Appraised Value: | + | $741,406 | |
| | | -------------------------- | |
| (=) Total Appraised Value: | = | $741,406 | |
| (–) Senior Exemption Loss: | – | $0 | |
| (–) Exemption Loss: | – | $0 | |
| | | -------------------------- | |
| (=) Taxable Value: | = | $741,406 | |
Taxing Jurisdiction
| Owner: | VRBANAC, MICHAEL | | |
| % Ownership: | 100.0000000000% | | |
| Total Value: | $741,406 | | |
| Tax Area: | 312 - APPRAISER-Cpvl Schl Dist, outside Cpvl, improved, greater than 1 acre |
| CF | Conservation Futures | 0.0313996660 | $741,406 | $741,406 | $23.28 | | |
| CEM2 | Cemetery #2 | 0.0092609791 | $741,406 | $741,406 | $6.87 | | |
| FIRE5 | Fire & Rescue Dist #5 C Whidbey GEN | 1.1892169230 | $741,406 | $741,406 | $881.69 | | |
| FIRE5BOND | Fire & Rescue Dist #5 C Whidbey BOND | 0.1394359503 | $741,406 | $741,406 | $103.38 | | |
| HOBOND | Hospital BOND | 0.1893405597 | $741,406 | $741,406 | $140.38 | | |
| HOGEN | Hospital GEN | 0.3848777722 | $741,406 | $741,406 | $285.35 | | |
| CE | County Current Expense | 0.3674210519 | $741,406 | $741,406 | $272.41 | | |
| CR | County Roads | 0.4614296361 | $741,406 | $741,406 | $342.11 | | |
| ISLANDEMS | Hospital GEN (EMS) | 0.4952018576 | $741,406 | $741,406 | $367.15 | | |
| LIB | Library Sno-Isle GEN | 0.3039084203 | $741,406 | $741,406 | $225.32 | | |
| LIBCAP | Library Sno-Isle BOND (Cap Fac Imp Area) | 0.0528562629 | $741,406 | $741,406 | $39.19 | | |
| POCOUP | Port of Coupeville GEN | 0.1065226063 | $741,406 | $741,406 | $78.98 | | |
| POCOUPIDD | Port of Coupeville IDD | 0.3353038577 | $741,406 | $741,406 | $248.60 | | |
| COUPSDTECH | School 204 CP (TECH) | 0.1215123397 | $741,406 | $741,406 | $90.09 | | |
| SCH204MO | School 204 Enrichment | 0.6416662518 | $741,406 | $741,406 | $475.74 | | |
| ST | State School | 1.4761226122 | $741,406 | $741,406 | $1,094.41 | | |
| ST2 | State School Part 2 | 0.7953803475 | $741,406 | $741,406 | $589.70 | | |
| | Total Tax Rate: | 7.1008570943 | | | | | |
| | | | | Taxes w/Current Exemptions: | $5,264.65 | | |
| | | | | Taxes w/o Exemptions: | $5,264.65 | | |
Improvement / Building
| Improvement #1: | RESIDENTIAL | State Code: | Y | 2482.0 sqft | Value: | $526,395 |
| Bathrooms: | 3 | Bedrooms: | 3 | | Ceiling: | DRYWALL PAINTED | Cooling: | HEAT PUMP/CONV/V | | Exterior Wall/Cover: | CEMENT FIBER | Floor Covering: | HARDWOOD 100% | | Floor Structure: | WOOD W/SUBFLOOR | Foundation: | CONCRETE | | Interior Finish: | DRYWALL PAINT | Plumbing Fixture Cnt: | 15 | | Roof Slope: | FLAT | Roof Structure/Cover: | CJ ALUMINIUM HEAVY |
|
| | Type | Description | Class CD | Sub Class CD | Year Built | Area |
| | BAS | BASE/MAIN FLOOR | 5 | 0 | 2023 | 2482.0 |
| | DGR | DETACHED GARAGE | 5 | 0 | 2023 | 1181.0 |
| | OP4 | OPEN PORCH W/CEILING-ROOF | 5 | 0 | 2023 | 312.0 |
| | OP4 | OPEN PORCH W/CEILING-ROOF | 5 | 0 | 2023 | 140.0 |
| | OP4 | OPEN PORCH W/CEILING-ROOF | 5 | 0 | 2023 | 480.0 |
Sketch
Property Image
Land
| 1 | HS | HOMESITE | 1.0000 | 43560.00 | 0.00 | 0.00 | 1.00 | $205,011 | $0 |
| 2 | 91 | UNDEVELOPED LAND-METES AND BOUNDS | 0.5000 | 21780.00 | 0.00 | 0.00 | 1.00 | $10,000 | $0 |
Roll Value History
| 2026 | N/A | N/A | N/A | N/A | N/A |
| 2025 | $526,395 | $215,011 | $0 | $741,406 | $741,406 |
| 2024 | $460,193 | $120,000 | $0 | $580,193 | $580,193 |
| 2023 | $151,394 | $110,000 | $0 | $261,394 | $261,394 |
| 2022 | $0 | $110,000 | $0 | $110,000 | $110,000 |
| 2021 | $0 | $100,000 | $0 | $100,000 | $100,000 |
| 2020 | $0 | $100,000 | $0 | $100,000 | $100,000 |
| 2019 | $0 | $60,000 | $0 | $60,000 | $60,000 |
| 2018 | $0 | $55,000 | $0 | $55,000 | $55,000 |
| 2017 | $0 | $55,000 | $0 | $55,000 | $55,000 |
| 2016 | $0 | $70,000 | $0 | $70,000 | $70,000 |
| 2015 | $0 | $70,000 | $0 | $70,000 | $70,000 |
| 2014 | $0 | $70,000 | $0 | $70,000 | $70,000 |
| 2013 | $0 | $70,000 | $0 | $70,000 | $70,000 |
| 2012 | $0 | $85,000 | $0 | $85,000 | $85,000 |
| 2011 | $0 | $85,000 | $0 | $85,000 | $85,000 |
| 2010 | $0 | $85,000 | $0 | $85,000 | $85,000 |
| 2009 | $0 | $85,000 | $0 | $85,000 | $85,000 |
| 2008 | $0 | $100,000 | $0 | $100,000 | $100,000 |
| 2007 | $0 | $95,000 | $0 | $95,000 | $95,000 |
Deed and Sales History
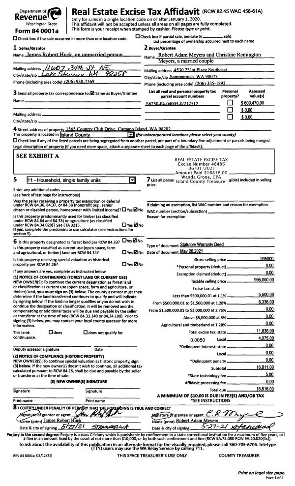
| 1 | 07/06/2021 | WD | Warranty Deed | HARRISON, ROBERT J | VRBANAC, MICHAEL | | | $180,000.00 | 49082 | 4523897 |
| 2 | 08/18/2004 | WD | Warranty Deed | METTLER, RICHARD V | HARRISON, ROBERT J | | | $90,000.00 | 43865 | 4110517 |
| 3 | 06/21/2000 | WD | Warranty Deed | Unknown | METTLER, RICHARD V | | | $70,000.00 | 2406 | 20011446 |
| 4 | 10/01/1997 | WD | Warranty Deed | DEKABAN, JOANNA C | TOMLINSON, MICHAEL J | | | $51,500.00 | 73919 | 97018667 |
| 5 | 12/01/1994 | QCD | Quit Claim Deed | DEKABAN, ANATOLE S | DEKABAN, ANATOLE S | | | $0.00 | 45122 | 95001235 |
| 6 | 01/01/1994 | QCD | Quit Claim Deed | DEKABAN, ANATOLE S | DEKABAN, JOANNA C | | | $0.00 | 50009 | 95000043 |
| 7 | 01/01/1900 | OTHER | Other - Misc. Documents | Unknown | DEKABAN, ANATOLE S | | | $0.00 | 0 | 0 |
Payout Agreement
| No payout information available.. |