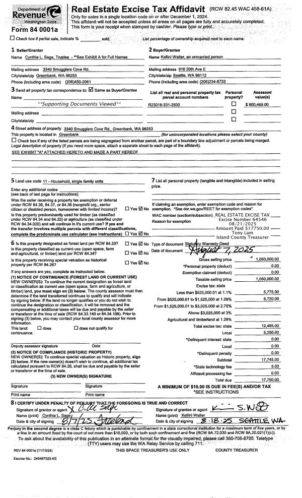
Property
Account |
| Property ID: | 462225 | Abbreviated Legal Description: | S70' OF N140' OF S760' OF PT GL3 LY W OF SMUGGLERS CV RD EX PT LY E OF FOLL DESC LN: BG INTER NLN SD S760' W/WLY R/W SMUGGLERS COVE RD S88*W453.28' TPB S01*E210' TO SLY TERM SD LN TGW & SUB EZ FR 330-2630 (TR D-2 SP 78-83 CHG FR R23030-0250 |
| Geographic ID: | R23018-331-2500 | Agent Code: | |
| Type: | Real | | |
| Tax Area: | 312 - APPRAISER-Cpvl Schl Dist, outside Cpvl, improved, greater than 1 acre | Land Use Code | 11 |
| Open Space: | N | DFL | N |
| Historic Property: | N | Remodel Property: | N |
| Multi-Family Redevelopment: | N | | |
| Township: | 30 | Section: | 18 |
| Range: | R2 |
Location |
| Address: | 3340 SMUGGLERS COVE RD GREENBANK, WA 98253 | Mapsco: | |
| Neighborhood: | Cycle 3 | Map ID: | 390 |
| Neighborhood CD: | 3 |
Owner |
| Name: | WALTER, KELLINI | Owner ID: | 317852 |
| Mailing Address: | 916 20TH AVE E SEATTLE, WA 98112 | % Ownership: | 100.0000000000% |
| | | Exemptions: | |
Taxes and Assessment Details
Values
| (+) Improvement Homesite Value: | + | N/A | |
| (+) Improvement Non-Homesite Value: | + | N/A | |
| (+) Land Homesite Value: | + | N/A | |
| (+) Land Non-Homesite Value: | + | N/A | Ag / Timber Use Value |
| (+) Curr Use (HS): | + | N/A | N/A |
| (+) Curr Use (NHS): | + | N/A | N/A |
| | | -------------------------- | |
| (=) Market Value: | = | N/A | |
| (–) Productivity Loss: | – | N/A | |
| | | -------------------------- | |
| (=) Subtotal: | = | N/A | |
| (+) Senior Appraised Value: | + | N/A | |
| (+) Non-Senior Appraised Value: | + | N/A | |
| | | -------------------------- | |
| (=) Total Appraised Value: | = | N/A | |
| (–) Senior Exemption Loss: | – | N/A | |
| (–) Exemption Loss: | – | N/A | |
| | | -------------------------- | |
| (=) Taxable Value: | = | N/A | |
Taxing Jurisdiction
| Owner: | WALTER, KELLINI | | |
| % Ownership: | 100.0000000000% | | |
| Total Value: | N/A | | |
| Tax Area: | 312 - APPRAISER-Cpvl Schl Dist, outside Cpvl, improved, greater than 1 acre |
| CF | Conservation Futures | N/A | N/A | N/A | N/A | | |
| WCD | Whidbey Conservation District | N/A | N/A | N/A | N/A | | |
| CEM2 | Cemetery #2 | N/A | N/A | N/A | N/A | | |
| FIRE5 | Fire & Rescue Dist #5 C Whidbey GEN | N/A | N/A | N/A | N/A | | |
| FIRE5BOND | Fire & Rescue Dist #5 C Whidbey BOND | N/A | N/A | N/A | N/A | | |
| HOBOND | Hospital BOND | N/A | N/A | N/A | N/A | | |
| HOGEN | Hospital GEN | N/A | N/A | N/A | N/A | | |
| CE | County Current Expense | N/A | N/A | N/A | N/A | | |
| CR | County Roads | N/A | N/A | N/A | N/A | | |
| ISLANDEMS | Hospital GEN (EMS) | N/A | N/A | N/A | N/A | | |
| LIB | Library Sno-Isle GEN | N/A | N/A | N/A | N/A | | |
| LIBCAP | Library Sno-Isle BOND (Cap Fac Imp Area) | N/A | N/A | N/A | N/A | | |
| POCOUP | Port of Coupeville GEN | N/A | N/A | N/A | N/A | | |
| COUPSDTECH | School 204 CP (TECH) | N/A | N/A | N/A | N/A | | |
| SCH204MO | School 204 Enrichment | N/A | N/A | N/A | N/A | | |
| ST | State School | N/A | N/A | N/A | N/A | | |
| ST2 | State School Part 2 | N/A | N/A | N/A | N/A | | |
| | Total Tax Rate: | N/A | | | | | |
| | | | | Taxes w/Current Exemptions: | N/A | | |
| | | | | Taxes w/o Exemptions: | N/A | | |
Improvement / Building
| Improvement #1: | RESIDENTIAL | State Code: | Y | 1692.3 sqft | Value: | N/A |
| Bathrooms: | 2 | Bedrooms: | 2 | | Ceiling: | DRYWALL PAINTED | Cooling: | HEAT PUMP/CONV/V | | Exterior Wall/Cover: | WOOD SIDING | Floor Covering: | HARDWOOD/CARP 80-20 | | Floor Structure: | WOOD W/SUBFLOOR | Foundation: | CONCRETE | | Interior Finish: | DRYWALL PAINT | Plumbing Fixture Cnt: | 9 | | Roof Slope: | 5" IN 12" | Roof Structure/Cover: | CJ ALUMINIUM HEAVY |
|
| | Type | Description | Class CD | Sub Class CD | Year Built | Area |
| | BAS | BASE/MAIN FLOOR | 3 | 0 | 1997 | 1523.3 |
| | OWC | OPEN WOOD PORCH W/STEPS/ROOF/C | 3 | 0 | 1997 | 120.0 |
| | LOF | LOFT | 3 | 0 | 1997 | 169.0 |
| | OWP | OPEN WOOD PORCH W/STEPS | 3 | 0 | 1997 | 608.5 |
| | UB8 | BASEMENT UNFINISHED 8" | 3 | 0 | 1997 | 1523.3 |
Sketch
Property Image
Land
| 1 | HB | HIGH BLUFF | 1.1900 | 51836.40 | 70.00 | 0.00 | 1.00 | N/A | N/A |
Roll Value History
| 2026 | N/A | N/A | N/A | N/A | N/A |
| 2025 | $343,969 | $556,500 | $0 | $900,469 | $900,469 |
| 2024 | $348,539 | $525,000 | $0 | $873,539 | $873,539 |
| 2023 | $353,110 | $500,000 | $0 | $853,110 | $853,110 |
| 2022 | $323,896 | $480,000 | $0 | $803,896 | $803,896 |
| 2021 | $285,250 | $400,000 | $0 | $685,250 | $685,250 |
| 2020 | $278,538 | $400,000 | $0 | $678,538 | $678,538 |
| 2019 | $201,226 | $400,000 | $0 | $601,226 | $601,226 |
| 2018 | $201,844 | $400,000 | $0 | $601,844 | $601,844 |
| 2017 | $202,995 | $300,000 | $0 | $502,995 | $502,995 |
| 2016 | $205,471 | $300,000 | $0 | $505,471 | $505,471 |
| 2015 | $200,521 | $250,000 | $0 | $450,521 | $450,521 |
| 2014 | $202,995 | $250,000 | $0 | $452,995 | $452,995 |
| 2013 | $220,589 | $218,534 | $0 | $439,123 | $439,123 |
| 2012 | $222,949 | $218,534 | $0 | $441,483 | $441,483 |
| 2011 | $225,310 | $218,534 | $0 | $443,844 | $443,844 |
| 2010 | $233,735 | $218,534 | $0 | $452,269 | $452,269 |
| 2009 | $243,653 | $291,379 | $0 | $535,032 | $535,032 |
| 2008 | $246,894 | $291,379 | $0 | $538,273 | $538,273 |
| 2007 | $360,963 | $184,417 | $0 | $545,380 | $545,380 |
Deed and Sales History
| 1 | 08/07/2025 | WD | Warranty Deed | SAGE TRUSTEE, CYNTHIA L | WALTER, KELLINI | | | $1,050,000.00 | 64546 | 4589877 |
| 2 | 12/24/2015 | WD | Warranty Deed | SPRECHER FAMILY LLC | SAGE TRUSTEE, CYNTHIA L | | | $900,000.00 | 22674 | 4391803 |
|   | |
| 3 | 11/02/1998 | QCD | Quit Claim Deed | SPRECHER, TERESA K | SPRECHER FAMILY LLC, | | | $0.00 | 92896 | 99017220 |
| 4 | 10/01/1989 | WD | Warranty Deed | SCHWAGER, JOHN A | SPRECHER, TERESA K | | | $101,630.00 | 94841 | 89015698 |
| 5 | 06/01/1989 | QCD | Quit Claim Deed | LEWIS, MICHAEL D | LEWIS, MICHAEL D | | | $0.00 | 92638 | 89008904 |
| 6 | 06/01/1989 | WD | Warranty Deed | LEWIS, MICHAEL D | SCHWAGER, JOHN A | | | $60,000.00 | 92639 | 89008905 |
| 7 | 06/01/1989 | QCD | Quit Claim Deed | SCHWAGER, JOHN A | SCHWAGER, JOHN A | | | $0.00 | 92667 | 89009004 |
| 8 | 01/01/1900 | OTHER | Other - Misc. Documents | Unknown | LEWIS, MICHAEL D | | | $0.00 | 0 | 0 |
Payout Agreement
| No payout information available.. |