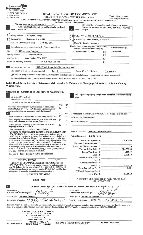
Property
Account |
| Property ID: | 465240 | Abbreviated Legal Description: | NE SW SW NW TGW SUB EZ SP78 56 LOT A FR3000330 |
| Geographic ID: | R13311-300-0490 | Agent Code: | |
| Type: | Real | | |
| Tax Area: | 119 - APPRAISER-OH Schl Dist, outside OH, vacant & 50 acres or less | Land Use Code | 91 |
| Open Space: | N | DFL | N |
| Historic Property: | N | Remodel Property: | N |
| Multi-Family Redevelopment: | N | | |
| Township: | 33 | Section: | 11 |
| Range: | R1 |
Location |
| Address: | | Mapsco: | |
| Neighborhood: | Cycle 6 | Map ID: | 202 |
| Neighborhood CD: | 6 |
Owner |
| Name: | BENNETT, WILLIAM A | Owner ID: | 284957 |
| Mailing Address: | ADRIENNE N BENNETT PO BOX 2101 OAK HARBOR, WA 98277 | % Ownership: | 100.0000000000% |
| | | Exemptions: | |
Taxes and Assessment Details
Values
| (+) Improvement Homesite Value: | + | N/A | |
| (+) Improvement Non-Homesite Value: | + | N/A | |
| (+) Land Homesite Value: | + | N/A | |
| (+) Land Non-Homesite Value: | + | N/A | Ag / Timber Use Value |
| (+) Curr Use (HS): | + | N/A | N/A |
| (+) Curr Use (NHS): | + | N/A | N/A |
| | | -------------------------- | |
| (=) Market Value: | = | N/A | |
| (–) Productivity Loss: | – | N/A | |
| | | -------------------------- | |
| (=) Subtotal: | = | N/A | |
| (+) Senior Appraised Value: | + | N/A | |
| (+) Non-Senior Appraised Value: | + | N/A | |
| | | -------------------------- | |
| (=) Total Appraised Value: | = | N/A | |
| (–) Senior Exemption Loss: | – | N/A | |
| (–) Exemption Loss: | – | N/A | |
| | | -------------------------- | |
| (=) Taxable Value: | = | N/A | |
Taxing Jurisdiction
| Owner: | BENNETT, WILLIAM A | | |
| % Ownership: | 100.0000000000% | | |
| Total Value: | N/A | | |
| Tax Area: | 119 - APPRAISER-OH Schl Dist, outside OH, vacant & 50 acres or less |
| CF | Conservation Futures | N/A | N/A | N/A | N/A | | |
| WCD | Whidbey Conservation District | N/A | N/A | N/A | N/A | | |
| CEM1 | Cemetery #1 | N/A | N/A | N/A | N/A | | |
| HOBOND | Hospital BOND | N/A | N/A | N/A | N/A | | |
| HOGEN | Hospital GEN | N/A | N/A | N/A | N/A | | |
| CE | County Current Expense | N/A | N/A | N/A | N/A | | |
| CR | County Roads | N/A | N/A | N/A | N/A | | |
| ISLANDEMS | Hospital GEN (EMS) | N/A | N/A | N/A | N/A | | |
| LIB | Library Sno-Isle GEN | N/A | N/A | N/A | N/A | | |
| NWHIDPRMT | P & R N Whidbey GEN | N/A | N/A | N/A | N/A | | |
| SCH201MO | School 201 Enrichment | N/A | N/A | N/A | N/A | | |
| ST | State School | N/A | N/A | N/A | N/A | | |
| ST2 | State School Part 2 | N/A | N/A | N/A | N/A | | |
| | Total Tax Rate: | N/A | | | | | |
| | | | | Taxes w/Current Exemptions: | N/A | | |
| | | | | Taxes w/o Exemptions: | N/A | | |
Improvement / Building
Sketch
| No sketches available for this property. |
Property Image
Land
| 1 | 18 | AC (02.01-03.00) | 2.5000 | 108900.00 | 0.00 | 0.00 | 1.00 | N/A | N/A |
Roll Value History
| 2026 | N/A | N/A | N/A | N/A | N/A |
| 2025 | $0 | $120,000 | $0 | $120,000 | $120,000 |
| 2024 | $0 | $120,000 | $0 | $120,000 | $120,000 |
| 2023 | $0 | $110,000 | $0 | $110,000 | $110,000 |
| 2022 | $0 | $80,000 | $0 | $80,000 | $80,000 |
| 2021 | $0 | $80,000 | $0 | $80,000 | $80,000 |
| 2020 | $0 | $70,000 | $0 | $70,000 | $70,000 |
| 2019 | $0 | $90,000 | $0 | $90,000 | $90,000 |
| 2018 | $0 | $90,000 | $0 | $90,000 | $90,000 |
| 2017 | $0 | $80,000 | $0 | $80,000 | $80,000 |
| 2016 | $0 | $80,000 | $0 | $80,000 | $80,000 |
| 2015 | $0 | $80,000 | $0 | $80,000 | $80,000 |
| 2014 | $0 | $70,000 | $0 | $70,000 | $70,000 |
| 2013 | $0 | $50,000 | $0 | $50,000 | $50,000 |
| 2012 | $0 | $61,200 | $0 | $61,200 | $61,200 |
| 2011 | $0 | $61,200 | $0 | $61,200 | $61,200 |
| 2010 | $0 | $61,200 | $0 | $61,200 | $61,200 |
| 2009 | $0 | $72,000 | $0 | $72,000 | $72,000 |
| 2008 | $0 | $75,000 | $0 | $75,000 | $75,000 |
| 2007 | $0 | $75,000 | $0 | $75,000 | $75,000 |
Deed and Sales History
| 1 | 05/03/2018 | WD | Warranty Deed | ERIE TTEE, MICHAEL N | BENNETT, WILLIAM A | | | $109,000.00 | 33972 | 4443831 |
|   | |
| 2 | 11/30/2015 | QCD | Quit Claim Deed | ERIE TTEE, MICHAEL N | ERIE TTEE, MICHAEL N | | | $0.00 | 22776 | 4392280 |
| 3 | 11/30/2015 | QCD | Quit Claim Deed | ERIE TRUSTEE, MICHAEL N | ERIE TTEE, MICHAEL N | | | $0.00 | 22774 | 4392278 |
| 4 | 11/20/2013 | SPWARDEED | Special Warranty Deed | ERIE TRUSTEE, NORMAN A | ERIE TRUSTEE, MICHAEL N | | | $0.00 | 13894 | 4353341 |
| 5 | 10/31/2012 | TOD | Transfer On Death Deed | ERIE, TR, NORMAN A | ERIE TRUSTEE, NORMAN A | | | | 82529 | |
| 6 | 06/22/2000 | QCD | Quit Claim Deed | Unknown | ERIE, TR, NORMAN A | | | $0.00 | 2873 | 20013526 |
| 7 | 01/01/1900 | OTHER | Other - Misc. Documents | Unknown | ERIE, NORMAN | | | $0.00 | 0 | 0 |
Payout Agreement
| No payout information available.. |