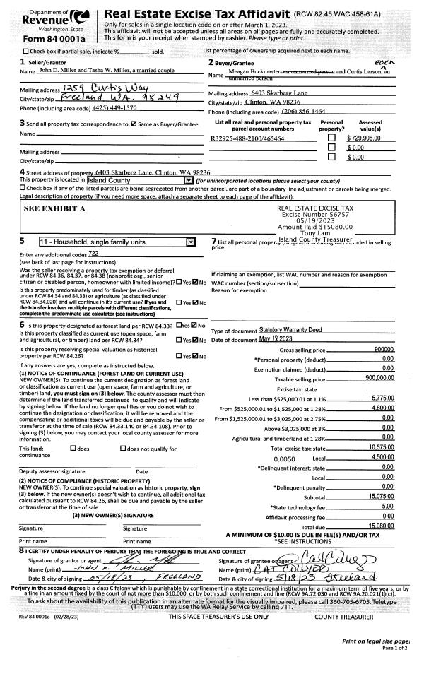
Property
Account |
| Property ID: | 465464 | Abbreviated Legal Description: | BG INTER CLN DEERLAKE RD & WLN E/2 NE NW N846' TPB E150' S250' E254.7' N260' E TO ELN E/2 NE NW N TO NLN W TO WLN S TPB TGW EZ FR 455-2100 (LOT 3 SP 77-99 AF#337922) |
| Geographic ID: | R32925-488-2100 | Agent Code: | |
| Type: | Real | | |
| Tax Area: | 722 - APPRAISER-S Whid Schl Dist, Special District, improved, greater than 1 acre | Land Use Code | 11 |
| Open Space: | N | DFL | N |
| Historic Property: | N | Remodel Property: | N |
| Multi-Family Redevelopment: | N | | |
| Township: | 29 | Section: | 25 |
| Range: | R3 |
Location |
| Address: | 6403 SKARBERG LN CLINTON, WA 98236 | Mapsco: | |
| Neighborhood: | Cycle 4 | Map ID: | 814 |
| Neighborhood CD: | 4 |
Owner |
| Name: | BUCKMASTER, MEAGAN | Owner ID: | 308670 |
| Mailing Address: | 6403 SKARBERG LANE CLINTON, WA 98236 | % Ownership: | 100.0000000000% |
| | | Exemptions: | |
Taxes and Assessment Details
Values
| (+) Improvement Homesite Value: | + | $0 | |
| (+) Improvement Non-Homesite Value: | + | $491,579 | |
| (+) Land Homesite Value: | + | $0 | |
| (+) Land Non-Homesite Value: | + | $370,000 | |
| (+) Curr Use (HS): | + | $0 | $0 |
| (+) Curr Use (NHS): | + | $0 | $0 |
| | | -------------------------- | |
| (=) Market Value: | = | $861,579 | |
| (–) Productivity Loss: | – | $0 | |
| | | -------------------------- | |
| (=) Subtotal: | = | $861,579 | |
| (+) Senior Appraised Value: | + | $0 | |
| (+) Non-Senior Appraised Value: | + | $861,579 | |
| | | -------------------------- | |
| (=) Total Appraised Value: | = | $861,579 | |
| (–) Senior Exemption Loss: | – | $0 | |
| (–) Exemption Loss: | – | $0 | |
| | | -------------------------- | |
| (=) Taxable Value: | = | $861,579 | |
Taxing Jurisdiction
| Owner: | BUCKMASTER, MEAGAN | | |
| % Ownership: | 100.0000000000% | | |
| Total Value: | $861,579 | | |
| Tax Area: | 722 - APPRAISER-S Whid Schl Dist, Special District, improved, greater than 1 acre |
| CF | Conservation Futures | 0.0313996660 | $861,579 | $861,579 | $27.05 | | |
| FIRE3 | Fire & Rescue Dist #3 S Whidbey GEN | 1.2130821753 | $861,579 | $861,579 | $1,045.17 | | |
| HOBOND | Hospital BOND | 0.1893405597 | $861,579 | $861,579 | $163.13 | | |
| HOGEN | Hospital GEN | 0.3848777722 | $861,579 | $861,579 | $331.60 | | |
| CE | County Current Expense | 0.3674210519 | $861,579 | $861,579 | $316.56 | | |
| CR | County Roads | 0.4614296361 | $861,579 | $861,579 | $397.56 | | |
| ISLANDEMS | Hospital GEN (EMS) | 0.4952018576 | $861,579 | $861,579 | $426.66 | | |
| LIB | Library Sno-Isle GEN | 0.3039084203 | $861,579 | $861,579 | $261.84 | | |
| PORTWHID | Port of S Whidbey GEN | 0.1086004714 | $861,579 | $861,579 | $93.57 | | |
| SCH206BOND | School 206 BOND | 0.5960237832 | $861,579 | $861,579 | $513.52 | | |
| SCH206CAP | School 206 CP | 0.3066144020 | $861,579 | $861,579 | $264.17 | | |
| SCH206MO | School 206 Enrichment | 0.4808755445 | $861,579 | $861,579 | $414.31 | | |
| ST | State School | 1.4761226122 | $861,579 | $861,579 | $1,271.80 | | |
| ST2 | State School Part 2 | 0.7953803475 | $861,579 | $861,579 | $685.28 | | |
| SWHIDPRBD | P & R S Whidbey BOND | 0.0144185398 | $861,579 | $861,579 | $12.42 | | |
| SWHIDPRBD3 | P & R S Whidbey BOND3 | 0.1483535547 | $861,579 | $861,579 | $127.82 | | |
| SWHIDPRMT | P & R S Whidbey GEN | 0.4600000000 | $861,579 | $861,579 | $396.33 | | |
| | Total Tax Rate: | 7.8330503944 | | | | | |
| | | | | Taxes w/Current Exemptions: | $6,748.79 | | |
| | | | | Taxes w/o Exemptions: | $6,748.79 | | |
Improvement / Building
| Improvement #1: | RESIDENTIAL | State Code: | Y | 2964.0 sqft | Value: | $491,579 |
| Bathrooms: | 2 | Bedrooms: | 4 | | Ceiling: | TONGUE & GROOVE | Cooling: | HEAT PUMP/CONV/V | | Exterior Wall/Cover: | WOOD SIDING | Floor Covering: | CERAMIC TILE/CPT 40-60 | | Floor Structure: | WOOD W/SUBFLOOR | Foundation: | CONCRETE | | Interior Finish: | DRYWALL PAINT | Plumbing Fixture Cnt: | 14 | | Roof Slope: | 18" IN 12" | Roof Structure/Cover: | BEAM ALUMINUM HEAVY |
|
| | Type | Description | Class CD | Sub Class CD | Year Built | Area |
| | BAS | BASE/MAIN FLOOR | 3 | 0 | 1975 | 1196.0 |
| | OP1 | OPEN PORCH SLAB | 3 | 0 | 1975 | 260.0 |
| | OWP | OPEN WOOD PORCH W/STEPS | 3 | 0 | 1975 | 672.0 |
| | OWP | OPEN WOOD PORCH W/STEPS | 3 | 0 | 1975 | 32.0 |
| | OWP | OPEN WOOD PORCH W/STEPS | 3 | 0 | 1975 | 272.5 |
| | OWC | OPEN WOOD PORCH W/STEPS/ROOF/C | 3 | 0 | 1975 | 120.0 |
| | ENP | ENCLOSED PORCH | 3 | 0 | 1975 | 26.0 |
| | UPH | HALF STORY | 3 | 0 | 1975 | 572.0 |
| | DWN | DOWNSTAIRS LIVING AREA | 3 | 0 | 1975 | 1196.0 |
| | DGR | DETACHED GARAGE | 3 | 0 | 1975 | 720.0 |
Sketch
Property Image
Land
| 1 | 32 | AC (03.01-09.99) | 5.1100 | 0.00 | 0.00 | 0.00 | 1.00 | $370,000 | $0 |
Roll Value History
| 2026 | N/A | N/A | N/A | N/A | N/A |
| 2025 | $491,579 | $370,000 | $0 | $861,579 | $861,579 |
| 2024 | $497,347 | $350,000 | $0 | $847,347 | $847,347 |
| 2023 | $480,046 | $330,000 | $0 | $810,046 | $810,046 |
| 2022 | $439,908 | $290,000 | $0 | $729,908 | $729,908 |
| 2021 | $382,830 | $230,000 | $0 | $612,830 | $612,830 |
| 2020 | $375,567 | $190,000 | $0 | $565,567 | $565,567 |
| 2019 | $303,252 | $250,000 | $0 | $553,252 | $553,252 |
| 2018 | $258,103 | $210,000 | $0 | $468,103 | $468,103 |
| 2017 | $259,789 | $165,000 | $0 | $424,789 | $424,789 |
| 2016 | $263,163 | $165,000 | $0 | $428,163 | $428,163 |
| 2015 | $266,538 | $150,000 | $0 | $416,538 | $416,538 |
| 2014 | $219,011 | $173,740 | $0 | $392,751 | $392,751 |
| 2013 | $221,489 | $173,740 | $0 | $395,229 | $395,229 |
| 2012 | $223,969 | $173,740 | $0 | $397,709 | $397,709 |
| 2011 | $226,449 | $173,740 | $0 | $400,189 | $400,189 |
| 2010 | $235,073 | $173,740 | $0 | $408,813 | $408,813 |
| 2009 | $244,726 | $224,840 | $0 | $469,566 | $469,566 |
| 2008 | $205,472 | $255,500 | $0 | $460,972 | $460,972 |
| 2007 | $208,777 | $214,620 | $0 | $423,397 | $423,397 |
Deed and Sales History
| 1 | 05/18/2023 | WD | Warranty Deed | MILLER, JOHN D | BUCKMASTER, MEAGAN | | | $900,000.00 | 56757 | 4560099 |
| 2 | 09/19/2018 | WD | Warranty Deed | FURSTENWERTH, GREGORY SMITH | MILLER, JOHN D | | | $515,000.00 | 36159 | 4452846 |
| 3 | 02/13/2015 | WD | Warranty Deed | WILSON, TERRY ANN | FURSTENWERTH, GREGORY SMITH | | | $399,888.00 | 18566 | 4373784 |
| 4 | 03/18/2011 | PRD | Personal Representatives Deed | WILSON, RICKY E & TERRY A | WILSON, TERRY ANN | | | $0.00 | 3909 | 4292419 |
| 5 | 12/01/1996 | WD | Warranty Deed | FARNWORTH, WILFRED | WILSON, RICKY E | | | $200,000.00 | 64406 | 96021540 |
| 6 | 07/01/1994 | OTHER | Other - Misc. Documents | FARNWORTH, WILFRED | FARNWORTH, WILFRED | | | $0.00 | 65986 | 0 |
| 7 | 08/01/1987 | QCD | Quit Claim Deed | FARNWORTH, WILFRED | FARNWORTH, WILFRED | | | $1,250.00 | 72584 | 87011770 |
| 8 | 07/01/1986 | QCD | Quit Claim Deed | COSTA, LAWRENCE P | FARNWORTH, WILFRED | | | $0.00 | 62619 | 86011899 |
| 9 | 03/01/1980 | EXECUTORD | Executor Deed | FARNWORTH, WILFRED | COSTA, LAWRENCE P | | | $85,000.00 | 932 | 366539 |
| 10 | 01/01/1900 | OTHER | Other - Misc. Documents | Unknown | FARNWORTH, WILFRED | | | $0.00 | 0 | 0 |
Payout Agreement
| No payout information available.. |