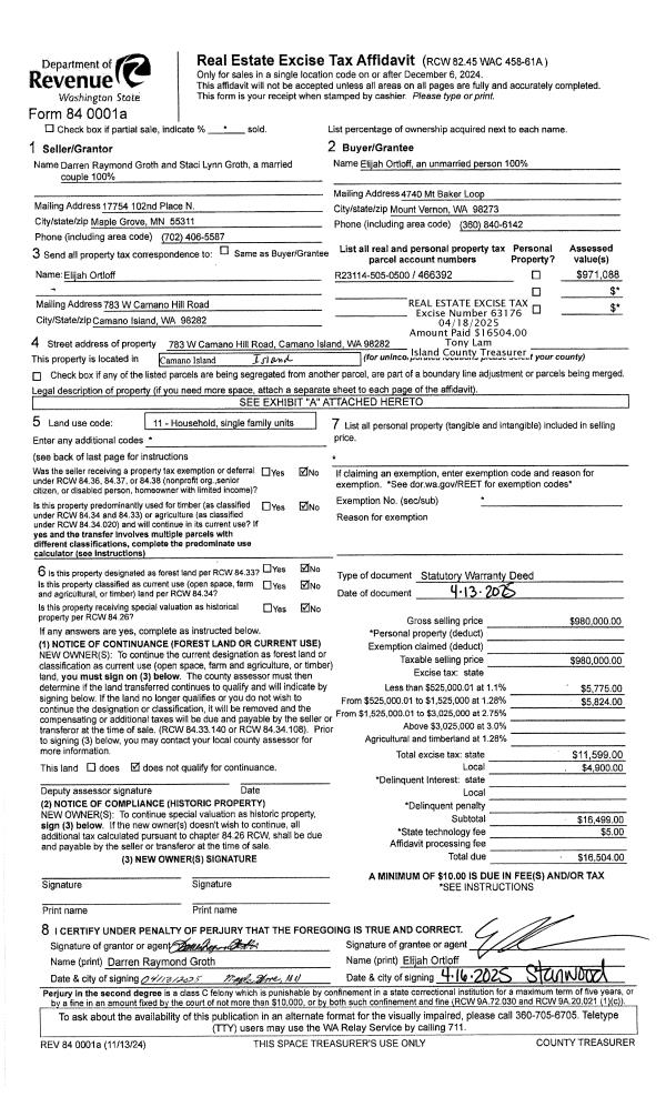
Property
Account |
| Property ID: | 466392 | Abbreviated Legal Description: | 3.8100 Acres ins Section 14s Township 31s Range R2s LOT B BLA 198-17 LOT B SP 76-70 IN N/2 NW NW PARCEL B BLA 206/22;s |
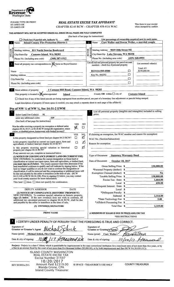
| Geographic ID: | R23114-505-0500 | Agent Code: | |
| Type: | Real | | |
| Tax Area: | 512 - APPRAISER-Stan/Cam Schl Dist, improved, greater than 1 acre | Land Use Code | 11 |
| Open Space: | N | DFL | N |
| Historic Property: | N | Remodel Property: | N |
| Multi-Family Redevelopment: | N | | |
| Township: | 31 | Section: | 14 |
| Range: | R2 |
Location |
| Address: | 783 W CAMANO HILL RD CAMANO ISLAND, WA 98282 | Mapsco: | |
| Neighborhood: | Cycle 5 | Map ID: | 483 |
| Neighborhood CD: | 5 |
Owner |
| Name: | ORTLOFF, ELIJAH | Owner ID: | 316169 |
| Mailing Address: | 783 W CAMANO HILL RD CAMANO ISLAND, WA 98282 | % Ownership: | 100.0000000000% |
| | | Exemptions: | |
Taxes and Assessment Details
Values
| (+) Improvement Homesite Value: | + | $0 | |
| (+) Improvement Non-Homesite Value: | + | $666,433 | |
| (+) Land Homesite Value: | + | $0 | |
| (+) Land Non-Homesite Value: | + | $330,000 | |
| (+) Curr Use (HS): | + | $0 | $0 |
| (+) Curr Use (NHS): | + | $0 | $0 |
| | | -------------------------- | |
| (=) Market Value: | = | $996,433 | |
| (–) Productivity Loss: | – | $0 | |
| | | -------------------------- | |
| (=) Subtotal: | = | $996,433 | |
| (+) Senior Appraised Value: | + | $0 | |
| (+) Non-Senior Appraised Value: | + | $996,433 | |
| | | -------------------------- | |
| (=) Total Appraised Value: | = | $996,433 | |
| (–) Senior Exemption Loss: | – | $0 | |
| (–) Exemption Loss: | – | $0 | |
| | | -------------------------- | |
| (=) Taxable Value: | = | $996,433 | |
Taxing Jurisdiction
| Owner: | ORTLOFF, ELIJAH | | |
| % Ownership: | 100.0000000000% | | |
| Total Value: | $996,433 | | |
| Tax Area: | 512 - APPRAISER-Stan/Cam Schl Dist, improved, greater than 1 acre |
| CF | Conservation Futures | 0.0313996660 | $996,433 | $996,433 | $31.29 | | |
| EMS1 | Fire & Rescue Dist #1 Camano GEN (EMS) | 0.4998471806 | $996,433 | $996,433 | $498.06 | | |
| FIRE1 | Fire & Rescue Dist #1 Camano GEN | 1.2496603404 | $996,433 | $996,433 | $1,245.20 | | |
| FIRE1BOND | Fire & Rescue Dist #1 Camano BOND | 0.1630371212 | $996,433 | $996,433 | $162.46 | | |
| CE | County Current Expense | 0.3674210519 | $996,433 | $996,433 | $366.11 | | |
| CR | County Roads | 0.4614296361 | $996,433 | $996,433 | $459.78 | | |
| LIB | Library Sno-Isle GEN | 0.3039084203 | $996,433 | $996,433 | $302.82 | | |
| SCH205_401 | School 205-401 Enrichment | 1.3697998934 | $996,433 | $996,433 | $1,364.91 | | |
| SCH205BOND | School 205-401 BOND | 0.9354199323 | $996,433 | $996,433 | $932.08 | | |
| ST | State School | 1.4761226122 | $996,433 | $996,433 | $1,470.86 | | |
| ST2 | State School Part 2 | 0.7953803475 | $996,433 | $996,433 | $792.54 | | |
| | Total Tax Rate: | 7.6534262019 | | | | | |
| | | | | Taxes w/Current Exemptions: | $7,626.11 | | |
| | | | | Taxes w/o Exemptions: | $7,626.11 | | |
Improvement / Building
| Improvement #1: | RESIDENTIAL | State Code: | Y | 2852.3 sqft | Value: | $666,433 |
| Bathrooms: | 2 | Bedrooms: | 3 | | Ceiling: | DRYWALL PAINTED | Cooling: | HEAT PUMP/CONV/V | | Exterior Wall/Cover: | CEMENT FIBER | Floor Covering: | VINYL 100% | | Floor Structure: | WOOD W/SUBFLOOR | Foundation: | CONCRETE | | Interior Finish: | DRYWALL PAINT | Plumbing Fixture Cnt: | 12 | | Roof Slope: | 6" IN 12" | Roof Structure/Cover: | CJ ASPHALT |
|
| | Type | Description | Class CD | Sub Class CD | Year Built | Area |
| | BAS | BASE/MAIN FLOOR | 4 | 0 | 2019 | 2333.8 |
| | UPS | UPPER STORY | 4 | 0 | 2019 | 518.5 |
| | AGR | ATTACHED GARAGE | 4 | 0 | 2019 | 1252.0 |
| | OWP | OPEN WOOD PORCH W/STEPS | 4 | 0 | 2019 | 424.0 |
| | OWP | OPEN WOOD PORCH W/STEPS | 4 | 0 | 2019 | 176.6 |
Sketch
Property Image
Land
| 1 | 32 | AC (03.01-09.99) | 3.8100 | 165963.60 | 2.21 | 0.00 | 1.00 | $330,000 | $0 |
Roll Value History
| 2026 | N/A | N/A | N/A | N/A | N/A |
| 2025 | $666,433 | $330,000 | $0 | $996,433 | $996,433 |
| 2024 | $671,808 | $300,000 | $0 | $971,808 | $971,808 |
| 2023 | $677,183 | $290,000 | $0 | $967,183 | $967,183 |
| 2022 | $545,928 | $290,000 | $0 | $835,928 | $835,928 |
| 2021 | $479,682 | $190,000 | $0 | $669,682 | $669,682 |
| 2020 | $473,961 | $160,000 | $0 | $633,961 | $633,961 |
| 2019 | $284,528 | $230,000 | $0 | $514,528 | $514,528 |
| 2018 | $0 | $125,000 | $0 | $125,000 | $125,000 |
| 2017 | $0 | $150,000 | $0 | $150,000 | $150,000 |
| 2016 | $0 | $160,000 | $0 | $160,000 | $0 |
| 2015 | $0 | $142,910 | $0 | $142,910 | $0 |
| 2014 | $0 | $142,910 | $0 | $142,910 | $0 |
| 2013 | $0 | $142,910 | $0 | $142,910 | $0 |
| 2012 | $0 | $142,910 | $0 | $142,910 | $0 |
| 2011 | $0 | $142,910 | $0 | $142,910 | $0 |
| 2010 | $0 | $142,910 | $0 | $142,910 | $0 |
| 2009 | $0 | $207,450 | $0 | $207,450 | $0 |
| 2008 | $0 | $201,457 | $0 | $201,457 | $0 |
| 2007 | $0 | $202,768 | $0 | $202,768 | $0 |
Deed and Sales History
| 1 | 04/13/2025 | WD | Warranty Deed | GROTH, DARREN R | ORTLOFF, ELIJAH | | | $980,000.00 | 63176 | 4584663 |
| 2 | 10/17/2022 | WD | Warranty Deed | WELLER, KAREN | GROTH, DARREN R | | | $970,000.00 | 54901 | 4552722 |
| 3 | 10/14/2022 | WD | Warranty Deed | WELLER, KAREN | EASTBURN, MICHAEL W | | | $17,000.00 | 54897 | 4552703 |
| 4 | 11/17/2020 | QCD | Quit Claim Deed | WELLER, CURT | WELLER, KAREN | | | $0.00 | 47911 | 4517251 |
| 5 | 10/18/2017 | WD | Warranty Deed | IS CO FIRE PROTECTION DIST 1 | WELLER, CURT | | | $130,000.00 | 31597 | 4432502 |
| 6 | 11/28/2005 | QCD | Quit Claim Deed | PROTECTION DIST 1, ISLAND CTY | IS CO FIRE PROTECTION DIST 1, | | | $819.00 | 60347 | 4160801 |
| 7 | 02/11/2003 | WD | Warranty Deed | WALLE, STEVEN MICHAEL | PROTECTION DIST 1, ISLAND CTY | | | $107,381.00 | 30605 | 4047754 |
| 8 | 02/11/2003 | WD | Warranty Deed | WALLE, STEVEN MICHAEL | WALLE, STEVEN MICHAEL | | | $0.00 | 30604 | 4047753 |
| 9 | 02/11/2003 | QCD | Quit Claim Deed | WALLE, V P | WALLE, STEVEN MICHAEL | | | $0.00 | 30603 | 4047752 |
| 10 | 03/01/1991 | QCD | Quit Claim Deed | WALLE, V P | WALLE, V P | | | $0.00 | 11265 | 91005518 |
| 11 | 01/01/1900 | OTHER | Other - Misc. Documents | Unknown | WALLE, V P | | | $0.00 | 0 | 0 |
Payout Agreement
| No payout information available.. |