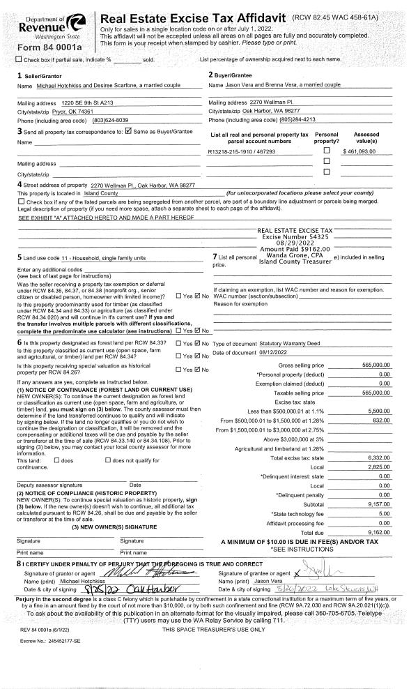
Property
Account |
| Property ID: | 467293 | Abbreviated Legal Description: | IN NE SW: BG SWCR NE SW N330.01' N89*E390' N424.44' TPB N141.48' N89*E390' S141 .48' S89*W390' TPB TGW EZ (LOT D SP 78-146 AF#351376) FR 194-1520 & 194-1910 |
| Geographic ID: | R13218-215-1910 | Agent Code: | |
| Type: | Real | | |
| Tax Area: | 112 - APPRAISER-OH Schl Dist, outside OH, improved, greater than 1 acre | Land Use Code | 11 |
| Open Space: | N | DFL | N |
| Historic Property: | N | Remodel Property: | N |
| Multi-Family Redevelopment: | N | | |
| Township: | 32 | Section: | 18 |
| Range: | R1 |
Location |
| Address: | 2270 WELLMAN PLACE OAK HARBOR, WA 98277 | Mapsco: | |
| Neighborhood: | Cycle 1 | Map ID: | 137 |
| Neighborhood CD: | 1 |
Owner |
| Name: | VERA, JASON | Owner ID: | 305871 |
| Mailing Address: | BRENNA VERA 2270 WELLMAN PL OAK HARBOR, WA 98277 | % Ownership: | 100.0000000000% |
| | | Exemptions: | |
Taxes and Assessment Details
Values
| (+) Improvement Homesite Value: | + | $0 | |
| (+) Improvement Non-Homesite Value: | + | $288,334 | |
| (+) Land Homesite Value: | + | $0 | |
| (+) Land Non-Homesite Value: | + | $240,000 | |
| (+) Curr Use (HS): | + | $0 | $0 |
| (+) Curr Use (NHS): | + | $0 | $0 |
| | | -------------------------- | |
| (=) Market Value: | = | $528,334 | |
| (–) Productivity Loss: | – | $0 | |
| | | -------------------------- | |
| (=) Subtotal: | = | $528,334 | |
| (+) Senior Appraised Value: | + | $0 | |
| (+) Non-Senior Appraised Value: | + | $528,334 | |
| | | -------------------------- | |
| (=) Total Appraised Value: | = | $528,334 | |
| (–) Senior Exemption Loss: | – | $0 | |
| (–) Exemption Loss: | – | $0 | |
| | | -------------------------- | |
| (=) Taxable Value: | = | $528,334 | |
Taxing Jurisdiction
| Owner: | VERA, JASON | | |
| % Ownership: | 100.0000000000% | | |
| Total Value: | $528,334 | | |
| Tax Area: | 112 - APPRAISER-OH Schl Dist, outside OH, improved, greater than 1 acre |
| CF | Conservation Futures | 0.0313996660 | $528,334 | $528,334 | $16.59 | | |
| CEM1 | Cemetery #1 | 0.0040018856 | $528,334 | $528,334 | $2.11 | | |
| FIRE2 | Fire & Rescue Dist #2 N Whidbey GEN | 0.5381486274 | $528,334 | $528,334 | $284.32 | | |
| HOBOND | Hospital BOND | 0.1893405597 | $528,334 | $528,334 | $100.04 | | |
| HOGEN | Hospital GEN | 0.3848777722 | $528,334 | $528,334 | $203.34 | | |
| CE | County Current Expense | 0.3674210519 | $528,334 | $528,334 | $194.12 | | |
| CR | County Roads | 0.4614296361 | $528,334 | $528,334 | $243.79 | | |
| ISLANDEMS | Hospital GEN (EMS) | 0.4952018576 | $528,334 | $528,334 | $261.63 | | |
| LIB | Library Sno-Isle GEN | 0.3039084203 | $528,334 | $528,334 | $160.57 | | |
| NWHIDPRMT | P & R N Whidbey GEN | 0.1990272349 | $528,334 | $528,334 | $105.15 | | |
| SCH201MO | School 201 Enrichment | 2.3851112745 | $528,334 | $528,334 | $1,260.14 | | |
| ST | State School | 1.4761226122 | $528,334 | $528,334 | $779.89 | | |
| ST2 | State School Part 2 | 0.7953803475 | $528,334 | $528,334 | $420.23 | | |
| | Total Tax Rate: | 7.6313709459 | | | | | |
| | | | | Taxes w/Current Exemptions: | $4,031.92 | | |
| | | | | Taxes w/o Exemptions: | $4,031.92 | | |
Improvement / Building
| Improvement #1: | RESIDENTIAL | State Code: | Y | 1638.1 sqft | Value: | $288,334 |
| Bathrooms: | 2 | Bedrooms: | 3 | | Ceiling: | DRYWALL PAINTED | Cooling: | HEAT PUMP/CONV/V | | Exterior Wall/Cover: | PLY/HARDBOARD T-111 | Floor Covering: | HARDWOOD/CARP 60-40 | | Floor Structure: | WOOD W/SUBFLOOR | Foundation: | CONCRETE | | Interior Finish: | DRYWALL PAINT | Plumbing Fixture Cnt: | 9 | | Roof Slope: | 3" IN 12" | Roof Structure/Cover: | CJ ASPHALT |
|
| | Type | Description | Class CD | Sub Class CD | Year Built | Area |
| | BAS | BASE/MAIN FLOOR | 3 | 0 | 1985 | 1638.1 |
| | AGR | ATTACHED GARAGE | 3 | 0 | 1985 | 440.0 |
| | OWR | OPEN WOOD PORCH W/STEPS/ROOF | 3 | 0 | 1985 | 144.0 |
| | OWC | OPEN WOOD PORCH W/STEPS/ROOF/C | 3 | 0 | 1985 | 7.8 |
Sketch
Property Image
Land
| 1 | 17 | AC (01.01-02.00) | 0.0000 | 55321.20 | 0.00 | 0.00 | 1.00 | $240,000 | $0 |
Roll Value History
| 2026 | N/A | N/A | N/A | N/A | N/A |
| 2025 | $288,334 | $240,000 | $0 | $528,334 | $528,334 |
| 2024 | $291,798 | $220,000 | $0 | $511,798 | $511,798 |
| 2023 | $284,871 | $220,000 | $0 | $504,871 | $504,871 |
| 2022 | $261,093 | $200,000 | $0 | $461,093 | $461,093 |
| 2021 | $229,761 | $170,000 | $0 | $399,761 | $399,761 |
| 2020 | $194,335 | $130,000 | $0 | $324,335 | $324,335 |
| 2019 | $142,875 | $180,000 | $0 | $322,875 | $322,875 |
| 2018 | $143,342 | $140,000 | $0 | $283,342 | $283,342 |
| 2017 | $134,791 | $150,000 | $0 | $284,791 | $284,791 |
| 2016 | $136,542 | $120,000 | $0 | $256,542 | $256,542 |
| 2015 | $124,994 | $85,000 | $0 | $209,994 | $209,994 |
| 2014 | $126,807 | $85,000 | $0 | $211,807 | $211,807 |
| 2013 | $128,619 | $85,000 | $0 | $213,619 | $213,619 |
| 2012 | $130,430 | $85,000 | $0 | $215,430 | $215,430 |
| 2011 | $142,818 | $100,000 | $0 | $242,818 | $242,818 |
| 2010 | $146,923 | $100,000 | $0 | $246,923 | $246,923 |
| 2009 | $153,894 | $120,000 | $0 | $273,894 | $273,894 |
| 2008 | $160,500 | $120,000 | $0 | $280,500 | $280,500 |
| 2007 | $163,346 | $120,000 | $0 | $283,346 | $283,346 |
Deed and Sales History
| 1 | 08/12/2022 | WD | Warranty Deed | HOTCHKISS, MICHAEL | VERA, JASON | | | $565,000.00 | 54325 | 4550365 |
| 2 | 10/21/2020 | WD | Warranty Deed | TOFIL IV, JOHN J | HOTCHKISS, MICHAEL | | | $442,000.00 | 45417 | 4500596 |
| 3 | 04/18/2016 | WD | Warranty Deed | DUFFIELD, JASON B | TOFIL IV, JOHN J | | | $279,500.00 | 24019 | 4398218 |
| 4 | 09/28/2009 | WD | Warranty Deed | STAPPART, PHILIP R | DUFFIELD, JASON B | | | $235,000.00 | 92333 | 4261046 |
| 5 | 06/21/1999 | WD | Warranty Deed | TEMPLIN, DON L | STAPPART, PHILIP R | | | $154,900.00 | 92449 | 99014859 |
| 6 | 08/01/1992 | WD | Warranty Deed | PARKER, JOHNNIE L | TEMPLIN, DON L | | | $120,000.00 | 23402 | 92016570 |
| 7 | 11/01/1985 | WD | Warranty Deed | KOETJE, GORDON H | PARKER, JOHNNIE L | | | $75,575.00 | 53138 | 85012421 |
| 8 | 10/01/1984 | WD | Warranty Deed | SOMMERS, JEFFERY J | KOETJE, GORDON H | | | $18,500.00 | 42932 | 84004084 |
| 9 | 12/01/1983 | WD | Warranty Deed | FRASER, DAVID W | SOMMERS, JEFFERY J | | | $18,500.00 | 33721 | 419058 |
| 10 | 04/01/1980 | QCD | Quit Claim Deed | ANDRE, GENE V | FAKKEMA, R P | | | $0.00 | 1273 | 367656 |
| 11 | 04/01/1980 | REC | Real Estate Contract | FAKKEMA, R P | FRASER, DAVID W | | | $15,000.00 | 1384 | 367998 |
| 12 | 07/01/1979 | REC | Real Estate Contract | FAKKEMA, ROBERT P | ANDRE, GENE V | | | $16,000.00 | 93452 | 355647 |
| 13 | 11/01/1978 | OTHER | Other - Misc. Documents | Unknown | FAKKEMA, ROBERT P | | | $18,500.00 | 86147 | 344777 |
Payout Agreement
| No payout information available.. |