Property
Account |
| Property ID: | 467818 | Abbreviated Legal Description: | N/2 NW NE SE NW EX PT TO IS CO AF#369928 (AKA LOT 8 SP 79-79 AF#359017 & LOT 8 SURVEY AF#361531) EX PT SD LOT 8 DESC: BG NWCR SD LOT 8 S1*W ALG WLN 122.41' TO SWCR SD LOT 8 S89*E ALG SLN 3.36' N122.40' TO NLN SD LOT 8 ALSO S R/W LN HASTIE LAKE RD N89*W |
| Geographic ID: | R13218-388-2150 | Agent Code: | |
| Type: | Real | | |
| Tax Area: | 110 - APPRAISER-OH Schl Dist, outside OH, improved & 1 acre or less | Land Use Code | 11 |
| Open Space: | N | DFL | N |
| Historic Property: | N | Remodel Property: | N |
| Multi-Family Redevelopment: | N | | |
| Township: | 32 | Section: | 18 |
| Range: | R1 |
Location |
| Address: | 1491 EMERALD CT OAK HARBOR, WA 98277 | Mapsco: | |
| Neighborhood: | Cycle 1 | Map ID: | 139 |
| Neighborhood CD: | 1 |
Owner |
| Name: | OWENS, TERRIE | Owner ID: | 279965 |
| Mailing Address: | MICHAEL ROACH 1491 EMERALD COURT OAK HARBOR, WA 98277 | % Ownership: | 100.0000000000% |
| | | Exemptions: | |
Taxes and Assessment Details
Values
| (+) Improvement Homesite Value: | + | $0 | |
| (+) Improvement Non-Homesite Value: | + | $297,170 | |
| (+) Land Homesite Value: | + | $0 | |
| (+) Land Non-Homesite Value: | + | $220,000 | |
| (+) Curr Use (HS): | + | $0 | $0 |
| (+) Curr Use (NHS): | + | $0 | $0 |
| | | -------------------------- | |
| (=) Market Value: | = | $517,170 | |
| (–) Productivity Loss: | – | $0 | |
| | | -------------------------- | |
| (=) Subtotal: | = | $517,170 | |
| (+) Senior Appraised Value: | + | $0 | |
| (+) Non-Senior Appraised Value: | + | $517,170 | |
| | | -------------------------- | |
| (=) Total Appraised Value: | = | $517,170 | |
| (–) Senior Exemption Loss: | – | $0 | |
| (–) Exemption Loss: | – | $0 | |
| | | -------------------------- | |
| (=) Taxable Value: | = | $517,170 | |
Taxing Jurisdiction
| Owner: | OWENS, TERRIE | | |
| % Ownership: | 100.0000000000% | | |
| Total Value: | $517,170 | | |
| Tax Area: | 110 - APPRAISER-OH Schl Dist, outside OH, improved & 1 acre or less |
| CF | Conservation Futures | 0.0313996660 | $517,170 | $517,170 | $16.24 | | |
| CEM1 | Cemetery #1 | 0.0040018856 | $517,170 | $517,170 | $2.07 | | |
| FIRE2 | Fire & Rescue Dist #2 N Whidbey GEN | 0.5381486274 | $517,170 | $517,170 | $278.31 | | |
| HOBOND | Hospital BOND | 0.1893405597 | $517,170 | $517,170 | $97.92 | | |
| HOGEN | Hospital GEN | 0.3848777722 | $517,170 | $517,170 | $199.05 | | |
| CE | County Current Expense | 0.3674210519 | $517,170 | $517,170 | $190.02 | | |
| CR | County Roads | 0.4614296361 | $517,170 | $517,170 | $238.64 | | |
| ISLANDEMS | Hospital GEN (EMS) | 0.4952018576 | $517,170 | $517,170 | $256.10 | | |
| LIB | Library Sno-Isle GEN | 0.3039084203 | $517,170 | $517,170 | $157.17 | | |
| NWHIDPRMT | P & R N Whidbey GEN | 0.1990272349 | $517,170 | $517,170 | $102.93 | | |
| SCH201MO | School 201 Enrichment | 2.3851112745 | $517,170 | $517,170 | $1,233.51 | | |
| ST | State School | 1.4761226122 | $517,170 | $517,170 | $763.41 | | |
| ST2 | State School Part 2 | 0.7953803475 | $517,170 | $517,170 | $411.35 | | |
| | Total Tax Rate: | 7.6313709459 | | | | | |
| | | | | Taxes w/Current Exemptions: | $3,946.72 | | |
| | | | | Taxes w/o Exemptions: | $3,946.72 | | |
Improvement / Building
| Improvement #1: | RESIDENTIAL | State Code: | Y | 1686.5 sqft | Value: | $297,170 |
| Bathrooms: | 2.5 | Bedrooms: | 3 | | Ceiling: | DRYWALL PAINTED | Exterior Wall/Cover: | WOOD SIDING | | Floor Covering: | HARDWOOD/CARP 20-80 | Floor Structure: | WOOD W/SUBFLOOR | | Foundation: | CONCRETE | Heating: | BASEBOARD ELECTRIC | | Interior Finish: | DRYWALL PAINT | Plumbing Fixture Cnt: | 13 | | Roof Slope: | 4" IN 12" | Roof Structure/Cover: | CJ ASPHALT |
|
| | Type | Description | Class CD | Sub Class CD | Year Built | Area |
| | BAS | BASE/MAIN FLOOR | 3 | 0 | 1984 | 918.5 |
| | OP1 | OPEN PORCH SLAB | 3 | 0 | 1984 | 338.0 |
| | OP4 | OPEN PORCH W/CEILING-ROOF | 3 | 0 | 1984 | 88.0 |
| | AGR | ATTACHED GARAGE | 3 | 0 | 1984 | 528.0 |
| | UPS | UPPER STORY | 3 | 0 | 1984 | 768.0 |
Sketch
Property Image
Land
| 1 | 16 | AC (00.51-01.00) | 0.0000 | 39204.00 | 0.00 | 0.00 | 1.00 | $220,000 | $0 |
Roll Value History
| 2026 | N/A | N/A | N/A | N/A | N/A |
| 2025 | $297,170 | $220,000 | $0 | $517,170 | $517,170 |
| 2024 | $306,945 | $200,000 | $0 | $506,945 | $506,945 |
| 2023 | $310,771 | $200,000 | $0 | $510,771 | $510,771 |
| 2022 | $284,861 | $180,000 | $0 | $464,861 | $464,861 |
| 2021 | $250,711 | $135,000 | $0 | $385,711 | $385,711 |
| 2020 | $243,830 | $100,000 | $0 | $343,830 | $343,830 |
| 2019 | $176,246 | $160,000 | $0 | $336,246 | $336,246 |
| 2018 | $176,764 | $140,000 | $0 | $316,764 | $316,764 |
| 2017 | $151,006 | $120,000 | $0 | $271,006 | $271,006 |
| 2016 | $152,993 | $120,000 | $0 | $272,993 | $272,993 |
| 2015 | $154,981 | $85,000 | $0 | $239,981 | $239,981 |
| 2014 | $156,966 | $63,750 | $0 | $220,716 | $220,716 |
| 2013 | $158,954 | $63,750 | $0 | $222,704 | $222,704 |
| 2012 | $160,941 | $63,750 | $0 | $224,691 | $224,691 |
| 2011 | $167,663 | $75,000 | $0 | $242,663 | $242,663 |
| 2010 | $186,376 | $75,000 | $0 | $261,376 | $261,376 |
| 2009 | $194,638 | $90,000 | $0 | $284,638 | $284,638 |
| 2008 | $201,950 | $95,500 | $0 | $297,450 | $297,450 |
| 2007 | $204,991 | $95,500 | $0 | $300,491 | $300,491 |
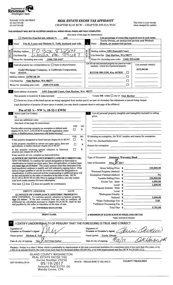
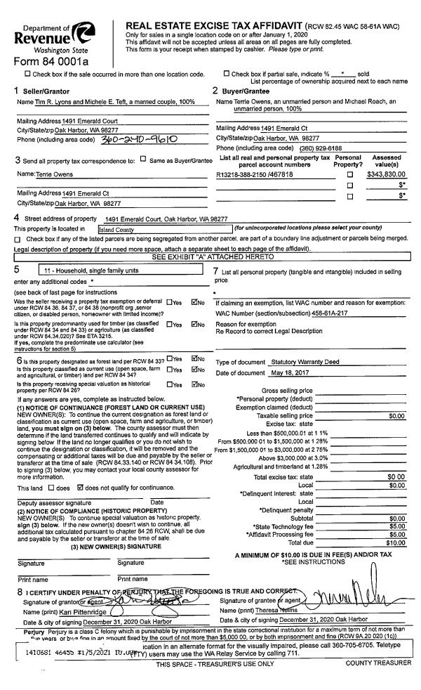
Deed and Sales History
| 1 | 05/05/2017 | WD | Warranty Deed | OWENS, TERRIE | OWENS, TERRIE | | | $0.00 | 46455 | 4507153 |
| 2 | 05/18/2017 | WD | Warranty Deed | LYNES, TIM R | OWENS, TERRIE | | | $320,000.00 | 29356 | 4422803 |
| 3 | 04/20/2007 | WD | Warranty Deed | SMITH, DAVID F | LYNES, TIM R | | | $305,000.00 | 71363 | 4200626 |
| 4 | 04/13/1999 | WD | Warranty Deed | FISHER, PAUL G | SMITH, DAVID F | | | $154,000.00 | 91396 | 99009228 |
| 5 | 11/01/1989 | WD | Warranty Deed | BROWN, KEVIN D | FISHER, PAUL G | | | $90,500.00 | 95165 | 89016642 |
| 6 | 06/01/1984 | WD | Warranty Deed | KOETJE, GORDON H | BROWN, KEVIN D | | | $80,820.00 | 41545 | 425289 |
| 7 | 05/01/1983 | WD | Warranty Deed | FAKKEMA, ROBT, C | KOETJE, GORDON H | | | $14,000.00 | 31339 | 409943 |
| 8 | 01/01/1900 | OTHER | Other - Misc. Documents | Unknown | FAKKEMA, ROBT, C | | | $0.00 | 0 | 0 |
Payout Agreement
| No payout information available.. |