Property
Account |
| Property ID: | 467836 | Abbreviated Legal Description: | S/2 SW NE SE NW SUB TGW EZ LOT 5 SP 79-79 FR 364-2150 & 364-2480 |
| Geographic ID: | R13218-339-2150 | Agent Code: | |
| Type: | Real | | |
| Tax Area: | 112 - APPRAISER-OH Schl Dist, outside OH, improved, greater than 1 acre | Land Use Code | 11 |
| Open Space: | N | DFL | N |
| Historic Property: | N | Remodel Property: | N |
| Multi-Family Redevelopment: | N | | |
| Township: | 32 | Section: | 18 |
| Range: | R1 |
Location |
| Address: | 1453 EMERALD CT OAK HARBOR, WA 98277 | Mapsco: | |
| Neighborhood: | Cycle 1 | Map ID: | 139 |
| Neighborhood CD: | 1 |
Owner |
| Name: | KIRKLAND, MATTHEW J | Owner ID: | 316317 |
| Mailing Address: | SHANNON E HURLEY 1453 EMERALD COURT OAK HARBOR, WA 98277 | % Ownership: | 100.0000000000% |
| | | Exemptions: | |
Taxes and Assessment Details
Values
| (+) Improvement Homesite Value: | + | $0 | |
| (+) Improvement Non-Homesite Value: | + | $271,105 | |
| (+) Land Homesite Value: | + | $0 | |
| (+) Land Non-Homesite Value: | + | $240,000 | |
| (+) Curr Use (HS): | + | $0 | $0 |
| (+) Curr Use (NHS): | + | $0 | $0 |
| | | -------------------------- | |
| (=) Market Value: | = | $511,105 | |
| (–) Productivity Loss: | – | $0 | |
| | | -------------------------- | |
| (=) Subtotal: | = | $511,105 | |
| (+) Senior Appraised Value: | + | $0 | |
| (+) Non-Senior Appraised Value: | + | $511,105 | |
| | | -------------------------- | |
| (=) Total Appraised Value: | = | $511,105 | |
| (–) Senior Exemption Loss: | – | $0 | |
| (–) Exemption Loss: | – | $0 | |
| | | -------------------------- | |
| (=) Taxable Value: | = | $511,105 | |
Taxing Jurisdiction
| Owner: | KIRKLAND, MATTHEW J | | |
| % Ownership: | 100.0000000000% | | |
| Total Value: | $511,105 | | |
| Tax Area: | 112 - APPRAISER-OH Schl Dist, outside OH, improved, greater than 1 acre |
| CF | Conservation Futures | 0.0313996660 | $511,105 | $511,105 | $16.05 | | |
| CEM1 | Cemetery #1 | 0.0040018856 | $511,105 | $511,105 | $2.05 | | |
| FIRE2 | Fire & Rescue Dist #2 N Whidbey GEN | 0.5381486274 | $511,105 | $511,105 | $275.05 | | |
| HOBOND | Hospital BOND | 0.1893405597 | $511,105 | $511,105 | $96.77 | | |
| HOGEN | Hospital GEN | 0.3848777722 | $511,105 | $511,105 | $196.71 | | |
| CE | County Current Expense | 0.3674210519 | $511,105 | $511,105 | $187.79 | | |
| CR | County Roads | 0.4614296361 | $511,105 | $511,105 | $235.84 | | |
| ISLANDEMS | Hospital GEN (EMS) | 0.4952018576 | $511,105 | $511,105 | $253.10 | | |
| LIB | Library Sno-Isle GEN | 0.3039084203 | $511,105 | $511,105 | $155.33 | | |
| NWHIDPRMT | P & R N Whidbey GEN | 0.1990272349 | $511,105 | $511,105 | $101.72 | | |
| SCH201MO | School 201 Enrichment | 2.3851112745 | $511,105 | $511,105 | $1,219.04 | | |
| ST | State School | 1.4761226122 | $511,105 | $511,105 | $754.45 | | |
| ST2 | State School Part 2 | 0.7953803475 | $511,105 | $511,105 | $406.52 | | |
| | Total Tax Rate: | 7.6313709459 | | | | | |
| | | | | Taxes w/Current Exemptions: | $3,900.42 | | |
| | | | | Taxes w/o Exemptions: | $3,900.42 | | |
Improvement / Building
| Improvement #1: | RESIDENTIAL | State Code: | Y | 1705.0 sqft | Value: | $271,105 |
| Bathrooms: | 2.5 | Bedrooms: | 3 | | Ceiling: | DRY WALL SPRAYED | Exterior Wall/Cover: | WOOD SIDING | | Floor Covering: | VINYL TILE/HARWD 20-80 | Floor Structure: | WOOD W/SUBFLOOR | | Foundation: | CONCRETE | Heating: | BASEBOARD ELECTRIC | | Interior Finish: | DRYWALL PAINT | Plumbing Fixture Cnt: | 12 | | Roof Slope: | 4" IN 12" | Roof Structure/Cover: | CJ ASPHALT |
|
| | Type | Description | Class CD | Sub Class CD | Year Built | Area |
| | BAS | BASE/MAIN FLOOR | 3 | 0 | 1983 | 869.5 |
| | AGR | ATTACHED GARAGE | 3 | 0 | 1983 | 540.0 |
| | UPS | UPPER STORY | 3 | 0 | 1983 | 835.5 |
| | OWP | OPEN WOOD PORCH W/STEPS | 3 | 0 | 1983 | 285.4 |
| | OWC | OPEN WOOD PORCH W/STEPS/ROOF/C | 3 | 0 | 1983 | 78.0 |
Sketch
Property Image
Land
| 1 | 17 | AC (01.01-02.00) | 1.2500 | 54450.00 | 0.00 | 0.00 | 1.00 | $240,000 | $0 |
Roll Value History
| 2026 | N/A | N/A | N/A | N/A | N/A |
| 2025 | $271,105 | $240,000 | $0 | $511,105 | $511,105 |
| 2024 | $280,152 | $220,000 | $0 | $500,152 | $500,152 |
| 2023 | $267,838 | $220,000 | $0 | $487,838 | $487,838 |
| 2022 | $246,036 | $200,000 | $0 | $446,036 | $446,036 |
| 2021 | $216,987 | $170,000 | $0 | $386,987 | $386,987 |
| 2020 | $211,673 | $130,000 | $0 | $341,673 | $341,673 |
| 2019 | $154,540 | $200,000 | $0 | $354,540 | $354,540 |
| 2018 | $155,067 | $160,000 | $0 | $315,067 | $315,067 |
| 2017 | $142,823 | $150,000 | $0 | $292,823 | $292,823 |
| 2016 | $144,834 | $120,000 | $0 | $264,834 | $264,834 |
| 2015 | $146,846 | $85,000 | $0 | $231,846 | $231,846 |
| 2014 | $148,858 | $85,000 | $0 | $233,858 | $233,858 |
| 2013 | $150,870 | $85,000 | $0 | $235,870 | $235,870 |
| 2012 | $152,881 | $85,000 | $0 | $237,881 | $237,881 |
| 2011 | $158,162 | $100,000 | $0 | $258,162 | $258,162 |
| 2010 | $164,561 | $100,000 | $0 | $264,561 | $264,561 |
| 2009 | $171,823 | $120,000 | $0 | $291,823 | $291,823 |
| 2008 | $178,372 | $120,000 | $0 | $298,372 | $298,372 |
| 2007 | $180,759 | $120,000 | $0 | $300,759 | $300,759 |
Deed and Sales History
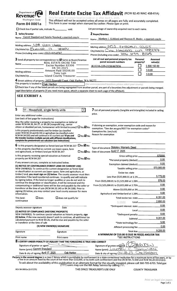
| 1 | 04/17/2025 | WD | Warranty Deed | STANDARD, GARRETT | KIRKLAND, MATTHEW J | | | $570,000.00 | 63306 | 4585138 |
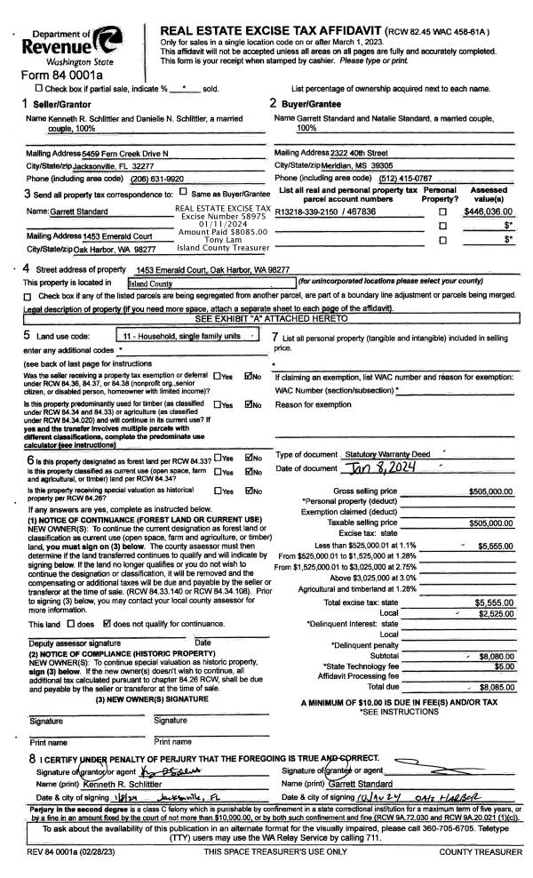
| 2 | 01/08/2024 | WD | Warranty Deed | SCHLITTLER, KENNETH R | STANDARD, GARRETT | | | $505,000.00 | 58975 | 4568434 |
| 3 | 12/01/2020 | QCD | Quit Claim Deed | SCHLITTLER, KENNETH R | SCHLITTLER, KENNETH R | | | $0.00 | 45999 | 4504268 |
| 4 | 05/25/2012 | WD | Warranty Deed | AUSLEY, RUSSELL B | SCHLITTLER, KENNETH R | | | $218,000.00 | 7803 | 4316246 |
| 5 | 04/01/1995 | WD | Warranty Deed | WARD, RAYMOND H | AUSLEY, RUSSELL B | | | $141,000.00 | 51273 | 95006002 |
| 6 | 09/01/1987 | WD | Warranty Deed | VETERANS, ADMINISTRATION | WARD, RAYMOND H | | | $0.00 | 72946 | 87013181 |
| 7 | 03/01/1987 | WD | Warranty Deed | SEARS, MORTGAGE C | VETERANS, ADMINISTRATION | | | $0.00 | 70781 | 87004157 |
| 8 | 03/01/1987 | TRUSTEED | Trustee's Deed | MARKETTI, JOSEPH A | SEARS, MORTGAGE C | | | $0.00 | 70780 | 87004156 |
| 9 | 08/01/1986 | DECREE | Divorce Decree/Legal Separation | MARKETTI, JOSEPH A | MARKETTI, JOSEPH A | | | $0.00 | 62224 | 86010307 |
| 10 | 10/01/1983 | WD | Warranty Deed | KOETJE, GORDON H | MARKETTI, JOSEPH A | | | $86,000.00 | 32948 | 415927 |
| 11 | 10/01/1983 | WD | Warranty Deed | FAKKEMA, ROBT, C | KOETJE, GORDON H | | | $14,300.00 | 32922 | 415852 |
Payout Agreement
| No payout information available.. |