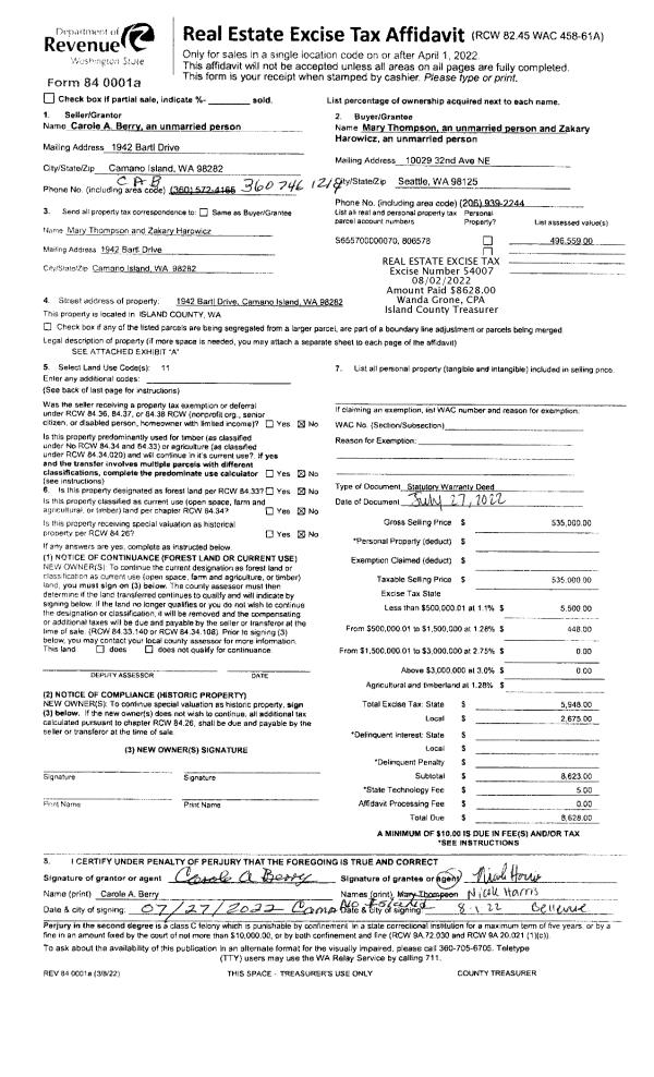
Property
Account |
| Property ID: | 468014 | Abbreviated Legal Description: | SW NW BG SW CR N ALG WLN 660' TPB E330' N ALG WLN 660' M/L W ALG NLN 330' S660' M/L TPB FR 3460500 |
| Geographic ID: | R13302-362-0170 | Agent Code: | |
| Type: | Real | | |
| Tax Area: | 112 - APPRAISER-OH Schl Dist, outside OH, improved, greater than 1 acre | Land Use Code | 11 |
| Open Space: | N | DFL | N |
| Historic Property: | N | Remodel Property: | N |
| Multi-Family Redevelopment: | N | | |
| Township: | 33 | Section: | 02 |
| Range: | R1 |
Location |
| Address: | | Mapsco: | |
| Neighborhood: | Cycle 6 | Map ID: | 195 |
| Neighborhood CD: | 6 |
Owner |
| Name: | TRUMBULL JTWROS, NICHELLE LEE | Owner ID: | 305730 |
| Mailing Address: | JACOB SLATER HARDENBERGH JTWROS 39755 STATE ROUTE 20 OAK HARBOR, WA 98277 | % Ownership: | 100.0000000000% |
| | | Exemptions: | |
Taxes and Assessment Details
Values
| (+) Improvement Homesite Value: | + | $0 | |
| (+) Improvement Non-Homesite Value: | + | $25,000 | |
| (+) Land Homesite Value: | + | $0 | |
| (+) Land Non-Homesite Value: | + | $340,000 | |
| (+) Curr Use (HS): | + | $0 | $0 |
| (+) Curr Use (NHS): | + | $0 | $0 |
| | | -------------------------- | |
| (=) Market Value: | = | $365,000 | |
| (–) Productivity Loss: | – | $0 | |
| | | -------------------------- | |
| (=) Subtotal: | = | $365,000 | |
| (+) Senior Appraised Value: | + | $0 | |
| (+) Non-Senior Appraised Value: | + | $365,000 | |
| | | -------------------------- | |
| (=) Total Appraised Value: | = | $365,000 | |
| (–) Senior Exemption Loss: | – | $0 | |
| (–) Exemption Loss: | – | $0 | |
| | | -------------------------- | |
| (=) Taxable Value: | = | $365,000 | |
Taxing Jurisdiction
| Owner: | TRUMBULL JTWROS, NICHELLE LEE | | |
| % Ownership: | 100.0000000000% | | |
| Total Value: | $365,000 | | |
| Tax Area: | 112 - APPRAISER-OH Schl Dist, outside OH, improved, greater than 1 acre |
| CF | Conservation Futures | 0.0313996660 | $365,000 | $365,000 | $11.46 | | |
| CEM1 | Cemetery #1 | 0.0040018856 | $365,000 | $365,000 | $1.46 | | |
| FIRE2 | Fire & Rescue Dist #2 N Whidbey GEN | 0.5381486274 | $365,000 | $365,000 | $196.42 | | |
| HOBOND | Hospital BOND | 0.1893405597 | $365,000 | $365,000 | $69.11 | | |
| HOGEN | Hospital GEN | 0.3848777722 | $365,000 | $365,000 | $140.48 | | |
| CE | County Current Expense | 0.3674210519 | $365,000 | $365,000 | $134.11 | | |
| CR | County Roads | 0.4614296361 | $365,000 | $365,000 | $168.42 | | |
| ISLANDEMS | Hospital GEN (EMS) | 0.4952018576 | $365,000 | $365,000 | $180.75 | | |
| LIB | Library Sno-Isle GEN | 0.3039084203 | $365,000 | $365,000 | $110.93 | | |
| NWHIDPRMT | P & R N Whidbey GEN | 0.1990272349 | $365,000 | $365,000 | $72.64 | | |
| SCH201MO | School 201 Enrichment | 2.3851112745 | $365,000 | $365,000 | $870.57 | | |
| ST | State School | 1.4761226122 | $365,000 | $365,000 | $538.78 | | |
| ST2 | State School Part 2 | 0.7953803475 | $365,000 | $365,000 | $290.31 | | |
| | Total Tax Rate: | 7.6313709459 | | | | | |
| | | | | Taxes w/Current Exemptions: | $2,785.44 | | |
| | | | | Taxes w/o Exemptions: | $2,785.44 | | |
Improvement / Building
| Improvement #1: | RESIDENTIAL | State Code: | E1 | 0.0 sqft | Value: | $25,000 |
Sketch
Property Image
Land
| 1 | 32 | AC (03.01-09.99) | 5.0000 | 0.00 | 0.00 | 0.00 | 1.00 | $340,000 | $0 |
Roll Value History
| 2026 | N/A | N/A | N/A | N/A | N/A |
| 2025 | $25,000 | $340,000 | $0 | $365,000 | $365,000 |
| 2024 | $25,000 | $320,000 | $0 | $345,000 | $345,000 |
| 2023 | $25,000 | $320,000 | $0 | $345,000 | $345,000 |
| 2022 | $25,000 | $300,000 | $0 | $325,000 | $325,000 |
| 2021 | $25,000 | $200,000 | $0 | $225,000 | $225,000 |
| 2020 | $25,000 | $160,000 | $0 | $185,000 | $185,000 |
| 2019 | $25,000 | $220,000 | $0 | $245,000 | $245,000 |
| 2018 | $25,000 | $200,000 | $0 | $225,000 | $225,000 |
| 2017 | $25,000 | $120,000 | $0 | $145,000 | $145,000 |
| 2016 | $26,646 | $120,000 | $0 | $146,646 | $146,646 |
| 2015 | $26,646 | $130,000 | $0 | $156,646 | $156,646 |
| 2014 | $26,646 | $125,000 | $0 | $151,646 | $151,646 |
| 2013 | $26,646 | $112,500 | $0 | $139,146 | $139,146 |
| 2012 | $26,646 | $112,500 | $0 | $139,146 | $139,146 |
| 2011 | $26,646 | $125,000 | $0 | $151,646 | $151,646 |
| 2010 | $26,646 | $125,000 | $0 | $151,646 | $151,646 |
| 2009 | $27,242 | $125,000 | $0 | $152,242 | $152,242 |
| 2008 | $27,838 | $147,500 | $0 | $175,338 | $175,338 |
| 2007 | $28,443 | $147,500 | $0 | $175,943 | $175,943 |
Deed and Sales History
| 1 | 08/19/2022 | QCD | Quit Claim Deed | TRUMBULL, NICHELLE L. | TRUMBULL JTWROS, NICHELLE LEE | | | $0.00 | 54204 | 4549908 |
| 2 | 07/20/2022 | QCD | Quit Claim Deed | KRIEG TTEE, CHARLES RAY | TRUMBULL, NICHELLE L. | | | $0.00 | 54013 | 4549077 |
| 3 | 12/30/2020 | QCD | Quit Claim Deed | KRIEG, KARL C | KRIEG TTEE, CHARLES RAY | | | $0.00 | 46684 | 4509013 |
| 4 | 04/01/1979 | CD | DNU - Correction Deed | KRIEG, KARL C | KRIEG, KARL C | | | $0.00 | 91567 | 350387 |
| 5 | 08/01/1978 | OTHER | Other - Misc. Documents | Unknown | KRIEG, KARL C | | | $65,500.00 | 84299 | 341899 |
Payout Agreement
| No payout information available.. |