Property
Account |
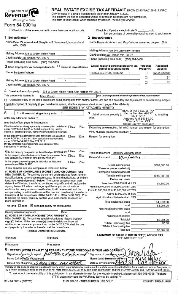
| Property ID: | 468372 | Abbreviated Legal Description: | E/2 SW SW SE EX E30' EX RDS FR 0342960 EX PT TO IS CO FOR R/W AF#88012704 |
| Geographic ID: | R13324-035-3100 | Agent Code: | |
| Type: | Real | | |
| Tax Area: | 112 - APPRAISER-OH Schl Dist, outside OH, improved, greater than 1 acre | Land Use Code | 11 |
| Open Space: | N | DFL | N |
| Historic Property: | N | Remodel Property: | N |
| Multi-Family Redevelopment: | N | | |
| Township: | 33 | Section: | 24 |
| Range: | R1 |
Location |
| Address: | 238 W GREEN VALLEY RD OAK HARBOR, WA 98277 | Mapsco: | |
| Neighborhood: | Cycle 6 | Map ID: | 223 |
| Neighborhood CD: | 6 |
Owner |
| Name: | VEHORN, BENJAMIN Q | Owner ID: | 300959 |
| Mailing Address: | MARY VEHORN 238 W GREEN VALLEY RD OAK HARBOR, WA 98277 | % Ownership: | 100.0000000000% |
| | | Exemptions: | |
Taxes and Assessment Details
Values
| (+) Improvement Homesite Value: | + | $0 | |
| (+) Improvement Non-Homesite Value: | + | $174,677 | |
| (+) Land Homesite Value: | + | $0 | |
| (+) Land Non-Homesite Value: | + | $300,000 | |
| (+) Curr Use (HS): | + | $0 | $0 |
| (+) Curr Use (NHS): | + | $0 | $0 |
| | | -------------------------- | |
| (=) Market Value: | = | $474,677 | |
| (–) Productivity Loss: | – | $0 | |
| | | -------------------------- | |
| (=) Subtotal: | = | $474,677 | |
| (+) Senior Appraised Value: | + | $0 | |
| (+) Non-Senior Appraised Value: | + | $474,677 | |
| | | -------------------------- | |
| (=) Total Appraised Value: | = | $474,677 | |
| (–) Senior Exemption Loss: | – | $0 | |
| (–) Exemption Loss: | – | $0 | |
| | | -------------------------- | |
| (=) Taxable Value: | = | $474,677 | |
Taxing Jurisdiction
| Owner: | VEHORN, BENJAMIN Q | | |
| % Ownership: | 100.0000000000% | | |
| Total Value: | $474,677 | | |
| Tax Area: | 112 - APPRAISER-OH Schl Dist, outside OH, improved, greater than 1 acre |
| CF | Conservation Futures | 0.0313996660 | $474,677 | $474,677 | $14.90 | | |
| CEM1 | Cemetery #1 | 0.0040018856 | $474,677 | $474,677 | $1.90 | | |
| FIRE2 | Fire & Rescue Dist #2 N Whidbey GEN | 0.5381486274 | $474,677 | $474,677 | $255.45 | | |
| HOBOND | Hospital BOND | 0.1893405597 | $474,677 | $474,677 | $89.88 | | |
| HOGEN | Hospital GEN | 0.3848777722 | $474,677 | $474,677 | $182.69 | | |
| CE | County Current Expense | 0.3674210519 | $474,677 | $474,677 | $174.41 | | |
| CR | County Roads | 0.4614296361 | $474,677 | $474,677 | $219.03 | | |
| ISLANDEMS | Hospital GEN (EMS) | 0.4952018576 | $474,677 | $474,677 | $235.06 | | |
| LIB | Library Sno-Isle GEN | 0.3039084203 | $474,677 | $474,677 | $144.26 | | |
| NWHIDPRMT | P & R N Whidbey GEN | 0.1990272349 | $474,677 | $474,677 | $94.47 | | |
| SCH201MO | School 201 Enrichment | 2.3851112745 | $474,677 | $474,677 | $1,132.16 | | |
| ST | State School | 1.4761226122 | $474,677 | $474,677 | $700.68 | | |
| ST2 | State School Part 2 | 0.7953803475 | $474,677 | $474,677 | $377.55 | | |
| | Total Tax Rate: | 7.6313709459 | | | | | |
| | | | | Taxes w/Current Exemptions: | $3,622.44 | | |
| | | | | Taxes w/o Exemptions: | $3,622.44 | | |
Improvement / Building
| Improvement #1: | MANUFACTURED HOME | State Code: | Y | 1492.2 sqft | Value: | $174,677 |
| Bathrooms: | 2.5 | Bedrooms: | 2 | | Ceiling: | PLASTER PAINTED | Cooling: | EVAP NO DUCT | | Exterior Wall/Cover: | VINYL | Floor Covering: | CARPET 100% | | Floor Structure: | SLAB ON GRADE | Foundation: | SLAB | | Heating: | FHA ELECTRIC | Interior Finish: | PLASTER | | Plumbing Fixture Cnt: | 1 | Roof Slope: | FLAT | | Roof Structure/Cover: | CJ ALUMINIUM HEAVY |   |   |
|
| | Type | Description | Class CD | Sub Class CD | Year Built | Area |
| | BAS | BASE/MAIN FLOOR | 4 | 0 | 1999 | 1492.2 |
| | OWC | OPEN WOOD PORCH W/STEPS/ROOF/C | 4 | 0 | 1999 | 249.2 |
| | ENP | ENCLOSED PORCH | 4 | 0 | 1999 | 1200.0 |
| | UTY | STORAGE/UTILITY | 4 | 0 | 1999 | 623.9 |
Sketch
Property Image
Land
| 1 | 32 | AC (03.01-09.99) | 4.1900 | 0.00 | 0.00 | 0.00 | 1.00 | $300,000 | $0 |
Roll Value History
| 2026 | N/A | N/A | N/A | N/A | N/A |
| 2025 | $174,677 | $300,000 | $0 | $474,677 | $474,677 |
| 2024 | $180,137 | $280,000 | $0 | $460,137 | $460,137 |
| 2023 | $161,375 | $270,000 | $0 | $431,375 | $431,375 |
| 2022 | $150,426 | $240,000 | $0 | $390,426 | $390,426 |
| 2021 | $117,720 | $175,000 | $0 | $292,720 | $292,720 |
| 2020 | $115,887 | $150,000 | $0 | $265,887 | $265,887 |
| 2019 | $93,789 | $185,000 | $0 | $278,789 | $278,789 |
| 2018 | $96,290 | $170,000 | $0 | $266,290 | $266,290 |
| 2017 | $98,791 | $150,000 | $0 | $248,791 | $248,791 |
| 2016 | $78,718 | $140,000 | $0 | $218,718 | $218,718 |
| 2015 | $80,192 | $120,000 | $0 | $200,192 | $200,192 |
| 2014 | $81,667 | $100,000 | $0 | $181,667 | $181,667 |
| 2013 | $82,241 | $82,962 | $0 | $165,203 | $165,203 |
| 2012 | $62,798 | $94,275 | $0 | $157,073 | $157,073 |
| 2011 | $64,349 | $104,750 | $0 | $169,099 | $169,099 |
| 2010 | $84,429 | $104,750 | $0 | $189,179 | $189,179 |
| 2009 | $39,521 | $104,750 | $0 | $144,271 | $144,271 |
| 2008 | $39,521 | $123,605 | $0 | $163,126 | $163,126 |
| 2007 | $39,521 | $123,605 | $0 | $163,126 | $163,126 |
Deed and Sales History
| 1 | 11/26/2025 | WD | Warranty Deed | VEHORN, BENJAMIN Q | WEBB, KYLER | | | $524,500.00 | 65702 | 4594592 |
| 2 | 08/10/2021 | WD | Warranty Deed | WOODWARD, PETER | VEHORN, BENJAMIN Q | | | $399,000.00 | 49837 | 4528028 |
| 3 | 08/01/2016 | CCOMPROP | Create Community Property | WOODWARD, PETER | WOODWARD, PETER | | | $0.00 | 25583 | 4404714 |
| 4 | 11/30/2004 | QCD | Quit Claim Deed | WOODWARD, ELLEN E | WOODWARD, PETER | | | $0.00 | 45581 | 4119362 |
| 5 | 12/01/1992 | OTHER | Other - Misc. Documents | WOODWARD, CHARLES T | WOODWARD, ELLEN E | | | $0.00 | 24818 | 0 |
| 6 | 12/01/1992 | OTHER | Other - Misc. Documents | WOODWARD, ELLEN E | WOODWARD, ELLEN E | | | $0.00 | 65145 | 0 |
| 7 | 10/01/1989 | QCD | Quit Claim Deed | WOODWARD, CHARLES T | WOODWARD, CHARLES T | | | $2,250.00 | 63374 | 88012704 |
Payout Agreement
| No payout information available.. |