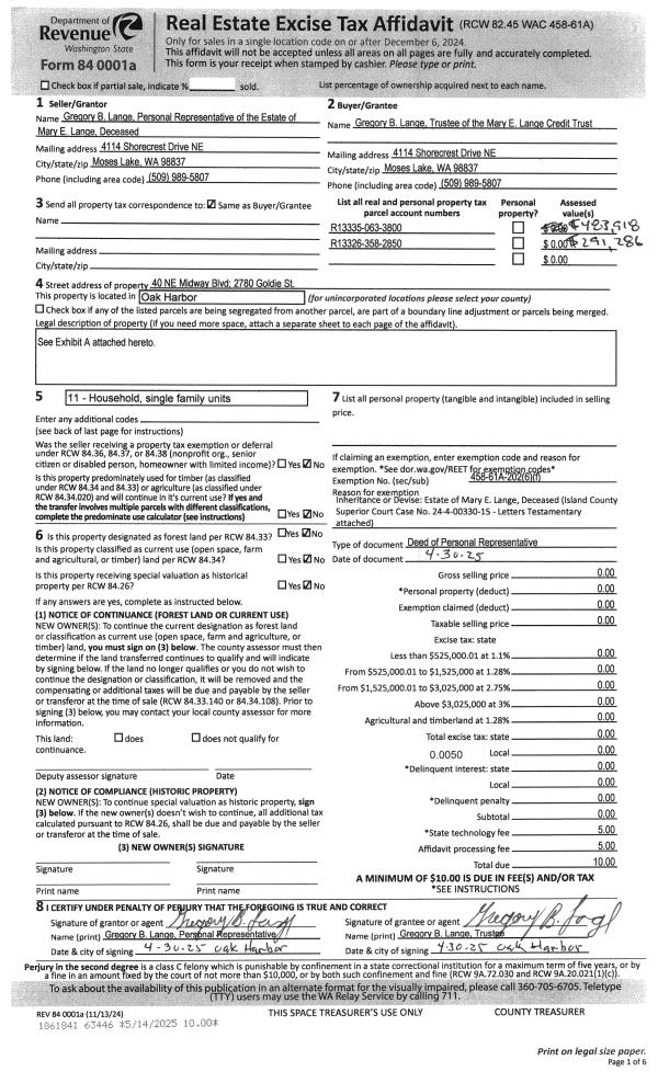
Property
Account |
| Property ID: | 468390 | Abbreviated Legal Description: | IN NW SW NE BG NW CR OF SW NE S1*W248.73' S88*E100' S1 W43' S88*E75' TPB S1*W205. 72' N88*W100' TPB FR 3702970 EZ CASCADE NATURAL GAS CO AUD F# 353205 |
| Geographic ID: | R13326-358-2850 | Agent Code: | |
| Type: | Real | | |
| Tax Area: | 100 - APPRAISER-OH Schl Dist, in OH | Land Use Code | 52 |
| Open Space: | N | DFL | N |
| Historic Property: | N | Remodel Property: | N |
| Multi-Family Redevelopment: | N | | |
| Township: | 33 | Section: | 26 |
| Range: | R1 |
Location |
| Address: | 2780 NE GOLDIE ST # B OAK HARBOR, WA 98277 | Mapsco: | |
| Neighborhood: | 6AcOH-goldie rd | Map ID: | 233 |
| Neighborhood CD: | 6AcOHgolde |
Owner |
| Name: | LANGE TTEE, GREGORY B | Owner ID: | 316454 |
| Mailing Address: | 4114 SHORECREST DR NE MOSES LAKE, WA 98837 | % Ownership: | 100.0000000000% |
| | | Exemptions: | |
Taxes and Assessment Details
Values
| (+) Improvement Homesite Value: | + | $0 | |
| (+) Improvement Non-Homesite Value: | + | $209,393 | |
| (+) Land Homesite Value: | + | $0 | |
| (+) Land Non-Homesite Value: | + | $81,893 | |
| (+) Curr Use (HS): | + | $0 | $0 |
| (+) Curr Use (NHS): | + | $0 | $0 |
| | | -------------------------- | |
| (=) Market Value: | = | $291,286 | |
| (–) Productivity Loss: | – | $0 | |
| | | -------------------------- | |
| (=) Subtotal: | = | $291,286 | |
| (+) Senior Appraised Value: | + | $0 | |
| (+) Non-Senior Appraised Value: | + | $291,286 | |
| | | -------------------------- | |
| (=) Total Appraised Value: | = | $291,286 | |
| (–) Senior Exemption Loss: | – | $0 | |
| (–) Exemption Loss: | – | $0 | |
| | | -------------------------- | |
| (=) Taxable Value: | = | $291,286 | |
Taxing Jurisdiction
| Owner: | LANGE TTEE, GREGORY B | | |
| % Ownership: | 100.0000000000% | | |
| Total Value: | $291,286 | | |
| Tax Area: | 100 - APPRAISER-OH Schl Dist, in OH |
| CF | Conservation Futures | 0.0313996660 | $291,286 | $291,286 | $9.15 | | |
| CEM1 | Cemetery #1 | 0.0040018856 | $291,286 | $291,286 | $1.17 | | |
| COH | City of Oak Harbor | 2.3090730572 | $291,286 | $291,286 | $672.60 | | |
| OAKBOND | City of Oak Harbor BOND | 0.1902260131 | $291,286 | $291,286 | $55.41 | | |
| HOBOND | Hospital BOND | 0.1893405597 | $291,286 | $291,286 | $55.15 | | |
| HOGEN | Hospital GEN | 0.3848777722 | $291,286 | $291,286 | $112.11 | | |
| CE | County Current Expense | 0.3674210519 | $291,286 | $291,286 | $107.02 | | |
| ISLANDEMS | Hospital GEN (EMS) | 0.4952018576 | $291,286 | $291,286 | $144.25 | | |
| LIB | Library Sno-Isle GEN | 0.3039084203 | $291,286 | $291,286 | $88.52 | | |
| NWHIDPRMT | P & R N Whidbey GEN | 0.1990272349 | $291,286 | $291,286 | $57.97 | | |
| SCH201MO | School 201 Enrichment | 2.3851112745 | $291,286 | $291,286 | $694.75 | | |
| ST | State School | 1.4761226122 | $291,286 | $291,286 | $429.97 | | |
| ST2 | State School Part 2 | 0.7953803475 | $291,286 | $291,286 | $231.68 | | |
| | Total Tax Rate: | 9.1310917527 | | | | | |
| | | | | Taxes w/Current Exemptions: | $2,659.75 | | |
| | | | | Taxes w/o Exemptions: | $2,659.75 | | |
Improvement / Building
| Improvement #1: | COMMERCIAL | State Code: | Y | 8000.0 sqft | Value: | $209,393 |
| Bathrooms: | 0 | Bedrooms: | 0 | | Ceiling: | PAINT OPEN FLOOR BAS | Exterior Wall/Cover: | STL/ALUM/SINGWL ST F | | Floor Covering: | CONCRETE SEALER | Floor Structure: | CONCRETE ON GROUND | | Foundation: | SLAB | Heating: | SPACE HEATERS | | Interior Finish: | WAREHOUSE STORAGE | Plumbing Fixture Cnt: | 1 | | Roof Structure/Cover: | BUILT UP/STEEL JOIST |   |   |
|
| | Type | Description | Class CD | Sub Class CD | Year Built | Area |
| | BAS | BASE/MAIN FLOOR | 1 | 0 | 1979 | 8000.0 |
| | oPV1 | PV/ASPH 2" | 1 | 0 | 1979 | 2400.0 |
| | oFN8 | CHN LK 6' | 1 | 0 | 1979 | 0.0 |
| | OP3 | OPEN PORCH W/ROOF | 1 | 0 | 1979 | 499.7 |
Sketch
Property Image
Land
| 1 | 68 | COMMERCIAL RETAIL | 0.4700 | 20473.20 | 0.00 | 0.00 | 1.00 | $81,893 | $0 |
Roll Value History
| 2026 | N/A | N/A | N/A | N/A | N/A |
| 2025 | $209,393 | $81,893 | $0 | $291,286 | $291,286 |
| 2024 | $224,819 | $81,893 | $0 | $306,712 | $306,712 |
| 2023 | $252,785 | $81,893 | $0 | $334,678 | $334,678 |
| 2022 | $130,912 | $81,893 | $0 | $212,805 | $212,805 |
| 2021 | $130,450 | $81,893 | $0 | $212,343 | $212,343 |
| 2020 | $130,404 | $81,893 | $0 | $212,297 | $212,297 |
| 2019 | $123,120 | $81,893 | $0 | $205,013 | $205,013 |
| 2018 | $123,132 | $71,656 | $0 | $194,788 | $194,788 |
| 2017 | $123,155 | $92,129 | $0 | $215,284 | $215,284 |
| 2016 | $159,303 | $92,129 | $0 | $251,432 | $251,432 |
| 2015 | $159,303 | $141,468 | $0 | $300,771 | $300,771 |
| 2014 | $159,303 | $141,468 | $0 | $300,771 | $300,771 |
| 2013 | $159,303 | $141,468 | $0 | $300,771 | $300,771 |
| 2012 | $159,303 | $141,468 | $0 | $300,771 | $300,771 |
| 2011 | $159,303 | $141,468 | $0 | $300,771 | $300,771 |
| 2010 | $125,180 | $141,468 | $0 | $266,648 | $266,648 |
| 2009 | $130,058 | $154,571 | $0 | $284,629 | $284,629 |
| 2008 | $134,937 | $162,760 | $0 | $297,697 | $297,697 |
| 2007 | $137,376 | $162,760 | $0 | $300,136 | $300,136 |
Deed and Sales History
| 1 | 04/30/2025 | PRD | Personal Representatives Deed | GREGORY B LANGE, PR | LANGE TTEE, GREGORY B | | | $0.00 | 63446 | 4585758 |
| 2 | 04/30/2025 | QCD | Quit Claim Deed | TRICO | LANGE TTEE, GREGORY B | | | $0.00 | 63445 | 4585757 |
| 3 | 08/01/1979 | WD | Warranty Deed | REICON, INC | TRICO, | | | $103,600.00 | 93840 | 356767 |
| 4 | 06/01/1978 | OTHER | Other - Misc. Documents | Unknown | REICON, INC | | | $91,500.00 | 82710 | 334360 |
Payout Agreement
| No payout information available.. |