Property
Account |
| Property ID: | 468997 | Abbreviated Legal Description: | E/2 S/2 N/2 SW SW EX RD TGW & SUB EZ AF#90006171 EX PT TO ST HWY AF#20008991 |
| Geographic ID: | R23021-087-1000 | Agent Code: | |
| Type: | Real | | |
| Tax Area: | 319 - APPRAISER-Cpvl Schl Dist, outside Cpvl, vacant & 50 acres or less | Land Use Code | 91 |
| Open Space: | N | DFL | N |
| Historic Property: | N | Remodel Property: | N |
| Multi-Family Redevelopment: | N | | |
| Township: | 30 | Section: | 21 |
| Range: | R2 |
Location |
| Address: | | Mapsco: | |
| Neighborhood: | Cycle 3 | Map ID: | 400 |
| Neighborhood CD: | 3 |
Owner |
| Name: | ZUNIGA, MICA B | Owner ID: | 314167 |
| Mailing Address: | RANDOLPH L D'AMORE 5324 159TH PL NE REDMOND, WA 98052 | % Ownership: | 100.0000000000% |
| | | Exemptions: | |
Taxes and Assessment Details
Values
| (+) Improvement Homesite Value: | + | N/A | |
| (+) Improvement Non-Homesite Value: | + | N/A | |
| (+) Land Homesite Value: | + | N/A | |
| (+) Land Non-Homesite Value: | + | N/A | Ag / Timber Use Value |
| (+) Curr Use (HS): | + | N/A | N/A |
| (+) Curr Use (NHS): | + | N/A | N/A |
| | | -------------------------- | |
| (=) Market Value: | = | N/A | |
| (–) Productivity Loss: | – | N/A | |
| | | -------------------------- | |
| (=) Subtotal: | = | N/A | |
| (+) Senior Appraised Value: | + | N/A | |
| (+) Non-Senior Appraised Value: | + | N/A | |
| | | -------------------------- | |
| (=) Total Appraised Value: | = | N/A | |
| (–) Senior Exemption Loss: | – | N/A | |
| (–) Exemption Loss: | – | N/A | |
| | | -------------------------- | |
| (=) Taxable Value: | = | N/A | |
Taxing Jurisdiction
| Owner: | ZUNIGA, MICA B | | |
| % Ownership: | 100.0000000000% | | |
| Total Value: | N/A | | |
| Tax Area: | 319 - APPRAISER-Cpvl Schl Dist, outside Cpvl, vacant & 50 acres or less |
| CF | Conservation Futures | N/A | N/A | N/A | N/A | | |
| WCD | Whidbey Conservation District | N/A | N/A | N/A | N/A | | |
| CEM2 | Cemetery #2 | N/A | N/A | N/A | N/A | | |
| HOBOND | Hospital BOND | N/A | N/A | N/A | N/A | | |
| HOGEN | Hospital GEN | N/A | N/A | N/A | N/A | | |
| CE | County Current Expense | N/A | N/A | N/A | N/A | | |
| CR | County Roads | N/A | N/A | N/A | N/A | | |
| ISLANDEMS | Hospital GEN (EMS) | N/A | N/A | N/A | N/A | | |
| LIB | Library Sno-Isle GEN | N/A | N/A | N/A | N/A | | |
| LIBCAP | Library Sno-Isle BOND (Cap Fac Imp Area) | N/A | N/A | N/A | N/A | | |
| POCOUP | Port of Coupeville GEN | N/A | N/A | N/A | N/A | | |
| COUPSDTECH | School 204 CP (TECH) | N/A | N/A | N/A | N/A | | |
| SCH204MO | School 204 Enrichment | N/A | N/A | N/A | N/A | | |
| ST | State School | N/A | N/A | N/A | N/A | | |
| ST2 | State School Part 2 | N/A | N/A | N/A | N/A | | |
| | Total Tax Rate: | N/A | | | | | |
| | | | | Taxes w/Current Exemptions: | N/A | | |
| | | | | Taxes w/o Exemptions: | N/A | | |
Improvement / Building
Sketch
| No sketches available for this property. |
Property Image
Land
| 1 | 91 | UNDEVELOPED LAND-METES AND BOUNDS | 4.8200 | 0.00 | 0.00 | 0.00 | 1.00 | N/A | N/A |
Roll Value History
| 2026 | N/A | N/A | N/A | N/A | N/A |
| 2025 | $0 | $210,000 | $0 | $210,000 | $210,000 |
| 2024 | $0 | $200,000 | $0 | $200,000 | $200,000 |
| 2023 | $0 | $180,000 | $0 | $180,000 | $180,000 |
| 2022 | $0 | $170,000 | $0 | $170,000 | $170,000 |
| 2021 | $0 | $115,000 | $0 | $115,000 | $115,000 |
| 2020 | $0 | $90,000 | $0 | $90,000 | $90,000 |
| 2019 | $0 | $120,000 | $0 | $120,000 | $120,000 |
| 2018 | $0 | $85,000 | $0 | $85,000 | $85,000 |
| 2017 | $0 | $75,000 | $0 | $75,000 | $75,000 |
| 2016 | $0 | $100,000 | $0 | $100,000 | $100,000 |
| 2015 | $0 | $100,000 | $0 | $100,000 | $100,000 |
| 2014 | $0 | $100,000 | $0 | $100,000 | $100,000 |
| 2013 | $0 | $92,400 | $0 | $92,400 | $92,400 |
| 2012 | $0 | $92,400 | $0 | $92,400 | $92,400 |
| 2011 | $0 | $92,400 | $0 | $92,400 | $92,400 |
| 2010 | $0 | $92,400 | $0 | $92,400 | $92,400 |
| 2009 | $0 | $144,370 | $0 | $144,370 | $144,370 |
| 2008 | $0 | $139,788 | $0 | $139,788 | $139,788 |
| 2007 | $0 | $115,000 | $0 | $115,000 | $115,000 |
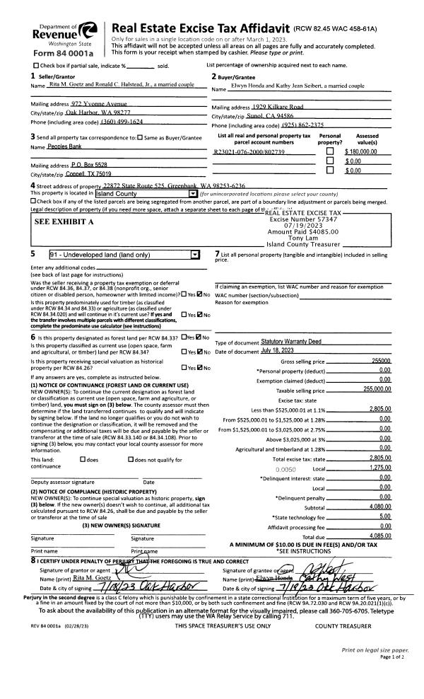
Deed and Sales History
| 1 | 09/27/2024 | WD | Warranty Deed | TEAGUE, ASHLEY | ZUNIGA, MICA B | | | $622,000.00 | 61515 | 4578054 |
|   | |
| 2 | 08/23/2023 | WD | Warranty Deed | PEDERSEN, RONALD A | TEAGUE, ASHLEY | | | $240,000.00 | 57786 | 4564049 |
| 3 | 04/07/2000 | WD | Warranty Deed | PEDERSEN, RONALD A | PEDERSEN, RONALD A | | | $750.00 | 1859 | 20008991 |
| 4 | 10/28/1999 | WD | Warranty Deed | PEDERSEN, RONALD A | PEDERSEN, RONALD A | | | $0.00 | 94996 | 99027873 |
| 5 | 10/28/1999 | WD | Warranty Deed | SAKAI, YOSHITAKA | PEDERSEN, RONALD A | | | $37,681.00 | 94734 | 99026446 |
| 6 | 12/01/1987 | WD | Warranty Deed | BADE, CLYDE E | SAKAI, YOSHITAKA | | | $29,000.00 | 73838 | 87016689 |
| 7 | 02/01/1981 | CD | DNU - Correction Deed | BADE, YVONNE S | BADE, CLYDE E | | | $0.00 | 10676 | 380229 |
| 8 | 11/01/1979 | EXECUTORD | Executor Deed | CHAPMAN, LAWRENCE E | BADE, YVONNE S | | | $18,000.00 | 95423 | 361607 |
| 9 | 11/01/1978 | OTHER | Other - Misc. Documents | Unknown | CHAPMAN, LAWRENCE E | | | $23,000.00 | 86207 | 345005 |
| 10 | 01/01/1900 | OTHER | Other - Misc. Documents | CHAPMAN, LAWRENCE E | CHAPMAN, LAWRENCE E | | | $0.00 | 0 | 0 |
Payout Agreement
| No payout information available.. |