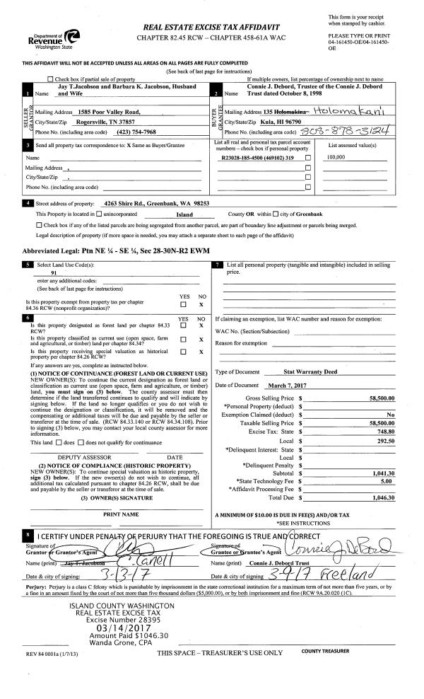
Property
Account |
| Property ID: | 469102 | Abbreviated Legal Description: | NE SW NE SE TGW SUB EZ SP 78-94 TR 1 FR 1654350 2295200 (aka Tr9 honeymoon Bay Heights) |
| Geographic ID: | R23028-185-4500 | Agent Code: | |
| Type: | Real | | |
| Tax Area: | 312 - APPRAISER-Cpvl Schl Dist, outside Cpvl, improved, greater than 1 acre | Land Use Code | 11 |
| Open Space: | N | DFL | N |
| Historic Property: | N | Remodel Property: | N |
| Multi-Family Redevelopment: | N | | |
| Township: | 30 | Section: | 28 |
| Range: | R2 |
Location |
| Address: | | Mapsco: | |
| Neighborhood: | Cycle 3 | Map ID: | 422 |
| Neighborhood CD: | 3 |
Owner |
| Name: | DEBORD TRUSTEE, CONNIE J | Owner ID: | 278879 |
| Mailing Address: | 135 HOLOMAKANI KULA, HI 96790 | % Ownership: | 100.0000000000% |
| | | Exemptions: | |
Taxes and Assessment Details
Values
| (+) Improvement Homesite Value: | + | $0 | |
| (+) Improvement Non-Homesite Value: | + | $2,880 | |
| (+) Land Homesite Value: | + | $0 | |
| (+) Land Non-Homesite Value: | + | $160,000 | |
| (+) Curr Use (HS): | + | $0 | $0 |
| (+) Curr Use (NHS): | + | $0 | $0 |
| | | -------------------------- | |
| (=) Market Value: | = | $162,880 | |
| (–) Productivity Loss: | – | $0 | |
| | | -------------------------- | |
| (=) Subtotal: | = | $162,880 | |
| (+) Senior Appraised Value: | + | $0 | |
| (+) Non-Senior Appraised Value: | + | $162,880 | |
| | | -------------------------- | |
| (=) Total Appraised Value: | = | $162,880 | |
| (–) Senior Exemption Loss: | – | $0 | |
| (–) Exemption Loss: | – | $0 | |
| | | -------------------------- | |
| (=) Taxable Value: | = | $162,880 | |
Taxing Jurisdiction
| Owner: | DEBORD TRUSTEE, CONNIE J | | |
| % Ownership: | 100.0000000000% | | |
| Total Value: | $162,880 | | |
| Tax Area: | 312 - APPRAISER-Cpvl Schl Dist, outside Cpvl, improved, greater than 1 acre |
| CF | Conservation Futures | 0.0313996660 | $162,880 | $162,880 | $5.11 | | |
| CEM2 | Cemetery #2 | 0.0092609791 | $162,880 | $162,880 | $1.51 | | |
| FIRE5 | Fire & Rescue Dist #5 C Whidbey GEN | 1.1892169230 | $162,880 | $162,880 | $193.70 | | |
| FIRE5BOND | Fire & Rescue Dist #5 C Whidbey BOND | 0.1394359503 | $162,880 | $162,880 | $22.71 | | |
| HOBOND | Hospital BOND | 0.1893405597 | $162,880 | $162,880 | $30.84 | | |
| HOGEN | Hospital GEN | 0.3848777722 | $162,880 | $162,880 | $62.69 | | |
| CE | County Current Expense | 0.3674210519 | $162,880 | $162,880 | $59.85 | | |
| CR | County Roads | 0.4614296361 | $162,880 | $162,880 | $75.16 | | |
| ISLANDEMS | Hospital GEN (EMS) | 0.4952018576 | $162,880 | $162,880 | $80.66 | | |
| LIB | Library Sno-Isle GEN | 0.3039084203 | $162,880 | $162,880 | $49.50 | | |
| LIBCAP | Library Sno-Isle BOND (Cap Fac Imp Area) | 0.0528562629 | $162,880 | $162,880 | $8.61 | | |
| POCOUP | Port of Coupeville GEN | 0.1065226063 | $162,880 | $162,880 | $17.35 | | |
| POCOUPIDD | Port of Coupeville IDD | 0.3353038577 | $162,880 | $162,880 | $54.61 | | |
| COUPSDTECH | School 204 CP (TECH) | 0.1215123397 | $162,880 | $162,880 | $19.79 | | |
| SCH204MO | School 204 Enrichment | 0.6416662518 | $162,880 | $162,880 | $104.51 | | |
| ST | State School | 1.4761226122 | $162,880 | $162,880 | $240.43 | | |
| ST2 | State School Part 2 | 0.7953803475 | $162,880 | $162,880 | $129.55 | | |
| | Total Tax Rate: | 7.1008570943 | | | | | |
| | | | | Taxes w/Current Exemptions: | $1,156.58 | | |
| | | | | Taxes w/o Exemptions: | $1,156.58 | | |
Improvement / Building
| Improvement #1: | RESIDENTIAL | State Code: | Y | 0.0 sqft | Value: | $2,880 |
Sketch
Property Image
Land
| 1 | 18 | AC (02.01-03.00) | 2.5000 | 108900.00 | 0.00 | 0.00 | 1.00 | $160,000 | $0 |
Roll Value History
| 2026 | N/A | N/A | N/A | N/A | N/A |
| 2025 | $2,880 | $160,000 | $0 | $162,880 | $162,880 |
| 2024 | $2,880 | $160,000 | $0 | $162,880 | $162,880 |
| 2023 | $2,880 | $150,000 | $0 | $152,880 | $152,880 |
| 2022 | $2,880 | $150,000 | $0 | $152,880 | $152,880 |
| 2021 | $2,880 | $115,000 | $0 | $117,880 | $117,880 |
| 2020 | $2,880 | $90,000 | $0 | $92,880 | $92,880 |
| 2019 | $0 | $110,000 | $0 | $110,000 | $110,000 |
| 2018 | $0 | $85,000 | $0 | $85,000 | $85,000 |
| 2017 | $0 | $75,000 | $0 | $75,000 | $75,000 |
| 2016 | $0 | $100,000 | $0 | $100,000 | $100,000 |
| 2015 | $0 | $100,000 | $0 | $100,000 | $100,000 |
| 2014 | $0 | $80,000 | $0 | $80,000 | $80,000 |
| 2013 | $0 | $79,300 | $0 | $79,300 | $79,300 |
| 2012 | $0 | $79,300 | $0 | $79,300 | $79,300 |
| 2011 | $0 | $79,300 | $0 | $79,300 | $79,300 |
| 2010 | $0 | $79,300 | $0 | $79,300 | $79,300 |
| 2009 | $0 | $100,750 | $0 | $100,750 | $100,750 |
| 2008 | $0 | $62,400 | $0 | $62,400 | $62,400 |
| 2007 | $0 | $50,000 | $0 | $50,000 | $50,000 |
Deed and Sales History
| 1 | 03/07/2017 | WD | Warranty Deed | JACOBSON, JAY T | DEBORD TRUSTEE, CONNIE J | | | $58,500.00 | 28395 | 4418671 |
| 2 | 07/06/1999 | WD | Warranty Deed | FAZZARI, JOSEPH F | JACOBSON, JAY T | | | $46,000.00 | 92983 | 99017575 |
| 3 | 05/01/1980 | EXECUTORD | Executor Deed | CROCKETT, HILL A | FAZZARI, JOSEPH F | | | $19,500.00 | 1674 | 368873 |
| 4 | 10/01/1979 | EZ | Easement | CHOATE, HANFORD B | CROCKETT, HILL A | | | $0.00 | 94936 | 359979 |
| 5 | 06/01/1978 | OTHER | Other - Misc. Documents | Unknown | CHOATE, HANFORD B | | | $22,500.00 | 83034 | 335273 |
Payout Agreement
| No payout information available.. |