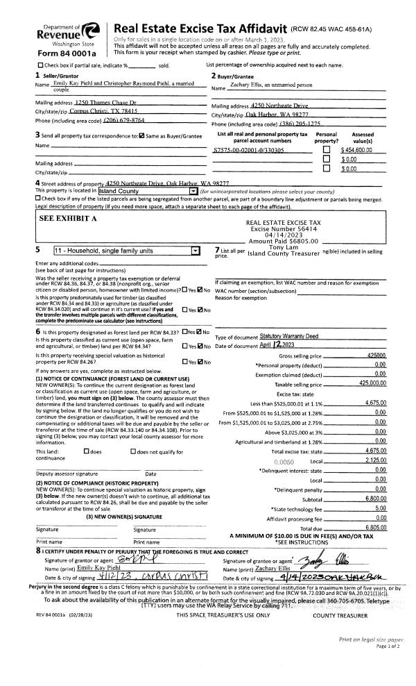
Property
Account |
| Property ID: | 471796 | Abbreviated Legal Description: | 1968 LANCER 12X50 VIN# S852 TPO $47317 TO K-520779 BK FR K-520779 |
| Geographic ID: | M905500000070 | Agent Code: | |
| Type: | Mobile Home | | |
| Tax Area: | 710 - APPRAISER-S Whid Schl Dist, outside Langley, improved & 1 acre or less | Land Use Code | 11 |
| Open Space: | N | DFL | N |
| Historic Property: | N | Remodel Property: | N |
| Multi-Family Redevelopment: | N | | |
| Township: | | Section: | |
| Range: | |
Location |
| Address: | 5406 FREELAND AVE # 7 FREELAND, WA 98249 | Mapsco: | |
| Neighborhood: | Cycle 3 | Map ID: | |
| Neighborhood CD: | 3 |
Owner |
| Name: | LANCE, KATHLEEN A | Owner ID: | 308590 |
| Mailing Address: | PO BOX 1319 FREELAND, WA 98249 | % Ownership: | 100.0000000000% |
| | | Exemptions: | |
Taxes and Assessment Details
Values
| (+) Improvement Homesite Value: | + | $0 | |
| (+) Improvement Non-Homesite Value: | + | $7,559 | |
| (+) Land Homesite Value: | + | $0 | |
| (+) Land Non-Homesite Value: | + | $0 | |
| (+) Curr Use (HS): | + | $0 | $0 |
| (+) Curr Use (NHS): | + | $0 | $0 |
| | | -------------------------- | |
| (=) Market Value: | = | $7,559 | |
| (–) Productivity Loss: | – | $0 | |
| | | -------------------------- | |
| (=) Subtotal: | = | $7,559 | |
| (+) Senior Appraised Value: | + | $0 | |
| (+) Non-Senior Appraised Value: | + | $7,559 | |
| | | -------------------------- | |
| (=) Total Appraised Value: | = | $7,559 | |
| (–) Senior Exemption Loss: | – | $0 | |
| (–) Exemption Loss: | – | $0 | |
| | | -------------------------- | |
| (=) Taxable Value: | = | $7,559 | |
Taxing Jurisdiction
| Owner: | LANCE, KATHLEEN A | | |
| % Ownership: | 100.0000000000% | | |
| Total Value: | $7,559 | | |
| Tax Area: | 710 - APPRAISER-S Whid Schl Dist, outside Langley, improved & 1 acre or less |
| CF | Conservation Futures | 0.0313996660 | $7,559 | $7,559 | $0.24 | | |
| FIRE3 | Fire & Rescue Dist #3 S Whidbey GEN | 1.2130821753 | $7,559 | $7,559 | $9.17 | | |
| HOBOND | Hospital BOND | 0.1893405597 | $7,559 | $7,559 | $1.43 | | |
| HOGEN | Hospital GEN | 0.3848777722 | $7,559 | $7,559 | $2.91 | | |
| CE | County Current Expense | 0.3674210519 | $7,559 | $7,559 | $2.78 | | |
| CR | County Roads | 0.4614296361 | $7,559 | $7,559 | $3.49 | | |
| ISLANDEMS | Hospital GEN (EMS) | 0.4952018576 | $7,559 | $7,559 | $3.74 | | |
| LIB | Library Sno-Isle GEN | 0.3039084203 | $7,559 | $7,559 | $2.30 | | |
| PORTWHID | Port of S Whidbey GEN | 0.1086004714 | $7,559 | $7,559 | $0.82 | | |
| SCH206BOND | School 206 BOND | 0.5960237832 | $7,559 | $7,559 | $4.51 | | |
| SCH206CAP | School 206 CP | 0.3066144020 | $7,559 | $7,559 | $2.32 | | |
| SCH206MO | School 206 Enrichment | 0.4808755445 | $7,559 | $7,559 | $3.63 | | |
| ST | State School | 1.4761226122 | $7,559 | $7,559 | $11.16 | | |
| ST2 | State School Part 2 | 0.7953803475 | $7,559 | $7,559 | $6.01 | | |
| SWHIDPRBD | P & R S Whidbey BOND | 0.0144185398 | $7,559 | $7,559 | $0.11 | | |
| SWHIDPRBD3 | P & R S Whidbey BOND3 | 0.1483535547 | $7,559 | $7,559 | $1.12 | | |
| SWHIDPRMT | P & R S Whidbey GEN | 0.4600000000 | $7,559 | $7,559 | $3.48 | | |
| | Total Tax Rate: | 7.8330503944 | | | | | |
| | | | | Taxes w/Current Exemptions: | $59.22 | | |
| | | | | Taxes w/o Exemptions: | $59.22 | | |
Improvement / Building
| Improvement #1: | MANUFACTURED HOME | State Code: | Y | 600.0 sqft | Value: | $7,559 |
| Bathrooms: | 0 | Bedrooms: | 0 | | Ceiling: | PLASTER PAINTED | Cooling: | EVAP NO DUCT | | Exterior Wall/Cover: | VINYL | Floor Covering: | CARPET 100% | | Floor Structure: | SLAB ON GRADE | Foundation: | SLAB | | Heating: | FHA ELECTRIC | Interior Finish: | PLASTER | | Plumbing Fixture Cnt: | 1 | Roof Slope: | FLAT | | Roof Structure/Cover: | CJ ALUMINIUM HEAVY |   |   |
|
| | Type | Description | Class CD | Sub Class CD | Year Built | Area |
| | BAS | BASE/MAIN FLOOR | 1 | 0 | 1968 | 600.0 |
| | OP3 | OPEN PORCH W/ROOF | 1 | 0 | 1968 | 208.0 |
Sketch
Property Image
Land
No land segments exist for this property.
Roll Value History
| 2026 | N/A | N/A | N/A | N/A | N/A |
| 2025 | $7,559 | $0 | $0 | $7,559 | $7,559 |
| 2024 | $7,734 | $0 | $0 | $7,734 | $7,734 |
| 2023 | $6,877 | $0 | $0 | $6,877 | $6,877 |
| 2022 | $6,364 | $0 | $0 | $6,364 | $6,364 |
| 2021 | $5,655 | $0 | $0 | $5,655 | $5,655 |
| 2020 | $5,605 | $0 | $0 | $5,605 | $5,605 |
| 2019 | $5,006 | $0 | $0 | $5,006 | $5,006 |
| 2018 | $5,029 | $0 | $0 | $5,029 | $5,029 |
| 2017 | $5,074 | $0 | $0 | $5,074 | $5,074 |
| 2016 | $5,166 | $0 | $0 | $5,166 | $5,166 |
| 2015 | $5,258 | $0 | $0 | $5,258 | $5,258 |
| 2014 | $5,349 | $0 | $0 | $5,349 | $5,349 |
| 2013 | $3,434 | $0 | $0 | $3,434 | $3,434 |
| 2012 | $3,434 | $0 | $0 | $3,434 | $3,434 |
| 2011 | $3,434 | $0 | $0 | $3,434 | $3,434 |
| 2010 | $4,520 | $0 | $0 | $4,520 | $4,520 |
| 2009 | $4,732 | $0 | $0 | $4,732 | $4,732 |
| 2008 | $4,732 | $0 | $0 | $4,732 | $4,732 |
| 2007 | $4,732 | $0 | $0 | $4,732 | $4,732 |
Deed and Sales History
| 1 | 03/24/2023 | MANHOME | Manufactured Home | GARDNER, SARAH | LANCE, KATHLEEN A | | | $20,000.00 | 56688 | |
| 2 | 04/18/2012 | OTHER | Other - Misc. Documents | HARRELL, GWEN | GARDNER, SARAH | | | $3,500.00 | 7593 | 4314882 |
| 3 | 03/31/2000 | OTHER | Other - Misc. Documents | KELLY, BONNE | HARRELL, GWEN | | | $9,000.00 | 1401 | 0 |
| 4 | 06/01/1998 | OTHER | Other - Misc. Documents | RUFFNER, DAISY | KELLY, BONNE | | | $9,000.00 | 82352 | 0 |
| 5 | 01/01/1900 | OTHER | Other - Misc. Documents | Unknown | RUFFNER, DAISY | | | $0.00 | 0 | 0 |
Payout Agreement
| No payout information available.. |