Property
Account |
| Property ID: | 473099 | Abbreviated Legal Description: | E/2 E/2 SW NW LY S OF RD EX S588.65' ALSO EX: BG NE CR SW NW S208.71' W208.71' N208.71' E208.71' TPB TGW & SUB EZS FR 332-1120 |
| Geographic ID: | R23106-365-1300 | Agent Code: | |
| Type: | Real | | |
| Tax Area: | 312 - APPRAISER-Cpvl Schl Dist, outside Cpvl, improved, greater than 1 acre | Land Use Code | 11 |
| Open Space: | N | DFL | N |
| Historic Property: | N | Remodel Property: | N |
| Multi-Family Redevelopment: | N | | |
| Township: | 31 | Section: | 06 |
| Range: | R2 |
Location |
| Address: | 80 E MORRIS RD COUPEVILLE, WA 98239 | Mapsco: | |
| Neighborhood: | Cycle 2 | Map ID: | 461 |
| Neighborhood CD: | 2 |
Owner |
| Name: | JOHNSON, NEAL C | Owner ID: | 283935 |
| Mailing Address: | ADELE D PETERS-JOHNSON 80 E MORRIS RD COUPEVILLE, WA 98239 | % Ownership: | 100.0000000000% |
| | | Exemptions: | |
Taxes and Assessment Details
Values
| (+) Improvement Homesite Value: | + | $0 | |
| (+) Improvement Non-Homesite Value: | + | $691,493 | |
| (+) Land Homesite Value: | + | $0 | |
| (+) Land Non-Homesite Value: | + | $340,718 | |
| (+) Curr Use (HS): | + | $0 | $0 |
| (+) Curr Use (NHS): | + | $0 | $0 |
| | | -------------------------- | |
| (=) Market Value: | = | $1,032,211 | |
| (–) Productivity Loss: | – | $0 | |
| | | -------------------------- | |
| (=) Subtotal: | = | $1,032,211 | |
| (+) Senior Appraised Value: | + | $0 | |
| (+) Non-Senior Appraised Value: | + | $1,032,211 | |
| | | -------------------------- | |
| (=) Total Appraised Value: | = | $1,032,211 | |
| (–) Senior Exemption Loss: | – | $0 | |
| (–) Exemption Loss: | – | $0 | |
| | | -------------------------- | |
| (=) Taxable Value: | = | $1,032,211 | |
Taxing Jurisdiction
| Owner: | JOHNSON, NEAL C | | |
| % Ownership: | 100.0000000000% | | |
| Total Value: | $1,032,211 | | |
| Tax Area: | 312 - APPRAISER-Cpvl Schl Dist, outside Cpvl, improved, greater than 1 acre |
| CF | Conservation Futures | 0.0313996660 | $1,032,211 | $1,032,211 | $32.41 | | |
| CEM2 | Cemetery #2 | 0.0092609791 | $1,032,211 | $1,032,211 | $9.56 | | |
| FIRE5 | Fire & Rescue Dist #5 C Whidbey GEN | 1.1892169230 | $1,032,211 | $1,032,211 | $1,227.52 | | |
| FIRE5BOND | Fire & Rescue Dist #5 C Whidbey BOND | 0.1394359503 | $1,032,211 | $1,032,211 | $143.93 | | |
| HOBOND | Hospital BOND | 0.1893405597 | $1,032,211 | $1,032,211 | $195.44 | | |
| HOGEN | Hospital GEN | 0.3848777722 | $1,032,211 | $1,032,211 | $397.28 | | |
| CE | County Current Expense | 0.3674210519 | $1,032,211 | $1,032,211 | $379.26 | | |
| CR | County Roads | 0.4614296361 | $1,032,211 | $1,032,211 | $476.29 | | |
| ISLANDEMS | Hospital GEN (EMS) | 0.4952018576 | $1,032,211 | $1,032,211 | $511.15 | | |
| LIB | Library Sno-Isle GEN | 0.3039084203 | $1,032,211 | $1,032,211 | $313.70 | | |
| LIBCAP | Library Sno-Isle BOND (Cap Fac Imp Area) | 0.0528562629 | $1,032,211 | $1,032,211 | $54.56 | | |
| POCOUP | Port of Coupeville GEN | 0.1065226063 | $1,032,211 | $1,032,211 | $109.95 | | |
| POCOUPIDD | Port of Coupeville IDD | 0.3353038577 | $1,032,211 | $1,032,211 | $346.10 | | |
| COUPSDTECH | School 204 CP (TECH) | 0.1215123397 | $1,032,211 | $1,032,211 | $125.43 | | |
| SCH204MO | School 204 Enrichment | 0.6416662518 | $1,032,211 | $1,032,211 | $662.33 | | |
| ST | State School | 1.4761226122 | $1,032,211 | $1,032,211 | $1,523.67 | | |
| ST2 | State School Part 2 | 0.7953803475 | $1,032,211 | $1,032,211 | $821.00 | | |
| | Total Tax Rate: | 7.1008570943 | | | | | |
| | | | | Taxes w/Current Exemptions: | $7,329.58 | | |
| | | | | Taxes w/o Exemptions: | $7,329.58 | | |
Improvement / Building
| Improvement #1: | RESIDENTIAL | State Code: | Y | 3201.8 sqft | Value: | $691,493 |
| Bathrooms: | 3 | Bedrooms: | 4 | | Ceiling: | TONGUE & GROOVE | Cooling: | HEAT PUMP/CONV/V | | Exterior Wall/Cover: | WOOD SIDING | Floor Covering: | CERAMIC TILE/HWD 40/60 | | Floor Structure: | WOOD W/SUBFLOOR | Foundation: | CONCRETE | | Interior Finish: | DRYWALL PAINT | Plumbing Fixture Cnt: | 13 | | Roof Slope: | 8" IN 12" | Roof Structure/Cover: | CJ ALUMINIUM HEAVY |
|
| | Type | Description | Class CD | Sub Class CD | Year Built | Area |
| | BAS | BASE/MAIN FLOOR | 4 | 0 | 1983 | 1758.4 |
| | OP4 | OPEN PORCH W/CEILING-ROOF | 4 | 0 | 1983 | 229.4 |
| | BGR | BASEMENT GARAGE | 4 | 0 | 1983 | 563.2 |
| | UPS | UPPER STORY | 4 | 0 | 1983 | 1443.4 |
| | OWP | OPEN WOOD PORCH W/STEPS | 4 | 0 | 1983 | 96.0 |
| | OWC | OPEN WOOD PORCH W/STEPS/ROOF/C | 4 | 0 | 1983 | 111.9 |
| | DGR | DETACHED GARAGE | 4 | 0 | 1983 | 720.0 |
Sketch
Property Image
Land
| 1 | HS | HOMESITE | 1.0000 | 43560.00 | 0.00 | 0.00 | 1.00 | $220,000 | $0 |
| 2 | 91 | UNDEVELOPED LAND-METES AND BOUNDS | 4.1800 | 182080.80 | 0.00 | 0.00 | 1.00 | $120,718 | $0 |
Roll Value History
| 2026 | N/A | N/A | N/A | N/A | N/A |
| 2025 | $691,493 | $340,718 | $0 | $1,032,211 | $1,032,211 |
| 2024 | $631,846 | $320,000 | $0 | $951,846 | $951,846 |
| 2023 | $636,177 | $310,000 | $0 | $946,177 | $946,177 |
| 2022 | $582,976 | $270,000 | $0 | $852,976 | $852,976 |
| 2021 | $512,949 | $220,000 | $0 | $732,949 | $732,949 |
| 2020 | $501,170 | $200,000 | $0 | $701,170 | $701,170 |
| 2019 | $397,276 | $250,000 | $0 | $647,276 | $647,276 |
| 2018 | $395,732 | $200,000 | $0 | $595,732 | $595,732 |
| 2017 | $327,211 | $200,000 | $0 | $527,211 | $527,211 |
| 2016 | $331,756 | $140,000 | $0 | $471,756 | $471,756 |
| 2015 | $336,299 | $125,874 | $0 | $462,173 | $462,173 |
| 2014 | $340,846 | $125,874 | $0 | $466,720 | $466,720 |
| 2013 | $345,391 | $125,874 | $0 | $471,265 | $471,265 |
| 2012 | $335,128 | $125,874 | $0 | $461,002 | $461,002 |
| 2011 | $339,241 | $139,860 | $0 | $479,101 | $479,101 |
| 2010 | $355,033 | $139,860 | $0 | $494,893 | $494,893 |
| 2009 | $369,968 | $155,400 | $0 | $525,368 | $525,368 |
| 2008 | $385,163 | $173,530 | $0 | $558,693 | $558,693 |
| 2007 | $389,976 | $155,400 | $0 | $545,376 | $545,376 |
Deed and Sales History
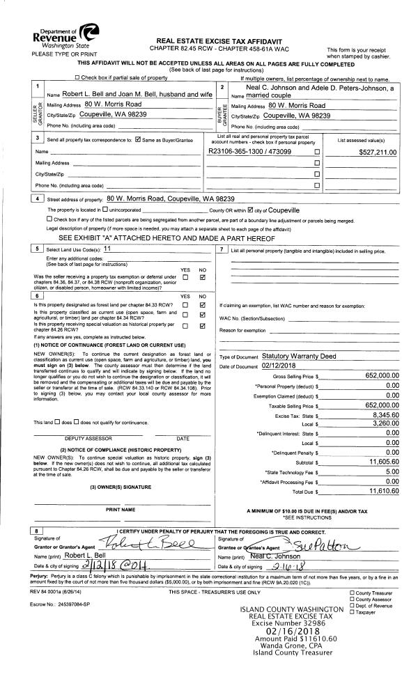
| 1 | 02/12/2018 | WD | Warranty Deed | BELL, ROBERT L | JOHNSON, NEAL C | | | $652,000.00 | 32986 | 4439398 |
| 2 | 09/01/2000 | WD | Warranty Deed | LEWIS, WILLIAM E | BELL, ROBERT L | | | $305,000.00 | 3570 | 20016431 |
| 3 | 12/01/1989 | OTHER | Other - Misc. Documents | LEWIS, WILLIAM E | LEWIS, WILLIAM E | | | $0.00 | 1645 | 90005309 |
| 4 | 08/01/1987 | WD | Warranty Deed | FREEMAN, JAMES W | LEWIS, WILLIAM E | | | $160,000.00 | 80576 | 88002339 |
| 5 | 06/01/1982 | PACD | Purchaser's Assignment | FOSTER, CARL G | FREEMAN, JAMES W | | | $28,500.00 | 21510 | 397788 |
| 6 | 10/01/1980 | REC | Real Estate Contract | BAGGERLY, KAREN C | FOSTER, CARL G | | | $28,500.00 | 3471 | 375175 |
| 7 | 03/01/1979 | QCD | Quit Claim Deed | WALLIN, C., H | BAGGERLY, KAREN C | | | $0.00 | 91189 | 349229 |
| 8 | 01/01/1979 | OTHER | Other - Misc. Documents | Unknown | WALLIN, C., H | | | $57,500.00 | 90732 | 0 |
Payout Agreement
| No payout information available.. |