Property
Account |
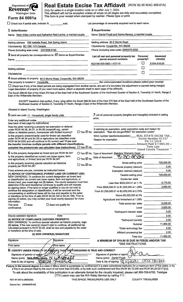
| Property ID: | 473115 | Abbreviated Legal Description: | S558.65' OF W370' E/2 SW NW FR 332112 |
| Geographic ID: | R23106-305-0950 | Agent Code: | |
| Type: | Real | | |
| Tax Area: | 312 - APPRAISER-Cpvl Schl Dist, outside Cpvl, improved, greater than 1 acre | Land Use Code | 11 |
| Open Space: | N | DFL | N |
| Historic Property: | N | Remodel Property: | N |
| Multi-Family Redevelopment: | N | | |
| Township: | 31 | Section: | 06 |
| Range: | R2 |
Location |
| Address: | 84 E MORRIS RD COUPEVILLE, WA 98239 | Mapsco: | |
| Neighborhood: | Cycle 2 | Map ID: | 461 |
| Neighborhood CD: | 2 |
Owner |
| Name: | FRYETT, DANIEL | Owner ID: | 313847 |
| Mailing Address: | 84 E MORRIS RD COUPEVILEE, WA 98239 | % Ownership: | 100.0000000000% |
| | | Exemptions: | |
Taxes and Assessment Details
Values
| (+) Improvement Homesite Value: | + | $0 | |
| (+) Improvement Non-Homesite Value: | + | $393,501 | |
| (+) Land Homesite Value: | + | $0 | |
| (+) Land Non-Homesite Value: | + | $340,689 | |
| (+) Curr Use (HS): | + | $0 | $0 |
| (+) Curr Use (NHS): | + | $0 | $0 |
| | | -------------------------- | |
| (=) Market Value: | = | $734,190 | |
| (–) Productivity Loss: | – | $0 | |
| | | -------------------------- | |
| (=) Subtotal: | = | $734,190 | |
| (+) Senior Appraised Value: | + | $0 | |
| (+) Non-Senior Appraised Value: | + | $734,190 | |
| | | -------------------------- | |
| (=) Total Appraised Value: | = | $734,190 | |
| (–) Senior Exemption Loss: | – | $0 | |
| (–) Exemption Loss: | – | $0 | |
| | | -------------------------- | |
| (=) Taxable Value: | = | $734,190 | |
Taxing Jurisdiction
| Owner: | FRYETT, DANIEL | | |
| % Ownership: | 100.0000000000% | | |
| Total Value: | $734,190 | | |
| Tax Area: | 312 - APPRAISER-Cpvl Schl Dist, outside Cpvl, improved, greater than 1 acre |
| CF | Conservation Futures | 0.0313996660 | $734,190 | $734,190 | $23.05 | | |
| CEM2 | Cemetery #2 | 0.0092609791 | $734,190 | $734,190 | $6.80 | | |
| FIRE5 | Fire & Rescue Dist #5 C Whidbey GEN | 1.1892169230 | $734,190 | $734,190 | $873.11 | | |
| FIRE5BOND | Fire & Rescue Dist #5 C Whidbey BOND | 0.1394359503 | $734,190 | $734,190 | $102.37 | | |
| HOBOND | Hospital BOND | 0.1893405597 | $734,190 | $734,190 | $139.01 | | |
| HOGEN | Hospital GEN | 0.3848777722 | $734,190 | $734,190 | $282.57 | | |
| CE | County Current Expense | 0.3674210519 | $734,190 | $734,190 | $269.76 | | |
| CR | County Roads | 0.4614296361 | $734,190 | $734,190 | $338.78 | | |
| ISLANDEMS | Hospital GEN (EMS) | 0.4952018576 | $734,190 | $734,190 | $363.57 | | |
| LIB | Library Sno-Isle GEN | 0.3039084203 | $734,190 | $734,190 | $223.13 | | |
| LIBCAP | Library Sno-Isle BOND (Cap Fac Imp Area) | 0.0528562629 | $734,190 | $734,190 | $38.81 | | |
| POCOUP | Port of Coupeville GEN | 0.1065226063 | $734,190 | $734,190 | $78.21 | | |
| POCOUPIDD | Port of Coupeville IDD | 0.3353038577 | $734,190 | $734,190 | $246.18 | | |
| COUPSDTECH | School 204 CP (TECH) | 0.1215123397 | $734,190 | $734,190 | $89.21 | | |
| SCH204MO | School 204 Enrichment | 0.6416662518 | $734,190 | $734,190 | $471.10 | | |
| ST | State School | 1.4761226122 | $734,190 | $734,190 | $1,083.75 | | |
| ST2 | State School Part 2 | 0.7953803475 | $734,190 | $734,190 | $583.96 | | |
| | Total Tax Rate: | 7.1008570943 | | | | | |
| | | | | Taxes w/Current Exemptions: | $5,213.37 | | |
| | | | | Taxes w/o Exemptions: | $5,213.37 | | |
Improvement / Building
| Improvement #1: | RESIDENTIAL | State Code: | Y | 1742.8 sqft | Value: | $393,501 |
| Bathrooms: | 1.5 | Bedrooms: | 3 | | Ceiling: | BEAM T&G | Cooling: | HEAT PUMP/CONV/V | | Exterior Wall/Cover: | WOOD SIDING | Floor Covering: | CERAMIC TILE/HWD 40/60 | | Floor Structure: | SLAB ON GRADE | Foundation: | SLAB/CONCRETE | | Interior Finish: | DRYWALL PAINT | Plumbing Fixture Cnt: | 8 | | Roof Slope: | 12" IN 12" | Roof Structure/Cover: | BEAM ALUMINUM HEAVY |
|
| | Type | Description | Class CD | Sub Class CD | Year Built | Area |
| | BAS | BASE/MAIN FLOOR | 4 | 0 | 1980 | 910.8 |
| | AGR | ATTACHED GARAGE | 4 | 0 | 1980 | 576.0 |
| | UTY | STORAGE/UTILITY | 4 | 0 | 1980 | 144.0 |
| | UPS | UPPER STORY | 4 | 0 | 1980 | 832.0 |
| | OP3 | OPEN PORCH W/ROOF | 4 | 0 | 1980 | 48.0 |
Sketch
| No sketches available for this property. |
Property Image
Land
| 1 | HS | HOMESITE | 1.0000 | 43560.00 | 0.00 | 0.00 | 1.00 | $220,000 | $0 |
| 2 | 91 | UNDEVELOPED LAND-METES AND BOUNDS | 4.1700 | 181645.20 | 0.00 | 0.00 | 1.00 | $120,689 | $0 |
Roll Value History
| 2026 | N/A | N/A | N/A | N/A | N/A |
| 2025 | $393,501 | $340,689 | $0 | $734,190 | $734,190 |
| 2024 | $344,818 | $290,000 | $0 | $634,818 | $634,818 |
| 2023 | $349,224 | $280,000 | $0 | $629,224 | $629,224 |
| 2022 | $320,209 | $250,000 | $0 | $570,209 | $570,209 |
| 2021 | $281,910 | $170,000 | $0 | $451,910 | $451,910 |
| 2020 | $274,679 | $160,000 | $0 | $434,679 | $434,679 |
| 2019 | $201,161 | $230,000 | $0 | $431,161 | $431,161 |
| 2018 | $201,662 | $200,000 | $0 | $401,662 | $401,662 |
| 2017 | $159,077 | $200,000 | $0 | $359,077 | $359,077 |
| 2016 | $161,286 | $140,000 | $0 | $301,286 | $301,286 |
| 2015 | $163,496 | $140,000 | $0 | $303,496 | $303,496 |
| 2014 | $171,823 | $140,000 | $0 | $311,823 | $311,823 |
| 2013 | $174,114 | $140,000 | $0 | $314,114 | $314,114 |
| 2012 | $181,090 | $125,631 | $0 | $306,721 | $306,721 |
| 2011 | $183,414 | $139,590 | $0 | $323,004 | $323,004 |
| 2010 | $189,947 | $139,590 | $0 | $329,537 | $329,537 |
| 2009 | $198,267 | $155,100 | $0 | $353,367 | $353,367 |
| 2008 | $200,851 | $173,195 | $0 | $374,046 | $374,046 |
| 2007 | $203,437 | $155,100 | $0 | $358,537 | $358,537 |
Deed and Sales History
| 1 | 08/30/2024 | WD | Warranty Deed | LEVINE, MARK ARTLEY | FRYETT, DANIEL | | | $725,000.00 | 61237 | 4576976 |
| 2 | 09/27/2017 | WD | Warranty Deed | WODJENSKI, DONALD R | LEVINE, MARK ARTLEY | | | $454,800.00 | 31336 | 4431269 |
| 3 | 12/01/1979 | EXECUTORD | Executor Deed | WALLIN, CRAIG | WODJENSKI, DONALD R | | | $24,000.00 | 95887 | 363136 |
| 4 | 03/01/1979 | CD | DNU - Correction Deed | WALLIN, C., H | WALLIN, CRAIG | | | $0.00 | 91191 | 349231 |
| 5 | 01/01/1979 | OTHER | Other - Misc. Documents | Unknown | WALLIN, C., H | | | $57,500.00 | 90732 | 0 |
Payout Agreement
| No payout information available.. |