Property
Account |
| Property ID: | 482249 | Abbreviated Legal Description: | S3/4 NW NE SW EX S227.5' EX RD SP 79-165 TR A FR2241640 |
| Geographic ID: | R32936-235-1650 | Agent Code: | |
| Type: | Real | | |
| Tax Area: | 712 - APPRAISER-S Whid Schl Dist, outside Langley, improved, greater than 1 acre | Land Use Code | 11 |
| Open Space: | N | DFL | N |
| Historic Property: | N | Remodel Property: | N |
| Multi-Family Redevelopment: | N | | |
| Township: | 29 | Section: | 36 |
| Range: | R3 |
Location |
| Address: | 7020 HEGGENES RD CLINTON, WA 98236 | Mapsco: | |
| Neighborhood: | Cycle 4 | Map ID: | 846 |
| Neighborhood CD: | 4 |
Owner |
| Name: | MOCK, IRMGARD | Owner ID: | 308185 |
| Mailing Address: | 7020 HEGGENES RD CLINTON, WA 98236 | % Ownership: | 100.0000000000% |
| | | Exemptions: | |
Taxes and Assessment Details
Values
| (+) Improvement Homesite Value: | + | $0 | |
| (+) Improvement Non-Homesite Value: | + | $455,845 | |
| (+) Land Homesite Value: | + | $0 | |
| (+) Land Non-Homesite Value: | + | $360,000 | |
| (+) Curr Use (HS): | + | $0 | $0 |
| (+) Curr Use (NHS): | + | $0 | $0 |
| | | -------------------------- | |
| (=) Market Value: | = | $815,845 | |
| (–) Productivity Loss: | – | $0 | |
| | | -------------------------- | |
| (=) Subtotal: | = | $815,845 | |
| (+) Senior Appraised Value: | + | $0 | |
| (+) Non-Senior Appraised Value: | + | $815,845 | |
| | | -------------------------- | |
| (=) Total Appraised Value: | = | $815,845 | |
| (–) Senior Exemption Loss: | – | $0 | |
| (–) Exemption Loss: | – | $0 | |
| | | -------------------------- | |
| (=) Taxable Value: | = | $815,845 | |
Taxing Jurisdiction
| Owner: | MOCK, IRMGARD | | |
| % Ownership: | 100.0000000000% | | |
| Total Value: | $815,845 | | |
| Tax Area: | 712 - APPRAISER-S Whid Schl Dist, outside Langley, improved, greater than 1 acre |
| CF | Conservation Futures | 0.0313996660 | $815,845 | $815,845 | $25.62 | | |
| FIRE3 | Fire & Rescue Dist #3 S Whidbey GEN | 1.2130821753 | $815,845 | $815,845 | $989.69 | | |
| HOBOND | Hospital BOND | 0.1893405597 | $815,845 | $815,845 | $154.47 | | |
| HOGEN | Hospital GEN | 0.3848777722 | $815,845 | $815,845 | $314.00 | | |
| CE | County Current Expense | 0.3674210519 | $815,845 | $815,845 | $299.76 | | |
| CR | County Roads | 0.4614296361 | $815,845 | $815,845 | $376.46 | | |
| ISLANDEMS | Hospital GEN (EMS) | 0.4952018576 | $815,845 | $815,845 | $404.01 | | |
| LIB | Library Sno-Isle GEN | 0.3039084203 | $815,845 | $815,845 | $247.94 | | |
| PORTWHID | Port of S Whidbey GEN | 0.1086004714 | $815,845 | $815,845 | $88.60 | | |
| SCH206BOND | School 206 BOND | 0.5960237832 | $815,845 | $815,845 | $486.26 | | |
| SCH206CAP | School 206 CP | 0.3066144020 | $815,845 | $815,845 | $250.15 | | |
| SCH206MO | School 206 Enrichment | 0.4808755445 | $815,845 | $815,845 | $392.32 | | |
| ST | State School | 1.4761226122 | $815,845 | $815,845 | $1,204.29 | | |
| ST2 | State School Part 2 | 0.7953803475 | $815,845 | $815,845 | $648.91 | | |
| SWHIDPRBD | P & R S Whidbey BOND | 0.0144185398 | $815,845 | $815,845 | $11.76 | | |
| SWHIDPRBD3 | P & R S Whidbey BOND3 | 0.1483535547 | $815,845 | $815,845 | $121.03 | | |
| SWHIDPRMT | P & R S Whidbey GEN | 0.4600000000 | $815,845 | $815,845 | $375.29 | | |
| | Total Tax Rate: | 7.8330503944 | | | | | |
| | | | | Taxes w/Current Exemptions: | $6,390.56 | | |
| | | | | Taxes w/o Exemptions: | $6,390.56 | | |
Improvement / Building
| Improvement #1: | RESIDENTIAL | State Code: | Y | 3496.0 sqft | Value: | $455,845 |
| Bathrooms: | 3 | Bedrooms: | 4 | | Ceiling: | TONGUE & GROOVE | Exterior Wall/Cover: | PLY/HARDBOARD T-111 | | Floor Covering: | CARPET/VINYL 80-20 | Floor Structure: | WOOD W/SUBFLOOR | | Foundation: | CONCRETE | Heating: | FHA ELECTRIC | | Interior Finish: | DRYWALL PAINT | Plumbing Fixture Cnt: | 13 | | Roof Slope: | 6" IN 12" | Roof Structure/Cover: | BEAM ASPHALT |
|
| | Type | Description | Class CD | Sub Class CD | Year Built | Area |
| | BAS | BASE/MAIN FLOOR | 3 | 0 | 1978 | 1800.0 |
| | DWN | DOWNSTAIRS LIVING AREA | 3 | 0 | 1978 | 720.0 |
| | UPS | UPPER STORY | 3 | 0 | 1978 | 976.0 |
| | OWP | OPEN WOOD PORCH W/STEPS | 3 | 0 | 1978 | 192.0 |
| | OWC | OPEN WOOD PORCH W/STEPS/ROOF/C | 3 | 0 | 1978 | 735.0 |
| | UTY | STORAGE/UTILITY | 3 | 0 | 1978 | 2560.0 |
| | OP4 | OPEN PORCH W/CEILING-ROOF | 3 | 0 | 1978 | 360.0 |
Sketch
| No sketches available for this property. |
Property Image
Land
| 1 | 32 | AC (03.01-09.99) | 3.3300 | 0.00 | 0.00 | 0.00 | 1.00 | $360,000 | $0 |
Roll Value History
| 2026 | N/A | N/A | N/A | N/A | N/A |
| 2025 | $455,845 | $360,000 | $0 | $815,845 | $815,845 |
| 2024 | $462,241 | $340,000 | $0 | $802,241 | $802,241 |
| 2023 | $468,639 | $330,000 | $0 | $798,639 | $798,639 |
| 2022 | $380,515 | $280,000 | $0 | $660,515 | $660,515 |
| 2021 | $345,939 | $230,000 | $0 | $575,939 | $575,939 |
| 2020 | $316,672 | $190,000 | $0 | $506,672 | $506,672 |
| 2019 | $252,963 | $220,000 | $0 | $472,963 | $472,963 |
| 2018 | $253,877 | $210,000 | $0 | $463,877 | $463,877 |
| 2017 | $255,704 | $165,000 | $0 | $420,704 | $420,704 |
| 2016 | $259,355 | $165,000 | $0 | $424,355 | $424,355 |
| 2015 | $267,518 | $150,000 | $0 | $417,518 | $417,518 |
| 2014 | $225,957 | $113,220 | $0 | $339,177 | $339,177 |
| 2013 | $228,839 | $113,220 | $0 | $342,059 | $342,059 |
| 2012 | $231,722 | $113,220 | $0 | $344,942 | $344,942 |
| 2011 | $234,606 | $113,220 | $0 | $347,826 | $347,826 |
| 2010 | $247,241 | $113,220 | $0 | $360,461 | $360,461 |
| 2009 | $257,072 | $146,520 | $0 | $403,592 | $403,592 |
| 2008 | $260,738 | $166,500 | $0 | $427,238 | $427,238 |
| 2007 | $264,403 | $139,860 | $0 | $404,263 | $404,263 |
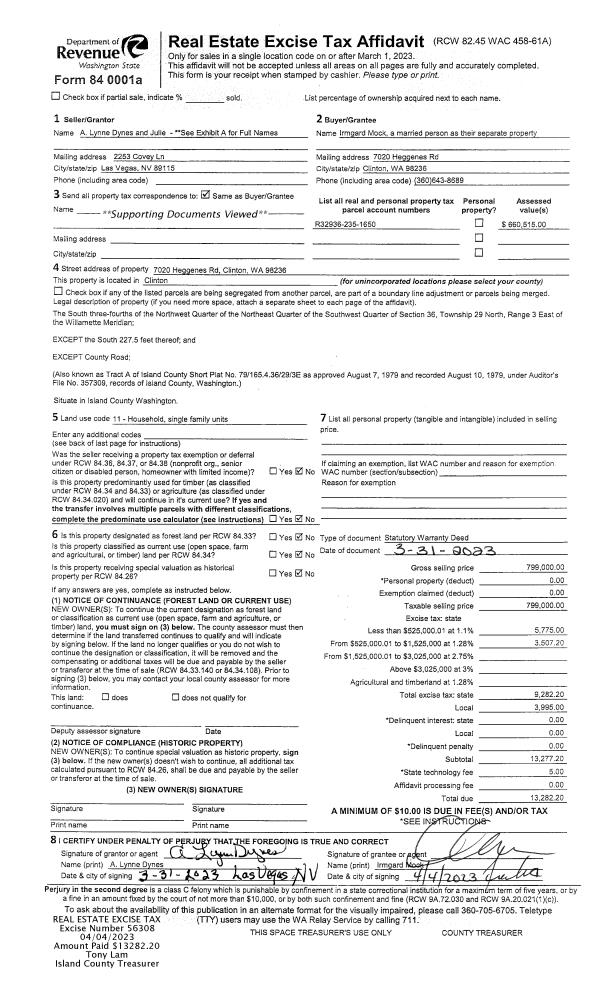
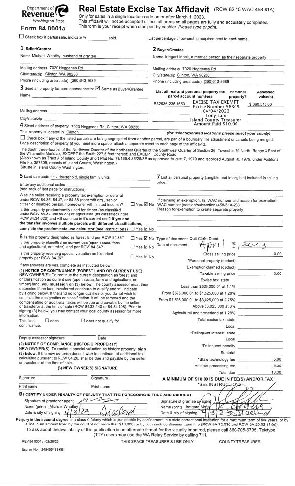
Deed and Sales History
| 1 | 04/03/2023 | QCD | Quit Claim Deed | WHATLEY, MICHAEL | MOCK, IRMGARD | | | $0.00 | 56309 | 4558420 |
| 2 | 03/31/2023 | WD | Warranty Deed | DYNES TRUSTEE, LAWRENCE M | MOCK, IRMGARD | | | $799,000.00 | 56308 | 4558419 |
| 3 | 06/03/2009 | QCD | Quit Claim Deed | DYNES, LARRY | DYNES TRUSTEE, LAWRENCE M | | | $0.00 | 91455 | 4255072 |
| 4 | 08/01/1979 | CD | DNU - Correction Deed | WORLAND, B C | DYNES, LARRY | | | $0.00 | 94070 | 357508 |
| 5 | 01/01/1900 | OTHER | Other - Misc. Documents | Unknown | WORLAND, B C | | | $0.00 | 0 | 0 |
Payout Agreement
| No payout information available.. |