Property
Account |
| Property ID: | 482953 | Abbreviated Legal Description: | N/2 SW SE NE TGW SUB EZ FR 3284650 (TR 8 FIRGROVE EST) |
| Geographic ID: | R33106-313-4300 | Agent Code: | |
| Type: | Real | | |
| Tax Area: | 599 - APPRAISER-Stan/Cam Schl Dist, Special Dist, vacant & 50 acres or less | Land Use Code | 91 |
| Open Space: | N | DFL | N |
| Historic Property: | N | Remodel Property: | N |
| Multi-Family Redevelopment: | N | | |
| Township: | 31 | Section: | 06 |
| Range: | R3 |
Location |
| Address: | 158 WOODGROVE LN CAMANO ISLAND, WA 98282 | Mapsco: | |
| Neighborhood: | Cycle 5 | Map ID: | 921 |
| Neighborhood CD: | 5 |
Owner |
| Name: | NOSTE, BARBARA J | Owner ID: | 281282 |
| Mailing Address: | 121 WOODGROVE LN CAMANO ISLAND, WA 98282 | % Ownership: | 100.0000000000% |
| | | Exemptions: | |
Taxes and Assessment Details
Values
| (+) Improvement Homesite Value: | + | $0 | |
| (+) Improvement Non-Homesite Value: | + | $0 | |
| (+) Land Homesite Value: | + | $0 | |
| (+) Land Non-Homesite Value: | + | $260,000 | |
| (+) Curr Use (HS): | + | $0 | $0 |
| (+) Curr Use (NHS): | + | $0 | $0 |
| | | -------------------------- | |
| (=) Market Value: | = | $260,000 | |
| (–) Productivity Loss: | – | $0 | |
| | | -------------------------- | |
| (=) Subtotal: | = | $260,000 | |
| (+) Senior Appraised Value: | + | $0 | |
| (+) Non-Senior Appraised Value: | + | $260,000 | |
| | | -------------------------- | |
| (=) Total Appraised Value: | = | $260,000 | |
| (–) Senior Exemption Loss: | – | $0 | |
| (–) Exemption Loss: | – | $0 | |
| | | -------------------------- | |
| (=) Taxable Value: | = | $260,000 | |
Taxing Jurisdiction
| Owner: | NOSTE, BARBARA J | | |
| % Ownership: | 100.0000000000% | | |
| Total Value: | $260,000 | | |
| Tax Area: | 599 - APPRAISER-Stan/Cam Schl Dist, Special Dist, vacant & 50 acres or less |
| CF | Conservation Futures | 0.0313996660 | $260,000 | $260,000 | $8.16 | | |
| EMS1 | Fire & Rescue Dist #1 Camano GEN (EMS) | 0.4998471806 | $260,000 | $260,000 | $129.96 | | |
| CE | County Current Expense | 0.3674210519 | $260,000 | $260,000 | $95.53 | | |
| CR | County Roads | 0.4614296361 | $260,000 | $260,000 | $119.97 | | |
| LIB | Library Sno-Isle GEN | 0.3039084203 | $260,000 | $260,000 | $79.02 | | |
| SCH205_401 | School 205-401 Enrichment | 1.3697998934 | $260,000 | $260,000 | $356.15 | | |
| SCH205BOND | School 205-401 BOND | 0.9354199323 | $260,000 | $260,000 | $243.21 | | |
| ST | State School | 1.4761226122 | $260,000 | $260,000 | $383.79 | | |
| ST2 | State School Part 2 | 0.7953803475 | $260,000 | $260,000 | $206.80 | | |
| | Total Tax Rate: | 6.2407287403 | | | | | |
| | | | | Taxes w/Current Exemptions: | $1,622.59 | | |
| | | | | Taxes w/o Exemptions: | $1,622.59 | | |
Improvement / Building
Sketch
| No sketches available for this property. |
Property Image
Land
| 1 | 32 | AC (03.01-09.99) | 4.8500 | 0.00 | 0.00 | 0.00 | 1.00 | $260,000 | $0 |
Roll Value History
| 2026 | N/A | N/A | N/A | N/A | N/A |
| 2025 | $0 | $260,000 | $0 | $260,000 | $260,000 |
| 2024 | $0 | $240,000 | $0 | $240,000 | $240,000 |
| 2023 | $0 | $200,000 | $0 | $200,000 | $200,000 |
| 2022 | $0 | $180,000 | $0 | $180,000 | $180,000 |
| 2021 | $0 | $160,000 | $0 | $160,000 | $160,000 |
| 2020 | $0 | $130,000 | $0 | $130,000 | $130,000 |
| 2019 | $0 | $140,000 | $0 | $140,000 | $140,000 |
| 2018 | $0 | $140,000 | $0 | $140,000 | $140,000 |
| 2017 | $0 | $120,000 | $0 | $120,000 | $120,000 |
| 2016 | $0 | $100,000 | $0 | $100,000 | $100,000 |
| 2015 | $0 | $100,000 | $0 | $100,000 | $100,000 |
| 2014 | $0 | $100,000 | $0 | $100,000 | $100,000 |
| 2013 | $0 | $116,400 | $0 | $116,400 | $116,400 |
| 2012 | $0 | $116,400 | $0 | $116,400 | $116,400 |
| 2011 | $0 | $116,400 | $0 | $116,400 | $116,400 |
| 2010 | $0 | $116,400 | $0 | $116,400 | $116,400 |
| 2009 | $0 | $145,500 | $0 | $145,500 | $145,500 |
| 2008 | $0 | $147,925 | $0 | $147,925 | $147,925 |
| 2007 | $0 | $126,100 | $0 | $126,100 | $126,100 |
Deed and Sales History
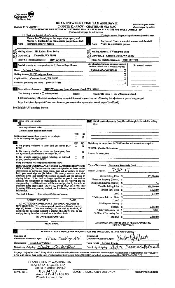
| 1 | 08/03/2017 | QCD | Quit Claim Deed | NOSTE, BARBARA J | NOSTE, BARBARA J | | | $0.00 | 30491 | 4427574 |
| 2 | 07/30/2017 | WD | Warranty Deed | WALKLING 3/4 INT, CONNIE L | NOSTE, BARBARA J | | | $135,000.00 | 30489 | 4427573 |
| 3 | 04/01/1988 | QCD | Quit Claim Deed | WALKLING, CONNIE L | WALKLING, CONNIE L | | | $0.00 | 81600 | 88006045 |
| 4 | 04/01/1984 | OTHER | Other - Misc. Documents | WALKER, HARLAN H | WALKLING, CONNIE L | | | $0.00 | 60551 | 0 |
| 5 | 04/01/1980 | EXECUTORD | Executor Deed | MCLEOD, JANET L | WALKER, HARLAN H | | | $14,900.00 | 1308 | 367772 |
| 6 | 07/01/1979 | CD | DNU - Correction Deed | Unknown | MCGUIRE, JOHN J | | | $0.00 | 93334 | 355355 |
| 7 | 05/01/1979 | CD | DNU - Correction Deed | MCGUIRE, JOHN J | MCLEOD, JANET L | | | $0.00 | 92149 | 352073 |
Payout Agreement
| No payout information available.. |