Property
Account |
| Property ID: | 484238 | Abbreviated Legal Description: | N/2 N/2 SE EX PT LY W OF ELN ST HWY EX: BG ELN ST HWY INTER SLN N/2 NW SE TPB N200' E TO CORNET BAY RD SWLY ALG SD RD TP E OF TPB W TPB EX PT LY SELY OF NW LN CORNET BAY RD TGW PT SW NE LY E OF ST HWY EX PT LY NELY OF SWLY LN RD AF#224256 EX PT LY S |
| Geographic ID: | R13435-241-3150 | Agent Code: | |
| Type: | Real | | |
| Tax Area: | 152 - APPRAISER-OH Schl Dist, Special Dist, improved, greater than 1 acre | Land Use Code | 15 |
| Open Space: | N | DFL | N |
| Historic Property: | N | Remodel Property: | N |
| Multi-Family Redevelopment: | N | | |
| Township: | 34 | Section: | 35 |
| Range: | R1 |
Location |
| Address: | 565 CORNET BAY RD OAK HARBOR, WA 98277 | Mapsco: | |
| Neighborhood: | 61cRR-highway 20 | Map ID: | 274 |
| Neighborhood CD: | 61cRRhwy20 |
Owner |
| Name: | BEN JAMISON PROPERTIES, LLC | Owner ID: | 288475 |
| Mailing Address: | 26245 SE 22ND ST SAMMAMISH, WA 98075 | % Ownership: | 100.0000000000% |
| | | Exemptions: | |
Taxes and Assessment Details
Values
| (+) Improvement Homesite Value: | + | $0 | |
| (+) Improvement Non-Homesite Value: | + | $782,784 | |
| (+) Land Homesite Value: | + | $0 | |
| (+) Land Non-Homesite Value: | + | $494,624 | |
| (+) Curr Use (HS): | + | $0 | $0 |
| (+) Curr Use (NHS): | + | $0 | $0 |
| | | -------------------------- | |
| (=) Market Value: | = | $1,277,408 | |
| (–) Productivity Loss: | – | $0 | |
| | | -------------------------- | |
| (=) Subtotal: | = | $1,277,408 | |
| (+) Senior Appraised Value: | + | $0 | |
| (+) Non-Senior Appraised Value: | + | $1,277,408 | |
| | | -------------------------- | |
| (=) Total Appraised Value: | = | $1,277,408 | |
| (–) Senior Exemption Loss: | – | $0 | |
| (–) Exemption Loss: | – | $0 | |
| | | -------------------------- | |
| (=) Taxable Value: | = | $1,277,408 | |
Taxing Jurisdiction
| Owner: | BEN JAMISON PROPERTIES, LLC | | |
| % Ownership: | 100.0000000000% | | |
| Total Value: | $1,277,408 | | |
| Tax Area: | 152 - APPRAISER-OH Schl Dist, Special Dist, improved, greater than 1 acre |
| CF | Conservation Futures | 0.0313996660 | $1,277,408 | $1,277,408 | $40.11 | | |
| CEM1 | Cemetery #1 | 0.0040018856 | $1,277,408 | $1,277,408 | $5.11 | | |
| FIRE2 | Fire & Rescue Dist #2 N Whidbey GEN | 0.5381486274 | $1,277,408 | $1,277,408 | $687.44 | | |
| HOBOND | Hospital BOND | 0.1893405597 | $1,277,408 | $1,277,408 | $241.87 | | |
| HOGEN | Hospital GEN | 0.3848777722 | $1,277,408 | $1,277,408 | $491.65 | | |
| CE | County Current Expense | 0.3674210519 | $1,277,408 | $1,277,408 | $469.35 | | |
| CR | County Roads | 0.4614296361 | $1,277,408 | $1,277,408 | $589.43 | | |
| ISLANDEMS | Hospital GEN (EMS) | 0.4952018576 | $1,277,408 | $1,277,408 | $632.57 | | |
| LIB | Library Sno-Isle GEN | 0.3039084203 | $1,277,408 | $1,277,408 | $388.22 | | |
| NWHIDPRMT | P & R N Whidbey GEN | 0.1990272349 | $1,277,408 | $1,277,408 | $254.24 | | |
| SCH201MO | School 201 Enrichment | 2.3851112745 | $1,277,408 | $1,277,408 | $3,046.76 | | |
| ST | State School | 1.4761226122 | $1,277,408 | $1,277,408 | $1,885.61 | | |
| ST2 | State School Part 2 | 0.7953803475 | $1,277,408 | $1,277,408 | $1,016.03 | | |
| | Total Tax Rate: | 7.6313709459 | | | | | |
| | | | | Taxes w/Current Exemptions: | $9,748.39 | | |
| | | | | Taxes w/o Exemptions: | $9,748.39 | | |
Improvement / Building
| Improvement #1: | MANUFACTURED HOME | State Code: | F1 | 1300.0 sqft | Value: | $94,271 |
| Bathrooms: | 0 | Bedrooms: | 0 | | Ceiling: | PLASTER PAINTED | Cooling: | EVAP NO DUCT | | Exterior Wall/Cover: | VINYL | Floor Covering: | CARPET 100% | | Floor Structure: | SLAB ON GRADE | Foundation: | SLAB | | Heating: | FHA ELECTRIC | Interior Finish: | PLASTER | | Plumbing Fixture Cnt: | 1 | Roof Slope: | FLAT | | Roof Structure/Cover: | CJ ALUMINIUM HEAVY |   |   |
|
| | Type | Description | Class CD | Sub Class CD | Year Built | Area |
| | BAS | BASE/MAIN FLOOR | 4 | 0 | 1988 | 1300.0 |
| | OWP | OPEN WOOD PORCH W/STEPS | 4 | 0 | 1988 | 40.0 |
| | OWP | OPEN WOOD PORCH W/STEPS | 4 | 0 | 1988 | 192.0 |
| | OP1 | OPEN PORCH SLAB | 4 | 0 | 1988 | 232.0 |
| Improvement #2: | COMMERCIAL | State Code: | F1 | 588.0 sqft | Value: | $80,910 |
| Bathrooms: | 0 | Bedrooms: | 0 | | Ceiling: | DRYWALL PAINTED | Exterior Wall/Cover: | LOG TO 10" | | Floor Covering: | CARPET 100% | Floor Structure: | CONCRETE ON GROUND | | Foundation: | SLAB | Heating: | FHA ELECTRIC | | Interior Finish: | DRYWALL PAINT | Plumbing Fixture Cnt: | 2 | | Roof Structure/Cover: | COMP OPEN WOOD |   |   |
|
| | Type | Description | Class CD | Sub Class CD | Year Built | Area |
| | BAS | BASE/MAIN FLOOR | 3 | 0 | 2000 | 588.0 |
| | OWR | OPEN WOOD PORCH W/STEPS/ROOF | 3 | 0 | 2000 | 120.0 |
| | OP1 | OPEN PORCH SLAB | 3 | 0 | 2000 | 448.0 |
| Improvement #3: | MANUFACTURED HOME | State Code: | Y | 1229.3 sqft | Value: | $105,633 |
| Bathrooms: | 0 | Bedrooms: | 0 | | Ceiling: | PLASTER PAINTED | Cooling: | EVAP NO DUCT | | Exterior Wall/Cover: | VINYL | Floor Covering: | CARPET 100% | | Floor Structure: | SLAB ON GRADE | Foundation: | SLAB | | Heating: | FHA ELECTRIC | Interior Finish: | PLASTER | | Plumbing Fixture Cnt: | 1 | Roof Slope: | FLAT | | Roof Structure/Cover: | CJ ALUMINIUM HEAVY |   |   |
|
| | Type | Description | Class CD | Sub Class CD | Year Built | Area |
| | BAS | BASE/MAIN FLOOR | 4 | 0 | 1900 | 1229.3 |
| | OP1 | OPEN PORCH SLAB | 4 | 0 | 1900 | 90.0 |
| | OP2 | OPEN PORCH W/STEPS | 4 | 0 | 1900 | 164.0 |
| | OWP | OPEN WOOD PORCH W/STEPS | 4 | 0 | 1900 | 74.1 |
| | OWP | OPEN WOOD PORCH W/STEPS | 4 | 0 | 1900 | 64.0 |
| | OWC | OPEN WOOD PORCH W/STEPS/ROOF/C | 4 | 0 | 1900 | 112.0 |
| Improvement #4: | MANUFACTURED HOME | State Code: | Y | 427.9 sqft | Value: | $15,901 |
| Bathrooms: | 0 | Bedrooms: | 0 | | Ceiling: | PLASTER PAINTED | Cooling: | EVAP NO DUCT | | Exterior Wall/Cover: | VINYL | Floor Covering: | CARPET 100% | | Floor Structure: | SLAB ON GRADE | Foundation: | SLAB | | Heating: | FHA ELECTRIC | Interior Finish: | PLASTER | | Plumbing Fixture Cnt: | 1 | Roof Slope: | FLAT | | Roof Structure/Cover: | CJ ALUMINIUM HEAVY |   |   |
|
| | Type | Description | Class CD | Sub Class CD | Year Built | Area |
| | BAS | BASE/MAIN FLOOR | 3 | 0 | 1989 | 427.9 |
| | OWP | OPEN WOOD PORCH W/STEPS | 3 | 0 | 1989 | 246.5 |
| Improvement #5: | MANUFACTURED HOME | State Code: | Y | 300.0 sqft | Value: | $13,432 |
| Ceiling: | PLASTER PAINTED | Cooling: | EVAP NO DUCT | | Exterior Wall/Cover: | VINYL | Floor Covering: | CARPET 100% | | Floor Structure: | SLAB ON GRADE | Foundation: | SLAB | | Heating: | FHA ELECTRIC | Interior Finish: | PLASTER | | Roof Slope: | FLAT | Roof Structure/Cover: | CJ ALUMINIUM HEAVY |
|
| | Type | Description | Class CD | Sub Class CD | Year Built | Area |
| | BAS | BASE/MAIN FLOOR | 3 | 0 | 2000 | 300.0 |
| | OWR | OPEN WOOD PORCH W/STEPS/ROOF | 3 | 0 | 2000 | 72.0 |
| Improvement #6: | MANUFACTURED HOME | State Code: | F1 | 1032.0 sqft | Value: | $472,637 |
| Bathrooms: | 1 | Bedrooms: | 0 | | Ceiling: | DRYWALL PAINTED | Exterior Wall/Cover: | WOOD SIDING | | Floor Covering: | COLORED CONCRETE | Floor Structure: | SLAB ON GRADE | | Foundation: | SLAB | Heating: | WALL HEAT ELECTRIC | | Interior Finish: | DRYWALL PAINT | Plumbing Fixture Cnt: | 28 | | Roof Slope: | 3" IN 12" | Roof Structure/Cover: | CJ ASPHALT |
|
| | Type | Description | Class CD | Sub Class CD | Year Built | Area |
| | BAS | BASE/MAIN FLOOR | 1 | 0 | 1990 | 1032.0 |
| | OP3 | OPEN PORCH W/ROOF | 1 | 0 | 1990 | 45.0 |
| | OP3 | OPEN PORCH W/ROOF | 1 | 0 | 1990 | 45.0 |
| | OP3 | OPEN PORCH W/ROOF | 1 | 0 | 1990 | 509.2 |
| | UTY | STORAGE/UTILITY | 1 | 0 | 1990 | 280.0 |
| | oRVP | RV PARK | 1 | 0 | 1990 | 0.0 |
Sketch
Property Image
Land
| 1 | 61 | MULTIPLE RESIDENCES | 7.5700 | 329749.20 | 0.00 | 0.00 | 1.00 | $494,624 | $0 |
Roll Value History
| 2026 | N/A | N/A | N/A | N/A | N/A |
| 2025 | $782,784 | $494,624 | $0 | $1,277,408 | $1,277,408 |
| 2024 | $792,543 | $494,624 | $0 | $1,287,167 | $1,287,167 |
| 2023 | $774,438 | $494,624 | $0 | $1,269,062 | $1,269,062 |
| 2022 | $692,501 | $494,624 | $0 | $1,187,125 | $1,187,125 |
| 2021 | $657,175 | $494,624 | $0 | $1,151,799 | $1,151,799 |
| 2020 | $652,927 | $494,624 | $0 | $1,147,551 | $1,147,551 |
| 2019 | $583,231 | $494,624 | $0 | $1,077,855 | $1,077,855 |
| 2018 | $585,979 | $494,624 | $0 | $1,080,603 | $1,080,603 |
| 2017 | $590,757 | $535,842 | $0 | $1,126,599 | $1,126,599 |
| 2016 | $550,550 | $537,197 | $0 | $1,087,747 | $1,087,747 |
| 2015 | $550,550 | $537,197 | $0 | $1,087,747 | $1,087,747 |
| 2014 | $550,550 | $537,197 | $0 | $1,087,747 | $1,087,747 |
| 2013 | $550,550 | $537,197 | $0 | $1,087,747 | $1,087,747 |
| 2012 | $550,550 | $537,197 | $0 | $1,087,747 | $1,087,747 |
| 2011 | $550,550 | $537,197 | $0 | $1,087,747 | $1,087,747 |
| 2010 | $565,117 | $537,197 | $0 | $1,102,314 | $1,102,314 |
| 2009 | $608,818 | $638,740 | $0 | $1,247,558 | $1,247,558 |
| 2008 | $655,904 | $682,676 | $0 | $1,338,580 | $1,338,580 |
| 2007 | $617,115 | $754,252 | $0 | $1,371,367 | $1,371,367 |
Deed and Sales History
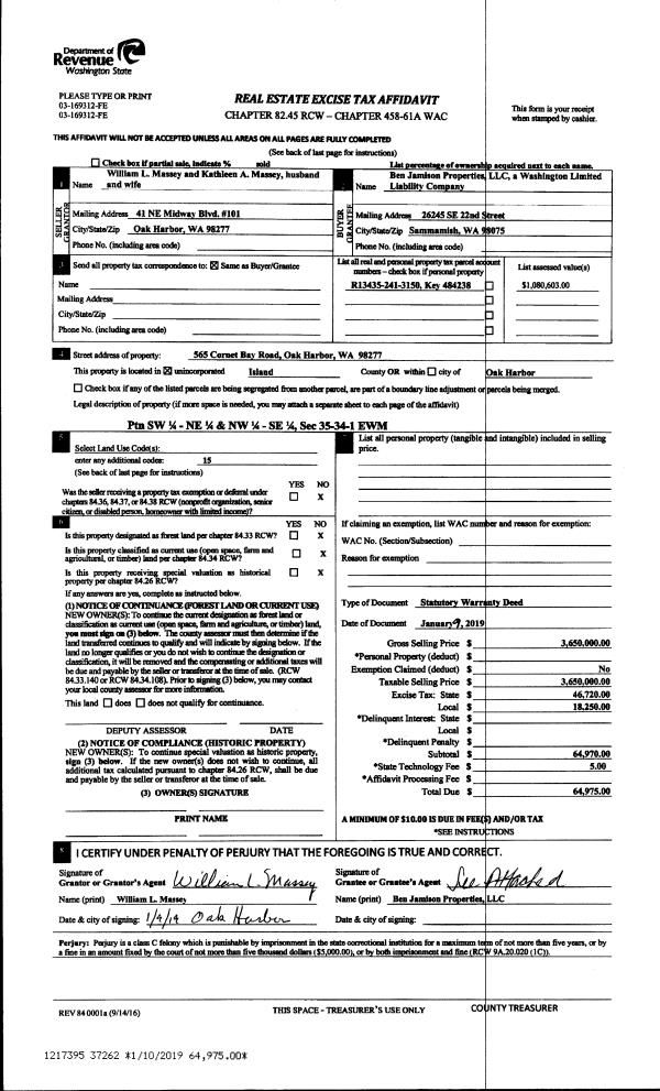
| 1 | 01/09/2019 | WD | Warranty Deed | MASSEY, WILLIAM L | BEN JAMISON PROPERTIES, LLC | | | $3,650,000.00 | 37262 | 4457727 |
| 2 | 06/09/2005 | QCD | Quit Claim Deed | MASSEY, WILLIAM L | MASSEY, WILLIAM L | | | $0.00 | 54504 | 4147008 |
| 3 | 06/06/2005 | WD | Warranty Deed | MASSEY, WILLIAM L | MASSEY, WILLIAM L | | | $44,800.00 | 54503 | 4147007 |
| 4 | 01/01/1998 | OTHER | Other - Misc. Documents | QUINN, KENNETH J | MASSEY, WILLIAM L | | | $40,208.00 | 80201 | 0 |
| 5 | 01/01/1998 | WD | Warranty Deed | MASSEY, WILLIAM L | MASSEY, WILLIAM L | | | $1,259,292.00 | 80176 | 98000784 |
| 6 | 09/01/1990 | QCD | Quit Claim Deed | QUINN, KENNETH J | QUINN, KENNETH J | | | $0.00 | 5708 | 90021810 |
| 7 | 05/01/1988 | OTHER | Other - Misc. Documents | QUINN, KENNETH J | QUINN, KENNETH J | | | $37,500.00 | 11111111 | 0 |
| 8 | 01/01/1900 | OTHER | Other - Misc. Documents | Unknown | QUINN, KENNETH J | | | $0.00 | 0 | 0 |
Payout Agreement
| No payout information available.. |