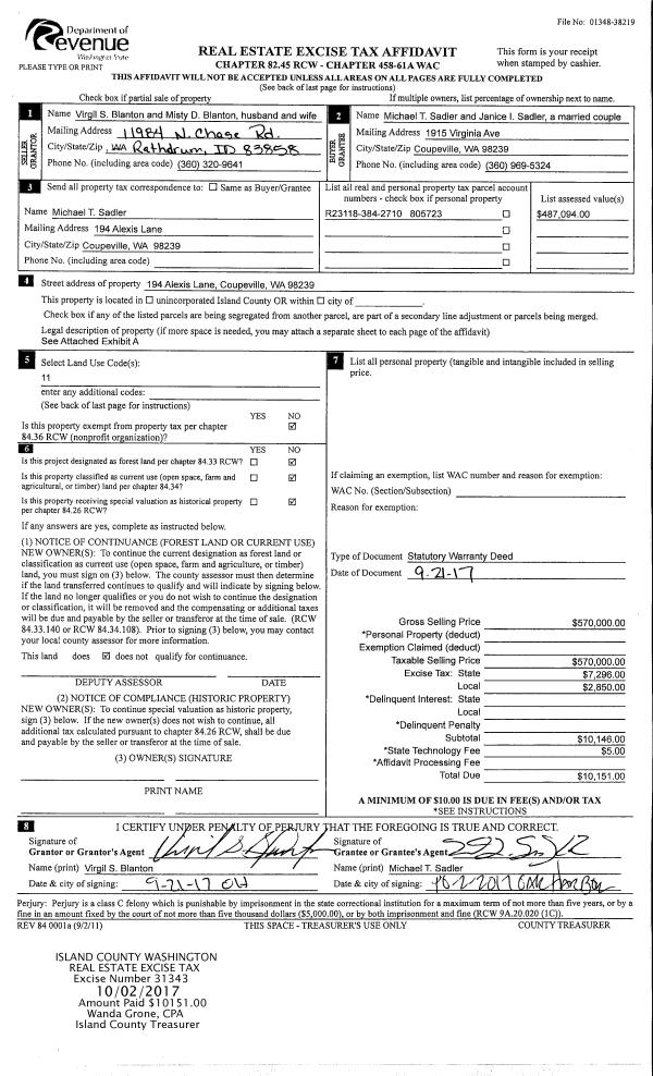
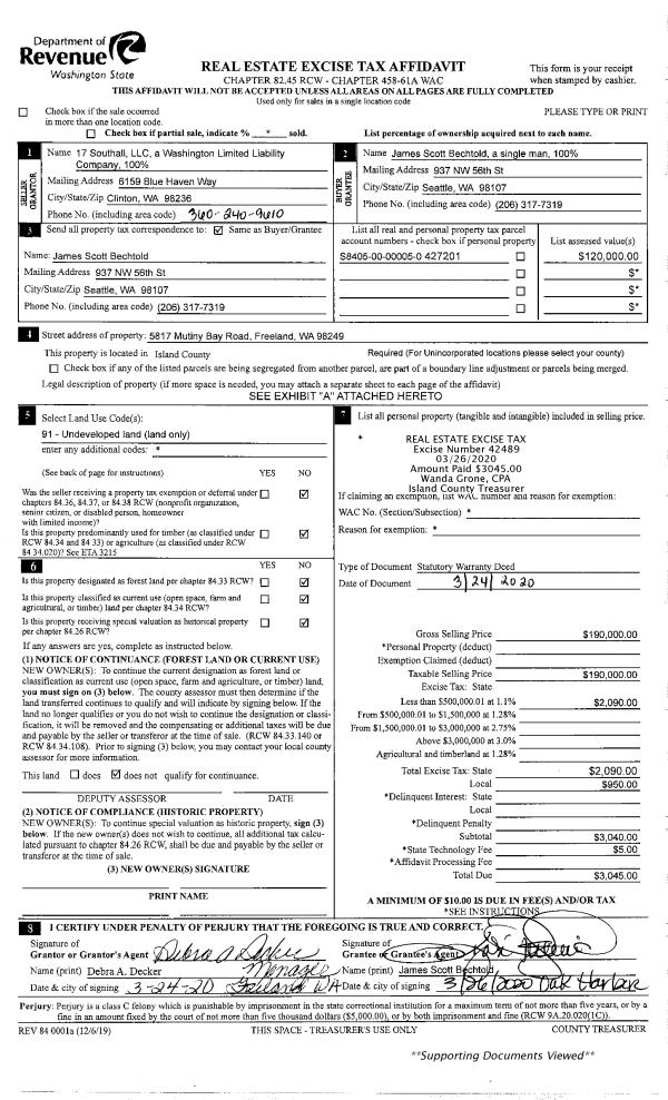
Property
Account |
| Property ID: | 484354 | Abbreviated Legal Description: | 1979 PEERLESS 24X48 TPO $85721 VIN# 14L10456XU |
| Geographic ID: | M9050000001B0 | Agent Code: | |
| Type: | Mobile Home | | |
| Tax Area: | 100 - APPRAISER-OH Schl Dist, in OH | Land Use Code | 11 |
| Open Space: | N | DFL | N |
| Historic Property: | N | Remodel Property: | N |
| Multi-Family Redevelopment: | N | | |
| Township: | | Section: | |
| Range: | |
Location |
| Address: | 1320 N OAK HARBOR ST # 12 OAK HARBOR, WA 98277 | Mapsco: | |
| Neighborhood: | Cycle 1 | Map ID: | |
| Neighborhood CD: | 1 |
Owner |
| Name: | AGUIRRE, CRISTINA D | Owner ID: | 294501 |
| Mailing Address: | 1320 N OAK HARBOR ST #12 OAK HARBOR, WA 98277 | % Ownership: | 100.0000000000% |
| | | Exemptions: | |
Taxes and Assessment Details
Values
| (+) Improvement Homesite Value: | + | $0 | |
| (+) Improvement Non-Homesite Value: | + | $28,823 | |
| (+) Land Homesite Value: | + | $0 | |
| (+) Land Non-Homesite Value: | + | $0 | |
| (+) Curr Use (HS): | + | $0 | $0 |
| (+) Curr Use (NHS): | + | $0 | $0 |
| | | -------------------------- | |
| (=) Market Value: | = | $28,823 | |
| (–) Productivity Loss: | – | $0 | |
| | | -------------------------- | |
| (=) Subtotal: | = | $28,823 | |
| (+) Senior Appraised Value: | + | $0 | |
| (+) Non-Senior Appraised Value: | + | $28,823 | |
| | | -------------------------- | |
| (=) Total Appraised Value: | = | $28,823 | |
| (–) Senior Exemption Loss: | – | $0 | |
| (–) Exemption Loss: | – | $0 | |
| | | -------------------------- | |
| (=) Taxable Value: | = | $28,823 | |
Taxing Jurisdiction
| Owner: | AGUIRRE, CRISTINA D | | |
| % Ownership: | 100.0000000000% | | |
| Total Value: | $28,823 | | |
| Tax Area: | 100 - APPRAISER-OH Schl Dist, in OH |
| CF | Conservation Futures | 0.0313996660 | $28,823 | $28,823 | $0.91 | | |
| CEM1 | Cemetery #1 | 0.0040018856 | $28,823 | $28,823 | $0.12 | | |
| COH | City of Oak Harbor | 2.3090730572 | $28,823 | $28,823 | $66.55 | | |
| OAKBOND | City of Oak Harbor BOND | 0.1902260131 | $28,823 | $28,823 | $5.48 | | |
| HOBOND | Hospital BOND | 0.1893405597 | $28,823 | $28,823 | $5.46 | | |
| HOGEN | Hospital GEN | 0.3848777722 | $28,823 | $28,823 | $11.09 | | |
| CE | County Current Expense | 0.3674210519 | $28,823 | $28,823 | $10.59 | | |
| ISLANDEMS | Hospital GEN (EMS) | 0.4952018576 | $28,823 | $28,823 | $14.27 | | |
| LIB | Library Sno-Isle GEN | 0.3039084203 | $28,823 | $28,823 | $8.76 | | |
| NWHIDPRMT | P & R N Whidbey GEN | 0.1990272349 | $28,823 | $28,823 | $5.74 | | |
| SCH201MO | School 201 Enrichment | 2.3851112745 | $28,823 | $28,823 | $68.75 | | |
| ST | State School | 1.4761226122 | $28,823 | $28,823 | $42.55 | | |
| ST2 | State School Part 2 | 0.7953803475 | $28,823 | $28,823 | $22.93 | | |
| | Total Tax Rate: | 9.1310917527 | | | | | |
| | | | | Taxes w/Current Exemptions: | $263.20 | | |
| | | | | Taxes w/o Exemptions: | $263.20 | | |
Improvement / Building
| Improvement #1: | MANUFACTURED HOME | State Code: | Y | 1130.0 sqft | Value: | $28,823 |
| Bathrooms: | 0 | Bedrooms: | 0 | | Ceiling: | PLASTER PAINTED | Cooling: | EVAP NO DUCT | | Exterior Wall/Cover: | VINYL | Floor Covering: | CARPET 100% | | Floor Structure: | SLAB ON GRADE | Foundation: | SLAB | | Heating: | FHA ELECTRIC | Interior Finish: | PLASTER | | Plumbing Fixture Cnt: | 1 | Roof Slope: | FLAT | | Roof Structure/Cover: | CJ ALUMINIUM HEAVY |   |   |
|
Sketch
Property Image
Land
No land segments exist for this property.
Roll Value History
| 2026 | N/A | N/A | N/A | N/A | N/A |
| 2025 | $28,823 | $0 | $0 | $28,823 | $28,823 |
| 2024 | $9,433 | $0 | $0 | $9,433 | $9,433 |
| 2023 | $7,711 | $0 | $0 | $7,711 | $7,711 |
| 2022 | $7,617 | $0 | $0 | $7,617 | $7,617 |
| 2021 | $6,899 | $0 | $0 | $6,899 | $6,899 |
| 2020 | $7,234 | $0 | $0 | $7,234 | $7,234 |
| 2019 | $5,909 | $0 | $0 | $5,909 | $5,909 |
| 2018 | $6,331 | $0 | $0 | $6,331 | $6,331 |
| 2017 | $6,542 | $0 | $0 | $6,542 | $6,542 |
| 2016 | $6,964 | $0 | $0 | $6,964 | $6,964 |
| 2015 | $7,386 | $0 | $0 | $7,386 | $7,386 |
| 2014 | $8,020 | $0 | $0 | $8,020 | $8,020 |
| 2013 | $8,442 | $0 | $0 | $8,442 | $8,442 |
| 2012 | $8,864 | $0 | $0 | $8,864 | $8,864 |
| 2011 | $11,993 | $0 | $0 | $11,993 | $11,993 |
| 2010 | $12,533 | $0 | $0 | $12,533 | $12,533 |
| 2009 | $13,968 | $0 | $0 | $13,968 | $13,968 |
| 2008 | $14,673 | $0 | $0 | $14,673 | $14,673 |
| 2007 | $15,378 | $0 | $0 | $15,378 | $15,378 |
Deed and Sales History
| 1 | 06/09/2020 | MANHOME | Manufactured Home | ANDREWS, BARBARA T | AGUIRRE, CRISTINA D | | | $9,000.00 | 43282 | |
| 2 | 06/26/2004 | OTHER | Other - Misc. Documents | GRANT, MICHAEL G | ANDREWS, BARBARA T | | | $14,000.00 | 1334 | 0 |
| 3 | 03/01/1989 | OTHER | Other - Misc. Documents | LIBSTAFF, LINDA S | GRANT, MICHAEL G | | | $17,000.00 | 90914 | 0 |
| 4 | 03/01/1986 | OTHER | Other - Misc. Documents | JILES, DAVID | LIBSTAFF, LINDA S | | | $15,500.00 | 60675 | 0 |
| 5 | 01/01/1900 | OTHER | Other - Misc. Documents | Unknown | JILES, DAVID | | | $0.00 | 0 | 0 |
Payout Agreement
| No payout information available.. |