Property
Account |
| Property ID: | 484390 | Abbreviated Legal Description: | IN SE SW BG NW CR SE SW S330' E462' S229' E327.5' N TO SLN RD NWLY ALG RD TO NLN SE SW W332.2' TPB ALSO BG NW CR SE SW S330' TPB S20' SWLY TO 85' S OF TPB N85' TO TPB EX PT TO IS CO FOR RD FR 078-1950, 091-1940, 096-1500 & 117-1590 |
| Geographic ID: | R13203-110-1730 | Agent Code: | |
| Type: | Real | | |
| Tax Area: | 100 - APPRAISER-OH Schl Dist, in OH | Land Use Code | 15 |
| Open Space: | N | DFL | N |
| Historic Property: | N | Remodel Property: | N |
| Multi-Family Redevelopment: | N | | |
| Township: | 32 | Section: | 03 |
| Range: | R1 |
Location |
| Address: | 1215 SW SWANTOWN AVE OAK HARBOR, WA 98277 | Mapsco: | |
| Neighborhood: | 3AcOH-sw swantown | Map ID: | 90 |
| Neighborhood CD: | 3AcOHswntn |
Owner |
| Name: | ISLAND COUNTY | Owner ID: | 307759 |
| Mailing Address: | FACILITIES MANAGEMENT 1 NE 7TH ST COUPEVILLE, WA 98239 | % Ownership: | 100.0000000000% |
| | | Exemptions: | EX |
Taxes and Assessment Details
Values
| (+) Improvement Homesite Value: | + | $0 | |
| (+) Improvement Non-Homesite Value: | + | $0 | |
| (+) Land Homesite Value: | + | $0 | |
| (+) Land Non-Homesite Value: | + | $1,215,324 | |
| (+) Curr Use (HS): | + | $0 | $0 |
| (+) Curr Use (NHS): | + | $0 | $0 |
| | | -------------------------- | |
| (=) Market Value: | = | $1,215,324 | |
| (–) Productivity Loss: | – | $0 | |
| | | -------------------------- | |
| (=) Subtotal: | = | $1,215,324 | |
| (+) Senior Appraised Value: | + | $0 | |
| (+) Non-Senior Appraised Value: | + | $1,215,324 | |
| | | -------------------------- | |
| (=) Total Appraised Value: | = | $1,215,324 | |
| (–) Senior Exemption Loss: | – | $0 | |
| (–) Exemption Loss: | – | $1,215,324 | |
| | | -------------------------- | |
| (=) Taxable Value: | = | $0 | |
Taxing Jurisdiction
| Owner: | ISLAND COUNTY | | |
| % Ownership: | 100.0000000000% | | |
| Total Value: | $1,215,324 | | |
| Tax Area: | 100 - APPRAISER-OH Schl Dist, in OH |
| CF | Conservation Futures | 0.0313996660 | $1,215,324 | $0 | $0.00 | | |
| CEM1 | Cemetery #1 | 0.0040018856 | $1,215,324 | $0 | $0.00 | | |
| COH | City of Oak Harbor | 2.3090730572 | $1,215,324 | $0 | $0.00 | | |
| OAKBOND | City of Oak Harbor BOND | 0.1902260131 | $1,215,324 | $0 | $0.00 | | |
| HOBOND | Hospital BOND | 0.1893405597 | $1,215,324 | $0 | $0.00 | | |
| HOGEN | Hospital GEN | 0.3848777722 | $1,215,324 | $0 | $0.00 | | |
| CE | County Current Expense | 0.3674210519 | $1,215,324 | $0 | $0.00 | | |
| ISLANDEMS | Hospital GEN (EMS) | 0.4952018576 | $1,215,324 | $0 | $0.00 | | |
| LIB | Library Sno-Isle GEN | 0.3039084203 | $1,215,324 | $0 | $0.00 | | |
| NWHIDPRMT | P & R N Whidbey GEN | 0.1990272349 | $1,215,324 | $0 | $0.00 | | |
| SCH201MO | School 201 Enrichment | 2.3851112745 | $1,215,324 | $0 | $0.00 | | |
| ST | State School | 1.4761226122 | $1,215,324 | $0 | $0.00 | | |
| ST2 | State School Part 2 | 0.7953803475 | $1,215,324 | $0 | $0.00 | | |
| | Total Tax Rate: | 9.1310917527 | | | | | |
| | | | | Taxes w/Current Exemptions: | $0.00 | | |
| | | | | Taxes w/o Exemptions: | $11,097.23 | | |
Improvement / Building
Sketch
| No sketches available for this property. |
Property Image
Land
| 1 | 61 | MULTIPLE RESIDENCES | 5.5800 | 243064.80 | 0.00 | 0.00 | 1.00 | $1,215,324 | $0 |
Roll Value History
| 2026 | N/A | N/A | N/A | N/A | N/A |
| 2025 | $0 | $1,215,324 | $0 | $1,215,324 | $0 |
| 2024 | $0 | $1,215,324 | $0 | $1,215,324 | $0 |
| 2023 | $0 | $1,215,324 | $0 | $1,215,324 | $0 |
| 2022 | $0 | $1,215,324 | $0 | $1,215,324 | $0 |
| 2021 | $0 | $1,215,324 | $0 | $1,215,324 | $0 |
| 2020 | $0 | $1,215,324 | $0 | $1,215,324 | $1,215,324 |
| 2019 | $148,548 | $972,259 | $0 | $1,120,807 | $1,120,807 |
| 2018 | $147,464 | $607,662 | $0 | $755,126 | $755,126 |
| 2017 | $149,630 | $1,069,119 | $0 | $1,218,749 | $1,218,749 |
| 2016 | $151,076 | $1,069,119 | $0 | $1,220,195 | $1,220,195 |
| 2015 | $152,519 | $1,069,119 | $0 | $1,221,638 | $1,221,638 |
| 2014 | $153,965 | $1,069,119 | $0 | $1,223,084 | $1,223,084 |
| 2013 | $165,312 | $1,069,119 | $0 | $1,234,431 | $1,234,431 |
| 2012 | $165,312 | $1,069,119 | $0 | $1,234,431 | $1,234,431 |
| 2011 | $165,312 | $1,069,119 | $0 | $1,234,431 | $1,234,431 |
| 2010 | $173,911 | $1,069,119 | $0 | $1,243,030 | $1,243,030 |
| 2009 | $177,567 | $1,634,801 | $0 | $1,812,368 | $1,812,368 |
| 2008 | $179,241 | $1,634,801 | $0 | $1,814,042 | $1,814,042 |
| 2007 | $163,553 | $1,653,700 | $0 | $1,817,253 | $1,817,253 |
Deed and Sales History
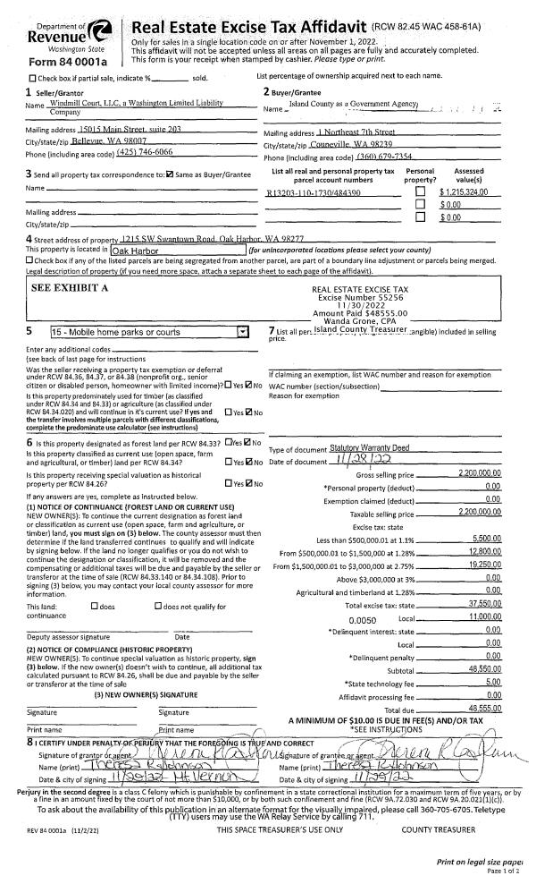
| 1 | 11/28/2022 | WD | Warranty Deed | WINDMILL COURT LLC | ISLAND COUNTY AS A GOVERNMENT AGENCY | | | $2,200,000.00 | 55256 | 4554313 |
| 2 | 03/29/2006 | WD | Warranty Deed | WALDEN FAMILY LLC, | WINDMILL COURT LLC, | | | $2,375,000.00 | 61363 | 4166371 |
| 3 | 12/31/2005 | 5 | DNU - Marriage License/Name Change | WALDEN, STEPHEN M | WALDEN FAMILY LLC, | | | $0.00 | 60097 | 4159260 |
| 4 | 09/01/1993 | QCD | Quit Claim Deed | WALDEN, STEPHEN M | WALDEN, STEPHEN M | | | $0.00 | 65590 | 93016803 |
| 5 | 10/01/1991 | QCD | Quit Claim Deed | WALDEN, STEPHEN M | WALDEN, STEPHEN M | | | $30,000.00 | 64509 | 91013449 |
| 6 | 01/01/1900 | OTHER | Other - Misc. Documents | Unknown | WALDEN, STEPHEN M | | | $0.00 | 0 | 0 |
Payout Agreement
| No payout information available.. |