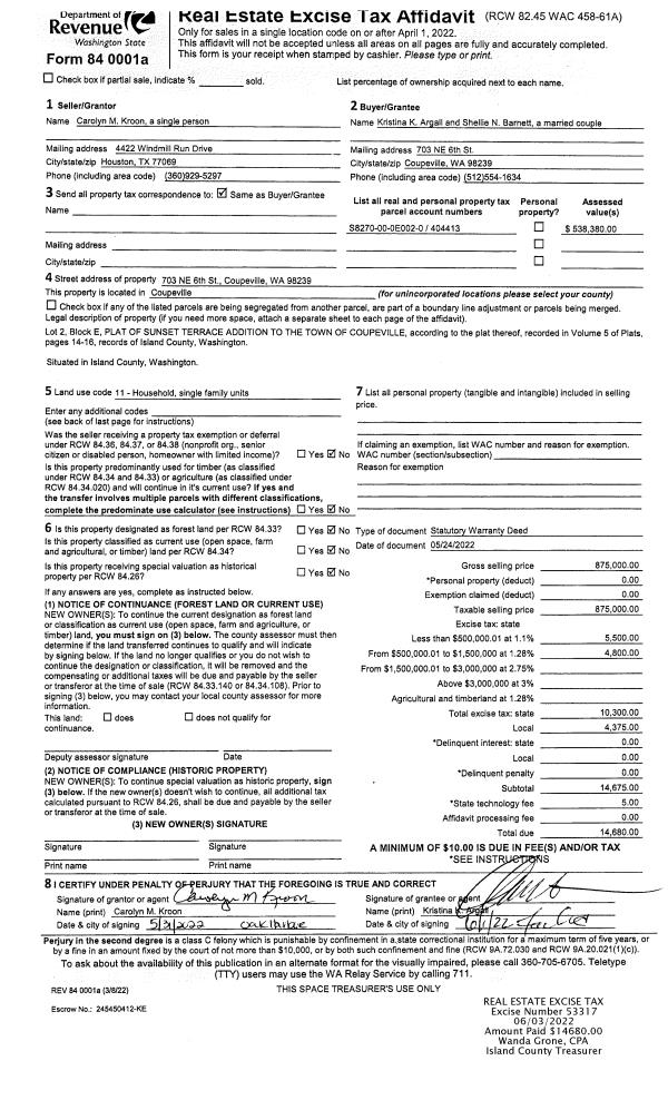
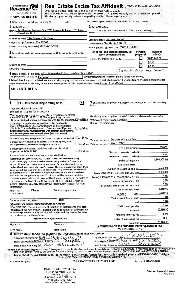
Property
Account |
| Property ID: | 484719 | Abbreviated Legal Description: | BG NWCR NE SW S436.33' S88*E250' N436.33' N88*W250 TPB TGW & SUB EZ SP 78-143 FR 219-1630 |
| Geographic ID: | R13311-242-1430 | Agent Code: | |
| Type: | Real | | |
| Tax Area: | 112 - APPRAISER-OH Schl Dist, outside OH, improved, greater than 1 acre | Land Use Code | 11 |
| Open Space: | N | DFL | N |
| Historic Property: | N | Remodel Property: | N |
| Multi-Family Redevelopment: | N | | |
| Township: | 33 | Section: | 11 |
| Range: | R1 |
Location |
| Address: | 685 TIDEWATER RD OAK HARBOR, WA 98277 | Mapsco: | |
| Neighborhood: | Cycle 6 | Map ID: | 200 |
| Neighborhood CD: | 6 |
Owner |
| Name: | ACOSTA CALDERON, ROSA MARIE | Owner ID: | 305675 |
| Mailing Address: | 5307 CYPRESS ST PASADENA, TX 77503 | % Ownership: | 100.0000000000% |
| | | Exemptions: | |
Taxes and Assessment Details
Values
| (+) Improvement Homesite Value: | + | $0 | |
| (+) Improvement Non-Homesite Value: | + | $99,214 | |
| (+) Land Homesite Value: | + | $0 | |
| (+) Land Non-Homesite Value: | + | $250,000 | |
| (+) Curr Use (HS): | + | $0 | $0 |
| (+) Curr Use (NHS): | + | $0 | $0 |
| | | -------------------------- | |
| (=) Market Value: | = | $349,214 | |
| (–) Productivity Loss: | – | $0 | |
| | | -------------------------- | |
| (=) Subtotal: | = | $349,214 | |
| (+) Senior Appraised Value: | + | $0 | |
| (+) Non-Senior Appraised Value: | + | $349,214 | |
| | | -------------------------- | |
| (=) Total Appraised Value: | = | $349,214 | |
| (–) Senior Exemption Loss: | – | $0 | |
| (–) Exemption Loss: | – | $0 | |
| | | -------------------------- | |
| (=) Taxable Value: | = | $349,214 | |
Taxing Jurisdiction
| Owner: | ACOSTA CALDERON, ROSA MARIE | | |
| % Ownership: | 100.0000000000% | | |
| Total Value: | $349,214 | | |
| Tax Area: | 112 - APPRAISER-OH Schl Dist, outside OH, improved, greater than 1 acre |
| CF | Conservation Futures | 0.0313996660 | $349,214 | $349,214 | $10.97 | | |
| CEM1 | Cemetery #1 | 0.0040018856 | $349,214 | $349,214 | $1.40 | | |
| FIRE2 | Fire & Rescue Dist #2 N Whidbey GEN | 0.5381486274 | $349,214 | $349,214 | $187.93 | | |
| HOBOND | Hospital BOND | 0.1893405597 | $349,214 | $349,214 | $66.12 | | |
| HOGEN | Hospital GEN | 0.3848777722 | $349,214 | $349,214 | $134.40 | | |
| CE | County Current Expense | 0.3674210519 | $349,214 | $349,214 | $128.31 | | |
| CR | County Roads | 0.4614296361 | $349,214 | $349,214 | $161.14 | | |
| ISLANDEMS | Hospital GEN (EMS) | 0.4952018576 | $349,214 | $349,214 | $172.93 | | |
| LIB | Library Sno-Isle GEN | 0.3039084203 | $349,214 | $349,214 | $106.13 | | |
| NWHIDPRMT | P & R N Whidbey GEN | 0.1990272349 | $349,214 | $349,214 | $69.50 | | |
| SCH201MO | School 201 Enrichment | 2.3851112745 | $349,214 | $349,214 | $832.91 | | |
| ST | State School | 1.4761226122 | $349,214 | $349,214 | $515.48 | | |
| ST2 | State School Part 2 | 0.7953803475 | $349,214 | $349,214 | $277.76 | | |
| | Total Tax Rate: | 7.6313709459 | | | | | |
| | | | | Taxes w/Current Exemptions: | $2,664.98 | | |
| | | | | Taxes w/o Exemptions: | $2,664.98 | | |
Improvement / Building
| Improvement #1: | MANUFACTURED HOME | State Code: | Y | 1512.0 sqft | Value: | $99,214 |
| Bathrooms: | 0 | Bedrooms: | 0 | | Ceiling: | PLASTER PAINTED | Cooling: | EVAP NO DUCT | | Exterior Wall/Cover: | VINYL | Floor Covering: | CARPET 100% | | Floor Structure: | SLAB ON GRADE | Foundation: | SLAB | | Heating: | FHA ELECTRIC | Interior Finish: | PLASTER | | Plumbing Fixture Cnt: | 1 | Roof Slope: | FLAT | | Roof Structure/Cover: | CJ ALUMINIUM HEAVY |   |   |
|
| | Type | Description | Class CD | Sub Class CD | Year Built | Area |
| | BAS | BASE/MAIN FLOOR | 4 | 0 | 1992 | 1512.0 |
| | DGR | DETACHED GARAGE | 4 | 0 | 1992 | 840.0 |
| | OWP | OPEN WOOD PORCH W/STEPS | 4 | 0 | 1992 | 336.0 |
| | OWR | OPEN WOOD PORCH W/STEPS/ROOF | 4 | 0 | 1992 | 280.0 |
Sketch
Property Image
Land
| 1 | 18 | AC (02.01-03.00) | 2.5000 | 108900.00 | 0.00 | 0.00 | 1.00 | $250,000 | $0 |
Roll Value History
| 2026 | N/A | N/A | N/A | N/A | N/A |
| 2025 | $99,214 | $250,000 | $0 | $349,214 | $349,214 |
| 2024 | $102,614 | $230,000 | $0 | $332,614 | $332,614 |
| 2023 | $96,402 | $220,000 | $0 | $316,402 | $316,402 |
| 2022 | $83,508 | $210,000 | $0 | $293,508 | $293,508 |
| 2021 | $75,033 | $160,000 | $0 | $235,033 | $235,033 |
| 2020 | $75,191 | $130,000 | $0 | $205,191 | $205,191 |
| 2019 | $61,084 | $180,000 | $0 | $241,084 | $241,084 |
| 2018 | $62,934 | $170,000 | $0 | $232,934 | $232,934 |
| 2017 | $64,785 | $150,000 | $0 | $214,785 | $214,785 |
| 2016 | $50,483 | $120,000 | $0 | $170,483 | $170,483 |
| 2015 | $52,062 | $100,000 | $0 | $152,062 | $152,062 |
| 2014 | $53,639 | $70,000 | $0 | $123,639 | $123,639 |
| 2013 | $55,216 | $70,000 | $0 | $125,216 | $125,216 |
| 2012 | $56,794 | $76,500 | $0 | $133,294 | $133,294 |
| 2011 | $57,583 | $90,000 | $0 | $147,583 | $147,583 |
| 2010 | $66,207 | $90,000 | $0 | $156,207 | $156,207 |
| 2009 | $69,542 | $77,500 | $0 | $147,042 | $147,042 |
| 2008 | $70,028 | $118,000 | $0 | $188,028 | $188,028 |
| 2007 | $71,897 | $118,000 | $0 | $189,897 | $189,897 |
Deed and Sales History
| 1 | 08/02/2022 | QCD | Quit Claim Deed | CALDERON BARAJAS , ARMANDO | ACOSTA CALDERON, ROSA MARIE | | | $0.00 | 54134 | 4549567 |
| 2 | 08/02/2022 | WD | Warranty Deed | TROMBETTA, ROGER H | ACOSTA CALDERON, ROSA MARIE | | | $265,000.00 | 54133 | 4549566 |
| 3 | 04/28/2010 | ESTSEPPROP | Establish Separate Property | TROMBETTA, ROGER H | TROMBETTA, ROGER H | | | $0.00 | 3060 | 4286364 |
| 4 | 07/21/2004 | WD | Warranty Deed | GLASS, DOROTHY J | TROMBETTA, ROGER H | | | $169,900.00 | 43440 | 4108300 |
| 5 | 07/14/2003 | WD | Warranty Deed | HERN, MARTIN D | GLASS, DOROTHY J | | | $118,000.00 | 33053 | 4066972 |
| 6 | 04/01/1993 | WD | Warranty Deed | CONFORTH, JOHN | HERN, MARTIN D | | | $16,000.00 | 31317 | 93006876 |
| 7 | 01/01/1981 | PACD | Purchaser's Assignment | SHEWMAKE, MICHAEL E | CONFORTH, JOHN | | | $14,900.00 | 10333 | 379072 |
| 8 | 03/01/1980 | REC | Real Estate Contract | LOGAN, LOUIS C | SHEWMAKE, MICHAEL E | | | $15,900.00 | 886 | 366395 |
| 9 | 01/01/1900 | OTHER | Other - Misc. Documents | Unknown | LOGAN, LOUIS C | | | $0.00 | 0 | 0 |
Payout Agreement
| No payout information available.. |