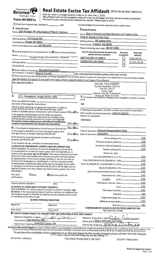
Property
Account |
| Property ID: | 48692 | Abbreviated Legal Description: | 26 - N130' GL 3 EX E 1594' EX CO RD ALG NLN TGW 1/3 INT IN WELL |
| Geographic ID: | R22908-255-2180 | Agent Code: | |
| Type: | Real | | |
| Tax Area: | 710 - APPRAISER-S Whid Schl Dist, outside Langley, improved & 1 acre or less | Land Use Code | 11 |
| Open Space: | N | DFL | N |
| Historic Property: | N | Remodel Property: | N |
| Multi-Family Redevelopment: | N | | |
| Township: | 29 | Section: | 08 |
| Range: | R2 |
Location |
| Address: | 562 ADAMS RD FREELAND, WA 98249 | Mapsco: | |
| Neighborhood: | Cycle 3 | Map ID: | 301 |
| Neighborhood CD: | 3 |
Owner |
| Name: | SIMMONS TTEE, ELKE H | Owner ID: | 308205 |
| Mailing Address: | DALE WOODARD TTEE 562 ADAMS RD FREELAND, WA 98249 | % Ownership: | 100.0000000000% |
| | | Exemptions: | |
Taxes and Assessment Details
Values
| (+) Improvement Homesite Value: | + | $0 | |
| (+) Improvement Non-Homesite Value: | + | $779,888 | |
| (+) Land Homesite Value: | + | $0 | |
| (+) Land Non-Homesite Value: | + | $623,200 | |
| (+) Curr Use (HS): | + | $0 | $0 |
| (+) Curr Use (NHS): | + | $0 | $0 |
| | | -------------------------- | |
| (=) Market Value: | = | $1,403,088 | |
| (–) Productivity Loss: | – | $0 | |
| | | -------------------------- | |
| (=) Subtotal: | = | $1,403,088 | |
| (+) Senior Appraised Value: | + | $0 | |
| (+) Non-Senior Appraised Value: | + | $1,403,088 | |
| | | -------------------------- | |
| (=) Total Appraised Value: | = | $1,403,088 | |
| (–) Senior Exemption Loss: | – | $0 | |
| (–) Exemption Loss: | – | $0 | |
| | | -------------------------- | |
| (=) Taxable Value: | = | $1,403,088 | |
Taxing Jurisdiction
| Owner: | SIMMONS TTEE, ELKE H | | |
| % Ownership: | 100.0000000000% | | |
| Total Value: | $1,403,088 | | |
| Tax Area: | 710 - APPRAISER-S Whid Schl Dist, outside Langley, improved & 1 acre or less |
| CF | Conservation Futures | 0.0313996660 | $1,403,088 | $1,403,088 | $44.06 | | |
| FIRE3 | Fire & Rescue Dist #3 S Whidbey GEN | 1.2130821753 | $1,403,088 | $1,403,088 | $1,702.06 | | |
| HOBOND | Hospital BOND | 0.1893405597 | $1,403,088 | $1,403,088 | $265.66 | | |
| HOGEN | Hospital GEN | 0.3848777722 | $1,403,088 | $1,403,088 | $540.02 | | |
| CE | County Current Expense | 0.3674210519 | $1,403,088 | $1,403,088 | $515.52 | | |
| CR | County Roads | 0.4614296361 | $1,403,088 | $1,403,088 | $647.43 | | |
| ISLANDEMS | Hospital GEN (EMS) | 0.4952018576 | $1,403,088 | $1,403,088 | $694.81 | | |
| LIB | Library Sno-Isle GEN | 0.3039084203 | $1,403,088 | $1,403,088 | $426.41 | | |
| PORTWHID | Port of S Whidbey GEN | 0.1086004714 | $1,403,088 | $1,403,088 | $152.38 | | |
| SCH206BOND | School 206 BOND | 0.5960237832 | $1,403,088 | $1,403,088 | $836.27 | | |
| SCH206CAP | School 206 CP | 0.3066144020 | $1,403,088 | $1,403,088 | $430.21 | | |
| SCH206MO | School 206 Enrichment | 0.4808755445 | $1,403,088 | $1,403,088 | $674.71 | | |
| ST | State School | 1.4761226122 | $1,403,088 | $1,403,088 | $2,071.13 | | |
| ST2 | State School Part 2 | 0.7953803475 | $1,403,088 | $1,403,088 | $1,115.99 | | |
| SWHIDPRBD | P & R S Whidbey BOND | 0.0144185398 | $1,403,088 | $1,403,088 | $20.23 | | |
| SWHIDPRBD3 | P & R S Whidbey BOND3 | 0.1483535547 | $1,403,088 | $1,403,088 | $208.15 | | |
| SWHIDPRMT | P & R S Whidbey GEN | 0.4600000000 | $1,403,088 | $1,403,088 | $645.42 | | |
| | Total Tax Rate: | 7.8330503944 | | | | | |
| | | | | Taxes w/Current Exemptions: | $10,990.46 | | |
| | | | | Taxes w/o Exemptions: | $10,990.46 | | |
Improvement / Building
| Improvement #1: | RESIDENTIAL | State Code: | Y | 2068.0 sqft | Value: | $503,684 |
| Bathrooms: | 2 | Bedrooms: | 2 | | Ceiling: | DRYWALL PAINTED | Cooling: | HEAT PUMP/CONV/V | | Exterior Wall/Cover: | CEMENT FIBER | Floor Covering: | HARDWOOD 100% | | Floor Structure: | WOOD W/SUBFLOOR | Foundation: | CONCRETE | | Interior Finish: | DRYWALL PAINT | Plumbing Fixture Cnt: | 12 | | Roof Slope: | FLAT | Roof Structure/Cover: | BEAM ALUMINUM HEAVY |
|
| | Type | Description | Class CD | Sub Class CD | Year Built | Area |
| | BAS | BASE/MAIN FLOOR | 4 | 0 | 2016 | 848.0 |
| | UPS | UPPER STORY | 4 | 0 | 2016 | 1220.0 |
| | AGR | ATTACHED GARAGE | 4 | 0 | 2016 | 320.0 |
| | UB8 | BASEMENT UNFINISHED 8" | 4 | 0 | 2016 | 528.0 |
| | OWP | OPEN WOOD PORCH W/STEPS | 4 | 0 | 2016 | 80.0 |
| | OWP | OPEN WOOD PORCH W/STEPS | 4 | 0 | 2016 | 360.0 |
| | OWP | OPEN WOOD PORCH W/STEPS | 4 | 0 | 2016 | 96.0 |
| Improvement #2: | RESIDENTIAL | State Code: | Y | 1326.0 sqft | Value: | $276,204 |
| Bathrooms: | 1 | Bedrooms: | 3 | | Ceiling: | DRYWALL PAINTED | Exterior Wall/Cover: | WOOD SIDING | | Floor Covering: | HARDWOOD/CARP 20-80 | Floor Structure: | WOOD W/SUBFLOOR | | Foundation: | CONCRETE BLOCKS | Heating: | BASEBOARD ELECTRIC | | Interior Finish: | DRYWALL PAINT | Plumbing Fixture Cnt: | 6 | | Roof Slope: | 8" IN 12" | Roof Structure/Cover: | CJ ASPHALT |
|
| | Type | Description | Class CD | Sub Class CD | Year Built | Area |
| | BAS | BASE/MAIN FLOOR | 3 | 0 | 1930 | 861.0 |
| | UTY | STORAGE/UTILITY | 3 | 0 | 1930 | 312.0 |
| | ENP | ENCLOSED PORCH | 3 | 0 | 1930 | 48.0 |
| | DGR | DETACHED GARAGE | 3 | 0 | 1930 | 1584.0 |
| | ATU | ATTIC UNFINISHED | 3 | 0 | 1930 | 576.0 |
| | UPH | HALF STORY | 3 | 0 | 1930 | 465.0 |
| | OWP | OPEN WOOD PORCH W/STEPS | 3 | 0 | 1930 | 260.0 |
Sketch
Property Image
Land
| 1 | HB | HIGH BLUFF | 0.0000 | 0.00 | 130.00 | 0.00 | 1.00 | $623,200 | $0 |
Roll Value History
| 2026 | N/A | N/A | N/A | N/A | N/A |
| 2025 | $779,888 | $623,200 | $0 | $1,403,088 | $1,403,088 |
| 2024 | $793,553 | $588,000 | $0 | $1,381,553 | $1,381,553 |
| 2023 | $801,565 | $560,000 | $0 | $1,361,565 | $1,361,565 |
| 2022 | $733,107 | $540,000 | $0 | $1,273,107 | $1,273,107 |
| 2021 | $643,790 | $450,000 | $0 | $1,093,790 | $1,093,790 |
| 2020 | $626,547 | $450,000 | $0 | $1,076,547 | $1,076,547 |
| 2019 | $436,884 | $500,000 | $0 | $936,884 | $936,884 |
| 2018 | $438,151 | $500,000 | $0 | $938,151 | $938,151 |
| 2017 | $395,069 | $500,000 | $0 | $895,069 | $895,069 |
| 2016 | $207,702 | $500,000 | $0 | $707,702 | $707,702 |
| 2015 | $128,545 | $500,000 | $0 | $628,545 | $628,545 |
| 2014 | $130,651 | $500,000 | $0 | $630,651 | $630,651 |
| 2013 | $130,076 | $485,217 | $0 | $615,293 | $615,293 |
| 2012 | $110,966 | $485,217 | $0 | $596,183 | $596,183 |
| 2011 | $100,244 | $485,217 | $0 | $585,461 | $585,461 |
| 2010 | $110,695 | $485,217 | $0 | $595,912 | $595,912 |
| 2009 | $114,033 | $583,193 | $0 | $697,226 | $697,226 |
| 2008 | $115,658 | $717,763 | $0 | $833,421 | $833,421 |
| 2007 | $115,233 | $717,763 | $0 | $832,996 | $832,996 |
Deed and Sales History
| 1 | 04/04/2023 | PRD | Personal Representatives Deed | SIMMONS, PHILLIP M | SIMMONS TTEE, ELKE H | | | $0.00 | 56316 | 4558451 |
| 2 | 04/08/2010 | WD | Warranty Deed | SCHORER, RAYMOND J | SIMMONS, PHILLIP M | | | $649,000.00 | 837 | 4271988 |
| 3 | 07/01/1983 | OTHER | Other - Misc. Documents | SCHORER, RAYMOND J | SCHORER, RAYMOND J | | | $0.00 | 60087 | 410427 |
| 4 | 09/01/1982 | EXECUTORD | Executor Deed | ADAMS, RUBY B | SCHORER, RAYMOND J | | | $115,000.00 | 22082 | 400038 |
| 5 | 01/01/1900 | OTHER | Other - Misc. Documents | Unknown | ADAMS, RUBY B | | | $0.00 | 0 | 0 |
Payout Agreement
| No payout information available.. |