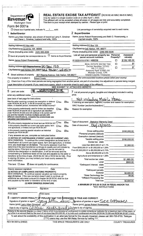
Property
Account |
| Property ID: | 488038 | Abbreviated Legal Description: | REPLACES 2770180 IN JACOB SMITH DLC BG WLN SD DLC & SLN DOUGLAS RD N89 E532.99' S5*W317.75' TPB S5 W60' N84*W150' N5*E60' S84* E150' TPB TR F |
| Geographic ID: | R13220-010-3750 | Agent Code: | |
| Type: | Real | | |
| Tax Area: | 330 - APPRAISER-Cpvl Schl Dist, Special Dist, improved & less than 1 acre | Land Use Code | 11 |
| Open Space: | N | DFL | N |
| Historic Property: | N | Remodel Property: | N |
| Multi-Family Redevelopment: | N | | |
| Township: | 32 | Section: | 20 |
| Range: | R1 |
Location |
| Address: | 807 RIEPMA AVE OAK HARBOR, WA 98277 | Mapsco: | |
| Neighborhood: | Cycle 2 | Map ID: | 146 |
| Neighborhood CD: | 2 |
Owner |
| Name: | ROSENZWEIG, JAMES R | Owner ID: | 304790 |
| Mailing Address: | BETH O ROSENZWEIG PO BOX 133 OAK HARBOR, WA 98277 | % Ownership: | 100.0000000000% |
| | | Exemptions: | |
Taxes and Assessment Details
Values
| (+) Improvement Homesite Value: | + | $0 | |
| (+) Improvement Non-Homesite Value: | + | $15,704 | |
| (+) Land Homesite Value: | + | $0 | |
| (+) Land Non-Homesite Value: | + | $80,000 | |
| (+) Curr Use (HS): | + | $0 | $0 |
| (+) Curr Use (NHS): | + | $0 | $0 |
| | | -------------------------- | |
| (=) Market Value: | = | $95,704 | |
| (–) Productivity Loss: | – | $0 | |
| | | -------------------------- | |
| (=) Subtotal: | = | $95,704 | |
| (+) Senior Appraised Value: | + | $0 | |
| (+) Non-Senior Appraised Value: | + | $95,704 | |
| | | -------------------------- | |
| (=) Total Appraised Value: | = | $95,704 | |
| (–) Senior Exemption Loss: | – | $0 | |
| (–) Exemption Loss: | – | $0 | |
| | | -------------------------- | |
| (=) Taxable Value: | = | $95,704 | |
Taxing Jurisdiction
| Owner: | ROSENZWEIG, JAMES R | | |
| % Ownership: | 100.0000000000% | | |
| Total Value: | $95,704 | | |
| Tax Area: | 330 - APPRAISER-Cpvl Schl Dist, Special Dist, improved & less than 1 acre |
| CF | Conservation Futures | 0.0313996660 | $95,704 | $95,704 | $3.01 | | |
| CEM2 | Cemetery #2 | 0.0092609791 | $95,704 | $95,704 | $0.89 | | |
| FIRE2 | Fire & Rescue Dist #2 N Whidbey GEN | 0.5381486274 | $95,704 | $95,704 | $51.50 | | |
| HOBOND | Hospital BOND | 0.1893405597 | $95,704 | $95,704 | $18.12 | | |
| HOGEN | Hospital GEN | 0.3848777722 | $95,704 | $95,704 | $36.83 | | |
| CE | County Current Expense | 0.3674210519 | $95,704 | $95,704 | $35.16 | | |
| CR | County Roads | 0.4614296361 | $95,704 | $95,704 | $44.16 | | |
| ISLANDEMS | Hospital GEN (EMS) | 0.4952018576 | $95,704 | $95,704 | $47.39 | | |
| LIB | Library Sno-Isle GEN | 0.3039084203 | $95,704 | $95,704 | $29.09 | | |
| LIBCAP | Library Sno-Isle BOND (Cap Fac Imp Area) | 0.0528562629 | $95,704 | $95,704 | $5.06 | | |
| POCOUP | Port of Coupeville GEN | 0.1065226063 | $95,704 | $95,704 | $10.19 | | |
| POCOUPIDD | Port of Coupeville IDD | 0.3353038577 | $95,704 | $95,704 | $32.09 | | |
| COUPSDTECH | School 204 CP (TECH) | 0.1215123397 | $95,704 | $95,704 | $11.63 | | |
| SCH204MO | School 204 Enrichment | 0.6416662518 | $95,704 | $95,704 | $61.41 | | |
| ST | State School | 1.4761226122 | $95,704 | $95,704 | $141.27 | | |
| ST2 | State School Part 2 | 0.7953803475 | $95,704 | $95,704 | $76.12 | | |
| | Total Tax Rate: | 6.3103528484 | | | | | |
| | | | | Taxes w/Current Exemptions: | $603.92 | | |
| | | | | Taxes w/o Exemptions: | $603.92 | | |
Improvement / Building
| Improvement #1: | RESIDENTIAL | State Code: | Y | 0.0 sqft | Value: | $15,704 |
Sketch
| No sketches available for this property. |
Property Image
Land
| 1 | 91 | UNDEVELOPED LAND-METES AND BOUNDS | 0.2100 | 9147.60 | 0.00 | 0.00 | 1.00 | $80,000 | $0 |
Roll Value History
| 2026 | N/A | N/A | N/A | N/A | N/A |
| 2025 | $15,704 | $80,000 | $0 | $95,704 | $95,704 |
| 2024 | $0 | $210,000 | $0 | $210,000 | $210,000 |
| 2023 | $0 | $210,000 | $0 | $210,000 | $210,000 |
| 2022 | $0 | $210,000 | $0 | $210,000 | $210,000 |
| 2021 | $9,185 | $150,000 | $0 | $159,185 | $159,185 |
| 2020 | $9,081 | $140,000 | $0 | $149,081 | $149,081 |
| 2019 | $8,346 | $180,000 | $0 | $188,346 | $188,346 |
| 2018 | $16,043 | $130,000 | $0 | $146,043 | $146,043 |
| 2017 | $16,043 | $120,000 | $0 | $136,043 | $136,043 |
| 2016 | $16,043 | $100,000 | $0 | $116,043 | $116,043 |
| 2015 | $16,043 | $60,000 | $0 | $76,043 | $76,043 |
| 2014 | $16,043 | $60,000 | $0 | $76,043 | $76,043 |
| 2013 | $16,043 | $68,000 | $0 | $84,043 | $84,043 |
| 2012 | $19,220 | $68,000 | $0 | $87,220 | $87,220 |
| 2011 | $19,493 | $80,000 | $0 | $99,493 | $99,493 |
| 2010 | $21,897 | $80,000 | $0 | $101,897 | $101,897 |
| 2009 | $22,277 | $90,000 | $0 | $112,277 | $112,277 |
| 2008 | $22,398 | $86,400 | $0 | $108,798 | $108,798 |
| 2007 | $22,518 | $86,400 | $0 | $108,918 | $108,918 |
Deed and Sales History
| 1 | 06/13/2022 | WD | Warranty Deed | GMEINER, LARRY A | ROSENZWEIG, JAMES R | | | $180,000.00 | 53502 | 4546801 |
| 2 | 09/01/1986 | OTHER | Other - Misc. Documents | GMEINER, LARRY A | GMEINER, LARRY A | | | $0.00 | 62611 | 0 |
| 3 | 09/01/1986 | QCD | Quit Claim Deed | GMEINER, LARRY A | GMEINER, LARRY A | | | $0.00 | 62611 | 86011887 |
| 4 | 04/01/1980 | CD | DNU - Correction Deed | ANDERSON, LEONARD L | GMEINER, LARRY A | | | $0.00 | 1399 | 368066 |
| 5 | 04/01/1980 | QCD | Quit Claim Deed | GMEINER, LARRY A | ANDERSON, LEONARD L | | | $0.00 | 1399 | 368066 |
| 6 | 03/01/1980 | TRUSTEED | Trustee's Deed | RIEPMA, JACOB | GMEINER, LARRY A | | | $35,000.00 | 1143 | 367283 |
| 7 | 02/01/1980 | CD | DNU - Correction Deed | ANDERSON, LEONARD L | RIEPMA, JACOB | | | $0.00 | 599 | 0 |
| 8 | 01/01/1900 | OTHER | Other - Misc. Documents | Unknown | ANDERSON, LEONARD L | | | $0.00 | 12326 | 0 |
Payout Agreement
| No payout information available.. |