Property
Account |
| Property ID: | 489108 | Abbreviated Legal Description: | TR 10 RIDGEVIEW EST IN SE NE BG NW CR NE SW N89*E2791.27' TPB N89*E320. 17' S681.09' S89*W320.15' N679.04' TPB TGW Z FR 2024580 UNREC RIDGEVIEW ESTATES |
| Geographic ID: | R22901-235-4300 | Agent Code: | |
| Type: | Real | | |
| Tax Area: | 719 - APPRAISER-S Whid Schl Dist, outside Langley, vacant & 50 acres or less | Land Use Code | 91 |
| Open Space: | N | DFL | N |
| Historic Property: | N | Remodel Property: | N |
| Multi-Family Redevelopment: | N | | |
| Township: | 29 | Section: | 01 |
| Range: | R2 |
Location |
| Address: | | Mapsco: | |
| Neighborhood: | Cycle 3 | Map ID: | 282 |
| Neighborhood CD: | 3 |
Owner |
| Name: | NERY ET AL, CARRIELEE | Owner ID: | 310179 |
| Mailing Address: | 32 COLLINS ST SAN FRANCISCO, CA 94118 | % Ownership: | 100.0000000000% |
| | | Exemptions: | |
Taxes and Assessment Details
Values
| (+) Improvement Homesite Value: | + | $0 | |
| (+) Improvement Non-Homesite Value: | + | $0 | |
| (+) Land Homesite Value: | + | $0 | |
| (+) Land Non-Homesite Value: | + | $280,000 | |
| (+) Curr Use (HS): | + | $0 | $0 |
| (+) Curr Use (NHS): | + | $0 | $0 |
| | | -------------------------- | |
| (=) Market Value: | = | $280,000 | |
| (–) Productivity Loss: | – | $0 | |
| | | -------------------------- | |
| (=) Subtotal: | = | $280,000 | |
| (+) Senior Appraised Value: | + | $0 | |
| (+) Non-Senior Appraised Value: | + | $280,000 | |
| | | -------------------------- | |
| (=) Total Appraised Value: | = | $280,000 | |
| (–) Senior Exemption Loss: | – | $0 | |
| (–) Exemption Loss: | – | $0 | |
| | | -------------------------- | |
| (=) Taxable Value: | = | $280,000 | |
Taxing Jurisdiction
| Owner: | NERY ET AL, CARRIELEE | | |
| % Ownership: | 100.0000000000% | | |
| Total Value: | $280,000 | | |
| Tax Area: | 719 - APPRAISER-S Whid Schl Dist, outside Langley, vacant & 50 acres or less |
| CF | Conservation Futures | 0.0313996660 | $280,000 | $280,000 | $8.79 | | |
| HOBOND | Hospital BOND | 0.1893405597 | $280,000 | $280,000 | $53.02 | | |
| HOGEN | Hospital GEN | 0.3848777722 | $280,000 | $280,000 | $107.77 | | |
| CE | County Current Expense | 0.3674210519 | $280,000 | $280,000 | $102.88 | | |
| CR | County Roads | 0.4614296361 | $280,000 | $280,000 | $129.20 | | |
| ISLANDEMS | Hospital GEN (EMS) | 0.4952018576 | $280,000 | $280,000 | $138.66 | | |
| LIB | Library Sno-Isle GEN | 0.3039084203 | $280,000 | $280,000 | $85.09 | | |
| PORTWHID | Port of S Whidbey GEN | 0.1086004714 | $280,000 | $280,000 | $30.41 | | |
| SCH206BOND | School 206 BOND | 0.5960237832 | $280,000 | $280,000 | $166.89 | | |
| SCH206CAP | School 206 CP | 0.3066144020 | $280,000 | $280,000 | $85.85 | | |
| SCH206MO | School 206 Enrichment | 0.4808755445 | $280,000 | $280,000 | $134.65 | | |
| ST | State School | 1.4761226122 | $280,000 | $280,000 | $413.31 | | |
| ST2 | State School Part 2 | 0.7953803475 | $280,000 | $280,000 | $222.71 | | |
| SWHIDPRBD | P & R S Whidbey BOND | 0.0144185398 | $280,000 | $280,000 | $4.04 | | |
| SWHIDPRBD3 | P & R S Whidbey BOND3 | 0.1483535547 | $280,000 | $280,000 | $41.54 | | |
| SWHIDPRMT | P & R S Whidbey GEN | 0.4600000000 | $280,000 | $280,000 | $128.80 | | |
| | Total Tax Rate: | 6.6199682191 | | | | | |
| | | | | Taxes w/Current Exemptions: | $1,853.61 | | |
| | | | | Taxes w/o Exemptions: | $1,853.61 | | |
Improvement / Building
Sketch
| No sketches available for this property. |
Property Image
Land
| 1 | 32 | AC (03.01-09.99) | 5.0000 | 0.00 | 0.00 | 0.00 | 1.00 | $280,000 | $0 |
Roll Value History
| 2026 | N/A | N/A | N/A | N/A | N/A |
| 2025 | $0 | $280,000 | $0 | $280,000 | $280,000 |
| 2024 | $0 | $280,000 | $0 | $280,000 | $280,000 |
| 2023 | $0 | $240,000 | $0 | $240,000 | $240,000 |
| 2022 | $0 | $230,000 | $0 | $230,000 | $230,000 |
| 2021 | $0 | $170,000 | $0 | $170,000 | $170,000 |
| 2020 | $0 | $170,000 | $0 | $170,000 | $170,000 |
| 2019 | $0 | $135,000 | $0 | $135,000 | $135,000 |
| 2018 | $0 | $130,000 | $0 | $130,000 | $130,000 |
| 2017 | $0 | $140,000 | $0 | $140,000 | $140,000 |
| 2016 | $0 | $140,000 | $0 | $140,000 | $140,000 |
| 2015 | $0 | $125,000 | $0 | $125,000 | $125,000 |
| 2014 | $0 | $125,000 | $0 | $125,000 | $125,000 |
| 2013 | $0 | $125,000 | $0 | $125,000 | $125,000 |
| 2012 | $0 | $125,000 | $0 | $125,000 | $125,000 |
| 2011 | $0 | $125,000 | $0 | $125,000 | $125,000 |
| 2010 | $0 | $125,000 | $0 | $125,000 | $125,000 |
| 2009 | $0 | $155,000 | $0 | $155,000 | $155,000 |
| 2008 | $0 | $150,000 | $0 | $150,000 | $150,000 |
| 2007 | $0 | $162,500 | $0 | $162,500 | $162,500 |
Deed and Sales History
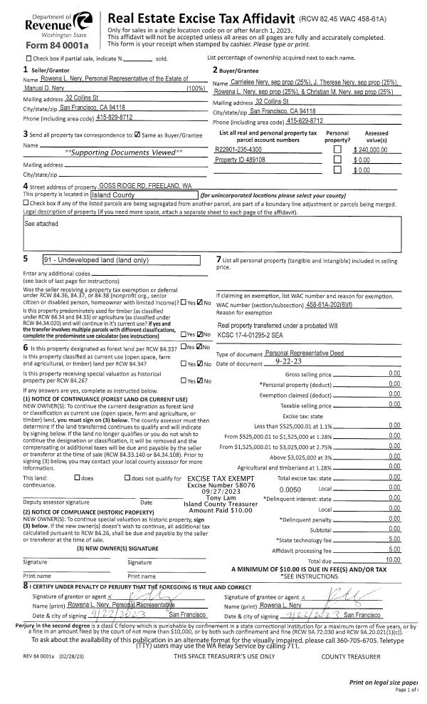
| 1 | 09/22/2023 | BARGSLD | Bargain And Sale Deed | NERY PR, ROWENA L | NERY ET AL, CARRIELEE | | | $0.00 | 58076 | 4565071 |
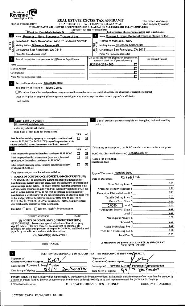
| 2 | 05/15/2017 | OTHER | Other - Misc. Documents | NERY TRUSTEE, MANUEL D | NERY PR, ROWENA L | | | $0.00 | 29459 | 4423213 |
| 3 | 07/09/2011 | QCD | Quit Claim Deed | NERY, JOSEFINA D | NERY TRUSTEE, MANUEL D | | | $0.00 | 4999 | 4298331 |
| 4 | 12/01/1979 | CD | DNU - Correction Deed | GUIDERO, ROBERT C | NERY, JOSEFINA D | | | $0.00 | 95788 | 362745 |
| 5 | 04/01/1979 | EXECUTORD | Executor Deed | NICHOLS, MATHEW J | GUIDERO, ROBERT C | | | $27,500.00 | 92747 | 353536 |
| 6 | 06/01/1978 | OTHER | Other - Misc. Documents | Unknown | NICHOLS, MATHEW J | | | $235,000.00 | 82554 | 333896 |
Payout Agreement
| No payout information available.. |