Property
Account |
| Property ID: | 489233 | Abbreviated Legal Description: | IN S/2 SEC 1: BG NWCR NE SW S605.51' S74*E301.93' N85*E 279.11' S89*E1747.78' S58*E 205.11' S25*E234.76' S35*E 132.34' N57*E104.97' N12*E 384.41' TPB N89*E418.52' S686.33' N89*W216.81' N16*W 713.19' TPB TGW EZ FR 202-4580 (TR I UNREC RIDGEVIEW ESTS) |
| Geographic ID: | R22901-170-4400 | Agent Code: | |
| Type: | Real | | |
| Tax Area: | 712 - APPRAISER-S Whid Schl Dist, outside Langley, improved, greater than 1 acre | Land Use Code | 11 |
| Open Space: | N | DFL | N |
| Historic Property: | N | Remodel Property: | N |
| Multi-Family Redevelopment: | N | | |
| Township: | 29 | Section: | 01 |
| Range: | R2 |
Location |
| Address: | 2336 GOSS RIDGE RD FREELAND, WA 98249 | Mapsco: | |
| Neighborhood: | Cycle 3 | Map ID: | 282 |
| Neighborhood CD: | 3 |
Owner |
| Name: | THOMAS, LISA S | Owner ID: | 308640 |
| Mailing Address: | MARK W THOMAS 2336 GOSS RIDGE RD FREELAND, WA 98249 | % Ownership: | 100.0000000000% |
| | | Exemptions: | |
Taxes and Assessment Details
Values
| (+) Improvement Homesite Value: | + | $0 | |
| (+) Improvement Non-Homesite Value: | + | $340,000 | |
| (+) Land Homesite Value: | + | $0 | |
| (+) Land Non-Homesite Value: | + | $370,000 | |
| (+) Curr Use (HS): | + | $0 | $0 |
| (+) Curr Use (NHS): | + | $0 | $0 |
| | | -------------------------- | |
| (=) Market Value: | = | $710,000 | |
| (–) Productivity Loss: | – | $0 | |
| | | -------------------------- | |
| (=) Subtotal: | = | $710,000 | |
| (+) Senior Appraised Value: | + | $0 | |
| (+) Non-Senior Appraised Value: | + | $710,000 | |
| | | -------------------------- | |
| (=) Total Appraised Value: | = | $710,000 | |
| (–) Senior Exemption Loss: | – | $0 | |
| (–) Exemption Loss: | – | $0 | |
| | | -------------------------- | |
| (=) Taxable Value: | = | $710,000 | |
Taxing Jurisdiction
| Owner: | THOMAS, LISA S | | |
| % Ownership: | 100.0000000000% | | |
| Total Value: | $710,000 | | |
| Tax Area: | 712 - APPRAISER-S Whid Schl Dist, outside Langley, improved, greater than 1 acre |
| CF | Conservation Futures | 0.0313996660 | $710,000 | $710,000 | $22.29 | | |
| FIRE3 | Fire & Rescue Dist #3 S Whidbey GEN | 1.2130821753 | $710,000 | $710,000 | $861.29 | | |
| HOBOND | Hospital BOND | 0.1893405597 | $710,000 | $710,000 | $134.43 | | |
| HOGEN | Hospital GEN | 0.3848777722 | $710,000 | $710,000 | $273.26 | | |
| CE | County Current Expense | 0.3674210519 | $710,000 | $710,000 | $260.87 | | |
| CR | County Roads | 0.4614296361 | $710,000 | $710,000 | $327.62 | | |
| ISLANDEMS | Hospital GEN (EMS) | 0.4952018576 | $710,000 | $710,000 | $351.59 | | |
| LIB | Library Sno-Isle GEN | 0.3039084203 | $710,000 | $710,000 | $215.77 | | |
| PORTWHID | Port of S Whidbey GEN | 0.1086004714 | $710,000 | $710,000 | $77.11 | | |
| SCH206BOND | School 206 BOND | 0.5960237832 | $710,000 | $710,000 | $423.18 | | |
| SCH206CAP | School 206 CP | 0.3066144020 | $710,000 | $710,000 | $217.70 | | |
| SCH206MO | School 206 Enrichment | 0.4808755445 | $710,000 | $710,000 | $341.42 | | |
| ST | State School | 1.4761226122 | $710,000 | $710,000 | $1,048.05 | | |
| ST2 | State School Part 2 | 0.7953803475 | $710,000 | $710,000 | $564.72 | | |
| SWHIDPRBD | P & R S Whidbey BOND | 0.0144185398 | $710,000 | $710,000 | $10.24 | | |
| SWHIDPRBD3 | P & R S Whidbey BOND3 | 0.1483535547 | $710,000 | $710,000 | $105.33 | | |
| SWHIDPRMT | P & R S Whidbey GEN | 0.4600000000 | $710,000 | $710,000 | $326.60 | | |
| | Total Tax Rate: | 7.8330503944 | | | | | |
| | | | | Taxes w/Current Exemptions: | $5,561.47 | | |
| | | | | Taxes w/o Exemptions: | $5,561.47 | | |
Improvement / Building
| Improvement #1: | RESIDENTIAL | State Code: | Y | 1604.8 sqft | Value: | $340,000 |
| Bathrooms: | 1.5 | Bedrooms: | 3 | | Ceiling: | DRYWALL PAINTED | Cooling: | HEAT PUMP/CONV/V | | Exterior Wall/Cover: | WOOD SIDING | Floor Covering: | HARDWOOD 100% | | Floor Structure: | WOOD W/SUBFLOOR | Foundation: | CONCRETE | | Interior Finish: | DRYWALL PAINT | Plumbing Fixture Cnt: | 8 | | Roof Slope: | 6" IN 12" | Roof Structure/Cover: | CJ ALUMINIUM HEAVY |
|
| | Type | Description | Class CD | Sub Class CD | Year Built | Area |
| | BAS | BASE/MAIN FLOOR | 3 | 0 | 1995 | 787.4 |
| | UPS | UPPER STORY | 3 | 0 | 1995 | 787.4 |
| | OWR | OPEN WOOD PORCH W/STEPS/ROOF | 3 | 0 | 1995 | 40.0 |
| | ENP | ENCLOSED PORCH | 3 | 0 | 1995 | 40.0 |
| | UPS | UPPER STORY | 3 | 0 | 1995 | 30.0 |
| | oGAR | GARAGE | 4 | 0 | 2024 | 832.0 |
| | oLOF | STORAGE LOFT | 3 | 0 | 2024 | 648.0 |
| | OP3 | OPEN PORCH W/ROOF | 3 | 0 | 1995 | 104.0 |
| | OWR | OPEN WOOD PORCH W/STEPS/ROOF | 3 | 0 | 1995 | 167.3 |
Sketch
| No sketches available for this property. |
Property Image
Land
| 1 | 32 | AC (03.01-09.99) | 5.0000 | 0.00 | 0.00 | 0.00 | 1.00 | $370,000 | $0 |
Roll Value History
| 2026 | N/A | N/A | N/A | N/A | N/A |
| 2025 | $340,000 | $370,000 | $0 | $710,000 | $710,000 |
| 2024 | $281,705 | $350,000 | $0 | $631,705 | $631,705 |
| 2023 | $252,841 | $330,000 | $0 | $582,841 | $582,841 |
| 2022 | $231,989 | $280,000 | $0 | $511,989 | $511,989 |
| 2021 | $204,383 | $230,000 | $0 | $434,383 | $434,383 |
| 2020 | $197,479 | $190,000 | $0 | $387,479 | $387,479 |
| 2019 | $145,761 | $230,000 | $0 | $375,761 | $375,761 |
| 2018 | $146,221 | $210,000 | $0 | $356,221 | $356,221 |
| 2017 | $147,142 | $180,000 | $0 | $327,142 | $327,142 |
| 2016 | $148,981 | $165,000 | $0 | $313,981 | $313,981 |
| 2015 | $150,822 | $135,000 | $0 | $285,822 | $285,822 |
| 2014 | $152,661 | $135,000 | $0 | $287,661 | $287,661 |
| 2013 | $153,698 | $135,000 | $0 | $288,698 | $288,698 |
| 2012 | $155,539 | $135,000 | $0 | $290,539 | $290,539 |
| 2011 | $157,378 | $135,000 | $0 | $292,378 | $292,378 |
| 2010 | $165,311 | $135,000 | $0 | $300,311 | $300,311 |
| 2009 | $172,621 | $195,000 | $0 | $367,621 | $367,621 |
| 2008 | $175,050 | $200,000 | $0 | $375,050 | $375,050 |
| 2007 | $165,933 | $244,200 | $0 | $410,133 | $410,133 |
Deed and Sales History
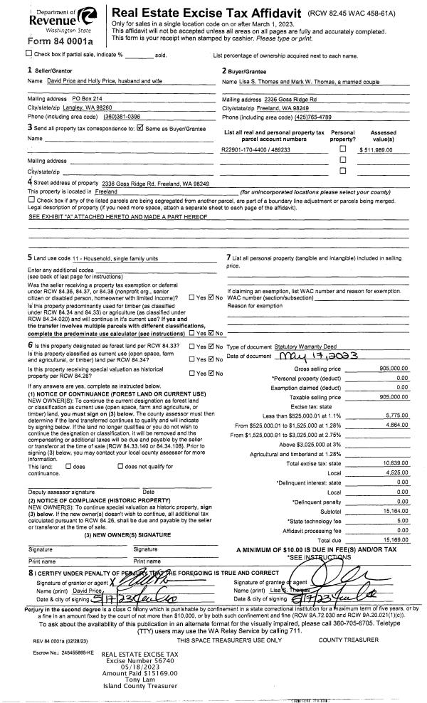
| 1 | 05/17/2023 | WD | Warranty Deed | PRICE, DAVID / HOLLY | THOMAS, LISA S | | | $905,000.00 | 56740 | 4560050 |
| 2 | 06/01/1994 | WD | Warranty Deed | HANDS, JEFFREY D | PRICE, DAVID/HOLLY | | | $41,500.00 | 42647 | 94014618 |
| 3 | 07/01/1990 | WD | Warranty Deed | NICHOLS, MATTHEW J | HANDS, JEFFREY D | | | $30,000.00 | 4116 | 90013500 |
| 4 | 07/01/1990 | WD | Warranty Deed | HANDS, JEFFREY D | HANDS, JEFFREY D | | | $0.00 | 4503 | 90014822 |
| 5 | 06/01/1990 | WD | Warranty Deed | HANDS, JEFFREY D | HANDS, JEFFREY D | | | $0.00 | 4816 | 90015959 |
| 6 | 12/01/1984 | QCD | Quit Claim Deed | MILBRADT, DICK | NICHOLS, MATTHEW J | | | $0.00 | 50099 | 85000484 |
| 7 | 05/01/1979 | EXECUTORD | Executor Deed | NICHOLS, MATTHEW & | MILBRADT, DICK | | | $27,000.00 | 1234 | 367589 |
| 8 | 06/01/1978 | OTHER | Other - Misc. Documents | Unknown | NICHOLS, MATTHEW & | | | $235,000.00 | 82554 | 333896 |
| 9 | 06/01/1978 | OTHER | Other - Misc. Documents | NICHOLS, MATTHEW & | NICHOLS, MATTHEW & | | | $235,000.00 | 82554 | 333896 |
Payout Agreement
| No payout information available.. |