Property
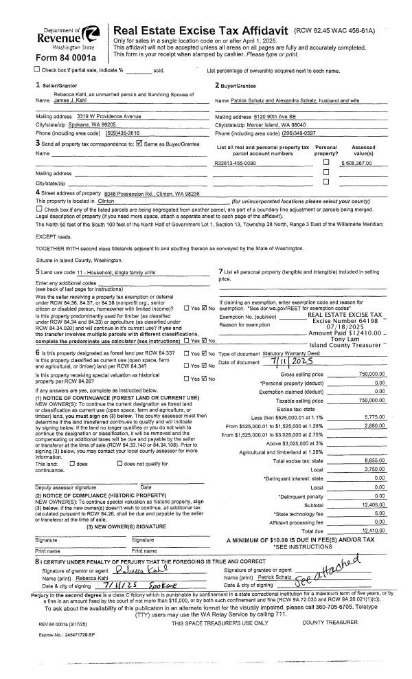
Account |
| Property ID: | 491391 | Abbreviated Legal Description: | REPLACES 1960090 36 - N50' OF S100'OF N/2 GL 1 TGW ADJ TIDES |
| Geographic ID: | R32813-455-0090 | Agent Code: | |
| Type: | Real | | |
| Tax Area: | 710 - APPRAISER-S Whid Schl Dist, outside Langley, improved & 1 acre or less | Land Use Code | 11 |
| Open Space: | N | DFL | N |
| Historic Property: | N | Remodel Property: | N |
| Multi-Family Redevelopment: | N | | |
| Township: | 28 | Section: | 13 |
| Range: | R3 |
Location |
| Address: | 8046 POSSESSION RD CLINTON, WA 98236 | Mapsco: | |
| Neighborhood: | Cycle 4 | Map ID: | 707 |
| Neighborhood CD: | 4 |
Owner |
| Name: | SCHATZ, PATRICK | Owner ID: | 317421 |
| Mailing Address: | ALEXANDRA SCHATZ 6120 90TH AVE SE MERCER ISLAND, WA 98040 | % Ownership: | 100.0000000000% |
| | | Exemptions: | |
Taxes and Assessment Details
Values
| (+) Improvement Homesite Value: | + | $0 | |
| (+) Improvement Non-Homesite Value: | + | $205,857 | |
| (+) Land Homesite Value: | + | $0 | |
| (+) Land Non-Homesite Value: | + | $400,510 | |
| (+) Curr Use (HS): | + | $0 | $0 |
| (+) Curr Use (NHS): | + | $0 | $0 |
| | | -------------------------- | |
| (=) Market Value: | = | $606,367 | |
| (–) Productivity Loss: | – | $0 | |
| | | -------------------------- | |
| (=) Subtotal: | = | $606,367 | |
| (+) Senior Appraised Value: | + | $0 | |
| (+) Non-Senior Appraised Value: | + | $606,367 | |
| | | -------------------------- | |
| (=) Total Appraised Value: | = | $606,367 | |
| (–) Senior Exemption Loss: | – | $0 | |
| (–) Exemption Loss: | – | $0 | |
| | | -------------------------- | |
| (=) Taxable Value: | = | $606,367 | |
Taxing Jurisdiction
| Owner: | SCHATZ, PATRICK | | |
| % Ownership: | 100.0000000000% | | |
| Total Value: | $606,367 | | |
| Tax Area: | 710 - APPRAISER-S Whid Schl Dist, outside Langley, improved & 1 acre or less |
| CF | Conservation Futures | 0.0313996660 | $606,367 | $606,367 | $19.04 | | |
| FIRE3 | Fire & Rescue Dist #3 S Whidbey GEN | 1.2130821753 | $606,367 | $606,367 | $735.57 | | |
| HOBOND | Hospital BOND | 0.1893405597 | $606,367 | $606,367 | $114.81 | | |
| HOGEN | Hospital GEN | 0.3848777722 | $606,367 | $606,367 | $233.38 | | |
| CE | County Current Expense | 0.3674210519 | $606,367 | $606,367 | $222.79 | | |
| CR | County Roads | 0.4614296361 | $606,367 | $606,367 | $279.80 | | |
| ISLANDEMS | Hospital GEN (EMS) | 0.4952018576 | $606,367 | $606,367 | $300.27 | | |
| LIB | Library Sno-Isle GEN | 0.3039084203 | $606,367 | $606,367 | $184.28 | | |
| PORTWHID | Port of S Whidbey GEN | 0.1086004714 | $606,367 | $606,367 | $65.85 | | |
| SCH206BOND | School 206 BOND | 0.5960237832 | $606,367 | $606,367 | $361.41 | | |
| SCH206CAP | School 206 CP | 0.3066144020 | $606,367 | $606,367 | $185.92 | | |
| SCH206MO | School 206 Enrichment | 0.4808755445 | $606,367 | $606,367 | $291.59 | | |
| ST | State School | 1.4761226122 | $606,367 | $606,367 | $895.07 | | |
| ST2 | State School Part 2 | 0.7953803475 | $606,367 | $606,367 | $482.29 | | |
| SWHIDPRBD | P & R S Whidbey BOND | 0.0144185398 | $606,367 | $606,367 | $8.74 | | |
| SWHIDPRBD3 | P & R S Whidbey BOND3 | 0.1483535547 | $606,367 | $606,367 | $89.96 | | |
| SWHIDPRMT | P & R S Whidbey GEN | 0.4600000000 | $606,367 | $606,367 | $278.93 | | |
| | Total Tax Rate: | 7.8330503944 | | | | | |
| | | | | Taxes w/Current Exemptions: | $4,749.70 | | |
| | | | | Taxes w/o Exemptions: | $4,749.70 | | |
Improvement / Building
| Improvement #1: | RESIDENTIAL | State Code: | Y | 1161.4 sqft | Value: | $205,857 |
| Bathrooms: | 2 | Bedrooms: | 2 | | Ceiling: | DRYWALL PAINTED | Exterior Wall/Cover: | WOOD SIDING | | Floor Covering: | HARDWOOD/CARP 20-80 | Floor Structure: | WOOD W/SUBFLOOR | | Foundation: | CONCRETE | Heating: | FHA OIL | | Interior Finish: | DRYWALL PAINT | Plumbing Fixture Cnt: | 8 | | Roof Slope: | 6" IN 12" | Roof Structure/Cover: | CJ ASPHALT |
|
| | Type | Description | Class CD | Sub Class CD | Year Built | Area |
| | BAS | BASE/MAIN FLOOR | 3 | 0 | 1935 | 970.0 |
| | UB6 | BASEMENT UNFINISHED 6" | 3 | 0 | 1935 | 550.0 |
| | DWN | DOWNSTAIRS LIVING AREA | 3 | 0 | 1935 | 191.4 |
| | OWP | OPEN WOOD PORCH W/STEPS | 3 | 0 | 1935 | 280.0 |
| | BIG | BUILT IN GARAGE | 3 | 0 | 1935 | 200.0 |
Sketch
Property Image
Land
| 1 | LB | LOW BANK | 0.2500 | 10890.00 | 50.00 | 0.00 | 1.00 | $400,000 | $0 |
| 2 | 55 | TIDES | 0.0000 | 0.00 | 51.00 | 0.00 | 1.00 | $510 | $0 |
Roll Value History
| 2026 | N/A | N/A | N/A | N/A | N/A |
| 2025 | $205,857 | $400,510 | $0 | $606,367 | $606,367 |
| 2024 | $212,734 | $350,510 | $0 | $563,244 | $563,244 |
| 2023 | $215,679 | $300,510 | $0 | $516,189 | $516,189 |
| 2022 | $197,966 | $300,510 | $0 | $498,476 | $498,476 |
| 2021 | $176,139 | $275,510 | $0 | $451,649 | $451,649 |
| 2020 | $150,557 | $275,510 | $0 | $426,067 | $426,067 |
| 2019 | $105,564 | $300,510 | $0 | $406,074 | $406,074 |
| 2018 | $105,909 | $250,510 | $0 | $356,419 | $356,419 |
| 2017 | $106,601 | $230,510 | $0 | $337,111 | $337,111 |
| 2016 | $107,986 | $230,510 | $0 | $338,496 | $338,496 |
| 2015 | $109,370 | $230,510 | $0 | $339,880 | $339,880 |
| 2014 | $103,904 | $230,510 | $0 | $334,414 | $334,414 |
| 2013 | $105,242 | $215,342 | $0 | $320,584 | $320,584 |
| 2012 | $106,582 | $215,342 | $0 | $321,924 | $321,924 |
| 2011 | $107,922 | $215,342 | $0 | $323,264 | $323,264 |
| 2010 | $114,640 | $215,342 | $0 | $329,982 | $329,982 |
| 2009 | $119,498 | $215,342 | $0 | $334,840 | $334,840 |
| 2008 | $121,039 | $215,342 | $0 | $336,381 | $336,381 |
| 2007 | $51,201 | $214,997 | $0 | $266,198 | $266,198 |
Deed and Sales History
| 1 | 07/11/2025 | WD | Warranty Deed | KAHL, REBECCA | SCHATZ, PATRICK | | | $750,000.00 | 64198 | 4588483 |
| 2 | 07/11/2025 | LACPROBATE | Lack of Probate | KAHL, JAMES J | KAHL, REBECCA | | | $0.00 | 64197 | 4588482 |
| 3 | 11/18/2014 | CPADC | Comm Prop Agmnt & Death Cert | KAHL, JAMES J | KAHL, REBECCA | | | | 85037 | |
| 4 | 01/01/1900 | OTHER | Other - Misc. Documents | Unknown | KAHL, JAMES J | | | $0.00 | 0 | 0 |
Payout Agreement
| No payout information available.. |