Property
Account |
| Property ID: | 491499 | Abbreviated Legal Description: | 0.4300 Acres ins Section 06s Township 31s Range R2s LOT A LOT COMB AF#4475616;s |
| Geographic ID: | R23106-538-1470 | Agent Code: | |
| Type: | Real | | |
| Tax Area: | 310 - APPRAISER-Cpvl Schl Dist, outside Cpvl, improved & 1 acre or less | Land Use Code | 11 |
| Open Space: | N | DFL | N |
| Historic Property: | N | Remodel Property: | N |
| Multi-Family Redevelopment: | N | | |
| Township: | 31 | Section: | 06 |
| Range: | R2 |
Location |
| Address: | 15 SHOREBIRD LN COUPEVILLE, WA 98239 | Mapsco: | |
| Neighborhood: | Area 2 Waterfront Eastside Res | Map ID: | 461 |
| Neighborhood CD: | 2WFTE01R |
Owner |
| Name: | MAYS TTEE, ROY A | Owner ID: | 293660 |
| Mailing Address: | MARJORIE M MAYS, TTEE 62 CASCADE KEY BELLEVUE, WA 98006 | % Ownership: | 100.0000000000% |
| | | Exemptions: | |
Taxes and Assessment Details
Values
| (+) Improvement Homesite Value: | + | $0 | |
| (+) Improvement Non-Homesite Value: | + | $252,896 | |
| (+) Land Homesite Value: | + | $0 | |
| (+) Land Non-Homesite Value: | + | $575,670 | |
| (+) Curr Use (HS): | + | $0 | $0 |
| (+) Curr Use (NHS): | + | $0 | $0 |
| | | -------------------------- | |
| (=) Market Value: | = | $828,566 | |
| (–) Productivity Loss: | – | $0 | |
| | | -------------------------- | |
| (=) Subtotal: | = | $828,566 | |
| (+) Senior Appraised Value: | + | $0 | |
| (+) Non-Senior Appraised Value: | + | $828,566 | |
| | | -------------------------- | |
| (=) Total Appraised Value: | = | $828,566 | |
| (–) Senior Exemption Loss: | – | $0 | |
| (–) Exemption Loss: | – | $0 | |
| | | -------------------------- | |
| (=) Taxable Value: | = | $828,566 | |
Taxing Jurisdiction
| Owner: | MAYS TTEE, ROY A | | |
| % Ownership: | 100.0000000000% | | |
| Total Value: | $828,566 | | |
| Tax Area: | 310 - APPRAISER-Cpvl Schl Dist, outside Cpvl, improved & 1 acre or less |
| CF | Conservation Futures | 0.0313996660 | $828,566 | $828,566 | $26.02 | | |
| CEM2 | Cemetery #2 | 0.0092609791 | $828,566 | $828,566 | $7.67 | | |
| FIRE5 | Fire & Rescue Dist #5 C Whidbey GEN | 1.1892169230 | $828,566 | $828,566 | $985.34 | | |
| FIRE5BOND | Fire & Rescue Dist #5 C Whidbey BOND | 0.1394359503 | $828,566 | $828,566 | $115.53 | | |
| HOBOND | Hospital BOND | 0.1893405597 | $828,566 | $828,566 | $156.88 | | |
| HOGEN | Hospital GEN | 0.3848777722 | $828,566 | $828,566 | $318.90 | | |
| CE | County Current Expense | 0.3674210519 | $828,566 | $828,566 | $304.43 | | |
| CR | County Roads | 0.4614296361 | $828,566 | $828,566 | $382.32 | | |
| ISLANDEMS | Hospital GEN (EMS) | 0.4952018576 | $828,566 | $828,566 | $410.31 | | |
| LIB | Library Sno-Isle GEN | 0.3039084203 | $828,566 | $828,566 | $251.81 | | |
| LIBCAP | Library Sno-Isle BOND (Cap Fac Imp Area) | 0.0528562629 | $828,566 | $828,566 | $43.79 | | |
| POCOUP | Port of Coupeville GEN | 0.1065226063 | $828,566 | $828,566 | $88.26 | | |
| POCOUPIDD | Port of Coupeville IDD | 0.3353038577 | $828,566 | $828,566 | $277.82 | | |
| COUPSDTECH | School 204 CP (TECH) | 0.1215123397 | $828,566 | $828,566 | $100.68 | | |
| SCH204MO | School 204 Enrichment | 0.6416662518 | $828,566 | $828,566 | $531.66 | | |
| ST | State School | 1.4761226122 | $828,566 | $828,566 | $1,223.07 | | |
| ST2 | State School Part 2 | 0.7953803475 | $828,566 | $828,566 | $659.03 | | |
| | Total Tax Rate: | 7.1008570943 | | | | | |
| | | | | Taxes w/Current Exemptions: | $5,883.52 | | |
| | | | | Taxes w/o Exemptions: | $5,883.52 | | |
Improvement / Building
| Improvement #1: | RESIDENTIAL | State Code: | Y | 1434.0 sqft | Value: | $252,896 |
| Bathrooms: | 2 | Bedrooms: | 2 | | Ceiling: | BEAM PAINTED | Exterior Wall/Cover: | WOOD SIDING | | Floor Covering: | CERAMIC TILE/CPT 40-60 | Floor Structure: | WOOD W/SUBFLOOR | | Foundation: | CONCRETE | Heating: | BASEBOARD ELECTRIC | | Interior Finish: | DRYWALL PAINT | Plumbing Fixture Cnt: | 9 | | Roof Slope: | 3" IN 12" | Roof Structure/Cover: | BEAM BUILT-UP ROCK |
|
| | Type | Description | Class CD | Sub Class CD | Year Built | Area |
| | BAS | BASE/MAIN FLOOR | 3 | 0 | 1966 | 1434.0 |
| | AGR | ATTACHED GARAGE | 3 | 0 | 1966 | 720.0 |
| | OWP | OPEN WOOD PORCH W/STEPS | 3 | 0 | 1966 | 352.0 |
| | OWC | OPEN WOOD PORCH W/STEPS/ROOF/C | 3 | 0 | 1966 | 30.0 |
Sketch
| No sketches available for this property. |
Property Image
Land
| 1 | LB | LOW BANK | 0.4300 | 18730.80 | 67.00 | 0.00 | 1.00 | $575,000 | $0 |
| 2 | 55 | TIDES | 0.0000 | 0.00 | 67.00 | 0.00 | 1.00 | $670 | $0 |
Roll Value History
| 2026 | N/A | N/A | N/A | N/A | N/A |
| 2025 | $252,896 | $575,670 | $0 | $828,566 | $828,566 |
| 2024 | $242,436 | $550,670 | $0 | $793,106 | $793,106 |
| 2023 | $245,988 | $525,670 | $0 | $771,658 | $771,658 |
| 2022 | $225,963 | $500,670 | $0 | $726,633 | $726,633 |
| 2021 | $199,283 | $450,670 | $0 | $649,953 | $649,953 |
| 2020 | $194,562 | $300,670 | $0 | $495,232 | $495,232 |
| 2019 | $141,431 | $351,120 | $0 | $492,551 | $492,551 |
| 2018 | $129,759 | $350,000 | $0 | $479,759 | $479,759 |
| 2017 | $130,692 | $300,670 | $0 | $431,362 | $431,362 |
| 2016 | $132,560 | $300,670 | $0 | $433,230 | $433,230 |
| 2015 | $134,427 | $300,670 | $0 | $435,097 | $435,097 |
| 2014 | $136,295 | $300,670 | $0 | $436,965 | $436,965 |
| 2013 | $138,160 | $328,606 | $0 | $466,766 | $466,766 |
| 2012 | $138,451 | $328,606 | $0 | $467,057 | $467,057 |
| 2011 | $140,373 | $328,606 | $0 | $468,979 | $468,979 |
| 2010 | $151,666 | $328,606 | $0 | $480,272 | $480,272 |
| 2009 | $156,248 | $464,904 | $0 | $621,152 | $621,152 |
| 2008 | $158,210 | $464,904 | $0 | $623,114 | $623,114 |
| 2007 | $160,173 | $464,435 | $0 | $624,608 | $624,608 |
Deed and Sales History
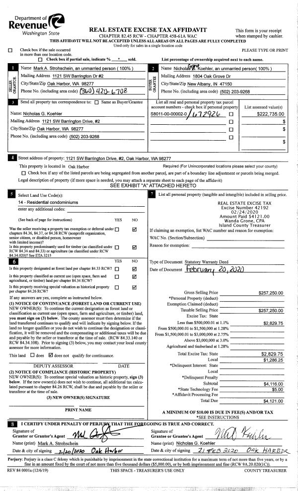
| 1 | 01/28/2020 | QCD | Quit Claim Deed | MAYS, ROY A | MAYS TTEE, ROY A | | | $0.00 | 42291 | 4482416 |
| 2 | 08/01/1986 | QCD | Quit Claim Deed | MAYS, ROY A | MAYS, ROY A | | | $10,000.00 | 62025 | 86009490 |
| 3 | 01/01/1900 | OTHER | Other - Misc. Documents | Unknown | MAYS, ROY A | | | $0.00 | 0 | 0 |
Payout Agreement
| No payout information available.. |