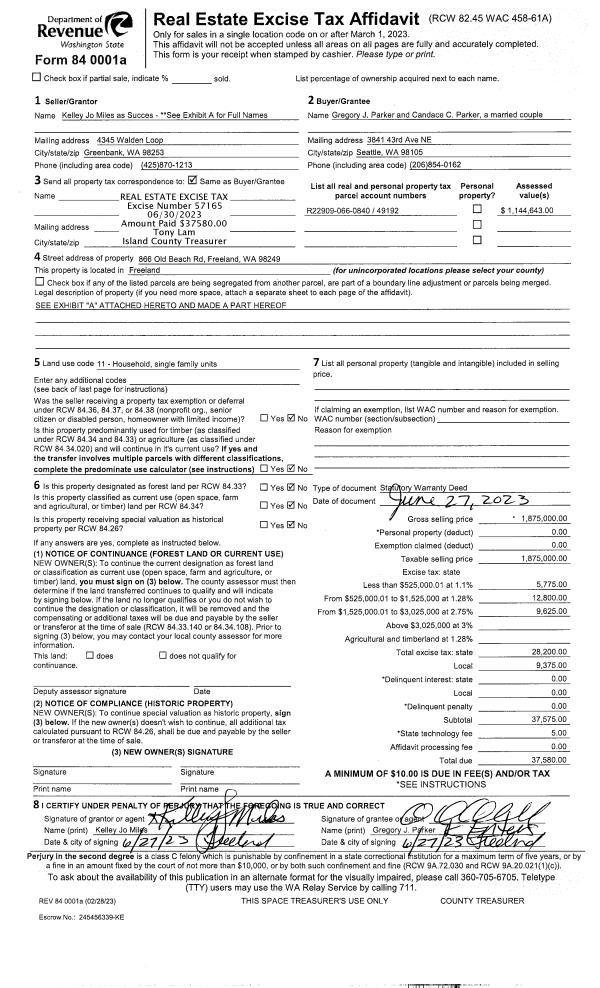
Property
Account |
| Property ID: | 49192 | Abbreviated Legal Description: | 59 - IN GL 1 INCL ADJ TIDES BG NW CR GL1 S500' E830' TPB E60' S TO ML WLY ALG ML TP S OF TPB N TO TPB TGW EAS |
| Geographic ID: | R22909-066-0840 | Agent Code: | |
| Type: | Real | | |
| Tax Area: | 710 - APPRAISER-S Whid Schl Dist, outside Langley, improved & 1 acre or less | Land Use Code | 11 |
| Open Space: | N | DFL | N |
| Historic Property: | N | Remodel Property: | N |
| Multi-Family Redevelopment: | N | | |
| Township: | 29 | Section: | 09 |
| Range: | R2 |
Location |
| Address: | 866 OLD BEACH RD FREELAND, WA 98249 | Mapsco: | |
| Neighborhood: | Cycle 3 | Map ID: | 305 |
| Neighborhood CD: | 3 |
Owner |
| Name: | PARKER, GREGORY J | Owner ID: | 309141 |
| Mailing Address: | CANDACE C PARKER 3841 43RD AVE NE SEATTLE, WA 98105 | % Ownership: | 100.0000000000% |
| | | Exemptions: | |
Taxes and Assessment Details
Values
| (+) Improvement Homesite Value: | + | $0 | |
| (+) Improvement Non-Homesite Value: | + | $134,907 | |
| (+) Land Homesite Value: | + | $0 | |
| (+) Land Non-Homesite Value: | + | $1,005,600 | |
| (+) Curr Use (HS): | + | $0 | $0 |
| (+) Curr Use (NHS): | + | $0 | $0 |
| | | -------------------------- | |
| (=) Market Value: | = | $1,140,507 | |
| (–) Productivity Loss: | – | $0 | |
| | | -------------------------- | |
| (=) Subtotal: | = | $1,140,507 | |
| (+) Senior Appraised Value: | + | $0 | |
| (+) Non-Senior Appraised Value: | + | $1,140,507 | |
| | | -------------------------- | |
| (=) Total Appraised Value: | = | $1,140,507 | |
| (–) Senior Exemption Loss: | – | $0 | |
| (–) Exemption Loss: | – | $0 | |
| | | -------------------------- | |
| (=) Taxable Value: | = | $1,140,507 | |
Taxing Jurisdiction
| Owner: | PARKER, GREGORY J | | |
| % Ownership: | 100.0000000000% | | |
| Total Value: | $1,140,507 | | |
| Tax Area: | 710 - APPRAISER-S Whid Schl Dist, outside Langley, improved & 1 acre or less |
| CF | Conservation Futures | 0.0313996660 | $1,140,507 | $1,140,507 | $35.81 | | |
| FIRE3 | Fire & Rescue Dist #3 S Whidbey GEN | 1.2130821753 | $1,140,507 | $1,140,507 | $1,383.53 | | |
| HOBOND | Hospital BOND | 0.1893405597 | $1,140,507 | $1,140,507 | $215.94 | | |
| HOGEN | Hospital GEN | 0.3848777722 | $1,140,507 | $1,140,507 | $438.96 | | |
| CE | County Current Expense | 0.3674210519 | $1,140,507 | $1,140,507 | $419.05 | | |
| CR | County Roads | 0.4614296361 | $1,140,507 | $1,140,507 | $526.26 | | |
| ISLANDEMS | Hospital GEN (EMS) | 0.4952018576 | $1,140,507 | $1,140,507 | $564.78 | | |
| LIB | Library Sno-Isle GEN | 0.3039084203 | $1,140,507 | $1,140,507 | $346.61 | | |
| PORTWHID | Port of S Whidbey GEN | 0.1086004714 | $1,140,507 | $1,140,507 | $123.86 | | |
| SCH206BOND | School 206 BOND | 0.5960237832 | $1,140,507 | $1,140,507 | $679.77 | | |
| SCH206CAP | School 206 CP | 0.3066144020 | $1,140,507 | $1,140,507 | $349.70 | | |
| SCH206MO | School 206 Enrichment | 0.4808755445 | $1,140,507 | $1,140,507 | $548.44 | | |
| ST | State School | 1.4761226122 | $1,140,507 | $1,140,507 | $1,683.53 | | |
| ST2 | State School Part 2 | 0.7953803475 | $1,140,507 | $1,140,507 | $907.14 | | |
| SWHIDPRBD | P & R S Whidbey BOND | 0.0144185398 | $1,140,507 | $1,140,507 | $16.44 | | |
| SWHIDPRBD3 | P & R S Whidbey BOND3 | 0.1483535547 | $1,140,507 | $1,140,507 | $169.20 | | |
| SWHIDPRMT | P & R S Whidbey GEN | 0.4600000000 | $1,140,507 | $1,140,507 | $524.63 | | |
| | Total Tax Rate: | 7.8330503944 | | | | | |
| | | | | Taxes w/Current Exemptions: | $8,933.65 | | |
| | | | | Taxes w/o Exemptions: | $8,933.65 | | |
Improvement / Building
| Improvement #1: | RESIDENTIAL | State Code: | Y | 789.0 sqft | Value: | $134,907 |
| Bathrooms: | 0.75 | Bedrooms: | 1 | | Ceiling: | TONGUE & GROOVE | Exterior Wall/Cover: | SHINGLE | | Floor Covering: | CARPET/VINYL 20-80 | Floor Structure: | WOOD W/SUBFLOOR | | Foundation: | PEIRS | Heating: | WALL HEAT ELECTRIC | | Interior Finish: | PLASTER | Plumbing Fixture Cnt: | 6 | | Roof Slope: | 5" IN 12" | Roof Structure/Cover: | CJ ALUMINIUM HEAVY |
|
| | Type | Description | Class CD | Sub Class CD | Year Built | Area |
| | BAS | BASE/MAIN FLOOR | 3 | 0 | 1950 | 789.0 |
| | UTY | STORAGE/UTILITY | 3 | 0 | 1950 | 160.0 |
| | OWP | OPEN WOOD PORCH W/STEPS | 3 | 0 | 1950 | 195.8 |
| | OWC | OPEN WOOD PORCH W/STEPS/ROOF/C | 3 | 0 | 1950 | 80.0 |
| | OWP | OPEN WOOD PORCH W/STEPS | 3 | 0 | 1950 | 375.2 |
Sketch
Property Image
Land
| 1 | LB | LOW BANK | 0.0000 | 0.00 | 55.00 | 0.00 | 1.00 | $1,005,000 | $0 |
| 2 | 55 | TIDES | 0.0000 | 0.00 | 60.00 | 0.00 | 1.00 | $600 | $0 |
Roll Value History
| 2026 | N/A | N/A | N/A | N/A | N/A |
| 2025 | $134,907 | $1,005,600 | $0 | $1,140,507 | $1,140,507 |
| 2024 | $136,975 | $1,005,600 | $0 | $1,142,575 | $1,142,575 |
| 2023 | $139,043 | $1,005,600 | $0 | $1,144,643 | $1,144,643 |
| 2022 | $127,779 | $960,600 | $0 | $1,088,379 | $204,071 |
| 2021 | $112,738 | $800,600 | $0 | $913,338 | $204,071 |
| 2020 | $109,905 | $800,600 | $0 | $910,505 | $204,071 |
| 2019 | $67,111 | $800,600 | $0 | $867,711 | $510,178 |
| 2018 | $67,365 | $725,600 | $0 | $792,965 | $510,178 |
| 2017 | $67,872 | $600,600 | $0 | $668,472 | $510,178 |
| 2016 | $68,885 | $600,600 | $0 | $669,485 | $510,178 |
| 2015 | $69,899 | $600,600 | $0 | $670,499 | $510,178 |
| 2014 | $70,914 | $550,600 | $0 | $621,514 | $621,514 |
| 2013 | $67,597 | $441,612 | $0 | $509,209 | $203,684 |
| 2012 | $68,566 | $441,612 | $0 | $510,178 | $204,071 |
| 2011 | $69,534 | $441,612 | $0 | $511,146 | $511,146 |
| 2010 | $74,424 | $441,612 | $0 | $516,036 | $516,036 |
| 2009 | $77,784 | $525,614 | $0 | $603,398 | $603,398 |
| 2008 | $79,125 | $525,614 | $0 | $604,739 | $604,739 |
| 2007 | $68,802 | $570,915 | $0 | $639,717 | $639,717 |
Deed and Sales History
| 1 | 06/27/2023 | WD | Warranty Deed | SNYDER TTEE, JERRY E | PARKER, GREGORY J | | | $1,875,000.00 | 57165 | 4561735 |
| 2 | 07/27/2007 | QCD | Quit Claim Deed | SNYDER, JERRY E | SNYDER TTEE, JERRY E | | | $0.00 | 72559 | 4208280 |
| 3 | 08/01/1984 | WD | Warranty Deed | SEMELL, S A | SNYDER, JERRY E | | | $125,000.00 | 42458 | 84002218 |
| 4 | 01/01/1900 | OTHER | Other - Misc. Documents | Unknown | SEMELL, S A | | | $0.00 | 0 | 0 |
Payout Agreement
| No payout information available.. |