Property
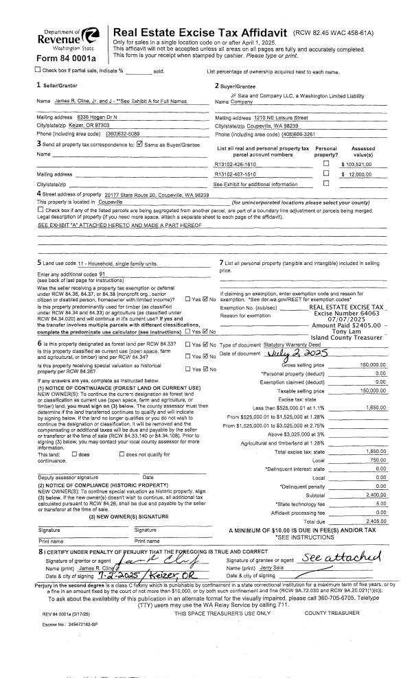
Account |
| Property ID: | 492014 | Abbreviated Legal Description: | REPLACES 426-1160 44 - E100' OF W339.24' OF NE NW LY S OF ST HWY EX S200' TGW EZ LOT C SP 70-016 (E100' OF W239.24' OF TR A UNREC RHODODENDRON PARK HOMESITES AF#159208) |
| Geographic ID: | R13102-426-1610 | Agent Code: | |
| Type: | Real | | |
| Tax Area: | 312 - APPRAISER-Cpvl Schl Dist, outside Cpvl, improved, greater than 1 acre | Land Use Code | 11 |
| Open Space: | N | DFL | N |
| Historic Property: | N | Remodel Property: | N |
| Multi-Family Redevelopment: | N | | |
| Township: | 31 | Section: | 02 |
| Range: | R1 |
Location |
| Address: | 20177 SR20 COUPEVILLE, WA 98239 | Mapsco: | |
| Neighborhood: | Cycle 2 | Map ID: | 23 |
| Neighborhood CD: | 2 |
Owner |
| Name: | JF SAIA AND COMPANY LLC | Owner ID: | 317289 |
| Mailing Address: | 1210 NE LEISURE ST COUPEVILLE, WA 98239 | % Ownership: | 100.0000000000% |
| | | Exemptions: | |
Taxes and Assessment Details
Values
| (+) Improvement Homesite Value: | + | N/A | |
| (+) Improvement Non-Homesite Value: | + | N/A | |
| (+) Land Homesite Value: | + | N/A | |
| (+) Land Non-Homesite Value: | + | N/A | Ag / Timber Use Value |
| (+) Curr Use (HS): | + | N/A | N/A |
| (+) Curr Use (NHS): | + | N/A | N/A |
| | | -------------------------- | |
| (=) Market Value: | = | N/A | |
| (–) Productivity Loss: | – | N/A | |
| | | -------------------------- | |
| (=) Subtotal: | = | N/A | |
| (+) Senior Appraised Value: | + | N/A | |
| (+) Non-Senior Appraised Value: | + | N/A | |
| | | -------------------------- | |
| (=) Total Appraised Value: | = | N/A | |
| (–) Senior Exemption Loss: | – | N/A | |
| (–) Exemption Loss: | – | N/A | |
| | | -------------------------- | |
| (=) Taxable Value: | = | N/A | |
Taxing Jurisdiction
| Owner: | JF SAIA AND COMPANY LLC | | |
| % Ownership: | 100.0000000000% | | |
| Total Value: | N/A | | |
| Tax Area: | 312 - APPRAISER-Cpvl Schl Dist, outside Cpvl, improved, greater than 1 acre |
| CF | Conservation Futures | N/A | N/A | N/A | N/A | | |
| WCD | Whidbey Conservation District | N/A | N/A | N/A | N/A | | |
| CEM2 | Cemetery #2 | N/A | N/A | N/A | N/A | | |
| FIRE5 | Fire & Rescue Dist #5 C Whidbey GEN | N/A | N/A | N/A | N/A | | |
| FIRE5BOND | Fire & Rescue Dist #5 C Whidbey BOND | N/A | N/A | N/A | N/A | | |
| HOBOND | Hospital BOND | N/A | N/A | N/A | N/A | | |
| HOGEN | Hospital GEN | N/A | N/A | N/A | N/A | | |
| CE | County Current Expense | N/A | N/A | N/A | N/A | | |
| CR | County Roads | N/A | N/A | N/A | N/A | | |
| ISLANDEMS | Hospital GEN (EMS) | N/A | N/A | N/A | N/A | | |
| LIB | Library Sno-Isle GEN | N/A | N/A | N/A | N/A | | |
| LIBCAP | Library Sno-Isle BOND (Cap Fac Imp Area) | N/A | N/A | N/A | N/A | | |
| POCOUP | Port of Coupeville GEN | N/A | N/A | N/A | N/A | | |
| COUPSDTECH | School 204 CP (TECH) | N/A | N/A | N/A | N/A | | |
| SCH204MO | School 204 Enrichment | N/A | N/A | N/A | N/A | | |
| ST | State School | N/A | N/A | N/A | N/A | | |
| ST2 | State School Part 2 | N/A | N/A | N/A | N/A | | |
| | Total Tax Rate: | N/A | | | | | |
| | | | | Taxes w/Current Exemptions: | N/A | | |
| | | | | Taxes w/o Exemptions: | N/A | | |
Improvement / Building
| Improvement #1: | MISC | State Code: | Y | 0.0 sqft | Value: | N/A |
Sketch
Property Image
Land
| 1 | 91 | UNDEVELOPED LAND-METES AND BOUNDS | 0.5500 | 23958.00 | 0.00 | 0.00 | 1.00 | N/A | N/A |
Roll Value History
| 2026 | N/A | N/A | N/A | N/A | N/A |
| 2025 | $91,521 | $12,000 | $0 | $103,521 | $103,521 |
| 2024 | $52,200 | $12,000 | $0 | $64,200 | $64,200 |
| 2023 | $52,200 | $9,000 | $0 | $61,200 | $61,200 |
| 2022 | $52,200 | $9,000 | $0 | $61,200 | $61,200 |
| 2021 | $52,200 | $7,000 | $0 | $59,200 | $59,200 |
| 2020 | $52,200 | $5,000 | $0 | $57,200 | $57,200 |
| 2019 | $52,200 | $5,000 | $0 | $57,200 | $57,200 |
| 2018 | $48,450 | $5,000 | $0 | $53,450 | $53,450 |
| 2017 | $48,450 | $5,000 | $0 | $53,450 | $53,450 |
| 2016 | $48,450 | $5,000 | $0 | $53,450 | $53,450 |
| 2015 | $48,450 | $9,945 | $0 | $58,395 | $58,395 |
| 2014 | $48,450 | $9,945 | $0 | $58,395 | $58,395 |
| 2013 | $48,450 | $9,945 | $0 | $58,395 | $58,395 |
| 2012 | $48,450 | $9,945 | $0 | $58,395 | $58,395 |
| 2011 | $48,450 | $11,700 | $0 | $60,150 | $60,150 |
| 2010 | $48,450 | $4,500 | $0 | $52,950 | $52,950 |
| 2009 | $0 | $6,250 | $0 | $6,250 | $6,250 |
Deed and Sales History
| 1 | 07/02/2025 | WD | Warranty Deed | CLINE JR TRUSTEE, JAMES R | JF SAIA AND COMPANY LLC | | | $150,000.00 | 64063 | 4587841 |
|   | |
| 2 | 06/17/2015 | TRUSTEED | Trustee's Deed | CLINE, JAMES R | CLINE JR TRUSTEE, JAMES R | | | $0.00 | 20110 | 4380575 |
| 3 | 08/07/2009 | WD | Warranty Deed | WOODS TTEE, SYLVIA M | CLINE, JAMES R | | | $5,000.00 | 91961 | 4258884 |
| 4 | 11/19/2008 | OTHER | Other - Misc. Documents | WOODS, FRED W | WOODS TTEE, SYLVIA M | | | $0.00 | 81034 | 0 |
| 5 | 02/01/1995 | QCD | Quit Claim Deed | WOODS, FREDERICK W | WOODS, FRED W | | | $0.00 | 50797 | 95003910 |
| 6 | 08/01/1985 | QCD | Quit Claim Deed | WOODS, MARGARET S | WOODS, FREDERICK W | | | $0.00 | 52294 | 85008992 |
| 7 | 01/01/1900 | OTHER | Other - Misc. Documents | Unknown | WOODS, MARGARET S | | | $0.00 | 0 | 0 |
Payout Agreement
| No payout information available.. |