Property
Account |
| Property ID: | 492185 | Abbreviated Legal Description: | REPLACES 360-0490 122 - IN GL4: BG SWCR GL4 N6*W895.20' S86*E330' S6*E 80' TPB S6*E80' S86*E148.20 N6*W80' N86*W148.20' TPB |
| Geographic ID: | R32902-360-0610 | Agent Code: | |
| Type: | Real | | |
| Tax Area: | 700 - APPRAISER-S Whid Schl Dist, in town of Langley | Land Use Code | 11 |
| Open Space: | N | DFL | N |
| Historic Property: | N | Remodel Property: | N |
| Multi-Family Redevelopment: | N | | |
| Township: | 29 | Section: | 02 |
| Range: | R3 |
Location |
| Address: | 719 DECKER AVE LANGLEY, WA 98260 | Mapsco: | |
| Neighborhood: | City of Langley | Map ID: | 721 |
| Neighborhood CD: | 04-L |
Owner |
| Name: | DANIELS, MATTHEW | Owner ID: | 302063 |
| Mailing Address: | KELLY HANSEN 719 DECKER AVE LANGLEY, WA 98260 | % Ownership: | 100.0000000000% |
| | | Exemptions: | |
Taxes and Assessment Details
Values
| (+) Improvement Homesite Value: | + | $0 | |
| (+) Improvement Non-Homesite Value: | + | $288,538 | |
| (+) Land Homesite Value: | + | $0 | |
| (+) Land Non-Homesite Value: | + | $270,000 | |
| (+) Curr Use (HS): | + | $0 | $0 |
| (+) Curr Use (NHS): | + | $0 | $0 |
| | | -------------------------- | |
| (=) Market Value: | = | $558,538 | |
| (–) Productivity Loss: | – | $0 | |
| | | -------------------------- | |
| (=) Subtotal: | = | $558,538 | |
| (+) Senior Appraised Value: | + | $0 | |
| (+) Non-Senior Appraised Value: | + | $558,538 | |
| | | -------------------------- | |
| (=) Total Appraised Value: | = | $558,538 | |
| (–) Senior Exemption Loss: | – | $0 | |
| (–) Exemption Loss: | – | $0 | |
| | | -------------------------- | |
| (=) Taxable Value: | = | $558,538 | |
Taxing Jurisdiction
| Owner: | DANIELS, MATTHEW | | |
| % Ownership: | 100.0000000000% | | |
| Total Value: | $558,538 | | |
| Tax Area: | 700 - APPRAISER-S Whid Schl Dist, in town of Langley |
| CF | Conservation Futures | 0.0313996660 | $558,538 | $558,538 | $17.54 | | |
| LANG | City of Langley | 1.0106798199 | $558,538 | $558,538 | $564.50 | | |
| LANGBOND | City of Langley BOND | 0.0000000000 | $558,538 | $558,538 | $0.00 | | |
| FIRE3 | Fire & Rescue Dist #3 S Whidbey GEN | 1.2130821753 | $558,538 | $558,538 | $677.55 | | |
| HOBOND | Hospital BOND | 0.1893405597 | $558,538 | $558,538 | $105.75 | | |
| HOGEN | Hospital GEN | 0.3848777722 | $558,538 | $558,538 | $214.97 | | |
| CE | County Current Expense | 0.3674210519 | $558,538 | $558,538 | $205.22 | | |
| ISLANDEMS | Hospital GEN (EMS) | 0.4952018576 | $558,538 | $558,538 | $276.59 | | |
| LIB | Library Sno-Isle GEN | 0.3039084203 | $558,538 | $558,538 | $169.74 | | |
| PORTWHID | Port of S Whidbey GEN | 0.1086004714 | $558,538 | $558,538 | $60.66 | | |
| SCH206BOND | School 206 BOND | 0.5960237832 | $558,538 | $558,538 | $332.90 | | |
| SCH206CAP | School 206 CP | 0.3066144020 | $558,538 | $558,538 | $171.26 | | |
| SCH206MO | School 206 Enrichment | 0.4808755445 | $558,538 | $558,538 | $268.59 | | |
| ST | State School | 1.4761226122 | $558,538 | $558,538 | $824.47 | | |
| ST2 | State School Part 2 | 0.7953803475 | $558,538 | $558,538 | $444.25 | | |
| SWHIDPRBD | P & R S Whidbey BOND | 0.0144185398 | $558,538 | $558,538 | $8.05 | | |
| SWHIDPRBD3 | P & R S Whidbey BOND3 | 0.1483535547 | $558,538 | $558,538 | $82.86 | | |
| SWHIDPRMT | P & R S Whidbey GEN | 0.4600000000 | $558,538 | $558,538 | $256.93 | | |
| | Total Tax Rate: | 8.3823005782 | | | | | |
| | | | | Taxes w/Current Exemptions: | $4,681.83 | | |
| | | | | Taxes w/o Exemptions: | $4,681.83 | | |
Improvement / Building
| Improvement #1: | RESIDENTIAL | State Code: | Y | 1786.0 sqft | Value: | $288,538 |
| Bathrooms: | 1 | Bedrooms: | 2 | | Ceiling: | BEAM PAINTED | Cooling: | HEAT PUMP/CONV/V | | Exterior Wall/Cover: | SHINGLE | Floor Covering: | SOFTWOOD 100% | | Floor Structure: | WOOD W/SUBFLOOR | Foundation: | PEIRS | | Interior Finish: | DRYWALL PAINT | Plumbing Fixture Cnt: | 6 | | Roof Slope: | 5" IN 12" | Roof Structure/Cover: | BEAM ALUMINUM HEAVY |
|
| | Type | Description | Class CD | Sub Class CD | Year Built | Area |
| | BAS | BASE/MAIN FLOOR | 3 | 0 | 2005 | 1296.0 |
| | OWC | OPEN WOOD PORCH W/STEPS/ROOF/C | 3 | 0 | 2005 | 50.0 |
| | OWC | OPEN WOOD PORCH W/STEPS/ROOF/C | 3 | 0 | 2005 | 50.0 |
| | UPH | HALF STORY | 3 | 0 | 2005 | 490.0 |
Sketch
Property Image
Land
| 1 | 14 | SQ (08001-12000) | 0.0000 | 0.00 | 0.00 | 0.00 | 1.00 | $270,000 | $0 |
Roll Value History
| 2026 | N/A | N/A | N/A | N/A | N/A |
| 2025 | $288,538 | $270,000 | $0 | $558,538 | $558,538 |
| 2024 | $286,447 | $270,000 | $0 | $556,447 | $556,447 |
| 2023 | $289,692 | $270,000 | $0 | $559,692 | $559,692 |
| 2022 | $264,532 | $210,000 | $0 | $474,532 | $474,532 |
| 2021 | $203,897 | $180,000 | $0 | $383,897 | $383,897 |
| 2020 | $191,326 | $180,000 | $0 | $371,326 | $371,326 |
| 2019 | $144,440 | $200,000 | $0 | $344,440 | $344,440 |
| 2018 | $144,858 | $160,000 | $0 | $304,858 | $304,858 |
| 2017 | $145,697 | $160,000 | $0 | $305,697 | $305,697 |
| 2016 | $147,371 | $80,000 | $0 | $227,371 | $227,371 |
| 2015 | $149,045 | $80,000 | $0 | $229,045 | $229,045 |
| 2014 | $142,450 | $139,500 | $0 | $281,950 | $281,950 |
| 2013 | $144,028 | $139,500 | $0 | $283,528 | $283,528 |
| 2012 | $145,603 | $139,500 | $0 | $285,103 | $285,103 |
| 2011 | $147,181 | $155,000 | $0 | $302,181 | $302,181 |
| 2010 | $127,744 | $155,000 | $0 | $282,744 | $282,744 |
| 2009 | $131,679 | $100,000 | $0 | $231,679 | $231,679 |
| 2008 | $128,034 | $188,500 | $0 | $316,534 | $316,534 |
| 2007 | $129,595 | $188,500 | $0 | $318,095 | $318,095 |
Deed and Sales History
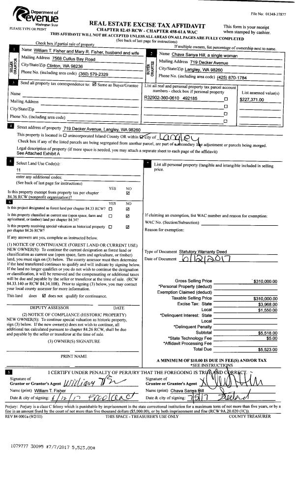
| 1 | 11/17/2021 | WD | Warranty Deed | HILL, CHAVA SANYA | DANIELS, MATTHEW | | | $625,000.00 | 51010 | 4534223 |
| 2 | 06/12/2017 | WD | Warranty Deed | FISHER, THOMAS & MARY | HILL, CHAVA SANYA | | | $310,000.00 | 30095 | 4425741 |
| 3 | 12/01/1996 | WD | Warranty Deed | TSUJI, GEORGE M | FISHER, WILLIAM T | | | $28,987.00 | 64445 | 96021665 |
| 4 | 08/01/1978 | OTHER | Other - Misc. Documents | Unknown | TSUJI, GEORGE M | | | $36,000.00 | 93623 | 337138 |
| 5 | 08/01/1978 | CD | DNU - Correction Deed | TSUJI, GEORGE M | TSUJI, GEORGE M | | | $36,000.00 | 93623 | 337138 |
Payout Agreement
| No payout information available.. |