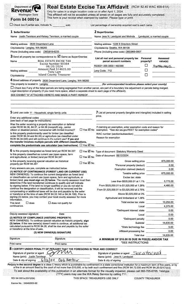
| 1 | 06/12/2024 | WD | Warranty Deed | TENNISON, JUSTIN | LANDQUIST, JESS N | | | $875,000.00 | 60364 | 4573625 |
| 2 | 03/31/2020 | WD | Warranty Deed | HONOLD, JAMES P | TENNISON, JUSTIN | | | $508,500.00 | 42585 | 4484225 |
| 3 | 05/23/2017 | WD | Warranty Deed | DAVIS-ARONSON, JANE CATHERINE | HONOLD, JAMES P | | | $375,000.00 | 29446 | 4423194 |
| 4 | 05/04/2017 | QCD | Quit Claim Deed | DAVIS-ARONSON, JANE CATHERINE | DAVIS-ARONSON, JANE CATHERINE | | | $0.00 | 29445 | 4423193 |
| 5 | 05/18/2013 | DECREE | Divorce Decree/Legal Separation | ARONSON, JORN / JANE DAVIS | DAVIS-ARONSON, JANE CATHERINE | | | $0.00 | 11777 | 4342655 |
| 6 | 03/01/1998 | WD | Warranty Deed | STANDINGER, MICHAEL C | ARONSON, JORN/JANE D | | | $64,950.00 | 80832 | 98004683 |
| 7 | 07/01/1995 | WD | Warranty Deed | REEVE, PATRICIA A | STANDINGER, MICHAEL C | | | $31,900.00 | 52698 | 95012372 |
| 8 | 08/01/1989 | WD | Warranty Deed | WEBBER, FRANZ | REEVE, PATRICIA A | | | $20,000.00 | 93179 | 89010695 |
| 9 | 08/01/1989 | WD | Warranty Deed | REEVE, PATRICIA A | REEVE, PATRICIA A | | | $0.00 | 93545 | 89011896 |
| 10 | 05/01/1979 | TRUSTEED | Trustee's Deed | Unknown | WEBBER, FRANZ | | | $74,250.00 | 92549 | 353033 |