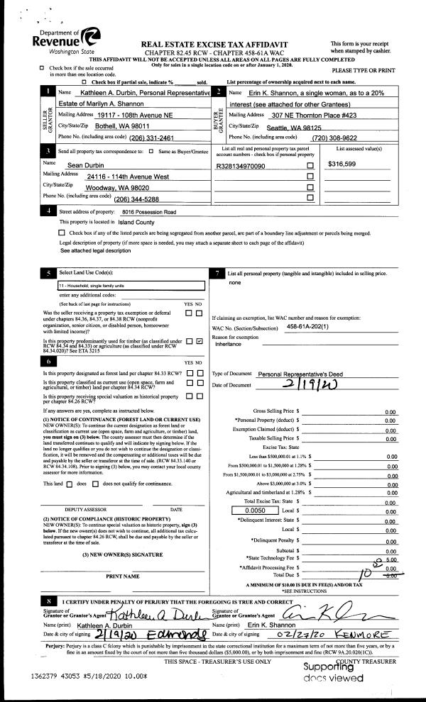
Property
Account |
| Property ID: | 493166 | Abbreviated Legal Description: | REPLACES 238-0090 74 - IN GL1: BG WLN GL1 160'S OF NWCR GL1 S35' E TO ML N ALG ML TP E OF TPB W TPB INCL ADJ TIDES |
| Geographic ID: | R32813-497-0090 | Agent Code: | |
| Type: | Real | | |
| Tax Area: | 710 - APPRAISER-S Whid Schl Dist, outside Langley, improved & 1 acre or less | Land Use Code | 11 |
| Open Space: | N | DFL | N |
| Historic Property: | N | Remodel Property: | N |
| Multi-Family Redevelopment: | N | | |
| Township: | 28 | Section: | 13 |
| Range: | R3 |
Location |
| Address: | 8016 POSSESSION RD CLINTON, WA 98236 | Mapsco: | |
| Neighborhood: | Cycle 4 | Map ID: | 707 |
| Neighborhood CD: | 4 |
Owner |
| Name: | DURBIN, SEAN | Owner ID: | 294234 |
| Mailing Address: | ERIN K SHANNON ALLISON R SHANNON, ET AL 211 5TH AVE N EDMONDS, WA 98020 | % Ownership: | 100.0000000000% |
| | | Exemptions: | |
Taxes and Assessment Details
Values
| (+) Improvement Homesite Value: | + | $0 | |
| (+) Improvement Non-Homesite Value: | + | $71,088 | |
| (+) Land Homesite Value: | + | $0 | |
| (+) Land Non-Homesite Value: | + | $375,350 | |
| (+) Curr Use (HS): | + | $0 | $0 |
| (+) Curr Use (NHS): | + | $0 | $0 |
| | | -------------------------- | |
| (=) Market Value: | = | $446,438 | |
| (–) Productivity Loss: | – | $0 | |
| | | -------------------------- | |
| (=) Subtotal: | = | $446,438 | |
| (+) Senior Appraised Value: | + | $0 | |
| (+) Non-Senior Appraised Value: | + | $446,438 | |
| | | -------------------------- | |
| (=) Total Appraised Value: | = | $446,438 | |
| (–) Senior Exemption Loss: | – | $0 | |
| (–) Exemption Loss: | – | $0 | |
| | | -------------------------- | |
| (=) Taxable Value: | = | $446,438 | |
Taxing Jurisdiction
| Owner: | DURBIN, SEAN | | |
| % Ownership: | 100.0000000000% | | |
| Total Value: | $446,438 | | |
| Tax Area: | 710 - APPRAISER-S Whid Schl Dist, outside Langley, improved & 1 acre or less |
| CF | Conservation Futures | 0.0313996660 | $446,438 | $446,438 | $14.02 | | |
| FIRE3 | Fire & Rescue Dist #3 S Whidbey GEN | 1.2130821753 | $446,438 | $446,438 | $541.57 | | |
| HOBOND | Hospital BOND | 0.1893405597 | $446,438 | $446,438 | $84.53 | | |
| HOGEN | Hospital GEN | 0.3848777722 | $446,438 | $446,438 | $171.82 | | |
| CE | County Current Expense | 0.3674210519 | $446,438 | $446,438 | $164.03 | | |
| CR | County Roads | 0.4614296361 | $446,438 | $446,438 | $206.00 | | |
| ISLANDEMS | Hospital GEN (EMS) | 0.4952018576 | $446,438 | $446,438 | $221.08 | | |
| LIB | Library Sno-Isle GEN | 0.3039084203 | $446,438 | $446,438 | $135.68 | | |
| PORTWHID | Port of S Whidbey GEN | 0.1086004714 | $446,438 | $446,438 | $48.48 | | |
| SCH206BOND | School 206 BOND | 0.5960237832 | $446,438 | $446,438 | $266.09 | | |
| SCH206CAP | School 206 CP | 0.3066144020 | $446,438 | $446,438 | $136.88 | | |
| SCH206MO | School 206 Enrichment | 0.4808755445 | $446,438 | $446,438 | $214.68 | | |
| ST | State School | 1.4761226122 | $446,438 | $446,438 | $659.00 | | |
| ST2 | State School Part 2 | 0.7953803475 | $446,438 | $446,438 | $355.09 | | |
| SWHIDPRBD | P & R S Whidbey BOND | 0.0144185398 | $446,438 | $446,438 | $6.44 | | |
| SWHIDPRBD3 | P & R S Whidbey BOND3 | 0.1483535547 | $446,438 | $446,438 | $66.23 | | |
| SWHIDPRMT | P & R S Whidbey GEN | 0.4600000000 | $446,438 | $446,438 | $205.36 | | |
| | Total Tax Rate: | 7.8330503944 | | | | | |
| | | | | Taxes w/Current Exemptions: | $3,496.98 | | |
| | | | | Taxes w/o Exemptions: | $3,496.98 | | |
Improvement / Building
| Improvement #1: | RESIDENTIAL | State Code: | Y | 940.0 sqft | Value: | $71,088 |
| Bathrooms: | 1 | Bedrooms: | 2 | | Ceiling: | ACOUSTIC FURRED | Exterior Wall/Cover: | ASBESTOES/ASPHALT | | Floor Covering: | CARPET/VINYL 60-40 | Floor Structure: | WOOD W/SUBFLOOR | | Foundation: | PIERS/CONCRETE | Heating: | BASEBOARD ELECTRIC | | Interior Finish: | DRYWALL PAINT | Plumbing Fixture Cnt: | 6 | | Roof Slope: | 4" IN 12" | Roof Structure/Cover: | CJ ASPHALT |
|
| | Type | Description | Class CD | Sub Class CD | Year Built | Area |
| | BAS | BASE/MAIN FLOOR | 2 | 0 | 1955 | 940.0 |
| | OWP | OPEN WOOD PORCH W/STEPS | 2 | 0 | 1955 | 160.0 |
Sketch
| No sketches available for this property. |
Property Image
Land
| 1 | LB | LOW BANK | 0.1500 | 6534.00 | 35.00 | 0.00 | 1.00 | $375,000 | $0 |
| 2 | 55 | TIDES | 0.0000 | 0.00 | 35.00 | 0.00 | 1.00 | $350 | $0 |
Roll Value History
| 2026 | N/A | N/A | N/A | N/A | N/A |
| 2025 | $71,088 | $375,350 | $0 | $446,438 | $446,438 |
| 2024 | $74,343 | $325,350 | $0 | $399,693 | $399,693 |
| 2023 | $75,852 | $275,350 | $0 | $351,202 | $351,202 |
| 2022 | $70,051 | $275,350 | $0 | $345,401 | $345,401 |
| 2021 | $62,101 | $250,350 | $0 | $312,451 | $312,451 |
| 2020 | $57,502 | $250,350 | $0 | $307,852 | $307,852 |
| 2019 | $41,249 | $275,350 | $0 | $316,599 | $316,599 |
| 2018 | $41,451 | $250,350 | $0 | $291,801 | $291,801 |
| 2017 | $41,853 | $230,350 | $0 | $272,203 | $272,203 |
| 2016 | $42,658 | $230,350 | $0 | $273,008 | $273,008 |
| 2015 | $43,463 | $230,350 | $0 | $273,813 | $273,813 |
| 2014 | $33,930 | $230,350 | $0 | $264,280 | $264,280 |
| 2013 | $34,750 | $160,953 | $0 | $195,703 | $195,703 |
| 2012 | $35,570 | $160,953 | $0 | $196,523 | $196,523 |
| 2011 | $36,391 | $160,953 | $0 | $197,344 | $197,344 |
| 2010 | $43,443 | $160,953 | $0 | $204,396 | $204,396 |
| 2009 | $44,784 | $160,953 | $0 | $205,737 | $205,737 |
| 2008 | $44,844 | $160,953 | $0 | $205,797 | $205,797 |
| 2007 | $45,788 | $160,716 | $0 | $206,504 | $206,504 |
Deed and Sales History
| 1 | 02/19/2020 | PRD | Personal Representatives Deed | SHANNON, MARILYN A | DURBIN, SEAN | | | $0.00 | 43053 | 4486797 |
| 2 | 09/01/1990 | WD | Warranty Deed | SHANNON, NEIL F | SHANNON, MARILYN A | | | $0.00 | 63823 | 247986 |
| 3 | 03/01/1965 | OTHER | Other - Misc. Documents | KENDLE, J H | SHANNON, NEIL F | | | $0.00 | 18385 | 0 |
| 4 | 01/01/1900 | OTHER | Other - Misc. Documents | Unknown | KENDLE, J H | | | $0.00 | 0 | 0 |
Payout Agreement
| No payout information available.. |