Property
Account |
| Property ID: | 493978 | Abbreviated Legal Description: | IN GL6: LOT 71-A & PT 71-B SP 79-314 DESC: BG SECR GL6 N0*W ALG ELN GL6 355' TO NECR LOT 24-D SP 79-263 N87*W ALG NLN 663.63' TO WLN LOT 24-C SP 79-263 & TPB S42*W 115.39' TO E END OF NEW DIV LN N76*W ALG NEW DIV LN 171.34' TO PT ON ELY MARGIN BAYVIEW RD |
| Geographic ID: | R32905-040-1950 | Agent Code: | |
| Type: | Real | | |
| Tax Area: | 710 - APPRAISER-S Whid Schl Dist, outside Langley, improved & 1 acre or less | Land Use Code | 11 |
| Open Space: | N | DFL | N |
| Historic Property: | N | Remodel Property: | N |
| Multi-Family Redevelopment: | N | | |
| Township: | 29 | Section: | 05 |
| Range: | R3 |
Location |
| Address: | 2937 QUIGLEY RD LANGLEY, WA 98260 | Mapsco: | |
| Neighborhood: | Cycle 4 | Map ID: | 732 |
| Neighborhood CD: | 4 |
Owner |
| Name: | DAY TTEE, MEL ELENA | Owner ID: | 311522 |
| Mailing Address: | 2937 QUIGLEY RD LANGLEY, WA 98260 | % Ownership: | 100.0000000000% |
| | | Exemptions: | |
Taxes and Assessment Details
Values
| (+) Improvement Homesite Value: | + | $0 | |
| (+) Improvement Non-Homesite Value: | + | $564,839 | |
| (+) Land Homesite Value: | + | $0 | |
| (+) Land Non-Homesite Value: | + | $320,000 | |
| (+) Curr Use (HS): | + | $0 | $0 |
| (+) Curr Use (NHS): | + | $0 | $0 |
| | | -------------------------- | |
| (=) Market Value: | = | $884,839 | |
| (–) Productivity Loss: | – | $0 | |
| | | -------------------------- | |
| (=) Subtotal: | = | $884,839 | |
| (+) Senior Appraised Value: | + | $0 | |
| (+) Non-Senior Appraised Value: | + | $884,839 | |
| | | -------------------------- | |
| (=) Total Appraised Value: | = | $884,839 | |
| (–) Senior Exemption Loss: | – | $0 | |
| (–) Exemption Loss: | – | $0 | |
| | | -------------------------- | |
| (=) Taxable Value: | = | $884,839 | |
Taxing Jurisdiction
| Owner: | DAY TTEE, MEL ELENA | | |
| % Ownership: | 100.0000000000% | | |
| Total Value: | $884,839 | | |
| Tax Area: | 710 - APPRAISER-S Whid Schl Dist, outside Langley, improved & 1 acre or less |
| CF | Conservation Futures | 0.0313996660 | $884,839 | $884,839 | $27.78 | | |
| FIRE3 | Fire & Rescue Dist #3 S Whidbey GEN | 1.2130821753 | $884,839 | $884,839 | $1,073.38 | | |
| HOBOND | Hospital BOND | 0.1893405597 | $884,839 | $884,839 | $167.54 | | |
| HOGEN | Hospital GEN | 0.3848777722 | $884,839 | $884,839 | $340.55 | | |
| CE | County Current Expense | 0.3674210519 | $884,839 | $884,839 | $325.11 | | |
| CR | County Roads | 0.4614296361 | $884,839 | $884,839 | $408.29 | | |
| ISLANDEMS | Hospital GEN (EMS) | 0.4952018576 | $884,839 | $884,839 | $438.17 | | |
| LIB | Library Sno-Isle GEN | 0.3039084203 | $884,839 | $884,839 | $268.91 | | |
| PORTWHID | Port of S Whidbey GEN | 0.1086004714 | $884,839 | $884,839 | $96.09 | | |
| SCH206BOND | School 206 BOND | 0.5960237832 | $884,839 | $884,839 | $527.39 | | |
| SCH206CAP | School 206 CP | 0.3066144020 | $884,839 | $884,839 | $271.30 | | |
| SCH206MO | School 206 Enrichment | 0.4808755445 | $884,839 | $884,839 | $425.50 | | |
| ST | State School | 1.4761226122 | $884,839 | $884,839 | $1,306.13 | | |
| ST2 | State School Part 2 | 0.7953803475 | $884,839 | $884,839 | $703.78 | | |
| SWHIDPRBD | P & R S Whidbey BOND | 0.0144185398 | $884,839 | $884,839 | $12.76 | | |
| SWHIDPRBD3 | P & R S Whidbey BOND3 | 0.1483535547 | $884,839 | $884,839 | $131.27 | | |
| SWHIDPRMT | P & R S Whidbey GEN | 0.4600000000 | $884,839 | $884,839 | $407.03 | | |
| | Total Tax Rate: | 7.8330503944 | | | | | |
| | | | | Taxes w/Current Exemptions: | $6,930.98 | | |
| | | | | Taxes w/o Exemptions: | $6,930.98 | | |
Improvement / Building
| Improvement #1: | RESIDENTIAL | State Code: | Y | 2170.7 sqft | Value: | $564,839 |
| Bathrooms: | 2.5 | Bedrooms: | 2 | | Ceiling: | DRYWALL PAINTED | Cooling: | HEAT PUMP/CONV/V | | Exterior Wall/Cover: | SHINGLE | Floor Covering: | CERAMIC TILE/HWD 40/60 | | Floor Structure: | WOOD W/SUBFLOOR | Foundation: | CONCRETE | | Interior Finish: | DRYWALL PAINT | Plumbing Fixture Cnt: | 15 | | Roof Slope: | 6" IN 12" | Roof Structure/Cover: | CJ ASPHALT |
|
| | Type | Description | Class CD | Sub Class CD | Year Built | Area |
| | BAS | BASE/MAIN FLOOR | 4 | 0 | 2009 | 1540.7 |
| | OP4 | OPEN PORCH W/CEILING-ROOF | 4 | 0 | 2009 | 160.0 |
| | AGR | ATTACHED GARAGE | 4 | 0 | 2009 | 478.6 |
| | OWP | OPEN WOOD PORCH W/STEPS | 4 | 0 | 2009 | 160.0 |
| | DWN | DOWNSTAIRS LIVING AREA | 4 | 0 | 2009 | 630.0 |
| | OP4 | OPEN PORCH W/CEILING-ROOF | 4 | 0 | 2009 | 60.0 |
Sketch
Property Image
Land
| 1 | 15 | SQ (12001-21780) | 0.0000 | 0.00 | 0.00 | 0.00 | 1.00 | $320,000 | $0 |
Roll Value History
| 2026 | N/A | N/A | N/A | N/A | N/A |
| 2025 | $564,839 | $320,000 | $0 | $884,839 | $884,839 |
| 2024 | $569,469 | $320,000 | $0 | $889,469 | $889,469 |
| 2023 | $554,569 | $300,000 | $0 | $854,569 | $854,569 |
| 2022 | $506,289 | $280,000 | $0 | $786,289 | $786,289 |
| 2021 | $353,222 | $120,000 | $0 | $473,222 | $473,222 |
| 2020 | $337,304 | $120,000 | $0 | $457,304 | $457,304 |
| 2019 | $257,208 | $170,000 | $0 | $427,208 | $427,208 |
| 2018 | $257,906 | $130,000 | $0 | $387,906 | $387,906 |
| 2017 | $259,300 | $110,000 | $0 | $369,300 | $369,300 |
| 2016 | $262,087 | $90,000 | $0 | $352,087 | $352,087 |
| 2015 | $264,876 | $75,000 | $0 | $339,876 | $339,876 |
| 2014 | $266,457 | $75,000 | $0 | $341,457 | $341,457 |
| 2013 | $269,291 | $75,000 | $0 | $344,291 | $344,291 |
| 2012 | $272,128 | $97,750 | $0 | $369,878 | $369,878 |
| 2011 | $274,962 | $115,000 | $0 | $389,962 | $389,962 |
| 2010 | $251,693 | $115,000 | $0 | $366,693 | $366,693 |
| 2009 | $205,460 | $65,000 | $0 | $270,460 | $270,460 |
| 2008 | $0 | $52,387 | $0 | $52,387 | $52,387 |
| 2007 | $0 | $52,387 | $0 | $52,387 | $52,387 |
Deed and Sales History
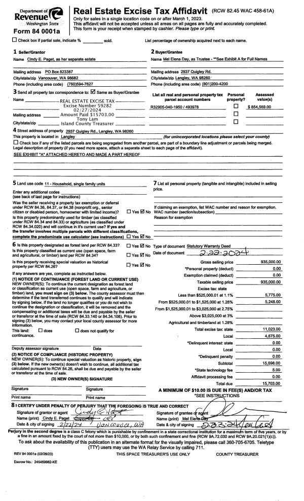
| 1 | 02/22/2024 | WD | Warranty Deed | PAGET, CINDY E | DAY TTEE, MEL ELENA | | | $935,000.00 | 59282 | 4569745 |
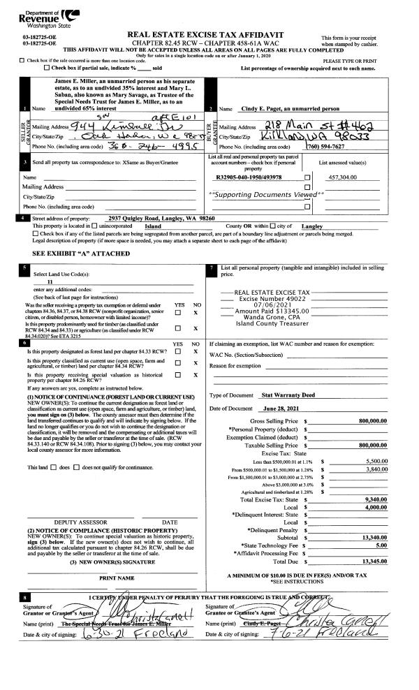
| 2 | 06/28/2021 | WD | Warranty Deed | SABAN TTEE, MARY L | PAGET, CINDY E | | | $800,000.00 | 49022 | 4523563 |
| 3 | 12/25/2020 | QCD | Quit Claim Deed | SABAN TTEE, MARY L | SABAN TTEE, MARY L | | | $0.00 | 46860 | 4510242 |
| 4 | 02/05/2019 | PRD | Personal Representatives Deed | MILLER, JAMES E | SABAN TTEE, MARY L | | | $0.00 | 37589 | 4459261 |
| 5 | 08/25/2009 | BLA | DNU - Boundary Line Adjustment | MILLER, JAMES E | MILLER, JAMES E | | | $0.00 | 81356 | 4248652 |
| 6 | 07/30/2009 | ESTSEPPROP | Establish Separate Property | MILLER, JAMES E | MILLER, JAMES E | | | $0.00 | 91748 | 4257500 |
| 7 | 01/02/2008 | WD | Warranty Deed | YEAKEL, JUDITH P | MILLER, JAMES E | | | $50,000.00 | 80021 | 4219097 |
| 8 | 11/01/1988 | WD | Warranty Deed | HOECK, SCOTT | YEAKEL, JUDITH P | | | $7,800.00 | 84008 | 88014982 |
| 9 | 03/01/1983 | QCD | Quit Claim Deed | BURNS, ROBERT W | HOECK, SCOTT | | | $0.00 | 31969 | 412235 |
| 10 | 02/01/1981 | EXECUTORD | Executor Deed | HOECK, PRESCOTT R | BURNS, ROBERT W | | | $10,000.00 | 11378 | 382678 |
| 11 | 09/01/1980 | CD | DNU - Correction Deed | HOECK, PRESCOTT R | HOECK, PRESCOTT R | | | $1.00 | 2907 | 373126 |
| 12 | 01/01/1900 | OTHER | Other - Misc. Documents | Unknown | HOECK, PRESCOTT R | | | $0.00 | 0 | 0 |
Payout Agreement
| No payout information available.. |