Property
Account |
| Property ID: | 494806 | Abbreviated Legal Description: | PT GL1 & GL2 DESC: BG NWCR SD GL2 S1*W ALG WLN 10.41' TPB S36*E105.38' S89*E PARA/W NLN SD GL2 57.50' N3*W88.32' N80*E52.09' N53*E17.87' N83*E138' M/L TP ON ORDHITDLN SLY ALG SD LN TP S89*E FR PT BEARS S1*W ALG SD WLN 104.60' FR SD TPB N89*W349' M/L TO SD |
| Geographic ID: | R32813-379-0210 | Agent Code: | |
| Type: | Real | | |
| Tax Area: | 710 - APPRAISER-S Whid Schl Dist, outside Langley, improved & 1 acre or less | Land Use Code | 11 |
| Open Space: | N | DFL | N |
| Historic Property: | N | Remodel Property: | N |
| Multi-Family Redevelopment: | N | | |
| Township: | 28 | Section: | 13 |
| Range: | R3 |
Location |
| Address: | 8105 POSSESSION BEACH WALK CLINTON, WA 98236 | Mapsco: | |
| Neighborhood: | Cycle 4 | Map ID: | 707 |
| Neighborhood CD: | 4 |
Owner |
| Name: | STRANGE, BRIAN W | Owner ID: | 301705 |
| Mailing Address: | ANN K BOWEN TTEE 8105 POSSESSION BEACH WALK CLINTON, WA 98236 | % Ownership: | 100.0000000000% |
| | | Exemptions: | |
Taxes and Assessment Details
Values
| (+) Improvement Homesite Value: | + | $0 | |
| (+) Improvement Non-Homesite Value: | + | $435,440 | |
| (+) Land Homesite Value: | + | $0 | |
| (+) Land Non-Homesite Value: | + | $852,000 | |
| (+) Curr Use (HS): | + | $0 | $0 |
| (+) Curr Use (NHS): | + | $0 | $0 |
| | | -------------------------- | |
| (=) Market Value: | = | $1,287,440 | |
| (–) Productivity Loss: | – | $0 | |
| | | -------------------------- | |
| (=) Subtotal: | = | $1,287,440 | |
| (+) Senior Appraised Value: | + | $0 | |
| (+) Non-Senior Appraised Value: | + | $1,287,440 | |
| | | -------------------------- | |
| (=) Total Appraised Value: | = | $1,287,440 | |
| (–) Senior Exemption Loss: | – | $0 | |
| (–) Exemption Loss: | – | $0 | |
| | | -------------------------- | |
| (=) Taxable Value: | = | $1,287,440 | |
Taxing Jurisdiction
| Owner: | STRANGE, BRIAN W | | |
| % Ownership: | 100.0000000000% | | |
| Total Value: | $1,287,440 | | |
| Tax Area: | 710 - APPRAISER-S Whid Schl Dist, outside Langley, improved & 1 acre or less |
| CF | Conservation Futures | 0.0313996660 | $1,287,440 | $1,287,440 | $40.43 | | |
| FIRE3 | Fire & Rescue Dist #3 S Whidbey GEN | 1.2130821753 | $1,287,440 | $1,287,440 | $1,561.77 | | |
| HOBOND | Hospital BOND | 0.1893405597 | $1,287,440 | $1,287,440 | $243.76 | | |
| HOGEN | Hospital GEN | 0.3848777722 | $1,287,440 | $1,287,440 | $495.51 | | |
| CE | County Current Expense | 0.3674210519 | $1,287,440 | $1,287,440 | $473.03 | | |
| CR | County Roads | 0.4614296361 | $1,287,440 | $1,287,440 | $594.06 | | |
| ISLANDEMS | Hospital GEN (EMS) | 0.4952018576 | $1,287,440 | $1,287,440 | $637.54 | | |
| LIB | Library Sno-Isle GEN | 0.3039084203 | $1,287,440 | $1,287,440 | $391.26 | | |
| PORTWHID | Port of S Whidbey GEN | 0.1086004714 | $1,287,440 | $1,287,440 | $139.82 | | |
| SCH206BOND | School 206 BOND | 0.5960237832 | $1,287,440 | $1,287,440 | $767.34 | | |
| SCH206CAP | School 206 CP | 0.3066144020 | $1,287,440 | $1,287,440 | $394.75 | | |
| SCH206MO | School 206 Enrichment | 0.4808755445 | $1,287,440 | $1,287,440 | $619.10 | | |
| ST | State School | 1.4761226122 | $1,287,440 | $1,287,440 | $1,900.42 | | |
| ST2 | State School Part 2 | 0.7953803475 | $1,287,440 | $1,287,440 | $1,024.00 | | |
| SWHIDPRBD | P & R S Whidbey BOND | 0.0144185398 | $1,287,440 | $1,287,440 | $18.56 | | |
| SWHIDPRBD3 | P & R S Whidbey BOND3 | 0.1483535547 | $1,287,440 | $1,287,440 | $191.00 | | |
| SWHIDPRMT | P & R S Whidbey GEN | 0.4600000000 | $1,287,440 | $1,287,440 | $592.22 | | |
| | Total Tax Rate: | 7.8330503944 | | | | | |
| | | | | Taxes w/Current Exemptions: | $10,084.57 | | |
| | | | | Taxes w/o Exemptions: | $10,084.57 | | |
Improvement / Building
| Improvement #1: | RESIDENTIAL | State Code: | Y | 4171.8 sqft | Value: | $0 |
| Bathrooms: | 3 | Bedrooms: | 4 | | Ceiling: | BEAM PAINTED | Exterior Wall/Cover: | WOOD SIDING | | Floor Covering: | CERAMIC TILE/CPT 40-60 | Floor Structure: | SLAB ABOVE GRADE | | Foundation: | CONCRETE | Heating: | RADIANT FLOOR | | Interior Finish: | DRYWALL PAINT | Plumbing Fixture Cnt: | 14 | | Roof Slope: | 4" IN 12" | Roof Structure/Cover: | BEAM ASPHALT |
|
| | Type | Description | Class CD | Sub Class CD | Year Built | Area |
| | oTP1 | TREAD POOL 1/BELOW | 5 | 0 | 1953 | 260.0 |
| | ENP | ENCLOSED PORCH | 5 | 0 | 1953 | 1966.2 |
| | AGR | ATTACHED GARAGE | 5 | 0 | 1953 | 423.0 |
| | UTY | STORAGE/UTILITY | 5 | 0 | 1953 | 330.0 |
| | OP1 | OPEN PORCH SLAB | 5 | 0 | 1953 | 3670.6 |
| | UTY | STORAGE/UTILITY | 5 | 0 | 1953 | 576.0 |
| | BAS | BASE/MAIN FLOOR | 5 | 0 | 1953 | 4171.8 |
| Improvement #2: | RESIDENTIAL | State Code: | Y | 3786.5 sqft | Value: | $435,440 |
| Bathrooms: | 2.5 | Bedrooms: | 2 | | Ceiling: | TONGUE & GROOVE | Cooling: | HEAT PUMP/CONV/V | | Exterior Wall/Cover: | WOOD SIDING | Floor Covering: | (NONE) | | Floor Structure: | SLAB ON GRADE | Foundation: | SLAB | | Interior Finish: | DRYWALL PAINT | Plumbing Fixture Cnt: | 15 | | Roof Slope: | 3" IN 12" | Roof Structure/Cover: | CJ ALUMINIUM HEAVY |
|
| | Type | Description | Class CD | Sub Class CD | Year Built | Area |
| | BAS | BASE/MAIN FLOOR | 4 | 0 | 1997 | 3786.5 |
| | UTY | STORAGE/UTILITY | 4 | 0 | 1997 | 450.7 |
| | AGR | ATTACHED GARAGE | 4 | 0 | 1997 | 397.5 |
| | ENP | ENCLOSED PORCH | 4 | 0 | 1997 | 2052.0 |
| | OP2 | OPEN PORCH W/STEPS | 4 | 0 | 1997 | 2698.4 |
| | UTY | STORAGE/UTILITY | 4 | 0 | 1997 | 558.0 |
| | oTP1 | TREAD POOL 1/BELOW | 4 | 0 | 1997 | 0.0 |
Sketch
Property Image
Land
| 1 | LB | LOW BANK | 0.9400 | 40946.40 | 55.00 | 0.00 | 1.00 | $850,000 | $0 |
| 2 | 55 | TIDES | 0.0000 | 0.00 | 200.00 | 0.00 | 1.00 | $2,000 | $0 |
Roll Value History
| 2026 | N/A | N/A | N/A | N/A | N/A |
| 2025 | $435,440 | $852,000 | $0 | $1,287,440 | $1,287,440 |
| 2024 | $852,861 | $801,990 | $0 | $1,654,851 | $1,654,851 |
| 2023 | $869,992 | $751,990 | $0 | $1,621,982 | $1,621,982 |
| 2022 | $801,939 | $751,990 | $0 | $1,553,929 | $1,553,929 |
| 2021 | $0 | $150,550 | $0 | $150,550 | $150,550 |
| 2020 | $0 | $150,550 | $0 | $150,550 | $150,550 |
| 2019 | $0 | $250,550 | $0 | $250,550 | $250,550 |
| 2018 | $0 | $250,550 | $0 | $250,550 | $250,550 |
| 2017 | $0 | $115,550 | $0 | $115,550 | $115,550 |
| 2016 | $0 | $115,550 | $0 | $115,550 | $115,550 |
| 2015 | $0 | $115,550 | $0 | $115,550 | $115,550 |
| 2014 | $0 | $115,550 | $0 | $115,550 | $115,550 |
| 2013 | $0 | $114,331 | $0 | $114,331 | $114,331 |
| 2012 | $0 | $114,331 | $0 | $114,331 | $114,331 |
| 2011 | $0 | $114,331 | $0 | $114,331 | $114,331 |
| 2010 | $0 | $114,331 | $0 | $114,331 | $114,331 |
| 2009 | $0 | $114,331 | $0 | $114,331 | $114,331 |
| 2008 | $0 | $122,534 | $550 | $123,084 | $123,084 |
| 2007 | $0 | $122,699 | $0 | $122,699 | $122,699 |
Deed and Sales History
| 1 | 10/19/2021 | WD | Warranty Deed | CLAUSEN TRUSTEE, ALFRED H | STRANGE, BRIAN W | | | $2,380,000.00 | 50600 | 4532068 |
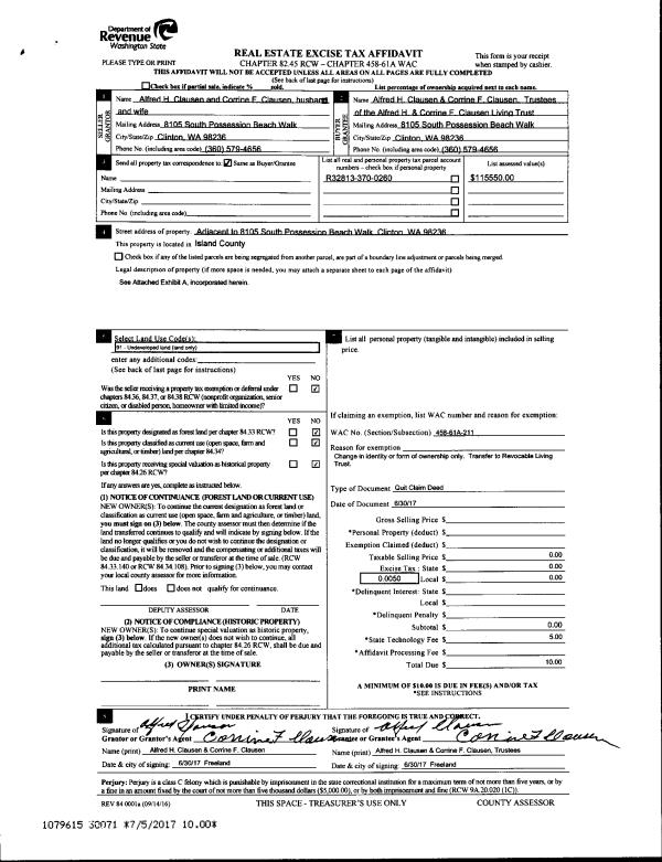
| 2 | 06/30/2017 | QCD | Quit Claim Deed | CLAUSEN, ALFRED H | CLAUSEN TRUSTEE, ALFRED H | | | $0.00 | 30071 | 4425648 |
Payout Agreement
| No payout information available.. |