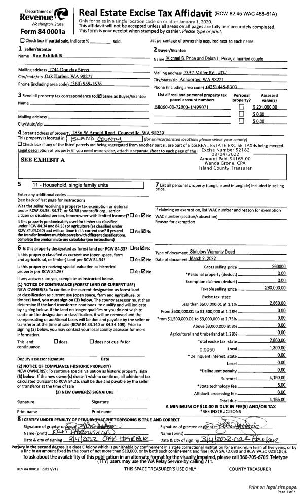
Property
Account |
| Property ID: | 499071 | Abbreviated Legal Description: | SAN DE FUCA LOTS 1 THRU 11 INCL, LOTS 13 15 BLK 72 TGW TRIANGLE LY SELY OF BLK 72 BEING PT LOTS 1 2 BLK 73 LOTS 1, 3 5 BLK 74 LY W OF ST HWY EX PT TO ST HWY R/W TGW PT ADJ VAC STS EX PT VAC KINEAR ST LY WLY OF FOLL DESC LN: BG INTER CLN VAC |
| Geographic ID: | S8060-00-72000-1 | Agent Code: | |
| Type: | Real | | |
| Tax Area: | 332 - APPRAISER-Cpvl Schl Dist, Special Dist, improved, greater than 1 acre | Land Use Code | 11 |
| Open Space: | N | DFL | N |
| Historic Property: | N | Remodel Property: | N |
| Multi-Family Redevelopment: | N | | |
| Township: | | Section: | |
| Range: | |
Location |
| Address: | 1836 ARNOLD RD COUPEVILLE, WA 98239 | Mapsco: | |
| Neighborhood: | Cycle 2 | Map ID: | 145 |
| Neighborhood CD: | 2 |
Owner |
| Name: | PRICE, MICHAEL S | Owner ID: | 303297 |
| Mailing Address: | DEBRA L PRICE 1836 ARNOLD RD COUPEVILLE, WA 98239 | % Ownership: | 100.0000000000% |
| | | Exemptions: | |
Taxes and Assessment Details
Values
| (+) Improvement Homesite Value: | + | $0 | |
| (+) Improvement Non-Homesite Value: | + | $546,295 | |
| (+) Land Homesite Value: | + | $0 | |
| (+) Land Non-Homesite Value: | + | $330,000 | |
| (+) Curr Use (HS): | + | $0 | $0 |
| (+) Curr Use (NHS): | + | $0 | $0 |
| | | -------------------------- | |
| (=) Market Value: | = | $876,295 | |
| (–) Productivity Loss: | – | $0 | |
| | | -------------------------- | |
| (=) Subtotal: | = | $876,295 | |
| (+) Senior Appraised Value: | + | $0 | |
| (+) Non-Senior Appraised Value: | + | $876,295 | |
| | | -------------------------- | |
| (=) Total Appraised Value: | = | $876,295 | |
| (–) Senior Exemption Loss: | – | $0 | |
| (–) Exemption Loss: | – | $0 | |
| | | -------------------------- | |
| (=) Taxable Value: | = | $876,295 | |
Taxing Jurisdiction
| Owner: | PRICE, MICHAEL S | | |
| % Ownership: | 100.0000000000% | | |
| Total Value: | $876,295 | | |
| Tax Area: | 332 - APPRAISER-Cpvl Schl Dist, Special Dist, improved, greater than 1 acre |
| CF | Conservation Futures | 0.0313996660 | $876,295 | $876,295 | $27.52 | | |
| CEM2 | Cemetery #2 | 0.0092609791 | $876,295 | $876,295 | $8.12 | | |
| FIRE2 | Fire & Rescue Dist #2 N Whidbey GEN | 0.5381486274 | $876,295 | $876,295 | $471.58 | | |
| HOBOND | Hospital BOND | 0.1893405597 | $876,295 | $876,295 | $165.92 | | |
| HOGEN | Hospital GEN | 0.3848777722 | $876,295 | $876,295 | $337.27 | | |
| CE | County Current Expense | 0.3674210519 | $876,295 | $876,295 | $321.97 | | |
| CR | County Roads | 0.4614296361 | $876,295 | $876,295 | $404.35 | | |
| ISLANDEMS | Hospital GEN (EMS) | 0.4952018576 | $876,295 | $876,295 | $433.94 | | |
| LIB | Library Sno-Isle GEN | 0.3039084203 | $876,295 | $876,295 | $266.31 | | |
| LIBCAP | Library Sno-Isle BOND (Cap Fac Imp Area) | 0.0528562629 | $876,295 | $876,295 | $46.32 | | |
| POCOUP | Port of Coupeville GEN | 0.1065226063 | $876,295 | $876,295 | $93.35 | | |
| POCOUPIDD | Port of Coupeville IDD | 0.3353038577 | $876,295 | $876,295 | $293.83 | | |
| COUPSDTECH | School 204 CP (TECH) | 0.1215123397 | $876,295 | $876,295 | $106.48 | | |
| SCH204MO | School 204 Enrichment | 0.6416662518 | $876,295 | $876,295 | $562.29 | | |
| ST | State School | 1.4761226122 | $876,295 | $876,295 | $1,293.52 | | |
| ST2 | State School Part 2 | 0.7953803475 | $876,295 | $876,295 | $696.99 | | |
| | Total Tax Rate: | 6.3103528484 | | | | | |
| | | | | Taxes w/Current Exemptions: | $5,529.76 | | |
| | | | | Taxes w/o Exemptions: | $5,529.76 | | |
Improvement / Building
| Improvement #1: | RESIDENTIAL | State Code: | Y | 2072.0 sqft | Value: | $546,295 |
| Bathrooms: | 2.5 | Bedrooms: | 2 | | Ceiling: | DRYWALL PAINTED | Cooling: | HEAT PUMP/CONV/V | | Exterior Wall/Cover: | CEMENT FIBER | Floor Covering: | CARPET/VINYL 60-40 | | Floor Structure: | WOOD W/SUBFLOOR | Foundation: | CONCRETE | | Interior Finish: | DRYWALL PAINT | Plumbing Fixture Cnt: | 12 | | Roof Slope: | 8" IN 12" | Roof Structure/Cover: | CJ ASPHALT |
|
| | Type | Description | Class CD | Sub Class CD | Year Built | Area |
| | BAS | BASE/MAIN FLOOR | 4 | 0 | 2023 | 2072.0 |
| | UTY | STORAGE/UTILITY | 4 | 0 | 2023 | 192.0 |
| | OWC | OPEN WOOD PORCH W/STEPS/ROOF/C | 4 | 0 | 2023 | 540.0 |
| | OP2 | OPEN PORCH W/STEPS | 4 | 0 | 2023 | 358.3 |
| | AGR | ATTACHED GARAGE | 4 | 0 | 2023 | 1008.0 |
Sketch
Property Image
Land
| 1 | 18 | AC (02.01-03.00) | 2.5300 | 110206.80 | 0.00 | 0.00 | 1.00 | $330,000 | $0 |
Roll Value History
| 2026 | N/A | N/A | N/A | N/A | N/A |
| 2025 | $546,295 | $330,000 | $0 | $876,295 | $876,295 |
| 2024 | $556,229 | $330,000 | $0 | $886,229 | $886,229 |
| 2023 | $115,857 | $330,000 | $0 | $445,857 | $445,857 |
| 2022 | $1,000 | $280,000 | $0 | $281,000 | $281,000 |
| 2021 | $1,000 | $200,000 | $0 | $201,000 | $201,000 |
| 2020 | $1,000 | $160,000 | $0 | $161,000 | $161,000 |
| 2019 | $1,000 | $145,000 | $0 | $146,000 | $146,000 |
| 2018 | $1,600 | $135,000 | $0 | $136,600 | $136,600 |
| 2017 | $1,600 | $120,000 | $0 | $121,600 | $121,600 |
| 2016 | $1,600 | $90,000 | $0 | $91,600 | $91,600 |
| 2015 | $1,600 | $90,000 | $0 | $91,600 | $91,600 |
| 2014 | $1,600 | $90,000 | $0 | $91,600 | $91,600 |
| 2013 | $1,600 | $115,726 | $0 | $117,326 | $117,326 |
| 2012 | $1,673 | $115,726 | $0 | $117,399 | $117,399 |
| 2011 | $1,673 | $136,148 | $0 | $137,821 | $137,821 |
| 2010 | $1,673 | $136,148 | $0 | $137,821 | $137,821 |
| 2009 | $1,673 | $148,798 | $0 | $150,471 | $150,471 |
| 2008 | $1,673 | $206,430 | $0 | $208,103 | $208,103 |
| 2007 | $1,673 | $151,560 | $0 | $153,233 | $153,233 |
Deed and Sales History
| 1 | 03/02/2022 | WD | Warranty Deed | TOMLINSON, RALPH L | PRICE, MICHAEL S | | | $260,000.00 | 52182 | 4540885 |
| 2 | 02/03/2020 | WD | Warranty Deed | GOODMAN, DAVID A | TOMLINSON, RALPH L | | | $200,000.00 | 42026 | 4480888 |
| 3 | 02/23/2011 | EZ | Easement | GOODMAN, DAVID A | GOODMAN, DAVID A | | | $1,000.00 | 3948 | 4292758 |
| 4 | 08/11/2010 | WD | Warranty Deed | GOODMAN, DAVID A | GOODMAN, DAVID A | | | $23,000.00 | 2035 | 4279011 |
| 5 | 09/06/2002 | WD | Warranty Deed | MILLER, CLAYTON W | GOODMAN, DAVID A | | | $124,000.00 | 23593 | 4030770 |
| 6 | 08/12/1999 | BLA | DNU - Boundary Line Adjustment | KINCH, IVAN L | KINCH, IVAN L & CATHERINE N | | | $0.00 | 68403 | 99004309 |
| 7 | 04/21/1999 | WD | Warranty Deed | KINCH, IVAN L & CATHERINE N | MILLER, CLAYTON W | | | $75,000.00 | 91600 | 99010283 |
| 8 | 10/01/1986 | QCD | Quit Claim Deed | KINCH, IVAN L | KINCH, IVAN L | | | $0.00 | 61868 | 85011681 |
| 9 | 08/01/1984 | EZ | Easement | KINCH, IVAN L | KINCH, IVAN L | | | $0.00 | 60779 | 424540 |
| 10 | 02/01/1982 | CD | DNU - Correction Deed | KINCH, CATHERINE N | KINCH, IVAN L | | | $1.00 | 20339 | 393094 |
| 11 | 08/01/1981 | CD | DNU - Correction Deed | BAKER, HELEN A | KINCH, CATHERINE N | | | $1.00 | 12618 | 387101 |
| 12 | 01/01/1900 | OTHER | Other - Misc. Documents | Unknown | BAKER, HELEN A | | | $0.00 | 0 | 0 |
Payout Agreement
| No payout information available.. |