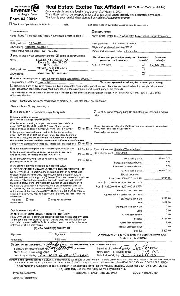
Property
Account |
| Property ID: | 499525 | Abbreviated Legal Description: | N/2 SE NE NE EX RD FR 487-4800 |
| Geographic ID: | R13311-445-4950 | Agent Code: | |
| Type: | Real | | |
| Tax Area: | 112 - APPRAISER-OH Schl Dist, outside OH, improved, greater than 1 acre | Land Use Code | 11 |
| Open Space: | N | DFL | N |
| Historic Property: | N | Remodel Property: | N |
| Multi-Family Redevelopment: | N | | |
| Township: | 33 | Section: | 11 |
| Range: | R1 |
Location |
| Address: | 4345 MONKEY HILL RD OAK HARBOR, WA 98277 | Mapsco: | |
| Neighborhood: | Cycle 6 | Map ID: | 203 |
| Neighborhood CD: | 6 |
Owner |
| Name: | BROSS RENTAL, LLC | Owner ID: | 310132 |
| Mailing Address: | 615 S DIVISION ST SUITE A MOSES LAKE, WA 98837 | % Ownership: | 100.0000000000% |
| | | Exemptions: | |
Taxes and Assessment Details
Values
| (+) Improvement Homesite Value: | + | $0 | |
| (+) Improvement Non-Homesite Value: | + | $128,676 | |
| (+) Land Homesite Value: | + | $0 | |
| (+) Land Non-Homesite Value: | + | $300,000 | |
| (+) Curr Use (HS): | + | $0 | $0 |
| (+) Curr Use (NHS): | + | $0 | $0 |
| | | -------------------------- | |
| (=) Market Value: | = | $428,676 | |
| (–) Productivity Loss: | – | $0 | |
| | | -------------------------- | |
| (=) Subtotal: | = | $428,676 | |
| (+) Senior Appraised Value: | + | $0 | |
| (+) Non-Senior Appraised Value: | + | $428,676 | |
| | | -------------------------- | |
| (=) Total Appraised Value: | = | $428,676 | |
| (–) Senior Exemption Loss: | – | $0 | |
| (–) Exemption Loss: | – | $0 | |
| | | -------------------------- | |
| (=) Taxable Value: | = | $428,676 | |
Taxing Jurisdiction
| Owner: | BROSS RENTAL, LLC | | |
| % Ownership: | 100.0000000000% | | |
| Total Value: | $428,676 | | |
| Tax Area: | 112 - APPRAISER-OH Schl Dist, outside OH, improved, greater than 1 acre |
| CF | Conservation Futures | 0.0313996660 | $428,676 | $428,676 | $13.46 | | |
| CEM1 | Cemetery #1 | 0.0040018856 | $428,676 | $428,676 | $1.72 | | |
| FIRE2 | Fire & Rescue Dist #2 N Whidbey GEN | 0.5381486274 | $428,676 | $428,676 | $230.69 | | |
| HOBOND | Hospital BOND | 0.1893405597 | $428,676 | $428,676 | $81.17 | | |
| HOGEN | Hospital GEN | 0.3848777722 | $428,676 | $428,676 | $164.99 | | |
| CE | County Current Expense | 0.3674210519 | $428,676 | $428,676 | $157.50 | | |
| CR | County Roads | 0.4614296361 | $428,676 | $428,676 | $197.80 | | |
| ISLANDEMS | Hospital GEN (EMS) | 0.4952018576 | $428,676 | $428,676 | $212.28 | | |
| LIB | Library Sno-Isle GEN | 0.3039084203 | $428,676 | $428,676 | $130.28 | | |
| NWHIDPRMT | P & R N Whidbey GEN | 0.1990272349 | $428,676 | $428,676 | $85.32 | | |
| SCH201MO | School 201 Enrichment | 2.3851112745 | $428,676 | $428,676 | $1,022.44 | | |
| ST | State School | 1.4761226122 | $428,676 | $428,676 | $632.78 | | |
| ST2 | State School Part 2 | 0.7953803475 | $428,676 | $428,676 | $340.96 | | |
| | Total Tax Rate: | 7.6313709459 | | | | | |
| | | | | Taxes w/Current Exemptions: | $3,271.39 | | |
| | | | | Taxes w/o Exemptions: | $3,271.39 | | |
Improvement / Building
| Improvement #1: | RESIDENTIAL | State Code: | Y | 560.0 sqft | Value: | $128,676 |
| Bathrooms: | 1 | Bedrooms: | 1 | | Ceiling: | DRYWALL PAINTED | Exterior Wall/Cover: | WOOD SIDING | | Floor Covering: | CARPET/VINYL 60-40 | Floor Structure: | WOOD W/SUBFLOOR | | Foundation: | CONCRETE BLOCKS | Heating: | BASEBOARD ELECTRIC | | Interior Finish: | DRYWALL PAINT | Plumbing Fixture Cnt: | 6 | | Roof Slope: | FLAT | Roof Structure/Cover: | ALUM LIGHT |
|
| | Type | Description | Class CD | Sub Class CD | Year Built | Area |
| | BAS | BASE/MAIN FLOOR | 2 | 0 | 2023 | 560.0 |
| | CPD | OPEN CARPORT DIRT FLOOR | 2 | 0 | 2023 | 400.0 |
| | UTY | STORAGE/UTILITY | 2 | 0 | 2023 | 360.0 |
Sketch
Property Image
Land
| 1 | 32 | AC (03.01-09.99) | 5.0000 | 0.00 | 0.00 | 0.00 | 1.00 | $300,000 | $0 |
Roll Value History
| 2026 | N/A | N/A | N/A | N/A | N/A |
| 2025 | $128,676 | $300,000 | $0 | $428,676 | $428,676 |
| 2024 | $133,761 | $280,000 | $0 | $413,761 | $413,761 |
| 2023 | $136,491 | $140,000 | $0 | $276,491 | $276,491 |
| 2022 | $0 | $100,000 | $0 | $100,000 | $100,000 |
| 2021 | $0 | $90,000 | $0 | $90,000 | $90,000 |
| 2020 | $0 | $90,000 | $0 | $90,000 | $90,000 |
| 2019 | $0 | $90,000 | $0 | $90,000 | $90,000 |
| 2018 | $0 | $90,000 | $0 | $90,000 | $90,000 |
| 2017 | $0 | $80,000 | $0 | $80,000 | $80,000 |
| 2016 | $0 | $80,000 | $0 | $80,000 | $80,000 |
| 2015 | $0 | $70,000 | $0 | $70,000 | $70,000 |
| 2014 | $0 | $95,000 | $0 | $95,000 | $95,000 |
| 2013 | $0 | $100,000 | $0 | $100,000 | $100,000 |
| 2012 | $0 | $100,000 | $0 | $100,000 | $100,000 |
| 2011 | $0 | $100,000 | $0 | $100,000 | $100,000 |
| 2010 | $0 | $100,000 | $0 | $100,000 | $100,000 |
| 2009 | $0 | $112,500 | $0 | $112,500 | $112,500 |
| 2008 | $0 | $125,000 | $0 | $125,000 | $125,000 |
| 2007 | $0 | $100,000 | $0 | $100,000 | $100,000 |
Deed and Sales History
| 1 | 09/21/2023 | WD | Warranty Deed | SIMONSON, RUSTY A | BROSS RENTAL, LLC | | | $299,900.00 | 58035 | 4564933 |
| 2 | 08/10/2020 | WD | Warranty Deed | FISCHER, WILLIAM L | SIMONSON, RUSTY A | | | $150,000.00 | 44248 | 4493916 |
| 3 | 06/22/1998 | WD | Warranty Deed | MERLINO, JAMES E | FISCHER, WILLIAM L | | | $53,000.00 | 82478 | 98012874 |
| 4 | 02/01/1997 | DECREE | Divorce Decree/Legal Separation | MERLINO, JAMES E | MERLINO, JAMES E | | | $0.00 | 70421 | 97001902 |
| 5 | 12/01/1989 | PACD | Purchaser's Assignment | MERLINO, GENE | MERLINO, JAMES E | | | $0.00 | 96120 | 89019663 |
| 6 | 11/01/1984 | PACD | Purchaser's Assignment | MERLINO, JAMES E | MERLINO, JAMES E | | | $0.00 | 43446 | 84006077 |
| 7 | 11/01/1984 | PACD | Purchaser's Assignment | MERLINO, JAMES E | MERLINO, GENE | | | $30,000.00 | 50415 | 85001924 |
| 8 | 01/01/1980 | REC | Real Estate Contract | JOSE, MATERNE | MERLINO, JAMES E | | | $25,000.00 | 428 | 364860 |
| 9 | 01/01/1900 | OTHER | Other - Misc. Documents | Unknown | JOSE, MATERNE | | | $0.00 | 0 | 0 |
Payout Agreement
| No payout information available.. |